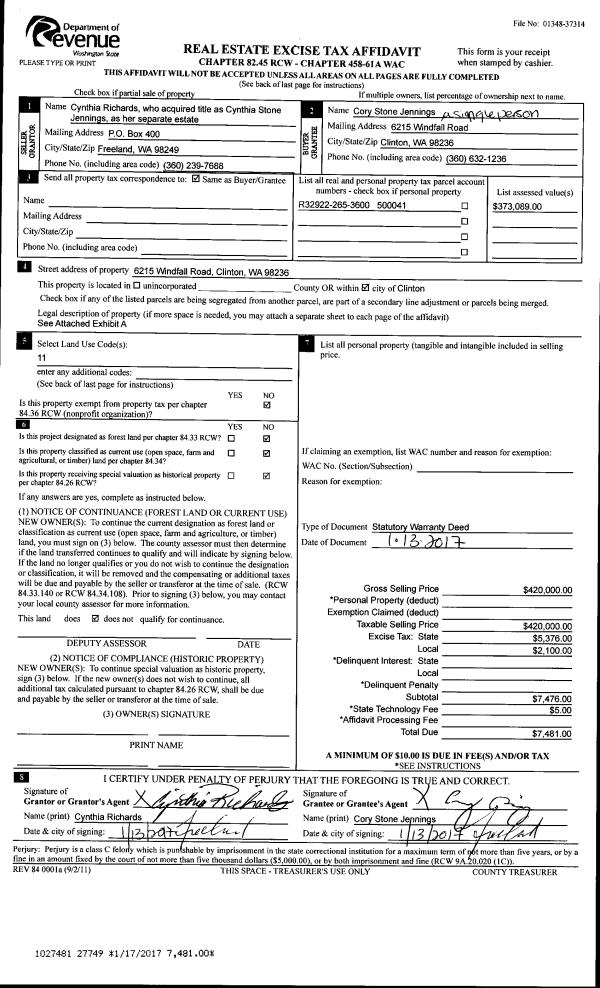
Property
Account |
| Property ID: | 500041 | Abbreviated Legal Description: | IN SE: BG NECR NW SE N87*W 676.51' S10*W310.91' S86*E 722.29' N2*E316.24' TPB FR 2123360 |
| Geographic ID: | R32922-265-3600 | Agent Code: | |
| Type: | Real | | |
| Tax Area: | 712 - APPRAISER-S Whid Schl Dist, outside Langley, improved, greater than 1 acre | Land Use Code | 11 |
| Open Space: | N | DFL | N |
| Historic Property: | N | Remodel Property: | N |
| Multi-Family Redevelopment: | N | | |
| Township: | 29 | Section: | 22 |
| Range: | R3 |
Location |
| Address: | 6215 WINDFALL RD CLINTON, WA 98236 | Mapsco: | |
| Neighborhood: | Cycle 4 | Map ID: | 800 |
| Neighborhood CD: | 4 |
Owner |
| Name: | JENNINGS, CORY STONE | Owner ID: | 278247 |
| Mailing Address: | 6215 WINDFALL RD CLINTON, WA 98236 | % Ownership: | 100.0000000000% |
| | | Exemptions: | |
Taxes and Assessment Details
Values
| (+) Improvement Homesite Value: | + | $0 | |
| (+) Improvement Non-Homesite Value: | + | $351,509 | |
| (+) Land Homesite Value: | + | $0 | |
| (+) Land Non-Homesite Value: | + | $370,000 | |
| (+) Curr Use (HS): | + | $0 | $0 |
| (+) Curr Use (NHS): | + | $0 | $0 |
| | | -------------------------- | |
| (=) Market Value: | = | $721,509 | |
| (–) Productivity Loss: | – | $0 | |
| | | -------------------------- | |
| (=) Subtotal: | = | $721,509 | |
| (+) Senior Appraised Value: | + | $0 | |
| (+) Non-Senior Appraised Value: | + | $721,509 | |
| | | -------------------------- | |
| (=) Total Appraised Value: | = | $721,509 | |
| (–) Senior Exemption Loss: | – | $0 | |
| (–) Exemption Loss: | – | $0 | |
| | | -------------------------- | |
| (=) Taxable Value: | = | $721,509 | |
Taxing Jurisdiction
| Owner: | JENNINGS, CORY STONE | | |
| % Ownership: | 100.0000000000% | | |
| Total Value: | $721,509 | | |
| Tax Area: | 712 - APPRAISER-S Whid Schl Dist, outside Langley, improved, greater than 1 acre |
| CF | Conservation Futures | 0.0313996660 | $721,509 | $721,509 | $22.66 | | |
| FIRE3 | Fire & Rescue Dist #3 S Whidbey GEN | 1.2130821753 | $721,509 | $721,509 | $875.25 | | |
| HOBOND | Hospital BOND | 0.1893405597 | $721,509 | $721,509 | $136.61 | | |
| HOGEN | Hospital GEN | 0.3848777722 | $721,509 | $721,509 | $277.69 | | |
| CE | County Current Expense | 0.3674210519 | $721,509 | $721,509 | $265.10 | | |
| CR | County Roads | 0.4614296361 | $721,509 | $721,509 | $332.93 | | |
| ISLANDEMS | Hospital GEN (EMS) | 0.4952018576 | $721,509 | $721,509 | $357.29 | | |
| LIB | Library Sno-Isle GEN | 0.3039084203 | $721,509 | $721,509 | $219.27 | | |
| PORTWHID | Port of S Whidbey GEN | 0.1086004714 | $721,509 | $721,509 | $78.36 | | |
| SCH206BOND | School 206 BOND | 0.5960237832 | $721,509 | $721,509 | $430.04 | | |
| SCH206CAP | School 206 CP | 0.3066144020 | $721,509 | $721,509 | $221.23 | | |
| SCH206MO | School 206 Enrichment | 0.4808755445 | $721,509 | $721,509 | $346.96 | | |
| ST | State School | 1.4761226122 | $721,509 | $721,509 | $1,065.04 | | |
| ST2 | State School Part 2 | 0.7953803475 | $721,509 | $721,509 | $573.87 | | |
| SWHIDPRBD | P & R S Whidbey BOND | 0.0144185398 | $721,509 | $721,509 | $10.40 | | |
| SWHIDPRBD3 | P & R S Whidbey BOND3 | 0.1483535547 | $721,509 | $721,509 | $107.04 | | |
| SWHIDPRMT | P & R S Whidbey GEN | 0.4600000000 | $721,509 | $721,509 | $331.89 | | |
| | Total Tax Rate: | 7.8330503944 | | | | | |
| | | | | Taxes w/Current Exemptions: | $5,651.63 | | |
| | | | | Taxes w/o Exemptions: | $5,651.63 | | |
Improvement / Building
| Improvement #1: | RESIDENTIAL | State Code: | Y | 2362.0 sqft | Value: | $351,509 |
| Bathrooms: | 3 | Bedrooms: | 3 | | Ceiling: | DRYWALL PAINTED | Cooling: | HEAT PUMP/CONV/V | | Exterior Wall/Cover: | WOOD SIDING | Floor Covering: | HARDWOOD/CARP 60-40 | | Floor Structure: | WOOD W/SUBFLOOR | Foundation: | SLAB | | Interior Finish: | DRYWALL PAINT | Plumbing Fixture Cnt: | 12 | | Roof Slope: | 6" IN 12" | Roof Structure/Cover: | CJ CONCRETE TILE |
|
| | Type | Description | Class CD | Sub Class CD | Year Built | Area |
| | BAS | BASE/MAIN FLOOR | 3 | 0 | 1989 | 970.0 |
| | OWC | OPEN WOOD PORCH W/STEPS/ROOF/C | 3 | 0 | 1989 | 454.0 |
| | UPH | HALF STORY | 3 | 0 | 1989 | 672.0 |
| | DGR | DETACHED GARAGE | 3 | 0 | 1989 | 864.0 |
| | LOF | LOFT | 3 | 0 | 1989 | 720.0 |
| | CPD | OPEN CARPORT DIRT FLOOR | 3 | 0 | 1989 | 672.0 |
| | OWP | OPEN WOOD PORCH W/STEPS | 3 | 0 | 1989 | 180.0 |
Sketch
Property Image
Land
| 1 | 32 | AC (03.01-09.99) | 5.0100 | 0.00 | 0.00 | 0.00 | 1.00 | $370,000 | $0 |
Roll Value History
| 2026 | N/A | N/A | N/A | N/A | N/A |
| 2025 | $351,509 | $370,000 | $0 | $721,509 | $721,509 |
| 2024 | $356,061 | $350,000 | $0 | $706,061 | $706,061 |
| 2023 | $360,611 | $330,000 | $0 | $690,611 | $690,611 |
| 2022 | $330,646 | $280,000 | $0 | $610,646 | $610,646 |
| 2021 | $291,095 | $230,000 | $0 | $521,095 | $521,095 |
| 2020 | $272,486 | $190,000 | $0 | $462,486 | $462,486 |
| 2019 | $204,100 | $250,000 | $0 | $454,100 | $454,100 |
| 2018 | $204,670 | $210,000 | $0 | $414,670 | $414,670 |
| 2017 | $205,810 | $190,000 | $0 | $395,810 | $395,810 |
| 2016 | $208,089 | $165,000 | $0 | $373,089 | $373,089 |
| 2015 | $210,368 | $135,000 | $0 | $345,368 | $345,368 |
| 2014 | $212,490 | $160,320 | $0 | $372,810 | $372,810 |
| 2013 | $215,009 | $160,320 | $0 | $375,329 | $375,329 |
| 2012 | $217,528 | $160,320 | $0 | $377,848 | $377,848 |
| 2011 | $220,046 | $160,320 | $0 | $380,366 | $380,366 |
| 2010 | $227,615 | $160,320 | $0 | $387,935 | $387,935 |
| 2009 | $236,641 | $220,440 | $0 | $457,081 | $457,081 |
| 2008 | $225,705 | $192,384 | $0 | $418,089 | $418,089 |
| 2007 | $228,402 | $192,384 | $0 | $420,786 | $420,786 |
Deed and Sales History
| 1 | 01/13/2017 | WD | Warranty Deed | RICHARDS, CYNTHIA G | JENNINGS, CORY STONE | | | $420,000.00 | 27749 | 4415284 |
| 2 | 08/13/2009 | OTHER | Other - Misc. Documents | STONE-JENNINGS, CYNTHIA G | RICHARDS, CYNTHIA G | | | $0.00 | 81351 | 0 |
| 3 | 12/08/1998 | DECREE | Divorce Decree/Legal Separation | JENNINGS, EDWARD J | STONE-JENNINGS, CYNTHIA G | | | $0.00 | 68097 | 0 |
| 4 | 03/01/1988 | WD | Warranty Deed | LEHMAN, WALTER C | JENNINGS, EDWARD J | | | $26,500.00 | 80878 | 88003440 |
| 5 | 05/01/1979 | CD | DNU - Correction Deed | L, & T | LEHMAN, WALTER C | | | $0.00 | 94726 | 359375 |
Payout Agreement
| No payout information available.. |