Property
Account |
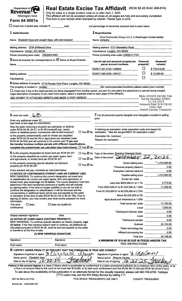
| Property ID: | 500121 | Abbreviated Legal Description: | PT NE NE LY SELY OF HWY |
| Geographic ID: | R32917-385-5200 | Agent Code: | |
| Type: | Real | | |
| Tax Area: | 719 - APPRAISER-S Whid Schl Dist, outside Langley, vacant & 50 acres or less | Land Use Code | 91 |
| Open Space: | N | DFL | N |
| Historic Property: | N | Remodel Property: | N |
| Multi-Family Redevelopment: | N | | |
| Township: | 29 | Section: | 17 |
| Range: | R3 |
Location |
| Address: | | Mapsco: | |
| Neighborhood: | 45cRR-highway 525 | Map ID: | 781 |
| Neighborhood CD: | 45cRRhw525 |
Owner |
| Name: | ORCA COMMUNITY GROUP LLC 2 | Owner ID: | 319196 |
| Mailing Address: | 5131 MAXWELTON RD LANGLEY, WA 98260 | % Ownership: | 100.0000000000% |
| | | Exemptions: | |
Taxes and Assessment Details
Values
| (+) Improvement Homesite Value: | + | N/A | |
| (+) Improvement Non-Homesite Value: | + | N/A | |
| (+) Land Homesite Value: | + | N/A | |
| (+) Land Non-Homesite Value: | + | N/A | Ag / Timber Use Value |
| (+) Curr Use (HS): | + | N/A | N/A |
| (+) Curr Use (NHS): | + | N/A | N/A |
| | | -------------------------- | |
| (=) Market Value: | = | N/A | |
| (–) Productivity Loss: | – | N/A | |
| | | -------------------------- | |
| (=) Subtotal: | = | N/A | |
| (+) Senior Appraised Value: | + | N/A | |
| (+) Non-Senior Appraised Value: | + | N/A | |
| | | -------------------------- | |
| (=) Total Appraised Value: | = | N/A | |
| (–) Senior Exemption Loss: | – | N/A | |
| (–) Exemption Loss: | – | N/A | |
| | | -------------------------- | |
| (=) Taxable Value: | = | N/A | |
Taxing Jurisdiction
| Owner: | ORCA COMMUNITY GROUP LLC 2 | | |
| % Ownership: | 100.0000000000% | | |
| Total Value: | N/A | | |
| Tax Area: | 719 - APPRAISER-S Whid Schl Dist, outside Langley, vacant & 50 acres or less |
| CF | Conservation Futures | N/A | N/A | N/A | N/A | | |
| WCD | Whidbey Conservation District | N/A | N/A | N/A | N/A | | |
| HOBOND | Hospital BOND | N/A | N/A | N/A | N/A | | |
| HOGEN | Hospital GEN | N/A | N/A | N/A | N/A | | |
| CE | County Current Expense | N/A | N/A | N/A | N/A | | |
| CR | County Roads | N/A | N/A | N/A | N/A | | |
| ISLANDEMS | Hospital GEN (EMS) | N/A | N/A | N/A | N/A | | |
| LIB | Library Sno-Isle GEN | N/A | N/A | N/A | N/A | | |
| PORTWHID | Port of S Whidbey GEN | N/A | N/A | N/A | N/A | | |
| SCH206CAP | School 206 CP | N/A | N/A | N/A | N/A | | |
| SCH206MO | School 206 Enrichment | N/A | N/A | N/A | N/A | | |
| ST | State School | N/A | N/A | N/A | N/A | | |
| ST2 | State School Part 2 | N/A | N/A | N/A | N/A | | |
| SWHIDPRBD | P & R S Whidbey BOND | N/A | N/A | N/A | N/A | | |
| SWHIDPRBD2 | P & R S Whidbey BOND2 | N/A | N/A | N/A | N/A | | |
| SWHIDPRMT | P & R S Whidbey GEN | N/A | N/A | N/A | N/A | | |
| | Total Tax Rate: | N/A | | | | | |
| | | | | Taxes w/Current Exemptions: | N/A | | |
| | | | | Taxes w/o Exemptions: | N/A | | |
Improvement / Building
Sketch
| No sketches available for this property. |
Property Image
Land
| 1 | 14 | SQ (08001-12000) | 0.2300 | 10018.80 | 0.00 | 0.00 | 1.00 | N/A | N/A |
Roll Value History
| 2026 | N/A | N/A | N/A | N/A | N/A |
| 2025 | $0 | $12,000 | $0 | $12,000 | $12,000 |
| 2024 | $0 | $1,800 | $0 | $1,800 | $1,800 |
| 2023 | $0 | $1,800 | $0 | $1,800 | $1,800 |
| 2022 | $0 | $1,800 | $0 | $1,800 | $1,800 |
| 2021 | $0 | $1,800 | $0 | $1,800 | $1,800 |
| 2020 | $0 | $1,800 | $0 | $1,800 | $1,800 |
| 2019 | $0 | $1,800 | $0 | $1,800 | $1,800 |
| 2018 | $0 | $1,800 | $0 | $1,800 | $1,800 |
| 2017 | $0 | $1,800 | $0 | $1,800 | $1,800 |
| 2016 | $0 | $1,800 | $0 | $1,800 | $1,800 |
| 2015 | $0 | $1,300 | $0 | $1,300 | $1,300 |
| 2014 | $0 | $1,300 | $0 | $1,300 | $1,300 |
| 2013 | $0 | $1,300 | $0 | $1,300 | $1,300 |
| 2012 | $0 | $1,300 | $0 | $1,300 | $1,300 |
| 2011 | $0 | $1,300 | $0 | $1,300 | $1,300 |
| 2010 | $0 | $1,300 | $0 | $1,300 | $1,300 |
| 2009 | $0 | $1,300 | $0 | $1,300 | $1,300 |
| 2008 | $0 | $1,300 | $0 | $1,300 | $1,300 |
| 2007 | $0 | $1,300 | $0 | $1,300 | $1,300 |
Deed and Sales History
| 1 | 12/22/2025 | WD | Warranty Deed | ITAYA, ELIZABETH | ORCA COMMUNITY GROUP LLC 2 | | | $1,410,000.00 | 65802 | 4595051 |
|   | |
| 2 | 01/10/2013 | WD | Warranty Deed | HOUSE OF PRAYER, THE | ITAYA, ELIZABETH | | | $500,000.00 | 10148 | 4331492 |
|   | |
| 3 | 05/01/1980 | CD | DNU - Correction Deed | WERNER, BARBARA B | HOUSE, OF P | | | $400.00 | 1719 | 368958 |
| 4 | 01/01/1980 | CD | DNU - Correction Deed | Unknown | WERNER, BARBARA B | | | $0.00 | 1538 | 368420 |
Payout Agreement
| No payout information available.. |