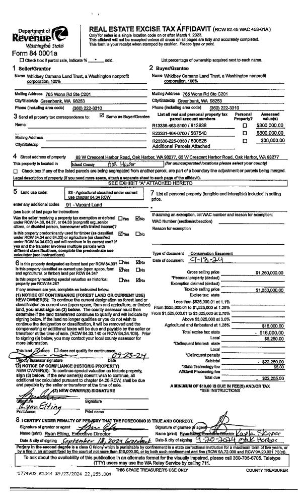
| 1 | 09/18/2024 | EZ | Easement | WHIDBEY CAMANO LAND TRUST | WHIDBEY CAMANO LAND TRUST | | | $1,250,000.00 | 61344 | 4577369 |
|   | |
| 2 | 09/18/2024 | GRANTD | Grant Deed | WHIDBEY CAMANO LAND TRUST | UNITED STATES OF AMERICA | | | $430,000.00 | 61343 | 4577368 |
|   | |
| 3 | 09/09/2022 | BARGSLD | Bargain And Sale Deed | VALDEZ, RAFAEL | WHIDBEY CAMANO LAND TRUST | | | $1,625,000.00 | 54520 | 4551160 |
|   | |
| 4 | 03/01/1995 | QCD | Quit Claim Deed | FARMERS, HOME A | VALDEZ, RAFAEL & | | | $0.00 | 51336 | 95006275 |
| 5 | 03/01/1994 | OTHER | Other - Misc. Documents | FARMERS, HOME A | FARMERS, HOME A | | | $0.00 | 65799 | 0 |
| 6 | 12/01/1985 | SHERIFFD | Sheriff Deed | HANSON, RONALD A | FARMERS, HOME A | | | $0.00 | 61395 | 85013247 |
| 7 | 10/01/1978 | OTHER | Other - Misc. Documents | Unknown | HANSON, RONALD A | | | $204,000.00 | 85563 | 343101 |