Property
Account |
| Property ID: | 501031 | Abbreviated Legal Description: | BG SE CR SE NE N89*W877.47' N31*E432.14' N9*E325.79' N15*E230.42' TPB N89*W62.02 N89*W55' N7*W355.78' S89* E346.95' S402.77' N89*W200' TPB TGW SUB EZ SP 79-66 TR D-2 FR 3744720 |
| Geographic ID: | R23327-375-4850 | Agent Code: | |
| Type: | Real | | |
| Tax Area: | 112 - APPRAISER-OH Schl Dist, outside OH, improved, greater than 1 acre | Land Use Code | 11 |
| Open Space: | N | DFL | N |
| Historic Property: | N | Remodel Property: | N |
| Multi-Family Redevelopment: | N | | |
| Township: | 33 | Section: | 27 |
| Range: | R2 |
Location |
| Address: | 3078 AUTUMN LN OAK HARBOR, WA 98277 | Mapsco: | |
| Neighborhood: | Cycle 6 | Map ID: | 630 |
| Neighborhood CD: | 6 |
Owner |
| Name: | ALIBERTI, TANYA J. | Owner ID: | 304868 |
| Mailing Address: | 3078 AUTUMN LANE OAK HARBOR, WA 98277 | % Ownership: | 100.0000000000% |
| | | Exemptions: | |
Taxes and Assessment Details
Values
| (+) Improvement Homesite Value: | + | $0 | |
| (+) Improvement Non-Homesite Value: | + | $80,809 | |
| (+) Land Homesite Value: | + | $0 | |
| (+) Land Non-Homesite Value: | + | $290,000 | |
| (+) Curr Use (HS): | + | $0 | $0 |
| (+) Curr Use (NHS): | + | $0 | $0 |
| | | -------------------------- | |
| (=) Market Value: | = | $370,809 | |
| (–) Productivity Loss: | – | $0 | |
| | | -------------------------- | |
| (=) Subtotal: | = | $370,809 | |
| (+) Senior Appraised Value: | + | $0 | |
| (+) Non-Senior Appraised Value: | + | $370,809 | |
| | | -------------------------- | |
| (=) Total Appraised Value: | = | $370,809 | |
| (–) Senior Exemption Loss: | – | $0 | |
| (–) Exemption Loss: | – | $0 | |
| | | -------------------------- | |
| (=) Taxable Value: | = | $370,809 | |
Taxing Jurisdiction
| Owner: | ALIBERTI, TANYA J. | | |
| % Ownership: | 100.0000000000% | | |
| Total Value: | $370,809 | | |
| Tax Area: | 112 - APPRAISER-OH Schl Dist, outside OH, improved, greater than 1 acre |
| CF | Conservation Futures | 0.0313996660 | $370,809 | $370,809 | $11.64 | | |
| CEM1 | Cemetery #1 | 0.0040018856 | $370,809 | $370,809 | $1.48 | | |
| FIRE2 | Fire & Rescue Dist #2 N Whidbey GEN | 0.5381486274 | $370,809 | $370,809 | $199.55 | | |
| HOBOND | Hospital BOND | 0.1893405597 | $370,809 | $370,809 | $70.21 | | |
| HOGEN | Hospital GEN | 0.3848777722 | $370,809 | $370,809 | $142.72 | | |
| CE | County Current Expense | 0.3674210519 | $370,809 | $370,809 | $136.24 | | |
| CR | County Roads | 0.4614296361 | $370,809 | $370,809 | $171.10 | | |
| ISLANDEMS | Hospital GEN (EMS) | 0.4952018576 | $370,809 | $370,809 | $183.63 | | |
| LIB | Library Sno-Isle GEN | 0.3039084203 | $370,809 | $370,809 | $112.69 | | |
| NWHIDPRMT | P & R N Whidbey GEN | 0.1990272349 | $370,809 | $370,809 | $73.80 | | |
| SCH201MO | School 201 Enrichment | 2.3851112745 | $370,809 | $370,809 | $884.42 | | |
| ST | State School | 1.4761226122 | $370,809 | $370,809 | $547.36 | | |
| ST2 | State School Part 2 | 0.7953803475 | $370,809 | $370,809 | $294.93 | | |
| | Total Tax Rate: | 7.6313709459 | | | | | |
| | | | | Taxes w/Current Exemptions: | $2,829.77 | | |
| | | | | Taxes w/o Exemptions: | $2,829.77 | | |
Improvement / Building
| Improvement #1: | MANUFACTURED HOME | State Code: | Y | 1536.0 sqft | Value: | $80,809 |
| Bathrooms: | 0 | Bedrooms: | 0 | | Ceiling: | PLASTER PAINTED | Cooling: | EVAP NO DUCT | | Exterior Wall/Cover: | VINYL | Floor Covering: | CARPET 100% | | Floor Structure: | SLAB ON GRADE | Foundation: | SLAB | | Heating: | FHA ELECTRIC | Interior Finish: | PLASTER | | Plumbing Fixture Cnt: | 1 | Roof Slope: | FLAT | | Roof Structure/Cover: | CJ ALUMINIUM HEAVY |   |   |
|
| | Type | Description | Class CD | Sub Class CD | Year Built | Area |
| | BAS | BASE/MAIN FLOOR | 4 | 0 | 1979 | 1536.0 |
| | DGR | DETACHED GARAGE | 4 | 0 | 1979 | 576.0 |
| | OWP | OPEN WOOD PORCH W/STEPS | 4 | 0 | 1979 | 176.0 |
| | OWR | OPEN WOOD PORCH W/STEPS/ROOF | 4 | 0 | 1979 | 48.0 |
Sketch
Property Image
Land
| 1 | 18 | AC (02.01-03.00) | 2.9500 | 128502.00 | 0.00 | 0.00 | 1.00 | $290,000 | $0 |
Roll Value History
| 2026 | N/A | N/A | N/A | N/A | N/A |
| 2025 | $80,809 | $290,000 | $0 | $370,809 | $370,809 |
| 2024 | $84,658 | $280,000 | $0 | $364,658 | $364,658 |
| 2023 | $76,961 | $280,000 | $0 | $356,961 | $356,961 |
| 2022 | $41,267 | $210,000 | $0 | $251,267 | $251,267 |
| 2021 | $38,057 | $160,000 | $0 | $198,057 | $198,057 |
| 2020 | $40,114 | $140,000 | $0 | $180,114 | $180,114 |
| 2019 | $33,259 | $200,000 | $0 | $233,259 | $233,259 |
| 2018 | $34,922 | $170,000 | $0 | $204,922 | $204,922 |
| 2017 | $36,585 | $150,000 | $0 | $186,585 | $186,585 |
| 2016 | $27,440 | $120,000 | $0 | $147,440 | $147,440 |
| 2015 | $29,102 | $90,000 | $0 | $119,102 | $119,102 |
| 2014 | $31,596 | $80,000 | $0 | $111,596 | $111,596 |
| 2013 | $33,259 | $108,000 | $0 | $141,259 | $141,259 |
| 2012 | $34,922 | $108,000 | $0 | $142,922 | $142,922 |
| 2011 | $36,585 | $120,000 | $0 | $156,585 | $156,585 |
| 2010 | $51,309 | $120,000 | $0 | $171,309 | $171,309 |
| 2009 | $54,095 | $145,000 | $0 | $199,095 | $199,095 |
| 2008 | $55,865 | $145,000 | $0 | $200,865 | $200,865 |
| 2007 | $57,637 | $203,000 | $0 | $260,637 | $260,637 |
Deed and Sales History
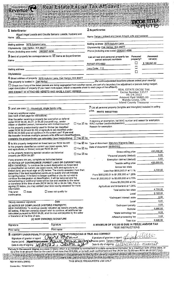
| 1 | 06/20/2022 | WD | Warranty Deed | LOSADA, ANGEL MIGUEL | ALIBERTI, TANYA J. | | | $430,000.00 | 53577 | 4547121 |
| 2 | 04/15/2008 | WD | Warranty Deed | LOSADA, MIGUEL | LOSADA, ANGEL MIGUEL | | | $0.00 | 80935 | 4226510 |
| 3 | 04/15/2008 | WD | Warranty Deed | WILLIAMS, ALFRED D | LOSADA, MIGUEL | | | $173,900.00 | 80916 | 4226385 |
| 4 | 08/29/2000 | WD | Warranty Deed | GARVIN, JAMES/PAT L | WILLIAMS, ALFRED | | | $135,700.00 | 3299 | 0 |
| 5 | 08/29/2000 | WD | Warranty Deed | WILLIAMS, ALFRED | WILLIAMS, ALFRED D | | | $135,700.00 | 3299 | 20015450 |
| 6 | 11/19/1998 | OTHER | Other - Misc. Documents | GARVIN, JAMES L | GARVIN, JAMES/PAT L | | | $0.00 | 84622 | 0 |
| 7 | 04/01/1980 | CD | DNU - Correction Deed | LONG, WILLIAM T | GARVIN, JAMES L | | | $0.00 | 1326 | 367809 |
| 8 | 01/01/1900 | OTHER | Other - Misc. Documents | Unknown | GARVIN, JAMES/PAT L | | | $29,000.00 | 0 | 0 |
| 9 | 01/01/1900 | OTHER | Other - Misc. Documents | GARVIN, JAMES/PAT L | LONG, WILLIAM T | | | $0.00 | 0 | 0 |
Payout Agreement
| No payout information available.. |