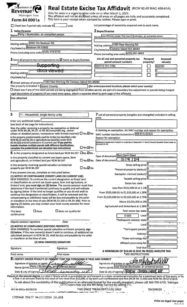
Property
Account |
| Property ID: | 501843 | Abbreviated Legal Description: | EXCESS FROM 151-1761 REPLACES 176-1510 BG NECR SW W576.51' S984.03 TPB S341.44' W660' N74.93' N12*E273.13' E603.48' TPB TGW SUB EZ (LOT 39 V4 SUR P430 AF#356860) |
| Geographic ID: | R23113-151-1760 | Agent Code: | |
| Type: | Real | | |
| Tax Area: | 512 - APPRAISER-Stan/Cam Schl Dist, improved, greater than 1 acre | Land Use Code | 11 |
| Open Space: | N | DFL | N |
| Historic Property: | N | Remodel Property: | N |
| Multi-Family Redevelopment: | N | | |
| Township: | 31 | Section: | 13 |
| Range: | R2 |
Location |
| Address: | 1080 NEW MORNING RD CAMANO ISLAND, WA 98282 | Mapsco: | |
| Neighborhood: | Cycle 5 | Map ID: | 477 |
| Neighborhood CD: | 5 |
Owner |
| Name: | JORDAN, LISA MICHELLE | Owner ID: | 312008 |
| Mailing Address: | 1080 NEW MORNING RD CAMANO ISLAND, WA 98282 | % Ownership: | 100.0000000000% |
| | | Exemptions: | |
Taxes and Assessment Details
Values
| (+) Improvement Homesite Value: | + | $0 | |
| (+) Improvement Non-Homesite Value: | + | $324,369 | |
| (+) Land Homesite Value: | + | $0 | |
| (+) Land Non-Homesite Value: | + | $330,000 | |
| (+) Curr Use (HS): | + | $0 | $0 |
| (+) Curr Use (NHS): | + | $0 | $0 |
| | | -------------------------- | |
| (=) Market Value: | = | $654,369 | |
| (–) Productivity Loss: | – | $0 | |
| | | -------------------------- | |
| (=) Subtotal: | = | $654,369 | |
| (+) Senior Appraised Value: | + | $0 | |
| (+) Non-Senior Appraised Value: | + | $654,369 | |
| | | -------------------------- | |
| (=) Total Appraised Value: | = | $654,369 | |
| (–) Senior Exemption Loss: | – | $0 | |
| (–) Exemption Loss: | – | $0 | |
| | | -------------------------- | |
| (=) Taxable Value: | = | $654,369 | |
Taxing Jurisdiction
| Owner: | JORDAN, LISA MICHELLE | | |
| % Ownership: | 100.0000000000% | | |
| Total Value: | $654,369 | | |
| Tax Area: | 512 - APPRAISER-Stan/Cam Schl Dist, improved, greater than 1 acre |
| CF | Conservation Futures | 0.0313996660 | $654,369 | $654,369 | $20.55 | | |
| EMS1 | Fire & Rescue Dist #1 Camano GEN (EMS) | 0.4998471806 | $654,369 | $654,369 | $327.08 | | |
| FIRE1 | Fire & Rescue Dist #1 Camano GEN | 1.2496603404 | $654,369 | $654,369 | $817.74 | | |
| FIRE1BOND | Fire & Rescue Dist #1 Camano BOND | 0.1630371212 | $654,369 | $654,369 | $106.69 | | |
| CE | County Current Expense | 0.3674210519 | $654,369 | $654,369 | $240.43 | | |
| CR | County Roads | 0.4614296361 | $654,369 | $654,369 | $301.95 | | |
| LIB | Library Sno-Isle GEN | 0.3039084203 | $654,369 | $654,369 | $198.87 | | |
| SCH205_401 | School 205-401 Enrichment | 1.3697998934 | $654,369 | $654,369 | $896.35 | | |
| SCH205BOND | School 205-401 BOND | 0.9354199323 | $654,369 | $654,369 | $612.11 | | |
| ST | State School | 1.4761226122 | $654,369 | $654,369 | $965.93 | | |
| ST2 | State School Part 2 | 0.7953803475 | $654,369 | $654,369 | $520.47 | | |
| | Total Tax Rate: | 7.6534262019 | | | | | |
| | | | | Taxes w/Current Exemptions: | $5,008.17 | | |
| | | | | Taxes w/o Exemptions: | $5,008.17 | | |
Improvement / Building
| Improvement #1: | RESIDENTIAL | State Code: | Y | 1712.0 sqft | Value: | $324,369 |
| Bathrooms: | 2 | Bedrooms: | 0 | | Ceiling: | DRYWALL PAINTED | Exterior Wall/Cover: | PLY/HARDBOARD T-111 | | Floor Covering: | CARPET/VINYL 80-20 | Floor Structure: | WOOD W/SUBFLOOR | | Foundation: | CONCRETE | Heating: | WALL HEAT ELECTRIC | | Interior Finish: | DRYWALL PAINT | Plumbing Fixture Cnt: | 9 | | Roof Slope: | 6" IN 12" | Roof Structure/Cover: | CJ ASPHALT |
|
| | Type | Description | Class CD | Sub Class CD | Year Built | Area |
| | BAS | BASE/MAIN FLOOR | 3 | 0 | 1995 | 856.0 |
| | AGR | ATTACHED GARAGE | 3 | 0 | 1995 | 624.0 |
| | DWN | DOWNSTAIRS LIVING AREA | 3 | 0 | 1995 | 856.0 |
| | DGR | DETACHED GARAGE | 3 | 0 | 1995 | 1080.0 |
| | OWP | OPEN WOOD PORCH W/STEPS | 3 | 0 | 1995 | 1140.0 |
Sketch
Property Image
Land
| 1 | 32 | AC (03.01-09.99) | 5.0000 | 0.00 | 0.00 | 0.00 | 1.00 | $330,000 | $0 |
Roll Value History
| 2026 | N/A | N/A | N/A | N/A | N/A |
| 2025 | $324,369 | $330,000 | $0 | $654,369 | $654,369 |
| 2024 | $328,361 | $300,000 | $0 | $628,361 | $628,361 |
| 2023 | $332,353 | $290,000 | $0 | $622,353 | $622,353 |
| 2022 | $304,551 | $290,000 | $0 | $594,551 | $594,551 |
| 2021 | $205,348 | $190,000 | $0 | $395,348 | $395,348 |
| 2020 | $200,264 | $160,000 | $0 | $360,264 | $360,264 |
| 2019 | $147,399 | $230,000 | $0 | $377,399 | $377,399 |
| 2018 | $147,842 | $175,000 | $0 | $322,842 | $322,842 |
| 2017 | $148,723 | $150,000 | $0 | $298,723 | $298,723 |
| 2016 | $150,494 | $125,000 | $0 | $275,494 | $275,494 |
| 2015 | $145,532 | $125,000 | $0 | $270,532 | $270,532 |
| 2014 | $147,346 | $125,000 | $0 | $272,346 | $272,346 |
| 2013 | $149,163 | $112,000 | $0 | $261,163 | $261,163 |
| 2012 | $150,979 | $112,000 | $0 | $262,979 | $262,979 |
| 2011 | $152,795 | $140,000 | $0 | $292,795 | $292,795 |
| 2010 | $158,075 | $140,000 | $0 | $298,075 | $298,075 |
| 2009 | $164,894 | $160,000 | $0 | $324,894 | $324,894 |
| 2008 | $166,945 | $215,000 | $0 | $381,945 | $381,945 |
| 2007 | $168,997 | $147,500 | $0 | $316,497 | $316,497 |
Deed and Sales History
| 1 | 03/04/2024 | QCD | Quit Claim Deed | BURKHOLDER, PERRY J | JORDAN, LISA MICHELLE | | | $0.00 | 59677 | 4571332 |
| 2 | 02/25/2014 | WD | Warranty Deed | LYBBERT, RANDY D | BURKHOLDER, PERRY J | | | $274,500.00 | 14424 | 4355849 |
| 3 | 07/01/1993 | OTHER | Other - Misc. Documents | LYBBERT, RANDY D | LYBBERT, RANDY D | | | $0.00 | 65456 | 0 |
| 4 | 05/01/1993 | WD | Warranty Deed | OWENS, JAMES V | LYBBERT, RANDY D | | | $43,500.00 | 32040 | 93010582 |
| 5 | 12/01/1989 | WD | Warranty Deed | OSMUNDSON, HOWARD B | OWENS, JAMES V | | | $18,000.00 | 91 | 90000265 |
| 6 | 08/01/1984 | QCD | Quit Claim Deed | HOME, SAVINGS & | OSMUNDSON, HOWARD B | | | $0.00 | 42538 | 84002546 |
| 7 | 06/01/1983 | TRUSTEED | Trustee's Deed | CAMANO, ASSC.C/O E | HOME, SAVINGS & | | | $0.00 | 31681 | 0 |
| 8 | 05/01/1980 | CD | DNU - Correction Deed | Unknown | CAMANO, ASSC.C/O E | | | $0.00 | 1487 | 368284 |
Payout Agreement
| No payout information available.. |