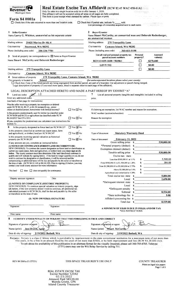
Property
Account |
| Property ID: | 501861 | Abbreviated Legal Description: | REPLACES 160-0390 BG SECR SW W906.53' TPB W330' N660.06' E330' S660 .06' TPB TGW SUB EZ |
| Geographic ID: | R23113-039-1600 | Agent Code: | |
| Type: | Real | | |
| Tax Area: | 512 - APPRAISER-Stan/Cam Schl Dist, improved, greater than 1 acre | Land Use Code | 11 |
| Open Space: | N | DFL | N |
| Historic Property: | N | Remodel Property: | N |
| Multi-Family Redevelopment: | N | | |
| Township: | 31 | Section: | 13 |
| Range: | R2 |
Location |
| Address: | 275 TRANQUILITY LN CAMANO ISLAND, WA 98282 | Mapsco: | |
| Neighborhood: | Cycle 5 | Map ID: | 477 |
| Neighborhood CD: | 5 |
Owner |
| Name: | MCCARTHY, STUART | Owner ID: | 303256 |
| Mailing Address: | DEBORAH RODENBERGER 275 TRANQUILITY LN CAMANO ISLAND, WA 98282 | % Ownership: | 100.0000000000% |
| | | Exemptions: | |
Taxes and Assessment Details
Values
| (+) Improvement Homesite Value: | + | $0 | |
| (+) Improvement Non-Homesite Value: | + | $153,136 | |
| (+) Land Homesite Value: | + | $0 | |
| (+) Land Non-Homesite Value: | + | $330,000 | |
| (+) Curr Use (HS): | + | $0 | $0 |
| (+) Curr Use (NHS): | + | $0 | $0 |
| | | -------------------------- | |
| (=) Market Value: | = | $483,136 | |
| (–) Productivity Loss: | – | $0 | |
| | | -------------------------- | |
| (=) Subtotal: | = | $483,136 | |
| (+) Senior Appraised Value: | + | $0 | |
| (+) Non-Senior Appraised Value: | + | $483,136 | |
| | | -------------------------- | |
| (=) Total Appraised Value: | = | $483,136 | |
| (–) Senior Exemption Loss: | – | $0 | |
| (–) Exemption Loss: | – | $0 | |
| | | -------------------------- | |
| (=) Taxable Value: | = | $483,136 | |
Taxing Jurisdiction
| Owner: | MCCARTHY, STUART | | |
| % Ownership: | 100.0000000000% | | |
| Total Value: | $483,136 | | |
| Tax Area: | 512 - APPRAISER-Stan/Cam Schl Dist, improved, greater than 1 acre |
| CF | Conservation Futures | 0.0313996660 | $483,136 | $483,136 | $15.17 | | |
| EMS1 | Fire & Rescue Dist #1 Camano GEN (EMS) | 0.4998471806 | $483,136 | $483,136 | $241.49 | | |
| FIRE1 | Fire & Rescue Dist #1 Camano GEN | 1.2496603404 | $483,136 | $483,136 | $603.76 | | |
| FIRE1BOND | Fire & Rescue Dist #1 Camano BOND | 0.1630371212 | $483,136 | $483,136 | $78.77 | | |
| CE | County Current Expense | 0.3674210519 | $483,136 | $483,136 | $177.51 | | |
| CR | County Roads | 0.4614296361 | $483,136 | $483,136 | $222.93 | | |
| LIB | Library Sno-Isle GEN | 0.3039084203 | $483,136 | $483,136 | $146.83 | | |
| SCH205_401 | School 205-401 Enrichment | 1.3697998934 | $483,136 | $483,136 | $661.80 | | |
| SCH205BOND | School 205-401 BOND | 0.9354199323 | $483,136 | $483,136 | $451.94 | | |
| ST | State School | 1.4761226122 | $483,136 | $483,136 | $713.17 | | |
| ST2 | State School Part 2 | 0.7953803475 | $483,136 | $483,136 | $384.28 | | |
| | Total Tax Rate: | 7.6534262019 | | | | | |
| | | | | Taxes w/Current Exemptions: | $3,697.65 | | |
| | | | | Taxes w/o Exemptions: | $3,697.65 | | |
Improvement / Building
| Improvement #1: | MANUFACTURED HOME | State Code: | Y | 1620.0 sqft | Value: | $153,136 |
| Bathrooms: | 0 | Bedrooms: | 0 | | Ceiling: | PLASTER PAINTED | Cooling: | EVAP NO DUCT | | Exterior Wall/Cover: | VINYL | Floor Covering: | CARPET 100% | | Floor Structure: | SLAB ON GRADE | Foundation: | SLAB | | Heating: | FHA ELECTRIC | Interior Finish: | PLASTER | | Plumbing Fixture Cnt: | 1 | Roof Slope: | FLAT | | Roof Structure/Cover: | CJ ALUMINIUM HEAVY |   |   |
|
| | Type | Description | Class CD | Sub Class CD | Year Built | Area |
| | BAS | BASE/MAIN FLOOR | 4 | 0 | 1994 | 1620.0 |
| | AGR | ATTACHED GARAGE | 4 | 0 | 1994 | 864.0 |
| | UTY | STORAGE/UTILITY | 4 | 0 | 1994 | 256.0 |
| | UTY | STORAGE/UTILITY | 4 | 0 | 1994 | 216.0 |
| | CPD | OPEN CARPORT DIRT FLOOR | 4 | 0 | 1994 | 144.0 |
| | OWP | OPEN WOOD PORCH W/STEPS | 4 | 0 | 1994 | 80.0 |
Sketch
Property Image
Land
| 1 | 32 | AC (03.01-09.99) | 5.0000 | 0.00 | 0.00 | 0.00 | 1.00 | $330,000 | $0 |
Roll Value History
| 2026 | N/A | N/A | N/A | N/A | N/A |
| 2025 | $153,136 | $330,000 | $0 | $483,136 | $483,136 |
| 2024 | $156,739 | $300,000 | $0 | $456,739 | $456,739 |
| 2023 | $142,242 | $290,000 | $0 | $432,242 | $432,242 |
| 2022 | $120,910 | $290,000 | $0 | $410,910 | $410,910 |
| 2021 | $80,440 | $190,000 | $0 | $270,440 | $270,440 |
| 2020 | $80,400 | $160,000 | $0 | $240,400 | $240,400 |
| 2019 | $69,234 | $230,000 | $0 | $299,234 | $299,234 |
| 2018 | $69,896 | $175,000 | $0 | $244,896 | $244,896 |
| 2017 | $71,221 | $150,000 | $0 | $221,221 | $221,221 |
| 2016 | $72,543 | $125,000 | $0 | $197,543 | $197,543 |
| 2015 | $84,616 | $125,000 | $0 | $209,616 | $209,616 |
| 2014 | $85,836 | $125,000 | $0 | $210,836 | $210,836 |
| 2013 | $87,057 | $112,000 | $0 | $199,057 | $199,057 |
| 2012 | $87,668 | $112,000 | $0 | $199,668 | $199,668 |
| 2011 | $88,889 | $140,000 | $0 | $228,889 | $228,889 |
| 2010 | $86,323 | $140,000 | $0 | $226,323 | $226,323 |
| 2009 | $89,674 | $160,000 | $0 | $249,674 | $249,674 |
| 2008 | $92,338 | $215,000 | $0 | $307,338 | $307,338 |
| 2007 | $94,711 | $147,500 | $0 | $242,211 | $242,211 |
Deed and Sales History
| 1 | 02/11/2022 | WD | Warranty Deed | WHITTON, LARRY G | MCCARTHY, STUART | | | $530,000.00 | 52042 | 4540204 |
| 2 | 01/03/2005 | WD | Warranty Deed | KROGEN, THEODORE W | WHITTON, LARRY G | | | $225,000.00 | 50030 | 4122408 |
| 3 | 03/13/2002 | WD | Warranty Deed | LENNOX, MARK E | KROGEN, THEODORE W | | | $170,000.00 | 21030 | 4014497 |
| 4 | 07/01/1994 | WD | Warranty Deed | DALRYMPLE, ROBERT S | LENNOX, MARK E | | | $50,000.00 | 42965 | 94016172 |
| 5 | 08/01/1990 | QCD | Quit Claim Deed | DALRYMPLE, ROBERT S | DALRYMPLE, ROBERT S | | | $0.00 | 5079 | 90016871 |
| 6 | 12/01/1980 | TRUSTEED | Trustee's Deed | CAMANO, ASSOCIATES | DALRYMPLE, ROBERT S | | | $16,000.00 | 4073 | 377187 |
| 7 | 03/01/1979 | OTHER | Other - Misc. Documents | Unknown | CAMANO, ASSOCIATES | | | $0.00 | 91517 | 350222 |
Payout Agreement
| No payout information available.. |