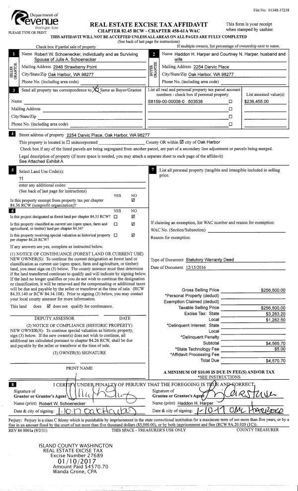
Property
Account |
| Property ID: | 503538 | Abbreviated Legal Description: | SHIRONA #1 LOT 8 |
| Geographic ID: | S8159-00-00008-0 | Agent Code: | |
| Type: | Real | | |
| Tax Area: | 110 - APPRAISER-OH Schl Dist, outside OH, improved & 1 acre or less | Land Use Code | 11 |
| Open Space: | N | DFL | N |
| Historic Property: | N | Remodel Property: | N |
| Multi-Family Redevelopment: | N | | |
| Township: | | Section: | |
| Range: | |
Location |
| Address: | 2254 DARVIC PLACE OAK HARBOR, WA 98277 | Mapsco: | |
| Neighborhood: | Cycle 1 | Map ID: | 139 |
| Neighborhood CD: | 1 |
Owner |
| Name: | HARPER, HADDON H | Owner ID: | 278199 |
| Mailing Address: | COURTNEY N HARPER 2254 DARVIC PLACE OAK HARBOR, WA 98277 | % Ownership: | 100.0000000000% |
| | | Exemptions: | |
Taxes and Assessment Details
Values
| (+) Improvement Homesite Value: | + | $0 | |
| (+) Improvement Non-Homesite Value: | + | $264,561 | |
| (+) Land Homesite Value: | + | $0 | |
| (+) Land Non-Homesite Value: | + | $180,000 | |
| (+) Curr Use (HS): | + | $0 | $0 |
| (+) Curr Use (NHS): | + | $0 | $0 |
| | | -------------------------- | |
| (=) Market Value: | = | $444,561 | |
| (–) Productivity Loss: | – | $0 | |
| | | -------------------------- | |
| (=) Subtotal: | = | $444,561 | |
| (+) Senior Appraised Value: | + | $0 | |
| (+) Non-Senior Appraised Value: | + | $444,561 | |
| | | -------------------------- | |
| (=) Total Appraised Value: | = | $444,561 | |
| (–) Senior Exemption Loss: | – | $0 | |
| (–) Exemption Loss: | – | $0 | |
| | | -------------------------- | |
| (=) Taxable Value: | = | $444,561 | |
Taxing Jurisdiction
| Owner: | HARPER, HADDON H | | |
| % Ownership: | 100.0000000000% | | |
| Total Value: | $444,561 | | |
| Tax Area: | 110 - APPRAISER-OH Schl Dist, outside OH, improved & 1 acre or less |
| CF | Conservation Futures | 0.0313996660 | $444,561 | $444,561 | $13.96 | | |
| CEM1 | Cemetery #1 | 0.0040018856 | $444,561 | $444,561 | $1.78 | | |
| FIRE2 | Fire & Rescue Dist #2 N Whidbey GEN | 0.5381486274 | $444,561 | $444,561 | $239.24 | | |
| HOBOND | Hospital BOND | 0.1893405597 | $444,561 | $444,561 | $84.17 | | |
| HOGEN | Hospital GEN | 0.3848777722 | $444,561 | $444,561 | $171.10 | | |
| CE | County Current Expense | 0.3674210519 | $444,561 | $444,561 | $163.34 | | |
| CR | County Roads | 0.4614296361 | $444,561 | $444,561 | $205.13 | | |
| ISLANDEMS | Hospital GEN (EMS) | 0.4952018576 | $444,561 | $444,561 | $220.15 | | |
| LIB | Library Sno-Isle GEN | 0.3039084203 | $444,561 | $444,561 | $135.11 | | |
| NWHIDPRMT | P & R N Whidbey GEN | 0.1990272349 | $444,561 | $444,561 | $88.48 | | |
| SCH201MO | School 201 Enrichment | 2.3851112745 | $444,561 | $444,561 | $1,060.33 | | |
| ST | State School | 1.4761226122 | $444,561 | $444,561 | $656.23 | | |
| ST2 | State School Part 2 | 0.7953803475 | $444,561 | $444,561 | $353.60 | | |
| | Total Tax Rate: | 7.6313709459 | | | | | |
| | | | | Taxes w/Current Exemptions: | $3,392.62 | | |
| | | | | Taxes w/o Exemptions: | $3,392.62 | | |
Improvement / Building
| Improvement #1: | RESIDENTIAL | State Code: | Y | 1742.5 sqft | Value: | $264,561 |
| Bathrooms: | 2.5 | Bedrooms: | 3 | | Ceiling: | DRYWALL PAINTED | Cooling: | HEAT PUMP/CONV/V | | Exterior Wall/Cover: | PLY/HARDBOARD T-111 | Floor Covering: | CARPET/VINYL 80-20 | | Floor Structure: | WOOD W/SUBFLOOR | Foundation: | CONCRETE | | Interior Finish: | DRYWALL PAINT | Plumbing Fixture Cnt: | 11 | | Roof Slope: | 6" IN 12" | Roof Structure/Cover: | CJ ASPHALT |
|
| | Type | Description | Class CD | Sub Class CD | Year Built | Area |
| | BAS | BASE/MAIN FLOOR | 3 | 0 | 1990 | 980.2 |
| | BIG | BUILT IN GARAGE | 3 | 0 | 1990 | 468.6 |
| | UPS | UPPER STORY | 3 | 0 | 1990 | 762.3 |
| | OWC | OPEN WOOD PORCH W/STEPS/ROOF/C | 3 | 0 | 1990 | 20.0 |
Sketch
Property Image
Land
| 1 | 15 | SQ (12001-21780) | 0.0000 | 0.00 | 0.00 | 0.00 | 1.00 | $180,000 | $0 |
Roll Value History
| 2026 | N/A | N/A | N/A | N/A | N/A |
| 2025 | $264,561 | $180,000 | $0 | $444,561 | $444,561 |
| 2024 | $268,223 | $180,000 | $0 | $448,223 | $448,223 |
| 2023 | $271,885 | $180,000 | $0 | $451,885 | $451,885 |
| 2022 | $249,515 | $180,000 | $0 | $429,515 | $429,515 |
| 2021 | $219,855 | $120,000 | $0 | $339,855 | $339,855 |
| 2020 | $214,365 | $80,000 | $0 | $294,365 | $294,365 |
| 2019 | $157,501 | $160,000 | $0 | $317,501 | $317,501 |
| 2018 | $158,004 | $140,000 | $0 | $298,004 | $298,004 |
| 2017 | $159,010 | $120,000 | $0 | $279,010 | $279,010 |
| 2016 | $138,455 | $100,000 | $0 | $238,455 | $238,455 |
| 2015 | $140,351 | $65,000 | $0 | $205,351 | $205,351 |
| 2014 | $142,247 | $46,750 | $0 | $188,997 | $188,997 |
| 2013 | $144,142 | $46,750 | $0 | $190,892 | $190,892 |
| 2012 | $146,038 | $46,750 | $0 | $192,788 | $192,788 |
| 2011 | $150,705 | $55,000 | $0 | $205,705 | $205,705 |
| 2010 | $158,176 | $55,000 | $0 | $213,176 | $213,176 |
| 2009 | $165,002 | $67,000 | $0 | $232,002 | $232,002 |
| 2008 | $167,078 | $67,000 | $0 | $234,078 | $234,078 |
| 2007 | $169,176 | $55,000 | $0 | $224,176 | $224,176 |
Deed and Sales History
| 1 | 12/15/2016 | WD | Warranty Deed | SCHOENECKER, ROBERT W | HARPER, HADDON H | | | $256,500.00 | 27689 | 4414916 |
| 2 | 07/02/2013 | ESTSEPPROP | Establish Separate Property | WEST II, CHRIS A & THOMAS D | SCHOENECKER, ROBERT W | | | $0.00 | 12052 | 4344308 |
| 3 | 05/23/2005 | WD | Warranty Deed | PUKIS, PAUL L | WEST II, CHRIS A & THOMAS D | | | $237,000.00 | 52406 | 4135657 |
| 4 | 11/08/2004 | WD | Warranty Deed | TURNER, DONALD A | PUKIS, PAUL L | | | $187,000.00 | 45363 | 4118116 |
| 5 | 03/01/1995 | WD | Warranty Deed | SHINN, TODD W | TURNER, DONALD A | | | $139,000.00 | 50757 | 95003517 |
| 6 | 01/01/1990 | WD | Warranty Deed | STOREY, JERRY E | SHINN, TODD W | | | $96,500.00 | 402 | 90001243 |
| 7 | 05/01/1989 | WD | Warranty Deed | PITTS, JOHN | STOREY, JERRY E | | | $18,500.00 | 91791 | 89006204 |
| 8 | 04/01/1981 | WD | Warranty Deed | BEARDSLEE, DANIEL E | PITTS, JOHN | | | $12,250.00 | 11593 | 383425 |
| 9 | 06/01/1978 | OTHER | Other - Misc. Documents | Unknown | BEARDSLEE, DANIEL E | | | $25,000.00 | 83226 | 335854 |
Payout Agreement
| No payout information available.. |