Property
Account |
| Property ID: | 503654 | Abbreviated Legal Description: | SHIRONA #1 LOT 21 |
| Geographic ID: | S8159-00-00021-0 | Agent Code: | |
| Type: | Real | | |
| Tax Area: | 110 - APPRAISER-OH Schl Dist, outside OH, improved & 1 acre or less | Land Use Code | 11 |
| Open Space: | N | DFL | N |
| Historic Property: | N | Remodel Property: | N |
| Multi-Family Redevelopment: | N | | |
| Township: | | Section: | |
| Range: | |
Location |
| Address: | 2275 DARVIC PLACE OAK HARBOR, WA 98277 | Mapsco: | |
| Neighborhood: | Cycle 1 | Map ID: | 139 |
| Neighborhood CD: | 1 |
Owner |
| Name: | MELOCHE, GUY P | Owner ID: | 305301 |
| Mailing Address: | RACHEAL MELOCHE 2275 DARVIC PL OAK HARBOR, WA 98277 | % Ownership: | 100.0000000000% |
| | | Exemptions: | |
Taxes and Assessment Details
Values
| (+) Improvement Homesite Value: | + | $0 | |
| (+) Improvement Non-Homesite Value: | + | $323,650 | |
| (+) Land Homesite Value: | + | $0 | |
| (+) Land Non-Homesite Value: | + | $180,000 | |
| (+) Curr Use (HS): | + | $0 | $0 |
| (+) Curr Use (NHS): | + | $0 | $0 |
| | | -------------------------- | |
| (=) Market Value: | = | $503,650 | |
| (–) Productivity Loss: | – | $0 | |
| | | -------------------------- | |
| (=) Subtotal: | = | $503,650 | |
| (+) Senior Appraised Value: | + | $0 | |
| (+) Non-Senior Appraised Value: | + | $503,650 | |
| | | -------------------------- | |
| (=) Total Appraised Value: | = | $503,650 | |
| (–) Senior Exemption Loss: | – | $0 | |
| (–) Exemption Loss: | – | $0 | |
| | | -------------------------- | |
| (=) Taxable Value: | = | $503,650 | |
Taxing Jurisdiction
| Owner: | MELOCHE, GUY P | | |
| % Ownership: | 100.0000000000% | | |
| Total Value: | $503,650 | | |
| Tax Area: | 110 - APPRAISER-OH Schl Dist, outside OH, improved & 1 acre or less |
| CF | Conservation Futures | 0.0313996660 | $503,650 | $503,650 | $15.81 | | |
| CEM1 | Cemetery #1 | 0.0040018856 | $503,650 | $503,650 | $2.02 | | |
| FIRE2 | Fire & Rescue Dist #2 N Whidbey GEN | 0.5381486274 | $503,650 | $503,650 | $271.04 | | |
| HOBOND | Hospital BOND | 0.1893405597 | $503,650 | $503,650 | $95.36 | | |
| HOGEN | Hospital GEN | 0.3848777722 | $503,650 | $503,650 | $193.84 | | |
| CE | County Current Expense | 0.3674210519 | $503,650 | $503,650 | $185.05 | | |
| CR | County Roads | 0.4614296361 | $503,650 | $503,650 | $232.40 | | |
| ISLANDEMS | Hospital GEN (EMS) | 0.4952018576 | $503,650 | $503,650 | $249.41 | | |
| LIB | Library Sno-Isle GEN | 0.3039084203 | $503,650 | $503,650 | $153.06 | | |
| NWHIDPRMT | P & R N Whidbey GEN | 0.1990272349 | $503,650 | $503,650 | $100.24 | | |
| SCH201MO | School 201 Enrichment | 2.3851112745 | $503,650 | $503,650 | $1,201.26 | | |
| ST | State School | 1.4761226122 | $503,650 | $503,650 | $743.45 | | |
| ST2 | State School Part 2 | 0.7953803475 | $503,650 | $503,650 | $400.59 | | |
| | Total Tax Rate: | 7.6313709459 | | | | | |
| | | | | Taxes w/Current Exemptions: | $3,843.53 | | |
| | | | | Taxes w/o Exemptions: | $3,843.53 | | |
Improvement / Building
| Improvement #1: | RESIDENTIAL | State Code: | Y | 1734.0 sqft | Value: | $323,650 |
| Bathrooms: | 2.5 | Bedrooms: | 3 | | Ceiling: | DRYWALL PAINTED | Exterior Wall/Cover: | WOOD SIDING | | Floor Covering: | HARDWOOD/CARP 20-80 | Floor Structure: | WOOD W/SUBFLOOR | | Foundation: | CONCRETE | Heating: | FHA GAS | | Interior Finish: | DRYWALL PAINT | Plumbing Fixture Cnt: | 11 | | Roof Slope: | 6" IN 12" | Roof Structure/Cover: | CJ ASPHALT |
|
| | Type | Description | Class CD | Sub Class CD | Year Built | Area |
| | BAS | BASE/MAIN FLOOR | 3 | 0 | 1987 | 937.5 |
| | AGR | ATTACHED GARAGE | 3 | 0 | 1987 | 452.2 |
| | UPS | UPPER STORY | 3 | 0 | 1987 | 796.5 |
| | OWP | OPEN WOOD PORCH W/STEPS | 3 | 0 | 1987 | 396.0 |
| | OWC | OPEN WOOD PORCH W/STEPS/ROOF/C | 3 | 0 | 1987 | 66.0 |
Sketch
Property Image
Land
| 1 | 15 | SQ (12001-21780) | 0.0000 | 0.00 | 0.00 | 0.00 | 1.00 | $180,000 | $0 |
Roll Value History
| 2026 | N/A | N/A | N/A | N/A | N/A |
| 2025 | $323,650 | $180,000 | $0 | $503,650 | $503,650 |
| 2024 | $327,539 | $180,000 | $0 | $507,539 | $507,539 |
| 2023 | $331,427 | $180,000 | $0 | $511,427 | $511,427 |
| 2022 | $303,633 | $180,000 | $0 | $483,633 | $483,633 |
| 2021 | $267,085 | $120,000 | $0 | $387,085 | $387,085 |
| 2020 | $260,039 | $80,000 | $0 | $340,039 | $340,039 |
| 2019 | $177,873 | $160,000 | $0 | $337,873 | $337,873 |
| 2018 | $178,399 | $140,000 | $0 | $318,399 | $318,399 |
| 2017 | $179,456 | $120,000 | $0 | $299,456 | $299,456 |
| 2016 | $155,670 | $100,000 | $0 | $255,670 | $255,670 |
| 2015 | $157,717 | $65,000 | $0 | $222,717 | $222,717 |
| 2014 | $159,766 | $46,750 | $0 | $206,516 | $206,516 |
| 2013 | $161,815 | $46,750 | $0 | $208,565 | $208,565 |
| 2012 | $163,863 | $46,750 | $0 | $210,613 | $210,613 |
| 2011 | $166,474 | $55,000 | $0 | $221,474 | $221,474 |
| 2010 | $174,900 | $55,000 | $0 | $229,900 | $229,900 |
| 2009 | $182,422 | $67,000 | $0 | $249,422 | $249,422 |
| 2008 | $184,636 | $67,000 | $0 | $251,636 | $251,636 |
| 2007 | $186,849 | $55,000 | $0 | $241,849 | $241,849 |
Deed and Sales History
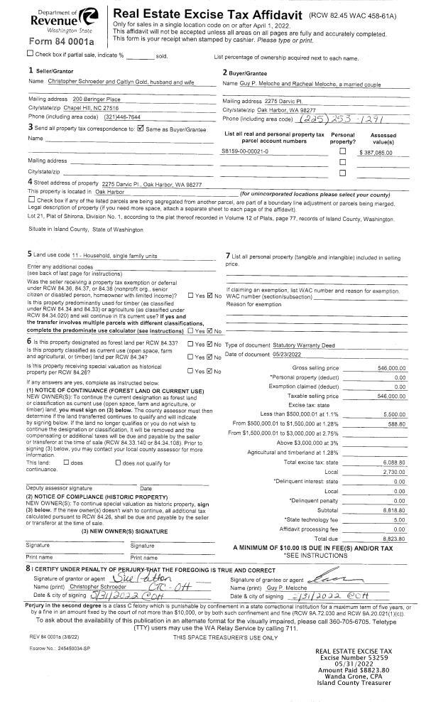
| 1 | 05/23/2022 | WD | Warranty Deed | SCHROEDER, CHRISTOPHER | MELOCHE, GUY P | | | $546,000.00 | 53259 | 4545875 |
| 2 | 02/04/2021 | WD | Warranty Deed | SCHROEDER, CHRISTOPHER | SCHROEDER, CHRISTOPHER | | | $0.00 | 46895 | 4510508 |
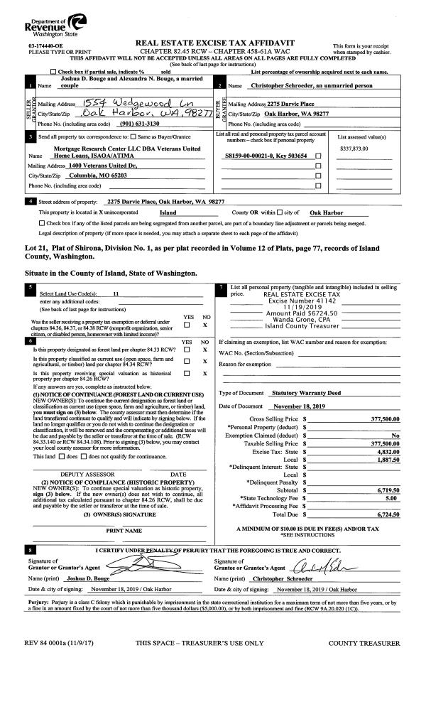
| 3 | 11/18/2019 | WD | Warranty Deed | BOUGE, JOSHUA D | SCHROEDER, CHRISTOPHER | | | $377,500.00 | 41142 | 4475792 |
| 4 | 09/26/2016 | WD | Warranty Deed | APPLINGTON, JAMIE W | BOUGE, JOSHUA D | | | $319,900.00 | 26329 | 4408234 |
| 5 | 08/14/2009 | QCD | Quit Claim Deed | APPLINGTON, JAMIE W | APPLINGTON, JAMIE W | | | $0.00 | 91876 | 4258383 |
| 6 | 01/21/2005 | ESTSEPPROP | Establish Separate Property | APPLINGTON, JAMIE W | APPLINGTON, JAMIE W | | | $0.00 | 50316 | 4124091 |
| 7 | 01/21/2005 | WD | Warranty Deed | KIEFER, DARLENE M | APPLINGTON, JAMIE W | | | $196,900.00 | 50315 | 4124090 |
| 8 | 01/10/2005 | ESTSEPPROP | Establish Separate Property | PROSSER, DARLENE M | KIEFER, DARLENE M | | | $0.00 | 50114 | 4122838 |
| 9 | 02/28/2000 | ESTSEPPROP | Establish Separate Property | PROSSER, DARLENE M | PROSSER, DARLENE M | | | $0.00 | 781 | 20004025 |
| 10 | 02/24/2000 | WD | Warranty Deed | Unknown | PROSSER, DARLENE M | | | $153,000.00 | 782 | 20004026 |
| 11 | 07/01/1994 | WD | Warranty Deed | GURLEY, CHARLES R | BAKER, REGINALD/BERNARDINE | | | $144,500.00 | 43036 | 94016455 |
| 12 | 04/01/1992 | WD | Warranty Deed | LESTER, LOWELL R | GURLEY, CHARLES R | | | $131,500.00 | 21557 | 92007469 |
| 13 | 07/01/1987 | QCD | Quit Claim Deed | WALRATH, CONSTRUCTION | LESTER, LOWELL R | | | $0.00 | 72320 | 87010470 |
| 14 | 03/01/1987 | WD | Warranty Deed | PITTS, JOHN | LESTER, RICHARD | | | $16,750.00 | 70625 | 87003495 |
| 15 | 03/01/1987 | QCD | Quit Claim Deed | LESTER, RICHARD | WALRATH, CONSTRUCTION | | | $0.00 | 70637 | 87003516 |
| 16 | 04/01/1981 | WD | Warranty Deed | BEARDSLEE, DANIEL E | PITTS, JOHN | | | $12,250.00 | 11593 | 383425 |
| 17 | 06/01/1978 | OTHER | Other - Misc. Documents | Unknown | BEARDSLEE, DANIEL E | | | $25,000.00 | 83226 | 335854 |
Payout Agreement
| No payout information available.. |