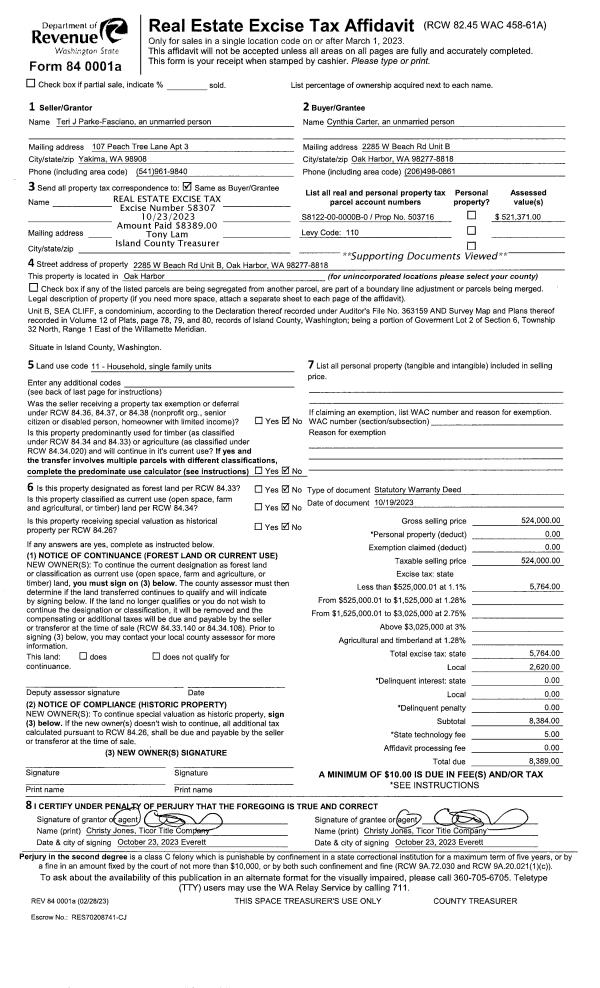
Property
Account |
| Property ID: | 503716 | Abbreviated Legal Description: | SEA CLIFF CONDO APT B 15.95 INT IN BLDG |
| Geographic ID: | S8122-00-0000B-0 | Agent Code: | |
| Type: | Real | | |
| Tax Area: | 110 - APPRAISER-OH Schl Dist, outside OH, improved & 1 acre or less | Land Use Code | 14 |
| Open Space: | N | DFL | N |
| Historic Property: | N | Remodel Property: | N |
| Multi-Family Redevelopment: | N | | |
| Township: | | Section: | |
| Range: | |
Location |
| Address: | 2285 WEST BEACH RD APT B OAK HARBOR, WA 98277 | Mapsco: | |
| Neighborhood: | Cycle 1 | Map ID: | 103 |
| Neighborhood CD: | 1 |
Owner |
| Name: | CARTER, CYNTHIA | Owner ID: | 310851 |
| Mailing Address: | 2285 W BEACH RD #B OAK HARBOR, WA 98277 | % Ownership: | 100.0000000000% |
| | | Exemptions: | |
Taxes and Assessment Details
Values
| (+) Improvement Homesite Value: | + | N/A | |
| (+) Improvement Non-Homesite Value: | + | N/A | |
| (+) Land Homesite Value: | + | N/A | |
| (+) Land Non-Homesite Value: | + | N/A | Ag / Timber Use Value |
| (+) Curr Use (HS): | + | N/A | N/A |
| (+) Curr Use (NHS): | + | N/A | N/A |
| | | -------------------------- | |
| (=) Market Value: | = | N/A | |
| (–) Productivity Loss: | – | N/A | |
| | | -------------------------- | |
| (=) Subtotal: | = | N/A | |
| (+) Senior Appraised Value: | + | N/A | |
| (+) Non-Senior Appraised Value: | + | N/A | |
| | | -------------------------- | |
| (=) Total Appraised Value: | = | N/A | |
| (–) Senior Exemption Loss: | – | N/A | |
| (–) Exemption Loss: | – | N/A | |
| | | -------------------------- | |
| (=) Taxable Value: | = | N/A | |
Taxing Jurisdiction
| Owner: | CARTER, CYNTHIA | | |
| % Ownership: | 100.0000000000% | | |
| Total Value: | N/A | | |
| Tax Area: | 110 - APPRAISER-OH Schl Dist, outside OH, improved & 1 acre or less |
| CF | Conservation Futures | N/A | N/A | N/A | N/A | | |
| WCD | Whidbey Conservation District | N/A | N/A | N/A | N/A | | |
| CEM1 | Cemetery #1 | N/A | N/A | N/A | N/A | | |
| FIRE2 | Fire & Rescue Dist #2 N Whidbey GEN | N/A | N/A | N/A | N/A | | |
| HOBOND | Hospital BOND | N/A | N/A | N/A | N/A | | |
| HOGEN | Hospital GEN | N/A | N/A | N/A | N/A | | |
| CE | County Current Expense | N/A | N/A | N/A | N/A | | |
| CR | County Roads | N/A | N/A | N/A | N/A | | |
| ISLANDEMS | Hospital GEN (EMS) | N/A | N/A | N/A | N/A | | |
| LIB | Library Sno-Isle GEN | N/A | N/A | N/A | N/A | | |
| NWHIDPRMT | P & R N Whidbey GEN | N/A | N/A | N/A | N/A | | |
| SCH201MO | School 201 Enrichment | N/A | N/A | N/A | N/A | | |
| ST | State School | N/A | N/A | N/A | N/A | | |
| ST2 | State School Part 2 | N/A | N/A | N/A | N/A | | |
| | Total Tax Rate: | N/A | | | | | |
| | | | | Taxes w/Current Exemptions: | N/A | | |
| | | | | Taxes w/o Exemptions: | N/A | | |
Improvement / Building
| Improvement #1: | RESIDENTIAL | State Code: | Y | 2070.1 sqft | Value: | N/A |
| Bathrooms: | 3 | Bedrooms: | 3 | | Ceiling: | DRYWALL PAINTED | Cooling: | HEAT PUMP/CONV/V | | Exterior Wall/Cover: | WOOD SIDING | Floor Covering: | CERAMIC TILE/CPT 40-60 | | Floor Structure: | WOOD W/SUBFLOOR | Foundation: | CONCRETE | | Interior Finish: | DRYWALL PAINT | Plumbing Fixture Cnt: | 11 | | Roof Slope: | 4" IN 12" | Roof Structure/Cover: | CJ ALUMINIUM HEAVY |
|
| | Type | Description | Class CD | Sub Class CD | Year Built | Area |
| | BAS | BASE/MAIN FLOOR | 4 | 0 | 1978 | 922.9 |
| | BIG | BUILT IN GARAGE | 4 | 0 | 1978 | 540.3 |
| | UPS | UPPER STORY | 4 | 0 | 1978 | 1147.2 |
| | BAW | BALCONY WOOD RAIL | 4 | 0 | 1978 | 84.0 |
| | OWP | OPEN WOOD PORCH W/STEPS | 4 | 0 | 1978 | 370.0 |
Sketch
Property Image
Land
| 1 | HB | HIGH BLUFF | 0.3300 | 14374.80 | 42.00 | 0.00 | 1.00 | N/A | N/A |
Roll Value History
| 2026 | N/A | N/A | N/A | N/A | N/A |
| 2025 | $398,740 | $120,000 | $0 | $518,740 | $518,740 |
| 2024 | $404,336 | $120,000 | $0 | $524,336 | $524,336 |
| 2023 | $401,371 | $120,000 | $0 | $521,371 | $521,371 |
| 2022 | $351,893 | $120,000 | $0 | $471,893 | $471,893 |
| 2021 | $301,759 | $100,000 | $0 | $401,759 | $401,759 |
| 2020 | $294,782 | $100,000 | $0 | $394,782 | $394,782 |
| 2019 | $222,236 | $100,000 | $0 | $322,236 | $322,236 |
| 2018 | $195,605 | $58,729 | $0 | $254,334 | $254,334 |
| 2017 | $197,088 | $58,729 | $0 | $255,817 | $255,817 |
| 2016 | $200,074 | $58,729 | $0 | $258,803 | $258,803 |
| 2015 | $203,060 | $58,729 | $0 | $261,789 | $261,789 |
| 2014 | $206,046 | $58,729 | $0 | $264,775 | $264,775 |
| 2013 | $209,033 | $58,729 | $0 | $267,762 | $267,762 |
| 2012 | $218,389 | $58,729 | $0 | $277,118 | $277,118 |
| 2011 | $218,389 | $58,729 | $0 | $277,118 | $277,118 |
| 2010 | $227,599 | $58,729 | $0 | $286,328 | $286,328 |
| 2009 | $237,530 | $58,729 | $0 | $296,259 | $296,259 |
| 2008 | $237,530 | $58,729 | $0 | $296,259 | $296,259 |
| 2007 | $240,534 | $58,729 | $0 | $299,263 | $299,263 |
Deed and Sales History
| 1 | 10/19/2023 | WD | Warranty Deed | FASCIANO, PAUL R | CARTER, CYNTHIA | | | $524,000.00 | 58307 | 4565981 |
| 2 | 06/04/2020 | WD | Warranty Deed | KROHNE, THEODORE KARL | FASCIANO, PAUL R | | | $424,000.00 | 43281 | 4488376 |
| 3 | 05/03/2019 | EZ | Easement | KROHNE, THEODORE KARL | PUGET SOUND ENERGY | | | $3,000.00 | 38397 | 4462862 |
|   | |
| 4 | 03/08/2005 | WD | Warranty Deed | OWENS, RAMON B | KROHNE, THEODORE KARL | | | $289,500.00 | 51138 | 4129005 |
| 5 | 03/16/2001 | WD | Warranty Deed | YOERK, ELINOR L | OWENS, RAMON B | | | $205,000.00 | 10855 | 20027709 |
| 6 | 06/29/1999 | OTHER | Other - Misc. Documents | YOERK, RICHARD L | YOERK, ELINOR L | | | $0.00 | 68341 | 99012118 |
| 7 | 12/14/1998 | WD | Warranty Deed | GIBSON, LOIS M | YOERK, RICHARD L | | | $183,000.00 | 84984 | 98027422 |
| 8 | 01/01/1998 | PRD | Personal Representatives Deed | GIBSON, W G | GIBSON, LOIS M | | | $0.00 | 80312 | 98001695 |
| 9 | 08/01/1988 | WD | Warranty Deed | BELLIVEAU, WILLIAM J | GIBSON, W G | | | $127,500.00 | 82781 | 88010475 |
| 10 | 04/01/1983 | WD | Warranty Deed | ALLARD, ROBERT E | BELLIVEAU, WILLIAM J | | | $124,000.00 | 31018 | 408489 |
| 11 | 08/01/1980 | TRUSTEED | Trustee's Deed | MATHESON, R G | ALLARD, ROBERT E | | | $55,000.00 | 2817 | 372843 |
| 12 | 01/01/1900 | OTHER | Other - Misc. Documents | Unknown | MATHESON, R G | | | $0.00 | 0 | 0 |
Payout Agreement
| No payout information available.. |