Property
Account |
| Property ID: | 503734 | Abbreviated Legal Description: | SEA CLIFF CONDO APT D 16.81% INT IN BLDG |
| Geographic ID: | S8122-00-0000D-0 | Agent Code: | |
| Type: | Real | | |
| Tax Area: | 110 - APPRAISER-OH Schl Dist, outside OH, improved & 1 acre or less | Land Use Code | 14 |
| Open Space: | N | DFL | N |
| Historic Property: | N | Remodel Property: | N |
| Multi-Family Redevelopment: | N | | |
| Township: | | Section: | |
| Range: | |
Location |
| Address: | 2285 WEST BEACH RD APT D OAK HARBOR, WA 98277 | Mapsco: | |
| Neighborhood: | Cycle 1 | Map ID: | 103 |
| Neighborhood CD: | 1 |
Owner |
| Name: | SANKEY, JASON | Owner ID: | 290858 |
| Mailing Address: | 2285 WEST BEACH RD #D OAK HARBOR, WA 98277 | % Ownership: | 100.0000000000% |
| | | Exemptions: | |
Taxes and Assessment Details
Values
| (+) Improvement Homesite Value: | + | N/A | |
| (+) Improvement Non-Homesite Value: | + | N/A | |
| (+) Land Homesite Value: | + | N/A | |
| (+) Land Non-Homesite Value: | + | N/A | Ag / Timber Use Value |
| (+) Curr Use (HS): | + | N/A | N/A |
| (+) Curr Use (NHS): | + | N/A | N/A |
| | | -------------------------- | |
| (=) Market Value: | = | N/A | |
| (–) Productivity Loss: | – | N/A | |
| | | -------------------------- | |
| (=) Subtotal: | = | N/A | |
| (+) Senior Appraised Value: | + | N/A | |
| (+) Non-Senior Appraised Value: | + | N/A | |
| | | -------------------------- | |
| (=) Total Appraised Value: | = | N/A | |
| (–) Senior Exemption Loss: | – | N/A | |
| (–) Exemption Loss: | – | N/A | |
| | | -------------------------- | |
| (=) Taxable Value: | = | N/A | |
Taxing Jurisdiction
| Owner: | SANKEY, JASON | | |
| % Ownership: | 100.0000000000% | | |
| Total Value: | N/A | | |
| Tax Area: | 110 - APPRAISER-OH Schl Dist, outside OH, improved & 1 acre or less |
| CF | Conservation Futures | N/A | N/A | N/A | N/A | | |
| WCD | Whidbey Conservation District | N/A | N/A | N/A | N/A | | |
| CEM1 | Cemetery #1 | N/A | N/A | N/A | N/A | | |
| FIRE2 | Fire & Rescue Dist #2 N Whidbey GEN | N/A | N/A | N/A | N/A | | |
| HOBOND | Hospital BOND | N/A | N/A | N/A | N/A | | |
| HOGEN | Hospital GEN | N/A | N/A | N/A | N/A | | |
| CE | County Current Expense | N/A | N/A | N/A | N/A | | |
| CR | County Roads | N/A | N/A | N/A | N/A | | |
| ISLANDEMS | Hospital GEN (EMS) | N/A | N/A | N/A | N/A | | |
| LIB | Library Sno-Isle GEN | N/A | N/A | N/A | N/A | | |
| NWHIDPRMT | P & R N Whidbey GEN | N/A | N/A | N/A | N/A | | |
| SCH201MO | School 201 Enrichment | N/A | N/A | N/A | N/A | | |
| ST | State School | N/A | N/A | N/A | N/A | | |
| ST2 | State School Part 2 | N/A | N/A | N/A | N/A | | |
| | Total Tax Rate: | N/A | | | | | |
| | | | | Taxes w/Current Exemptions: | N/A | | |
| | | | | Taxes w/o Exemptions: | N/A | | |
Improvement / Building
| Improvement #1: | RESIDENTIAL | State Code: | Y | 2210.8 sqft | Value: | N/A |
| Bathrooms: | 2 | Bedrooms: | 3 | | Ceiling: | DRYWALL PAINTED | Exterior Wall/Cover: | WOOD SIDING | | Floor Covering: | HARDWOOD/CARP 60-40 | Floor Structure: | WOOD W/SUBFLOOR | | Foundation: | CONCRETE | Heating: | FHA ELECTRIC | | Interior Finish: | DRYWALL PAINT | Plumbing Fixture Cnt: | 10 | | Roof Slope: | 4" IN 12" | Roof Structure/Cover: | CJ ALUMINIUM HEAVY |
|
| | Type | Description | Class CD | Sub Class CD | Year Built | Area |
| | BAS | BASE/MAIN FLOOR | 4 | 0 | 1978 | 1003.0 |
| | BIG | BUILT IN GARAGE | 4 | 0 | 1978 | 528.8 |
| | UPS | UPPER STORY | 4 | 0 | 1978 | 1207.8 |
| | BAW | BALCONY WOOD RAIL | 4 | 0 | 1978 | 96.0 |
| | OWP | OPEN WOOD PORCH W/STEPS | 4 | 0 | 1978 | 249.0 |
Sketch
Property Image
Land
| 1 | HB | HIGH BLUFF | 0.3400 | 14810.40 | 44.00 | 0.00 | 1.00 | N/A | N/A |
Roll Value History
| 2026 | N/A | N/A | N/A | N/A | N/A |
| 2025 | $404,904 | $120,000 | $0 | $524,904 | $524,904 |
| 2024 | $410,586 | $120,000 | $0 | $530,586 | $530,586 |
| 2023 | $395,971 | $120,000 | $0 | $515,971 | $515,971 |
| 2022 | $363,748 | $120,000 | $0 | $483,748 | $483,748 |
| 2021 | $320,807 | $100,000 | $0 | $420,807 | $420,807 |
| 2020 | $313,772 | $100,000 | $0 | $413,772 | $413,772 |
| 2019 | $238,563 | $100,000 | $0 | $338,563 | $338,563 |
| 2018 | $215,395 | $61,526 | $0 | $276,921 | $276,921 |
| 2017 | $214,811 | $61,526 | $0 | $276,337 | $276,337 |
| 2016 | $218,017 | $61,526 | $0 | $279,543 | $279,543 |
| 2015 | $221,223 | $61,526 | $0 | $282,749 | $282,749 |
| 2014 | $224,431 | $61,526 | $0 | $285,957 | $285,957 |
| 2013 | $227,635 | $61,526 | $0 | $289,161 | $289,161 |
| 2012 | $211,119 | $61,526 | $0 | $272,645 | $272,645 |
| 2011 | $211,119 | $61,526 | $0 | $272,645 | $272,645 |
| 2010 | $218,987 | $61,526 | $0 | $280,513 | $280,513 |
| 2009 | $228,660 | $61,526 | $0 | $290,186 | $290,186 |
| 2008 | $228,760 | $61,526 | $0 | $290,286 | $290,286 |
| 2007 | $231,754 | $61,526 | $0 | $293,280 | $293,280 |
Deed and Sales History
| 1 | 07/05/2019 | WD | Warranty Deed | DRISKILL, MATTHEW T | SANKEY, JASON | | | $435,000.00 | 39342 | 4466875 |
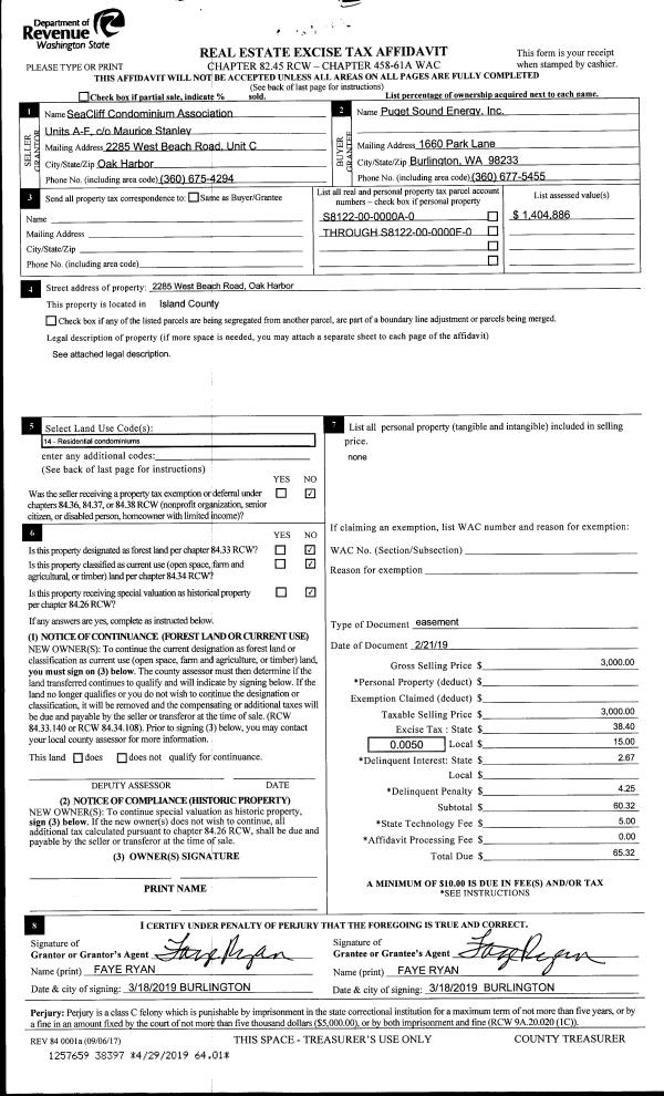
| 2 | 05/03/2019 | EZ | Easement | DRISKILL, MATTHEW T | PUGET SOUND ENERGY | | | $3,000.00 | 38397 | 4462862 |
|   | |
| 3 | 08/27/2009 | WD | Warranty Deed | ZAECH, RON P | DRISKILL, MATTHEW T | | | $370,000.00 | 92086 | 4259635 |
| 4 | 07/25/2001 | WD | Warranty Deed | MCELROY, JAMES P | ZAECH, RON P | | | $210,000.00 | 12894 | 20038715 |
| 5 | 05/10/2000 | WD | Warranty Deed | Unknown | MCELROY, JAMES P | | | $196,500.00 | 2001 | 20009619 |
| 6 | 09/01/1997 | WD | Warranty Deed | NELSON, MAXINE T | WINSTON, MARIE D | | | $215,000.00 | 73325 | 97015662 |
| 7 | 01/01/1995 | QCD | Quit Claim Deed | NELSON, DONALD P | NELSON, MAXINE T | | | $0.00 | 50467 | 95002267 |
| 8 | 05/01/1993 | WD | Warranty Deed | BALDA, AGNES E | NELSON, DONALD P | | | $195,000.00 | 32017 | 93010511 |
| 9 | 10/01/1991 | PRD | Personal Representatives Deed | BALDA, M H | BALDA, AGNES E | | | $0.00 | 13981 | 91016977 |
| 10 | 10/01/1980 | TRUSTEED | Trustee's Deed | MATHESON, R G | BALDA, M H | | | $95,000.00 | 3320 | 374680 |
| 11 | 01/01/1900 | OTHER | Other - Misc. Documents | Unknown | MATHESON, R G | | | $0.00 | 0 | 0 |
Payout Agreement
| No payout information available.. |