Property
Account |
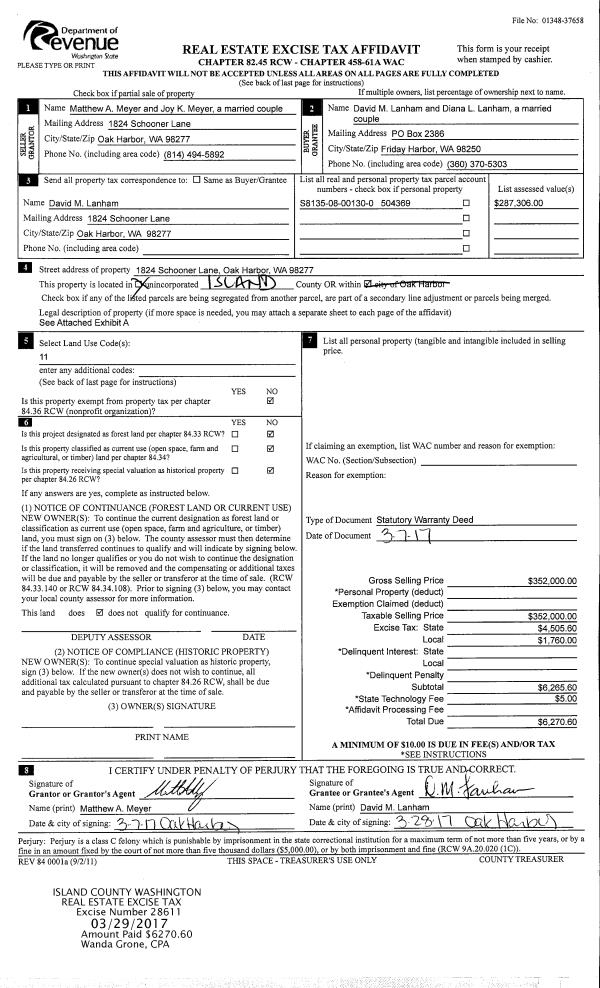
| Property ID: | 504369 | Abbreviated Legal Description: | SEAVIEW #8 LOT 130 |
| Geographic ID: | S8135-08-00130-0 | Agent Code: | |
| Type: | Real | | |
| Tax Area: | 110 - APPRAISER-OH Schl Dist, outside OH, improved & 1 acre or less | Land Use Code | 11 |
| Open Space: | N | DFL | N |
| Historic Property: | N | Remodel Property: | N |
| Multi-Family Redevelopment: | N | | |
| Township: | | Section: | |
| Range: | |
Location |
| Address: | 1824 SCHOONER LN OAK HARBOR, WA 98277 | Mapsco: | |
| Neighborhood: | Cycle 1 | Map ID: | 106 |
| Neighborhood CD: | 1 |
Owner |
| Name: | LANHAM, DIANA L | Owner ID: | 316721 |
| Mailing Address: | 1824 SCHOONER LN OAK HARBOR, WA 98277 | % Ownership: | 100.0000000000% |
| | | Exemptions: | |
Taxes and Assessment Details
Values
| (+) Improvement Homesite Value: | + | $0 | |
| (+) Improvement Non-Homesite Value: | + | $325,396 | |
| (+) Land Homesite Value: | + | $0 | |
| (+) Land Non-Homesite Value: | + | $230,000 | |
| (+) Curr Use (HS): | + | $0 | $0 |
| (+) Curr Use (NHS): | + | $0 | $0 |
| | | -------------------------- | |
| (=) Market Value: | = | $555,396 | |
| (–) Productivity Loss: | – | $0 | |
| | | -------------------------- | |
| (=) Subtotal: | = | $555,396 | |
| (+) Senior Appraised Value: | + | $0 | |
| (+) Non-Senior Appraised Value: | + | $555,396 | |
| | | -------------------------- | |
| (=) Total Appraised Value: | = | $555,396 | |
| (–) Senior Exemption Loss: | – | $0 | |
| (–) Exemption Loss: | – | $0 | |
| | | -------------------------- | |
| (=) Taxable Value: | = | $555,396 | |
Taxing Jurisdiction
| Owner: | LANHAM, DIANA L | | |
| % Ownership: | 100.0000000000% | | |
| Total Value: | $555,396 | | |
| Tax Area: | 110 - APPRAISER-OH Schl Dist, outside OH, improved & 1 acre or less |
| CF | Conservation Futures | 0.0313996660 | $555,396 | $555,396 | $17.44 | | |
| CEM1 | Cemetery #1 | 0.0040018856 | $555,396 | $555,396 | $2.22 | | |
| FIRE2 | Fire & Rescue Dist #2 N Whidbey GEN | 0.5381486274 | $555,396 | $555,396 | $298.89 | | |
| HOBOND | Hospital BOND | 0.1893405597 | $555,396 | $555,396 | $105.16 | | |
| HOGEN | Hospital GEN | 0.3848777722 | $555,396 | $555,396 | $213.76 | | |
| CE | County Current Expense | 0.3674210519 | $555,396 | $555,396 | $204.06 | | |
| CR | County Roads | 0.4614296361 | $555,396 | $555,396 | $256.28 | | |
| ISLANDEMS | Hospital GEN (EMS) | 0.4952018576 | $555,396 | $555,396 | $275.03 | | |
| LIB | Library Sno-Isle GEN | 0.3039084203 | $555,396 | $555,396 | $168.79 | | |
| NWHIDPRMT | P & R N Whidbey GEN | 0.1990272349 | $555,396 | $555,396 | $110.54 | | |
| SCH201MO | School 201 Enrichment | 2.3851112745 | $555,396 | $555,396 | $1,324.68 | | |
| ST | State School | 1.4761226122 | $555,396 | $555,396 | $819.83 | | |
| ST2 | State School Part 2 | 0.7953803475 | $555,396 | $555,396 | $441.75 | | |
| | Total Tax Rate: | 7.6313709459 | | | | | |
| | | | | Taxes w/Current Exemptions: | $4,238.43 | | |
| | | | | Taxes w/o Exemptions: | $4,238.43 | | |
Improvement / Building
| Improvement #1: | RESIDENTIAL | State Code: | Y | 1708.3 sqft | Value: | $325,396 |
| Bathrooms: | 2.5 | Bedrooms: | 3 | | Ceiling: | DRYWALL PAINTED | Exterior Wall/Cover: | CEMENT FIBER | | Floor Covering: | HARDWOOD/CARP 20-80 | Floor Structure: | WOOD W/SUBFLOOR | | Foundation: | CONCRETE | Heating: | FHA GAS | | Interior Finish: | DRYWALL PAINT | Plumbing Fixture Cnt: | 11 | | Roof Slope: | 6" IN 12" | Roof Structure/Cover: | CJ ASPHALT |
|
| | Type | Description | Class CD | Sub Class CD | Year Built | Area |
| | BAS | BASE/MAIN FLOOR | 3 | 0 | 2002 | 860.9 |
| | AGR | ATTACHED GARAGE | 3 | 0 | 2002 | 574.5 |
| | UPS | UPPER STORY | 3 | 0 | 2002 | 847.4 |
| | OWP | OPEN WOOD PORCH W/STEPS | 3 | 0 | 2002 | 291.0 |
| | OWC | OPEN WOOD PORCH W/STEPS/ROOF/C | 3 | 0 | 2002 | 68.8 |
Sketch
Property Image
Land
| 1 | 15 | SQ (12001-21780) | 0.0000 | 0.00 | 0.00 | 0.00 | 1.00 | $230,000 | $0 |
Roll Value History
| 2026 | N/A | N/A | N/A | N/A | N/A |
| 2025 | $325,396 | $230,000 | $0 | $555,396 | $555,396 |
| 2024 | $329,259 | $200,000 | $0 | $529,259 | $529,259 |
| 2023 | $333,121 | $200,000 | $0 | $533,121 | $533,121 |
| 2022 | $305,150 | $200,000 | $0 | $505,150 | $505,150 |
| 2021 | $268,387 | $150,000 | $0 | $418,387 | $418,387 |
| 2020 | $261,185 | $110,000 | $0 | $371,185 | $371,185 |
| 2019 | $190,777 | $150,000 | $0 | $340,777 | $340,777 |
| 2018 | $191,306 | $140,000 | $0 | $331,306 | $331,306 |
| 2017 | $192,362 | $120,000 | $0 | $312,362 | $312,362 |
| 2016 | $177,306 | $110,000 | $0 | $287,306 | $287,306 |
| 2015 | $179,390 | $75,000 | $0 | $254,390 | $254,390 |
| 2014 | $181,478 | $68,000 | $0 | $249,478 | $249,478 |
| 2013 | $183,562 | $68,000 | $0 | $251,562 | $251,562 |
| 2012 | $185,648 | $68,000 | $0 | $253,648 | $253,648 |
| 2011 | $191,803 | $80,000 | $0 | $271,803 | $271,803 |
| 2010 | $199,912 | $80,000 | $0 | $279,912 | $279,912 |
| 2009 | $206,210 | $87,000 | $0 | $293,210 | $293,210 |
| 2008 | $208,627 | $95,500 | $0 | $304,127 | $304,127 |
| 2007 | $213,178 | $95,500 | $0 | $308,678 | $308,678 |
Deed and Sales History
| 1 | 03/04/2025 | LACPROBATE | Lack of Probate | LANHAM, DAVID M | LANHAM, DIANA L | | | $0.00 | 63629 | 4586450 |
| 2 | 03/07/2017 | WD | Warranty Deed | MEYER, MATTHEW A | LANHAM, DAVID M | | | $352,000.00 | 28611 | 4419678 |
| 3 | 01/15/2016 | WD | Warranty Deed | JONES TRUSTEE, THOMAS ALAN | MEYER, MATTHEW A | | | $304,900.00 | 22879 | 4392803 |
| 4 | 04/07/2010 | WD | Warranty Deed | KREOFSKY TTEE, JIMMY A | JONES TRUSTEE, THOMAS ALLEN | | | $300,000.00 | 844 | 4272007 |
| 5 | 06/12/2007 | QCD | Quit Claim Deed | KREOFSKY, JIMMY A | KREOFSKY TTEE, JIMMY A | | | $0.00 | 71936 | 4204407 |
| 6 | 12/29/2006 | WD | Warranty Deed | REMALY, CRAIG M | KREOFSKY, JIMMY A | | | $304,000.00 | 65391 | 4190501 |
| 7 | 02/27/2002 | WD | Warranty Deed | MAIN FRAME CONSTRUCTION, INC, | REMALY, CRAIG M | | | $201,886.00 | 20827 | 4013091 |
| 8 | 10/03/2001 | WD | Warranty Deed | MORENO, MARVIN G | MAIN FRAME CONSTRUCTION, INC, | | | $34,000.00 | 13934 | 20045180 |
| 9 | 05/01/1996 | WD | Warranty Deed | PACE, JAMES D | MORENO, MARVIN G | | | $35,500.00 | 61671 | 96008351 |
| 10 | 05/01/1996 | QCD | Quit Claim Deed | MORENO, MARVIN G | MORENO, MARVIN G | | | $0.00 | 61672 | 96008352 |
| 11 | 02/01/1980 | REC | Real Estate Contract | GEPNER, H F | PACE, JAMES D | | | $16,000.00 | 592 | 365435 |
| 12 | 05/01/1978 | OTHER | Other - Misc. Documents | Unknown | GEPNER, H F | | | $0.00 | 82405 | 333462 |
Payout Agreement
| No payout information available.. |