Property
Account |
| Property ID: | 504939 | Abbreviated Legal Description: | TR 5A SPR 79/34-32922-355-5260 AF#368375 FR 355-5260 |
| Geographic ID: | R32922-380-5150 | Agent Code: | |
| Type: | Real | | |
| Tax Area: | 719 - APPRAISER-S Whid Schl Dist, outside Langley, vacant & 50 acres or less | Land Use Code | 91 |
| Open Space: | N | DFL | N |
| Historic Property: | N | Remodel Property: | N |
| Multi-Family Redevelopment: | N | | |
| Township: | 29 | Section: | 22 |
| Range: | R3 |
Location |
| Address: | | Mapsco: | |
| Neighborhood: | Cycle 4 | Map ID: | 802 |
| Neighborhood CD: | 4 |
Owner |
| Name: | ARMENDARIZ, JOANNA | Owner ID: | 306116 |
| Mailing Address: | 23700 QUAIL HAVEN TRAIL SANTA CLARITA, CA 91390 | % Ownership: | 100.0000000000% |
| | | Exemptions: | |
Taxes and Assessment Details
Values
| (+) Improvement Homesite Value: | + | N/A | |
| (+) Improvement Non-Homesite Value: | + | N/A | |
| (+) Land Homesite Value: | + | N/A | |
| (+) Land Non-Homesite Value: | + | N/A | Ag / Timber Use Value |
| (+) Curr Use (HS): | + | N/A | N/A |
| (+) Curr Use (NHS): | + | N/A | N/A |
| | | -------------------------- | |
| (=) Market Value: | = | N/A | |
| (–) Productivity Loss: | – | N/A | |
| | | -------------------------- | |
| (=) Subtotal: | = | N/A | |
| (+) Senior Appraised Value: | + | N/A | |
| (+) Non-Senior Appraised Value: | + | N/A | |
| | | -------------------------- | |
| (=) Total Appraised Value: | = | N/A | |
| (–) Senior Exemption Loss: | – | N/A | |
| (–) Exemption Loss: | – | N/A | |
| | | -------------------------- | |
| (=) Taxable Value: | = | N/A | |
Taxing Jurisdiction
| Owner: | ARMENDARIZ, JOANNA | | |
| % Ownership: | 100.0000000000% | | |
| Total Value: | N/A | | |
| Tax Area: | 719 - APPRAISER-S Whid Schl Dist, outside Langley, vacant & 50 acres or less |
| CF | Conservation Futures | N/A | N/A | N/A | N/A | | |
| WCD | Whidbey Conservation District | N/A | N/A | N/A | N/A | | |
| HOBOND | Hospital BOND | N/A | N/A | N/A | N/A | | |
| HOGEN | Hospital GEN | N/A | N/A | N/A | N/A | | |
| CE | County Current Expense | N/A | N/A | N/A | N/A | | |
| CR | County Roads | N/A | N/A | N/A | N/A | | |
| ISLANDEMS | Hospital GEN (EMS) | N/A | N/A | N/A | N/A | | |
| LIB | Library Sno-Isle GEN | N/A | N/A | N/A | N/A | | |
| PORTWHID | Port of S Whidbey GEN | N/A | N/A | N/A | N/A | | |
| SCH206CAP | School 206 CP | N/A | N/A | N/A | N/A | | |
| SCH206MO | School 206 Enrichment | N/A | N/A | N/A | N/A | | |
| ST | State School | N/A | N/A | N/A | N/A | | |
| ST2 | State School Part 2 | N/A | N/A | N/A | N/A | | |
| SWHIDPRBD | P & R S Whidbey BOND | N/A | N/A | N/A | N/A | | |
| SWHIDPRBD2 | P & R S Whidbey BOND2 | N/A | N/A | N/A | N/A | | |
| SWHIDPRMT | P & R S Whidbey GEN | N/A | N/A | N/A | N/A | | |
| | Total Tax Rate: | N/A | | | | | |
| | | | | Taxes w/Current Exemptions: | N/A | | |
| | | | | Taxes w/o Exemptions: | N/A | | |
Improvement / Building
Sketch
| No sketches available for this property. |
Property Image
Land
| 1 | 91 | UNDEVELOPED LAND-METES AND BOUNDS | 2.6800 | 116740.80 | 0.00 | 0.00 | 1.00 | N/A | N/A |
Roll Value History
| 2026 | N/A | N/A | N/A | N/A | N/A |
| 2025 | $0 | $160,000 | $0 | $160,000 | $160,000 |
| 2024 | $0 | $150,000 | $0 | $150,000 | $150,000 |
| 2023 | $0 | $150,000 | $0 | $150,000 | $150,000 |
| 2022 | $0 | $150,000 | $0 | $150,000 | $150,000 |
| 2021 | $0 | $110,000 | $0 | $110,000 | $110,000 |
| 2020 | $0 | $110,000 | $0 | $110,000 | $110,000 |
| 2019 | $0 | $110,000 | $0 | $110,000 | $110,000 |
| 2018 | $0 | $100,000 | $0 | $100,000 | $100,000 |
| 2017 | $0 | $100,000 | $0 | $100,000 | $100,000 |
| 2016 | $0 | $100,000 | $0 | $100,000 | $100,000 |
| 2015 | $0 | $85,000 | $0 | $85,000 | $85,000 |
| 2014 | $0 | $95,000 | $0 | $95,000 | $95,000 |
| 2013 | $0 | $110,000 | $0 | $110,000 | $110,000 |
| 2012 | $0 | $110,000 | $0 | $110,000 | $110,000 |
| 2011 | $0 | $110,000 | $0 | $110,000 | $110,000 |
| 2010 | $0 | $110,000 | $0 | $110,000 | $110,000 |
| 2009 | $0 | $125,000 | $0 | $125,000 | $125,000 |
| 2008 | $0 | $75,429 | $0 | $75,429 | $75,429 |
| 2007 | $0 | $75,400 | $0 | $75,400 | $75,400 |
Deed and Sales History
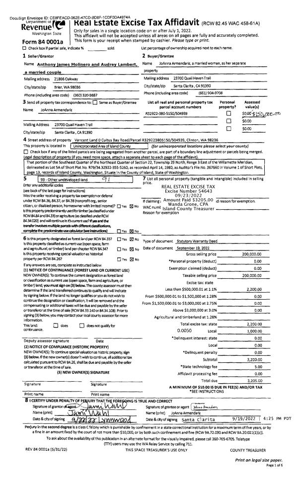
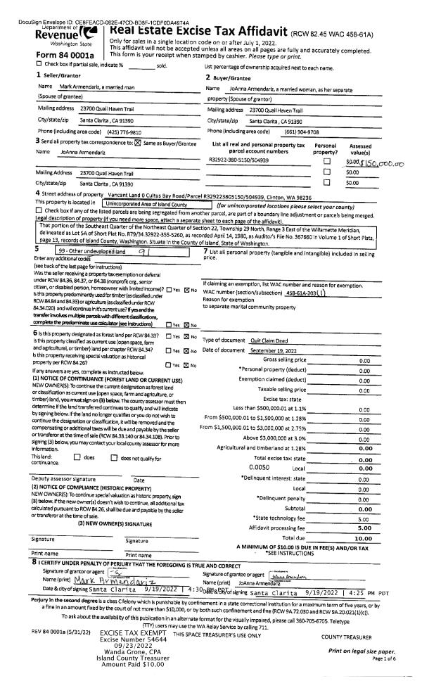
| 1 | 09/19/2022 | QCD | Quit Claim Deed | ARMENDARIZ, MARK | ARMENDARIZ, JOANNA | | | $0.00 | 54644 | 4551629 |
| 2 | 09/19/2022 | WD | Warranty Deed | MOLINERO, ANTHONY JAMES | ARMENDARIZ, JOANNA | | | $200,000.00 | 54643 | 4551628 |
| 3 | 03/04/2016 | WD | Warranty Deed | NORTON, WILLIAM R / BERNICE | MOLINERO, ANTHONY JAMES | | | $149,900.00 | 23416 | 4395407 |
|   | |
| 4 | 08/01/1978 | OTHER | Other - Misc. Documents | Unknown | NORTON, WM R | | | $15,500.00 | 84227 | 338965 |
Payout Agreement
| No payout information available.. |