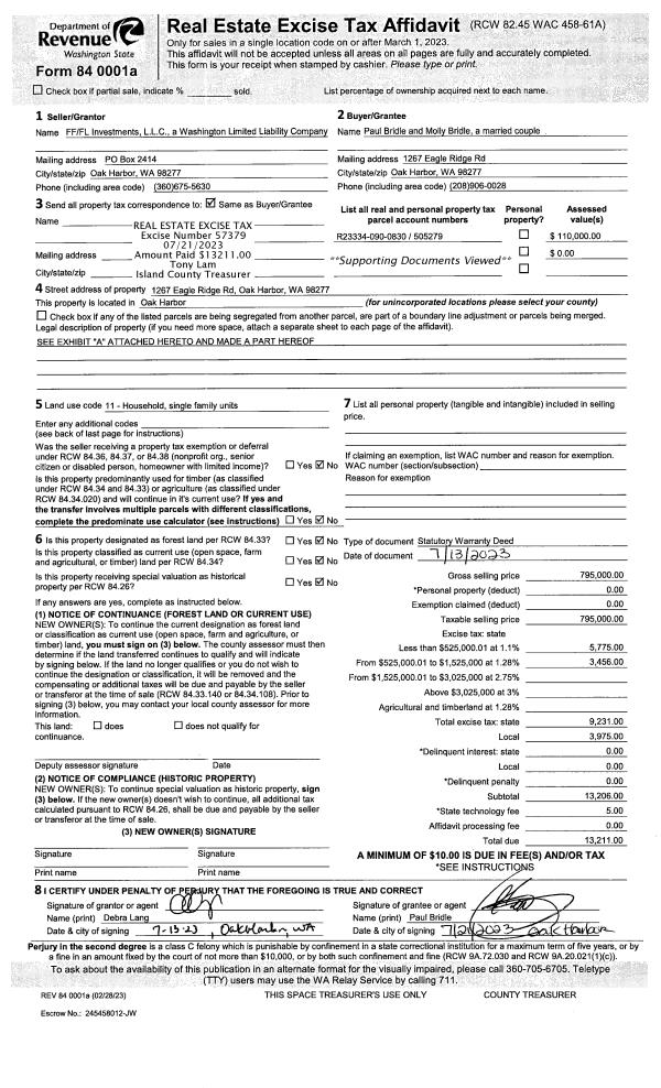
Property
Account |
| Property ID: | 505279 | Abbreviated Legal Description: | SW NE SW SW TGW SUB EZ SP 78-102 TR 26-S FR 1080830 |
| Geographic ID: | R23334-090-0830 | Agent Code: | |
| Type: | Real | | |
| Tax Area: | 112 - APPRAISER-OH Schl Dist, outside OH, improved, greater than 1 acre | Land Use Code | 11 |
| Open Space: | N | DFL | N |
| Historic Property: | N | Remodel Property: | N |
| Multi-Family Redevelopment: | N | | |
| Township: | 33 | Section: | 34 |
| Range: | R2 |
Location |
| Address: | 1267 EAGLE RIDGE RD OAK HARBOR, WA 98277 | Mapsco: | |
| Neighborhood: | Cycle 6 | Map ID: | 655 |
| Neighborhood CD: | 6 |
Owner |
| Name: | BRIDLE, PAUL | Owner ID: | 309382 |
| Mailing Address: | MOLLY BRIDLE 1267 EAGLE RIDGE RD OAK HARBOR, WA 98277 | % Ownership: | 100.0000000000% |
| | | Exemptions: | |
Taxes and Assessment Details
Values
| (+) Improvement Homesite Value: | + | $0 | |
| (+) Improvement Non-Homesite Value: | + | $537,758 | |
| (+) Land Homesite Value: | + | $0 | |
| (+) Land Non-Homesite Value: | + | $250,000 | |
| (+) Curr Use (HS): | + | $0 | $0 |
| (+) Curr Use (NHS): | + | $0 | $0 |
| | | -------------------------- | |
| (=) Market Value: | = | $787,758 | |
| (–) Productivity Loss: | – | $0 | |
| | | -------------------------- | |
| (=) Subtotal: | = | $787,758 | |
| (+) Senior Appraised Value: | + | $0 | |
| (+) Non-Senior Appraised Value: | + | $787,758 | |
| | | -------------------------- | |
| (=) Total Appraised Value: | = | $787,758 | |
| (–) Senior Exemption Loss: | – | $0 | |
| (–) Exemption Loss: | – | $0 | |
| | | -------------------------- | |
| (=) Taxable Value: | = | $787,758 | |
Taxing Jurisdiction
| Owner: | BRIDLE, PAUL | | |
| % Ownership: | 100.0000000000% | | |
| Total Value: | $787,758 | | |
| Tax Area: | 112 - APPRAISER-OH Schl Dist, outside OH, improved, greater than 1 acre |
| CF | Conservation Futures | 0.0313996660 | $787,758 | $787,758 | $24.74 | | |
| CEM1 | Cemetery #1 | 0.0040018856 | $787,758 | $787,758 | $3.15 | | |
| FIRE2 | Fire & Rescue Dist #2 N Whidbey GEN | 0.5381486274 | $787,758 | $787,758 | $423.93 | | |
| HOBOND | Hospital BOND | 0.1893405597 | $787,758 | $787,758 | $149.15 | | |
| HOGEN | Hospital GEN | 0.3848777722 | $787,758 | $787,758 | $303.19 | | |
| CE | County Current Expense | 0.3674210519 | $787,758 | $787,758 | $289.44 | | |
| CR | County Roads | 0.4614296361 | $787,758 | $787,758 | $363.49 | | |
| ISLANDEMS | Hospital GEN (EMS) | 0.4952018576 | $787,758 | $787,758 | $390.10 | | |
| LIB | Library Sno-Isle GEN | 0.3039084203 | $787,758 | $787,758 | $239.41 | | |
| NWHIDPRMT | P & R N Whidbey GEN | 0.1990272349 | $787,758 | $787,758 | $156.79 | | |
| SCH201MO | School 201 Enrichment | 2.3851112745 | $787,758 | $787,758 | $1,878.89 | | |
| ST | State School | 1.4761226122 | $787,758 | $787,758 | $1,162.83 | | |
| ST2 | State School Part 2 | 0.7953803475 | $787,758 | $787,758 | $626.57 | | |
| | Total Tax Rate: | 7.6313709459 | | | | | |
| | | | | Taxes w/Current Exemptions: | $6,011.68 | | |
| | | | | Taxes w/o Exemptions: | $6,011.68 | | |
Improvement / Building
| Improvement #1: | RESIDENTIAL | State Code: | Y | 2208.5 sqft | Value: | $537,758 |
| Bathrooms: | 2.5 | Bedrooms: | 3 | | Ceiling: | DRYWALL PAINTED | Cooling: | HEAT PUMP/CONV/V | | Exterior Wall/Cover: | WOOD SIDING | Floor Covering: | VINYL TILE | | Floor Structure: | WOOD W/SUBFLOOR | Foundation: | CONCRETE | | Interior Finish: | DRYWALL PAINT | Plumbing Fixture Cnt: | 12 | | Roof Slope: | 8" IN 12" | Roof Structure/Cover: | CJ ASPHALT |
|
| | Type | Description | Class CD | Sub Class CD | Year Built | Area |
| | BAS | BASE/MAIN FLOOR | 4 | 0 | 2023 | 1693.5 |
| | UPH | HALF STORY | 4 | 0 | 2023 | 515.0 |
| | AGR | ATTACHED GARAGE | 4 | 0 | 2023 | 528.8 |
| | OP4 | OPEN PORCH W/CEILING-ROOF | 4 | 0 | 2023 | 222.8 |
| | OWR | OPEN WOOD PORCH W/STEPS/ROOF | 4 | 0 | 2023 | 119.5 |
Sketch
Property Image
Land
| 1 | 18 | AC (02.01-03.00) | 2.5000 | 108900.00 | 0.00 | 0.00 | 1.00 | $250,000 | $0 |
Roll Value History
| 2026 | N/A | N/A | N/A | N/A | N/A |
| 2025 | $537,758 | $250,000 | $0 | $787,758 | $787,758 |
| 2024 | $547,533 | $230,000 | $0 | $777,533 | $777,533 |
| 2023 | $532,090 | $220,000 | $0 | $752,090 | $752,090 |
| 2022 | $0 | $80,000 | $0 | $80,000 | $80,000 |
| 2021 | $0 | $80,000 | $0 | $80,000 | $80,000 |
| 2020 | $0 | $70,000 | $0 | $70,000 | $70,000 |
| 2019 | $0 | $110,000 | $0 | $110,000 | $110,000 |
| 2018 | $0 | $110,000 | $0 | $110,000 | $110,000 |
| 2017 | $0 | $80,000 | $0 | $80,000 | $80,000 |
| 2016 | $0 | $80,000 | $0 | $80,000 | $80,000 |
| 2015 | $0 | $60,000 | $0 | $60,000 | $60,000 |
| 2014 | $0 | $95,000 | $0 | $95,000 | $95,000 |
| 2013 | $0 | $105,000 | $0 | $105,000 | $105,000 |
| 2012 | $0 | $105,000 | $0 | $105,000 | $105,000 |
| 2011 | $0 | $105,000 | $0 | $105,000 | $105,000 |
| 2010 | $0 | $105,000 | $0 | $105,000 | $105,000 |
| 2009 | $0 | $140,000 | $0 | $140,000 | $140,000 |
| 2008 | $0 | $140,000 | $0 | $140,000 | $140,000 |
| 2007 | $0 | $101,500 | $0 | $101,500 | $101,500 |
Deed and Sales History
| 1 | 07/13/2023 | WD | Warranty Deed | FF/FL INVESTMENTS, LLC | BRIDLE, PAUL | | | $795,000.00 | 57379 | 4562536 |
| 2 | 03/04/2021 | WD | Warranty Deed | HENRICHSEN, GERALD L | FF/FL INVESTMENTS, LLC | | | $260,000.00 | 47295 | 4513250 |
|   | |
| 3 | 02/01/1998 | QCD | Quit Claim Deed | HENRICHSEN, GERALD L | HENRICHSEN, GERALD L | | | $0.00 | 80517 | 98002736 |
| 4 | 01/01/1900 | OTHER | Other - Misc. Documents | Unknown | HENRICHSEN, GERALD L | | | $0.00 | 0 | 0 |
Payout Agreement
| No payout information available.. |