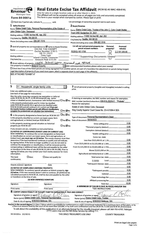
Property
Account |
| Property ID: | 505377 | Abbreviated Legal Description: | REPLACES 1671740 3 BRUNN DC - BG N46*W100' FR SE CR BRUNN DLC N46*W37. 3' N41*E320.5' TO RD SELY ALG RD 37.3' S41*W320'M/L TPB INCL ADJ TIDES EX ELY 75' EX: BG PT ML N46*W137 .3'FR SECR BRUNN DC N41*E43 .16'TPB N41*E14.04' S40*E2 .02' S49*W13.90'TPB |
| Geographic ID: | R22915-167-1700 | Agent Code: | |
| Type: | Real | | |
| Tax Area: | 710 - APPRAISER-S Whid Schl Dist, outside Langley, improved & 1 acre or less | Land Use Code | 11 |
| Open Space: | N | DFL | N |
| Historic Property: | N | Remodel Property: | N |
| Multi-Family Redevelopment: | N | | |
| Township: | 29 | Section: | 15 |
| Range: | R2 |
Location |
| Address: | 1354 SCHOLL LN FREELAND, WA 98249 | Mapsco: | |
| Neighborhood: | Cycle 3 | Map ID: | 329 |
| Neighborhood CD: | 3 |
Owner |
| Name: | COHN TTEE, ELAINE ORDELL | Owner ID: | 309867 |
| Mailing Address: | 6520 196TH ST SW #196 LYNNWOOD, WA 98036 | % Ownership: | 100.0000000000% |
| | | Exemptions: | |
Taxes and Assessment Details
Values
| (+) Improvement Homesite Value: | + | $0 | |
| (+) Improvement Non-Homesite Value: | + | $253,081 | |
| (+) Land Homesite Value: | + | $0 | |
| (+) Land Non-Homesite Value: | + | $1,850,370 | |
| (+) Curr Use (HS): | + | $0 | $0 |
| (+) Curr Use (NHS): | + | $0 | $0 |
| | | -------------------------- | |
| (=) Market Value: | = | $2,103,451 | |
| (–) Productivity Loss: | – | $0 | |
| | | -------------------------- | |
| (=) Subtotal: | = | $2,103,451 | |
| (+) Senior Appraised Value: | + | $0 | |
| (+) Non-Senior Appraised Value: | + | $2,103,451 | |
| | | -------------------------- | |
| (=) Total Appraised Value: | = | $2,103,451 | |
| (–) Senior Exemption Loss: | – | $0 | |
| (–) Exemption Loss: | – | $0 | |
| | | -------------------------- | |
| (=) Taxable Value: | = | $2,103,451 | |
Taxing Jurisdiction
| Owner: | COHN TTEE, ELAINE ORDELL | | |
| % Ownership: | 100.0000000000% | | |
| Total Value: | $2,103,451 | | |
| Tax Area: | 710 - APPRAISER-S Whid Schl Dist, outside Langley, improved & 1 acre or less |
| CF | Conservation Futures | 0.0313996660 | $2,103,451 | $2,103,451 | $66.05 | | |
| FIRE3 | Fire & Rescue Dist #3 S Whidbey GEN | 1.2130821753 | $2,103,451 | $2,103,451 | $2,551.66 | | |
| HOBOND | Hospital BOND | 0.1893405597 | $2,103,451 | $2,103,451 | $398.27 | | |
| HOGEN | Hospital GEN | 0.3848777722 | $2,103,451 | $2,103,451 | $809.57 | | |
| CE | County Current Expense | 0.3674210519 | $2,103,451 | $2,103,451 | $772.85 | | |
| CR | County Roads | 0.4614296361 | $2,103,451 | $2,103,451 | $970.59 | | |
| ISLANDEMS | Hospital GEN (EMS) | 0.4952018576 | $2,103,451 | $2,103,451 | $1,041.63 | | |
| LIB | Library Sno-Isle GEN | 0.3039084203 | $2,103,451 | $2,103,451 | $639.26 | | |
| PORTWHID | Port of S Whidbey GEN | 0.1086004714 | $2,103,451 | $2,103,451 | $228.44 | | |
| SCH206BOND | School 206 BOND | 0.5960237832 | $2,103,451 | $2,103,451 | $1,253.71 | | |
| SCH206CAP | School 206 CP | 0.3066144020 | $2,103,451 | $2,103,451 | $644.95 | | |
| SCH206MO | School 206 Enrichment | 0.4808755445 | $2,103,451 | $2,103,451 | $1,011.50 | | |
| ST | State School | 1.4761226122 | $2,103,451 | $2,103,451 | $3,104.95 | | |
| ST2 | State School Part 2 | 0.7953803475 | $2,103,451 | $2,103,451 | $1,673.04 | | |
| SWHIDPRBD | P & R S Whidbey BOND | 0.0144185398 | $2,103,451 | $2,103,451 | $30.33 | | |
| SWHIDPRBD3 | P & R S Whidbey BOND3 | 0.1483535547 | $2,103,451 | $2,103,451 | $312.05 | | |
| SWHIDPRMT | P & R S Whidbey GEN | 0.4600000000 | $2,103,451 | $2,103,451 | $967.59 | | |
| | Total Tax Rate: | 7.8330503944 | | | | | |
| | | | | Taxes w/Current Exemptions: | $16,476.44 | | |
| | | | | Taxes w/o Exemptions: | $16,476.44 | | |
Improvement / Building
| Improvement #1: | RESIDENTIAL | State Code: | Y | 1732.0 sqft | Value: | $253,081 |
| Bathrooms: | 2 | Bedrooms: | 3 | | Ceiling: | DRYWALL PAINTED | Cooling: | HEAT PUMP/CONV/V | | Exterior Wall/Cover: | WOOD SIDING | Floor Covering: | CARPET/VINYL 80-20 | | Floor Structure: | WOOD W/SUBFLOOR | Foundation: | CONCRETE | | Interior Finish: | DRYWALL PAINT | Plumbing Fixture Cnt: | 9 | | Roof Slope: | 6" IN 12" | Roof Structure/Cover: | CJ CLAY TILE |
|
| | Type | Description | Class CD | Sub Class CD | Year Built | Area |
| | BAS | BASE/MAIN FLOOR | 3 | 0 | 1946 | 952.0 |
| | UPS | UPPER STORY | 3 | 0 | 1946 | 780.0 |
| | OWP | OPEN WOOD PORCH W/STEPS | 3 | 0 | 1946 | 545.2 |
| | DGR | DETACHED GARAGE | 3 | 0 | 1946 | 480.0 |
Sketch
Property Image
Land
| 1 | LB | LOW BANK | 0.0425 | 1850.00 | 37.00 | 0.00 | 1.00 | $1,850,000 | $0 |
| 2 | 55 | TIDES | 0.0000 | 0.00 | 37.00 | 0.00 | 1.00 | $370 | $0 |
Roll Value History
| 2026 | N/A | N/A | N/A | N/A | N/A |
| 2025 | $253,081 | $1,850,370 | $0 | $2,103,451 | $2,103,451 |
| 2024 | $257,081 | $1,850,370 | $0 | $2,107,451 | $2,107,451 |
| 2023 | $256,965 | $1,850,370 | $0 | $2,107,335 | $2,107,335 |
| 2022 | $236,239 | $1,600,370 | $0 | $1,836,609 | $1,836,609 |
| 2021 | $208,525 | $1,050,370 | $0 | $1,258,895 | $1,258,895 |
| 2020 | $204,064 | $900,370 | $0 | $1,104,434 | $1,104,434 |
| 2019 | $151,833 | $950,370 | $0 | $1,102,203 | $1,102,203 |
| 2018 | $152,380 | $950,370 | $0 | $1,102,750 | $1,102,750 |
| 2017 | $153,475 | $700,370 | $0 | $853,845 | $853,845 |
| 2016 | $155,668 | $700,370 | $0 | $856,038 | $856,038 |
| 2015 | $157,861 | $700,370 | $0 | $858,231 | $858,231 |
| 2014 | $160,054 | $700,370 | $0 | $860,424 | $860,424 |
| 2013 | $157,351 | $545,502 | $0 | $702,853 | $702,853 |
| 2012 | $159,382 | $545,502 | $0 | $704,884 | $704,884 |
| 2011 | $161,410 | $545,502 | $0 | $706,912 | $706,912 |
| 2010 | $170,918 | $545,502 | $0 | $716,420 | $716,420 |
| 2009 | $177,947 | $652,060 | $0 | $830,007 | $830,007 |
| 2008 | $157,104 | $746,281 | $0 | $903,385 | $903,385 |
| 2007 | $156,898 | $746,022 | $0 | $902,920 | $902,920 |
Deed and Sales History
| 1 | 08/30/2023 | PRD | Personal Representatives Deed | COHN, JOHN C | COHN TTEE, ELAINE ORDELL | | | $0.00 | 57815 | 4564140 |
| 2 | 05/01/1987 | OTHER | Other - Misc. Documents | COHN, JOHN C | COHN, JOHN C | | | $0.00 | 62196 | 87006491 |
| 3 | 01/01/1968 | TRUSTEED | Trustee's Deed | HOWARD, FLOYD E | COHN, JOHN C | | | $0.00 | 29002 | 0 |
| 4 | 01/01/1900 | OTHER | Other - Misc. Documents | Unknown | HOWARD, FLOYD E | | | $0.00 | 0 | 0 |
Payout Agreement
| No payout information available.. |