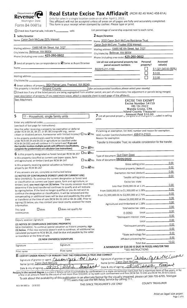
Property
Account |
| Property ID: | 505411 | Abbreviated Legal Description: | REPLACES 211-1200 24 BRUNN DC - BG PT SW LN CO RD 418'W OF ELN BRUNN DC & 77.9'S OF SE CR MENLO BCH S1*W380.83' S48*W59.05' N41*W70.89' TPB N41*W56.54' S20*W150' S41*E56.54' N20*E 150' TPB INCL ADJ TIDES |
| Geographic ID: | R22915-211-1190 | Agent Code: | |
| Type: | Real | | |
| Tax Area: | 710 - APPRAISER-S Whid Schl Dist, outside Langley, improved & 1 acre or less | Land Use Code | 11 |
| Open Space: | N | DFL | N |
| Historic Property: | N | Remodel Property: | N |
| Multi-Family Redevelopment: | N | | |
| Township: | 29 | Section: | 15 |
| Range: | R2 |
Location |
| Address: | 5824 PALMER LN FREELAND, WA 98249 | Mapsco: | |
| Neighborhood: | Cycle 3 | Map ID: | 329 |
| Neighborhood CD: | 3 |
Owner |
| Name: | MCCUNE TTEE, CARON ZECH | Owner ID: | 305438 |
| Mailing Address: | RICHARD BLAKE MCCUNE TTEE 10485 NE 6TH ST APT 3127 BELLEVUE, WA 98004 | % Ownership: | 100.0000000000% |
| | | Exemptions: | |
Taxes and Assessment Details
Values
| (+) Improvement Homesite Value: | + | $0 | |
| (+) Improvement Non-Homesite Value: | + | $691,498 | |
| (+) Land Homesite Value: | + | $0 | |
| (+) Land Non-Homesite Value: | + | $2,250,552 | |
| (+) Curr Use (HS): | + | $0 | $0 |
| (+) Curr Use (NHS): | + | $0 | $0 |
| | | -------------------------- | |
| (=) Market Value: | = | $2,942,050 | |
| (–) Productivity Loss: | – | $0 | |
| | | -------------------------- | |
| (=) Subtotal: | = | $2,942,050 | |
| (+) Senior Appraised Value: | + | $0 | |
| (+) Non-Senior Appraised Value: | + | $2,942,050 | |
| | | -------------------------- | |
| (=) Total Appraised Value: | = | $2,942,050 | |
| (–) Senior Exemption Loss: | – | $0 | |
| (–) Exemption Loss: | – | $0 | |
| | | -------------------------- | |
| (=) Taxable Value: | = | $2,942,050 | |
Taxing Jurisdiction
| Owner: | MCCUNE TTEE, CARON ZECH | | |
| % Ownership: | 100.0000000000% | | |
| Total Value: | $2,942,050 | | |
| Tax Area: | 710 - APPRAISER-S Whid Schl Dist, outside Langley, improved & 1 acre or less |
| CF | Conservation Futures | 0.0313996660 | $2,942,050 | $2,942,050 | $92.38 | | |
| FIRE3 | Fire & Rescue Dist #3 S Whidbey GEN | 1.2130821753 | $2,942,050 | $2,942,050 | $3,568.95 | | |
| HOBOND | Hospital BOND | 0.1893405597 | $2,942,050 | $2,942,050 | $557.05 | | |
| HOGEN | Hospital GEN | 0.3848777722 | $2,942,050 | $2,942,050 | $1,132.33 | | |
| CE | County Current Expense | 0.3674210519 | $2,942,050 | $2,942,050 | $1,080.97 | | |
| CR | County Roads | 0.4614296361 | $2,942,050 | $2,942,050 | $1,357.55 | | |
| ISLANDEMS | Hospital GEN (EMS) | 0.4952018576 | $2,942,050 | $2,942,050 | $1,456.91 | | |
| LIB | Library Sno-Isle GEN | 0.3039084203 | $2,942,050 | $2,942,050 | $894.11 | | |
| PORTWHID | Port of S Whidbey GEN | 0.1086004714 | $2,942,050 | $2,942,050 | $319.51 | | |
| SCH206BOND | School 206 BOND | 0.5960237832 | $2,942,050 | $2,942,050 | $1,753.53 | | |
| SCH206CAP | School 206 CP | 0.3066144020 | $2,942,050 | $2,942,050 | $902.07 | | |
| SCH206MO | School 206 Enrichment | 0.4808755445 | $2,942,050 | $2,942,050 | $1,414.76 | | |
| ST | State School | 1.4761226122 | $2,942,050 | $2,942,050 | $4,342.83 | | |
| ST2 | State School Part 2 | 0.7953803475 | $2,942,050 | $2,942,050 | $2,340.05 | | |
| SWHIDPRBD | P & R S Whidbey BOND | 0.0144185398 | $2,942,050 | $2,942,050 | $42.42 | | |
| SWHIDPRBD3 | P & R S Whidbey BOND3 | 0.1483535547 | $2,942,050 | $2,942,050 | $436.46 | | |
| SWHIDPRMT | P & R S Whidbey GEN | 0.4600000000 | $2,942,050 | $2,942,050 | $1,353.34 | | |
| | Total Tax Rate: | 7.8330503944 | | | | | |
| | | | | Taxes w/Current Exemptions: | $23,045.22 | | |
| | | | | Taxes w/o Exemptions: | $23,045.22 | | |
Improvement / Building
| Improvement #1: | RESIDENTIAL | State Code: | Y | 2712.5 sqft | Value: | $691,498 |
| Bathrooms: | 3.5 | Bedrooms: | 2 | | Ceiling: | DRYWALL PAINTED | Cooling: | HEAT PUMP/CONV/V | | Exterior Wall/Cover: | CEMENT FIBER | Floor Covering: | CARPET/VINYL 60-40 | | Floor Structure: | WOOD W/SUBFLOOR | Foundation: | PIERS/CONCRETE | | Interior Finish: | DRYWALL PAINT | Plumbing Fixture Cnt: | 14 | | Roof Slope: | 6" IN 12" | Roof Structure/Cover: | CJ ALUMINIUM HEAVY |
|
| | Type | Description | Class CD | Sub Class CD | Year Built | Area |
| | BAS | BASE/MAIN FLOOR | 5 | 0 | 2016 | 1360.0 |
| | UPS | UPPER STORY | 5 | 0 | 2016 | 1352.5 |
| | AGR | ATTACHED GARAGE | 5 | 0 | 2016 | 546.0 |
| | OP4 | OPEN PORCH W/CEILING-ROOF | 5 | 0 | 2016 | 67.5 |
| | OWC | OPEN WOOD PORCH W/STEPS/ROOF/C | 5 | 0 | 2016 | 96.0 |
| | OWP | OPEN WOOD PORCH W/STEPS | 5 | 0 | 2016 | 530.0 |
Sketch
Property Image
Land
| 1 | LB | LOW BANK | 0.1700 | 7405.20 | 55.20 | 0.00 | 1.00 | $2,250,000 | $0 |
| 2 | 55 | TIDES | 0.0000 | 0.00 | 50.00 | 0.00 | 1.00 | $552 | $0 |
Roll Value History
| 2026 | N/A | N/A | N/A | N/A | N/A |
| 2025 | $691,498 | $2,250,552 | $0 | $2,942,050 | $2,942,050 |
| 2024 | $697,166 | $2,250,552 | $0 | $2,947,718 | $2,947,718 |
| 2023 | $702,833 | $2,300,552 | $0 | $3,003,385 | $3,003,385 |
| 2022 | $641,538 | $2,000,552 | $0 | $2,642,090 | $2,642,090 |
| 2021 | $562,333 | $1,300,552 | $0 | $1,862,885 | $1,862,885 |
| 2020 | $545,278 | $1,050,552 | $0 | $1,595,830 | $1,595,830 |
| 2019 | $441,407 | $1,100,552 | $0 | $1,541,959 | $1,541,959 |
| 2018 | $442,531 | $950,552 | $0 | $1,393,083 | $1,393,083 |
| 2017 | $449,270 | $700,552 | $0 | $1,149,822 | $1,149,822 |
| 2016 | $411,300 | $700,552 | $0 | $1,111,852 | $1,111,852 |
| 2015 | $96,179 | $700,552 | $0 | $796,731 | $796,731 |
| 2014 | $97,785 | $700,552 | $0 | $798,337 | $798,337 |
| 2013 | $88,358 | $837,802 | $0 | $926,160 | $926,160 |
| 2012 | $90,056 | $837,802 | $0 | $927,858 | $927,858 |
| 2011 | $91,756 | $837,802 | $0 | $929,558 | $929,558 |
| 2010 | $102,617 | $837,802 | $0 | $940,419 | $940,419 |
| 2009 | $107,387 | $1,001,462 | $0 | $1,108,849 | $1,108,849 |
| 2008 | $95,250 | $1,168,858 | $0 | $1,264,108 | $1,264,108 |
| 2007 | $96,423 | $1,058,398 | $0 | $1,154,821 | $1,154,821 |
Deed and Sales History
| 1 | 08/05/2022 | QCD | Quit Claim Deed | MCCUNE, CARON ZECH | MCCUNE TTEE, CARON ZECH | | | $0.00 | 54159 | 4549684 |
| 2 | 08/05/2022 | QCD | Quit Claim Deed | MCCUNE, RICHARD B | MCCUNE TTEE, RICHARD BLAKE | | | $0.00 | 54145 | 4549637 |
| 3 | 08/05/2022 | QCD | Quit Claim Deed | MCCUNE, RICHARD B | MCCUNE, RICHARD B | | | $0.00 | 54143 | 4549618 |
| 4 | 06/03/1999 | ESTSEPPROP | Establish Separate Property | SLADE, KATHLEEN J | SLADE, KATHLEEN J | | | $0.00 | 92195 | 99013550 |
| 5 | 04/26/1999 | WD | Warranty Deed | SLADE, KATHLEEN J | MCCUNE, RICHARD B | | | $385,000.00 | 92196 | 99013552 |
| 6 | 05/13/1998 | QCD | Quit Claim Deed | SLADE, KATHLEEN J | SLADE, KATHLEEN J | | | $0.00 | 81787 | 98009546 |
| 7 | 05/01/1998 | QCD | Quit Claim Deed | RANDALL, CHRISTINE C | SLADE, KATHLEEN J | | | $0.00 | 81787 | 98009546 |
| 8 | 06/01/1994 | QCD | Quit Claim Deed | DRISCOLL, CLARICE E | RANDALL, CHRISTINE C | | | $0.00 | 42642 | 94014610 |
| 9 | 11/01/1986 | QCD | Quit Claim Deed | CORBIN, CHARLES T | DRISCOLL, CLARICE E | | | $0.00 | 63182 | 86014332 |
| 10 | 06/01/1951 | EXECUTORD | Executor Deed | WALTON, CLAYTON L | CORBIN, CHARLES T | | | $0.00 | 0 | 82821 |
| 11 | 01/01/1900 | OTHER | Other - Misc. Documents | Unknown | WALTON, CLAYTON L | | | $0.00 | 0 | 0 |
Payout Agreement
| No payout information available.. |