Property
Account |
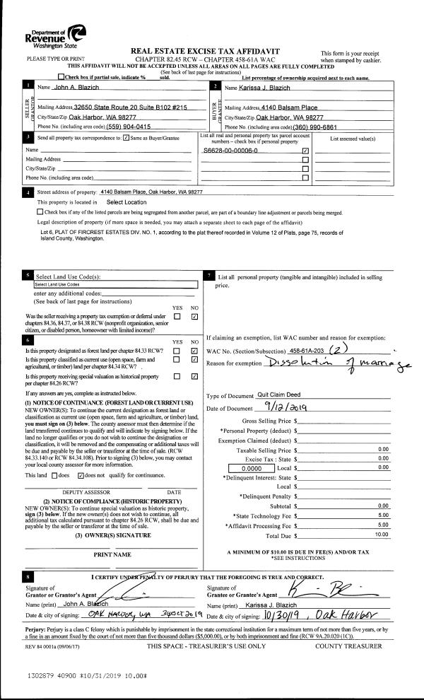
| Property ID: | 507204 | Abbreviated Legal Description: | FIRCREST ESTATES LOT 6 SUB EZ PUGET SOUND POWER & LIGHT A#965 AF#366639 |
| Geographic ID: | S6628-00-00006-0 | Agent Code: | |
| Type: | Real | | |
| Tax Area: | 112 - APPRAISER-OH Schl Dist, outside OH, improved, greater than 1 acre | Land Use Code | 11 |
| Open Space: | N | DFL | N |
| Historic Property: | N | Remodel Property: | N |
| Multi-Family Redevelopment: | N | | |
| Township: | | Section: | |
| Range: | |
Location |
| Address: | 4140 BALSAM PLACE OAK HARBOR, WA 98277 | Mapsco: | |
| Neighborhood: | Cycle 6 | Map ID: | 591 |
| Neighborhood CD: | 6 |
Owner |
| Name: | RIDDLE, MAXWELL | Owner ID: | 297225 |
| Mailing Address: | CYNTHIA RIDDLE PO BOX 872 OAK HARBOR, WA 98277 | % Ownership: | 100.0000000000% |
| | | Exemptions: | |
Taxes and Assessment Details
Values
| (+) Improvement Homesite Value: | + | $0 | |
| (+) Improvement Non-Homesite Value: | + | $191,985 | |
| (+) Land Homesite Value: | + | $0 | |
| (+) Land Non-Homesite Value: | + | $220,000 | |
| (+) Curr Use (HS): | + | $0 | $0 |
| (+) Curr Use (NHS): | + | $0 | $0 |
| | | -------------------------- | |
| (=) Market Value: | = | $411,985 | |
| (–) Productivity Loss: | – | $0 | |
| | | -------------------------- | |
| (=) Subtotal: | = | $411,985 | |
| (+) Senior Appraised Value: | + | $0 | |
| (+) Non-Senior Appraised Value: | + | $411,985 | |
| | | -------------------------- | |
| (=) Total Appraised Value: | = | $411,985 | |
| (–) Senior Exemption Loss: | – | $0 | |
| (–) Exemption Loss: | – | $0 | |
| | | -------------------------- | |
| (=) Taxable Value: | = | $411,985 | |
Taxing Jurisdiction
| Owner: | RIDDLE, MAXWELL | | |
| % Ownership: | 100.0000000000% | | |
| Total Value: | $411,985 | | |
| Tax Area: | 112 - APPRAISER-OH Schl Dist, outside OH, improved, greater than 1 acre |
| CF | Conservation Futures | 0.0313996660 | $411,985 | $411,985 | $12.94 | | |
| CEM1 | Cemetery #1 | 0.0040018856 | $411,985 | $411,985 | $1.65 | | |
| FIRE2 | Fire & Rescue Dist #2 N Whidbey GEN | 0.5381486274 | $411,985 | $411,985 | $221.71 | | |
| HOBOND | Hospital BOND | 0.1893405597 | $411,985 | $411,985 | $78.01 | | |
| HOGEN | Hospital GEN | 0.3848777722 | $411,985 | $411,985 | $158.56 | | |
| CE | County Current Expense | 0.3674210519 | $411,985 | $411,985 | $151.37 | | |
| CR | County Roads | 0.4614296361 | $411,985 | $411,985 | $190.10 | | |
| ISLANDEMS | Hospital GEN (EMS) | 0.4952018576 | $411,985 | $411,985 | $204.02 | | |
| LIB | Library Sno-Isle GEN | 0.3039084203 | $411,985 | $411,985 | $125.21 | | |
| NWHIDPRMT | P & R N Whidbey GEN | 0.1990272349 | $411,985 | $411,985 | $82.00 | | |
| SCH201MO | School 201 Enrichment | 2.3851112745 | $411,985 | $411,985 | $982.63 | | |
| ST | State School | 1.4761226122 | $411,985 | $411,985 | $608.14 | | |
| ST2 | State School Part 2 | 0.7953803475 | $411,985 | $411,985 | $327.68 | | |
| | Total Tax Rate: | 7.6313709459 | | | | | |
| | | | | Taxes w/Current Exemptions: | $3,144.02 | | |
| | | | | Taxes w/o Exemptions: | $3,144.02 | | |
Improvement / Building
| Improvement #1: | RESIDENTIAL | State Code: | Y | 1156.0 sqft | Value: | $191,985 |
| Bathrooms: | 1.75 | Bedrooms: | 3 | | Ceiling: | DRY WALL SPRAYED | Exterior Wall/Cover: | WOOD SIDING | | Floor Covering: | CARPET/VINYL 80-20 | Floor Structure: | WOOD W/SUBFLOOR | | Foundation: | CONCRETE | Heating: | BASEBOARD ELECTRIC | | Interior Finish: | DRYWALL PAINT | Plumbing Fixture Cnt: | 9 | | Roof Slope: | 4" IN 12" | Roof Structure/Cover: | CJ ASPHALT |
|
| | Type | Description | Class CD | Sub Class CD | Year Built | Area |
| | BAS | BASE/MAIN FLOOR | 3 | 0 | 1982 | 1156.0 |
| | OP3 | OPEN PORCH W/ROOF | 3 | 0 | 1982 | 32.0 |
| | AGR | ATTACHED GARAGE | 3 | 0 | 1982 | 336.0 |
| | OWP | OPEN WOOD PORCH W/STEPS | 3 | 0 | 1982 | 153.2 |
Sketch
Property Image
Land
| 1 | 17 | AC (01.01-02.00) | 1.0500 | 45738.00 | 0.00 | 0.00 | 1.00 | $220,000 | $0 |
Roll Value History
| 2026 | N/A | N/A | N/A | N/A | N/A |
| 2025 | $191,985 | $220,000 | $0 | $411,985 | $411,985 |
| 2024 | $198,639 | $220,000 | $0 | $418,639 | $418,639 |
| 2023 | $201,388 | $220,000 | $0 | $421,388 | $421,388 |
| 2022 | $184,854 | $200,000 | $0 | $384,854 | $384,854 |
| 2021 | $162,903 | $170,000 | $0 | $332,903 | $332,903 |
| 2020 | $158,582 | $140,000 | $0 | $298,582 | $298,582 |
| 2019 | $112,388 | $160,000 | $0 | $272,388 | $272,388 |
| 2018 | $112,751 | $140,000 | $0 | $252,751 | $252,751 |
| 2017 | $113,478 | $125,000 | $0 | $238,478 | $238,478 |
| 2016 | $89,522 | $100,000 | $0 | $189,522 | $189,522 |
| 2015 | $90,900 | $85,000 | $0 | $175,900 | $175,900 |
| 2014 | $92,278 | $80,000 | $0 | $172,278 | $172,278 |
| 2013 | $93,655 | $76,500 | $0 | $170,155 | $170,155 |
| 2012 | $95,032 | $76,500 | $0 | $171,532 | $171,532 |
| 2011 | $96,409 | $90,000 | $0 | $186,409 | $186,409 |
| 2010 | $103,694 | $90,000 | $0 | $193,694 | $193,694 |
| 2009 | $108,260 | $105,000 | $0 | $213,260 | $213,260 |
| 2008 | $109,667 | $111,000 | $0 | $220,667 | $220,667 |
| 2007 | $111,075 | $111,000 | $0 | $222,075 | $222,075 |
Deed and Sales History
| 1 | 10/13/2020 | WD | Warranty Deed | BLAZICH, KARISSA J | RIDDLE, MAXWELL | | | $365,000.00 | 45501 | 4501058 |
| 2 | 09/12/2019 | QCD | Quit Claim Deed | BLAZICH, JOHN A | BLAZICH, KARISSA J | | | $0.00 | 40900 | 4474478 |
| 3 | 09/27/2017 | WD | Warranty Deed | BOLDUC, MARIETTA MONTERO | BLAZICH, JOHN A | | | $259,000.00 | 31280 | 4431029 |
| 4 | 11/25/2008 | OTHER | Other - Misc. Documents | BOLDUC, JAMES A | BOLDUC, MARIETTA MONTERO | | | $0.00 | 81049 | 0 |
| 5 | 12/01/1989 | WD | Warranty Deed | NEARY, PATRICK C | BOLDUC, JAMES A | | | $74,900.00 | 95928 | 89019086 |
| 6 | 03/01/1983 | WD | Warranty Deed | KOETJE, GORDON | NEARY, PATRICK C | | | $56,000.00 | 30789 | 407687 |
| 7 | 09/01/1979 | REC | Real Estate Contract | MITCHELL, D L | KOETJE, GORDON | | | $14,292.00 | 94578 | 358878 |
| 8 | 01/01/1900 | OTHER | Other - Misc. Documents | Unknown | MITCHELL, D L | | | $0.00 | 0 | 0 |
Payout Agreement
| No payout information available.. |