Property
Account |
| Property ID: | 507990 | Abbreviated Legal Description: | SUNRISE HILLS 3 LOT 19 |
| Geographic ID: | S8255-03-00019-0 | Agent Code: | |
| Type: | Real | | |
| Tax Area: | 119 - APPRAISER-OH Schl Dist, outside OH, vacant & 50 acres or less | Land Use Code | 99 |
| Open Space: | N | DFL | N |
| Historic Property: | N | Remodel Property: | N |
| Multi-Family Redevelopment: | N | | |
| Township: | | Section: | |
| Range: | |
Location |
| Address: | NORRIS LN OAK HARBOR, WA 98277 | Mapsco: | |
| Neighborhood: | Cycle 6 | Map ID: | 584 |
| Neighborhood CD: | 6 |
Owner |
| Name: | STRECK, FREDERICK O | Owner ID: | 187482 |
| Mailing Address: | C/O MATTHEW STRECK 500 WESTOVER DR #17245 SANFORD, NC 27330 | % Ownership: | 100.0000000000% |
| | | Exemptions: | |
Taxes and Assessment Details
Values
| (+) Improvement Homesite Value: | + | $0 | |
| (+) Improvement Non-Homesite Value: | + | $0 | |
| (+) Land Homesite Value: | + | $0 | |
| (+) Land Non-Homesite Value: | + | $140,000 | |
| (+) Curr Use (HS): | + | $0 | $0 |
| (+) Curr Use (NHS): | + | $0 | $0 |
| | | -------------------------- | |
| (=) Market Value: | = | $140,000 | |
| (–) Productivity Loss: | – | $0 | |
| | | -------------------------- | |
| (=) Subtotal: | = | $140,000 | |
| (+) Senior Appraised Value: | + | $0 | |
| (+) Non-Senior Appraised Value: | + | $140,000 | |
| | | -------------------------- | |
| (=) Total Appraised Value: | = | $140,000 | |
| (–) Senior Exemption Loss: | – | $0 | |
| (–) Exemption Loss: | – | $0 | |
| | | -------------------------- | |
| (=) Taxable Value: | = | $140,000 | |
Taxing Jurisdiction
| Owner: | STRECK, FREDERICK O | | |
| % Ownership: | 100.0000000000% | | |
| Total Value: | $140,000 | | |
| Tax Area: | 119 - APPRAISER-OH Schl Dist, outside OH, vacant & 50 acres or less |
| CF | Conservation Futures | 0.0313996660 | $140,000 | $140,000 | $4.40 | | |
| CEM1 | Cemetery #1 | 0.0040018856 | $140,000 | $140,000 | $0.56 | | |
| HOBOND | Hospital BOND | 0.1893405597 | $140,000 | $140,000 | $26.51 | | |
| HOGEN | Hospital GEN | 0.3848777722 | $140,000 | $140,000 | $53.88 | | |
| CE | County Current Expense | 0.3674210519 | $140,000 | $140,000 | $51.44 | | |
| CR | County Roads | 0.4614296361 | $140,000 | $140,000 | $64.60 | | |
| ISLANDEMS | Hospital GEN (EMS) | 0.4952018576 | $140,000 | $140,000 | $69.33 | | |
| LIB | Library Sno-Isle GEN | 0.3039084203 | $140,000 | $140,000 | $42.55 | | |
| NWHIDPRMT | P & R N Whidbey GEN | 0.1990272349 | $140,000 | $140,000 | $27.86 | | |
| SCH201MO | School 201 Enrichment | 2.3851112745 | $140,000 | $140,000 | $333.92 | | |
| ST | State School | 1.4761226122 | $140,000 | $140,000 | $206.66 | | |
| ST2 | State School Part 2 | 0.7953803475 | $140,000 | $140,000 | $111.35 | | |
| | Total Tax Rate: | 7.0932223185 | | | | | |
| | | | | Taxes w/Current Exemptions: | $993.06 | | |
| | | | | Taxes w/o Exemptions: | $993.06 | | |
Improvement / Building
Sketch
| No sketches available for this property. |
Property Image
Land
| 1 | 14 | SQ (08001-12000) | 0.0000 | 0.00 | 0.00 | 0.00 | 1.00 | $140,000 | $0 |
Roll Value History
| 2026 | N/A | N/A | N/A | N/A | N/A |
| 2025 | $0 | $140,000 | $0 | $140,000 | $140,000 |
| 2024 | $0 | $140,000 | $0 | $140,000 | $140,000 |
| 2023 | $0 | $140,000 | $0 | $140,000 | $140,000 |
| 2022 | $0 | $140,000 | $0 | $140,000 | $140,000 |
| 2021 | $0 | $100,000 | $0 | $100,000 | $100,000 |
| 2020 | $0 | $90,000 | $0 | $90,000 | $90,000 |
| 2019 | $0 | $135,000 | $0 | $135,000 | $135,000 |
| 2018 | $0 | $100,000 | $0 | $100,000 | $100,000 |
| 2017 | $0 | $100,000 | $0 | $100,000 | $100,000 |
| 2016 | $0 | $120,000 | $0 | $120,000 | $120,000 |
| 2015 | $0 | $120,000 | $0 | $120,000 | $120,000 |
| 2014 | $0 | $120,000 | $0 | $120,000 | $120,000 |
| 2013 | $0 | $95,000 | $0 | $95,000 | $95,000 |
| 2012 | $0 | $115,000 | $0 | $115,000 | $115,000 |
| 2011 | $0 | $115,000 | $0 | $115,000 | $115,000 |
| 2010 | $0 | $115,000 | $0 | $115,000 | $115,000 |
| 2009 | $0 | $139,300 | $0 | $139,300 | $139,300 |
| 2008 | $0 | $124,300 | $0 | $124,300 | $124,300 |
| 2007 | $0 | $124,300 | $0 | $124,300 | $124,300 |
Deed and Sales History
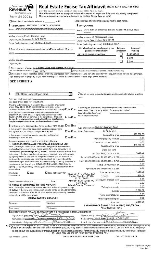
| 1 | 11/18/2025 | WD | Warranty Deed | STRECK, MATTHEW C | SEM, DAVID | | | $180,000.00 | 65510 | 4593713 |
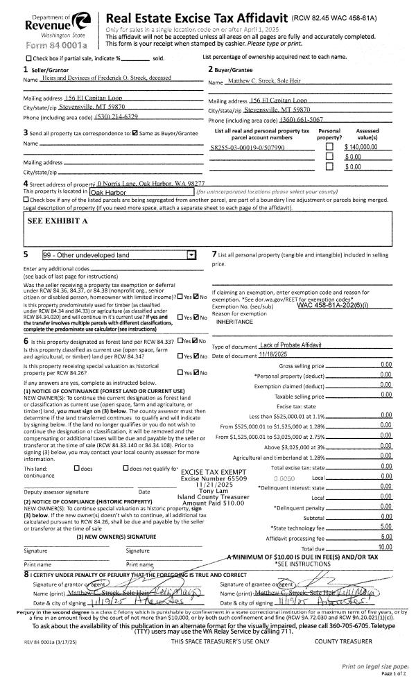
| 2 | 11/18/2025 | LACPROBATE | Lack of Probate | STRECK, FREDERICK O | STRECK, MATTHEW C | | | $0.00 | 65509 | 4593712 |
| 3 | 04/23/2002 | ESTSEPPROP | Establish Separate Property | STRECK, FREDERICK O | STRECK, FREDERICK O | | | $0.00 | 21484 | 4017746 |
| 4 | 05/01/1990 | QCD | Quit Claim Deed | STRECK, FREDERICK O | STRECK, FREDERICK O | | | $0.00 | 2531 | 90008161 |
| 5 | 12/01/1989 | WD | Warranty Deed | KRIEG, ESTHER A | STRECK, FREDERICK O | | | $23,000.00 | 96053 | 89019503 |
| 6 | 10/01/1989 | OTHER | Other - Misc. Documents | KRIEG, ESTHER A | KRIEG, ESTHER A | | | $0.00 | 95864 | 89018847 |
| 7 | 04/01/1989 | PRD | Personal Representatives Deed | KRIEG, BUSTER | KRIEG, ESTHER A | | | $0.00 | 91398 | 89004900 |
| 8 | 01/01/1900 | OTHER | Other - Misc. Documents | Unknown | KRIEG, BUSTER | | | $0.00 | 0 | 0 |
Payout Agreement
| No payout information available.. |