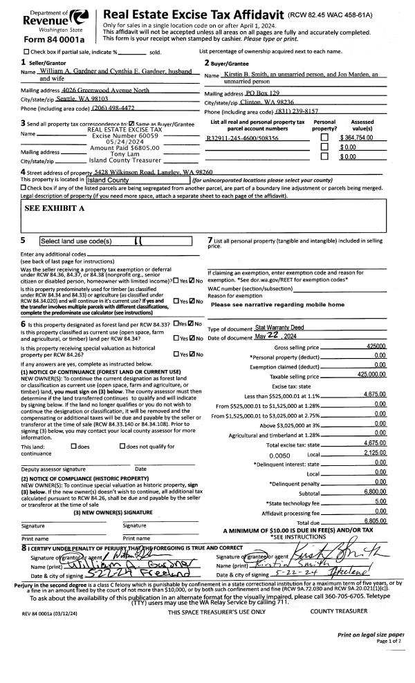
Property
Account |
| Property ID: | 508356 | Abbreviated Legal Description: | TR 1 - SP 79/194 S/2 NE NE SE EX RD TGW SUB EZ FR 2324530 |
| Geographic ID: | R32911-245-4600 | Agent Code: | |
| Type: | Real | | |
| Tax Area: | 712 - APPRAISER-S Whid Schl Dist, outside Langley, improved, greater than 1 acre | Land Use Code | 11 |
| Open Space: | N | DFL | N |
| Historic Property: | N | Remodel Property: | N |
| Multi-Family Redevelopment: | N | | |
| Township: | 29 | Section: | 11 |
| Range: | R3 |
Location |
| Address: | 5428 WILKINSON RD LANGLEY, WA 98260 | Mapsco: | |
| Neighborhood: | Cycle 4 | Map ID: | 759 |
| Neighborhood CD: | 4 |
Owner |
| Name: | SMITH, KIRSTIN B | Owner ID: | 312476 |
| Mailing Address: | JON MARDEN PO BOX 129 CLINTON, WA 98236 | % Ownership: | 100.0000000000% |
| | | Exemptions: | |
Taxes and Assessment Details
Values
| (+) Improvement Homesite Value: | + | $0 | |
| (+) Improvement Non-Homesite Value: | + | $7,083 | |
| (+) Land Homesite Value: | + | $0 | |
| (+) Land Non-Homesite Value: | + | $370,000 | |
| (+) Curr Use (HS): | + | $0 | $0 |
| (+) Curr Use (NHS): | + | $0 | $0 |
| | | -------------------------- | |
| (=) Market Value: | = | $377,083 | |
| (–) Productivity Loss: | – | $0 | |
| | | -------------------------- | |
| (=) Subtotal: | = | $377,083 | |
| (+) Senior Appraised Value: | + | $0 | |
| (+) Non-Senior Appraised Value: | + | $377,083 | |
| | | -------------------------- | |
| (=) Total Appraised Value: | = | $377,083 | |
| (–) Senior Exemption Loss: | – | $0 | |
| (–) Exemption Loss: | – | $0 | |
| | | -------------------------- | |
| (=) Taxable Value: | = | $377,083 | |
Taxing Jurisdiction
| Owner: | SMITH, KIRSTIN B | | |
| % Ownership: | 100.0000000000% | | |
| Total Value: | $377,083 | | |
| Tax Area: | 712 - APPRAISER-S Whid Schl Dist, outside Langley, improved, greater than 1 acre |
| CF | Conservation Futures | 0.0313996660 | $377,083 | $377,083 | $11.84 | | |
| FIRE3 | Fire & Rescue Dist #3 S Whidbey GEN | 1.2130821753 | $377,083 | $377,083 | $457.43 | | |
| HOBOND | Hospital BOND | 0.1893405597 | $377,083 | $377,083 | $71.40 | | |
| HOGEN | Hospital GEN | 0.3848777722 | $377,083 | $377,083 | $145.13 | | |
| CE | County Current Expense | 0.3674210519 | $377,083 | $377,083 | $138.55 | | |
| CR | County Roads | 0.4614296361 | $377,083 | $377,083 | $174.00 | | |
| ISLANDEMS | Hospital GEN (EMS) | 0.4952018576 | $377,083 | $377,083 | $186.73 | | |
| LIB | Library Sno-Isle GEN | 0.3039084203 | $377,083 | $377,083 | $114.60 | | |
| PORTWHID | Port of S Whidbey GEN | 0.1086004714 | $377,083 | $377,083 | $40.95 | | |
| SCH206BOND | School 206 BOND | 0.5960237832 | $377,083 | $377,083 | $224.75 | | |
| SCH206CAP | School 206 CP | 0.3066144020 | $377,083 | $377,083 | $115.62 | | |
| SCH206MO | School 206 Enrichment | 0.4808755445 | $377,083 | $377,083 | $181.33 | | |
| ST | State School | 1.4761226122 | $377,083 | $377,083 | $556.62 | | |
| ST2 | State School Part 2 | 0.7953803475 | $377,083 | $377,083 | $299.92 | | |
| SWHIDPRBD | P & R S Whidbey BOND | 0.0144185398 | $377,083 | $377,083 | $5.44 | | |
| SWHIDPRBD3 | P & R S Whidbey BOND3 | 0.1483535547 | $377,083 | $377,083 | $55.94 | | |
| SWHIDPRMT | P & R S Whidbey GEN | 0.4600000000 | $377,083 | $377,083 | $173.46 | | |
| | Total Tax Rate: | 7.8330503944 | | | | | |
| | | | | Taxes w/Current Exemptions: | $2,953.71 | | |
| | | | | Taxes w/o Exemptions: | $2,953.71 | | |
Improvement / Building
| Improvement #1: | MANUFACTURED HOME | State Code: | Y | 0.0 sqft | Value: | $7,083 |
| | Type | Description | Class CD | Sub Class CD | Year Built | Area |
| | CPD | OPEN CARPORT DIRT FLOOR | 4 | 0 | 1975 | 336.0 |
| | ENP | ENCLOSED PORCH | 4 | 0 | 1975 | 237.2 |
| | UTY | STORAGE/UTILITY | 4 | 0 | 1975 | 384.0 |
Sketch
| No sketches available for this property. |
Property Image
Land
| 1 | 32 | AC (03.01-09.99) | 5.0000 | 0.00 | 0.00 | 0.00 | 1.00 | $370,000 | $0 |
Roll Value History
| 2026 | N/A | N/A | N/A | N/A | N/A |
| 2025 | $7,083 | $370,000 | $0 | $377,083 | $377,083 |
| 2024 | $7,083 | $350,000 | $0 | $357,083 | $357,083 |
| 2023 | $34,754 | $330,000 | $0 | $364,754 | $364,754 |
| 2022 | $31,470 | $280,000 | $0 | $311,470 | $311,470 |
| 2021 | $27,361 | $230,000 | $0 | $257,361 | $257,361 |
| 2020 | $29,532 | $190,000 | $0 | $219,532 | $219,532 |
| 2019 | $28,296 | $250,000 | $0 | $278,296 | $278,296 |
| 2018 | $29,024 | $210,000 | $0 | $239,024 | $239,024 |
| 2017 | $29,389 | $190,000 | $0 | $219,389 | $219,389 |
| 2016 | $30,117 | $165,000 | $0 | $195,117 | $195,117 |
| 2015 | $30,482 | $135,000 | $0 | $165,482 | $165,482 |
| 2014 | $46,152 | $135,000 | $0 | $181,152 | $181,152 |
| 2013 | $46,625 | $135,000 | $0 | $181,625 | $181,625 |
| 2012 | $47,570 | $135,000 | $0 | $182,570 | $182,570 |
| 2011 | $48,515 | $135,000 | $0 | $183,515 | $183,515 |
| 2010 | $50,156 | $135,000 | $0 | $185,156 | $185,156 |
| 2009 | $51,133 | $220,000 | $0 | $271,133 | $271,133 |
| 2008 | $50,919 | $270,000 | $0 | $320,919 | $320,919 |
| 2007 | $51,888 | $270,000 | $0 | $321,888 | $321,888 |
Deed and Sales History
| 1 | 05/22/2024 | WD | Warranty Deed | GARDNER, WILLIAM A | SMITH, KIRSTIN B | | | $425,000.00 | 60059 | 4572654 |
| 2 | 10/01/1987 | OTHER | Other - Misc. Documents | GARDNER, WILLIAM A | GARDNER, BILL | | | $6,500.00 | 11111111 | 0 |
| 3 | 12/01/1979 | EXECUTORD | Executor Deed | BALDWIN, R O | GARDNER, WILLIAM A | | | $15,000.00 | 20189 | 0 |
| 4 | 01/01/1900 | OTHER | Other - Misc. Documents | Unknown | BALDWIN, R O | | | $0.00 | 0 | 0 |
Payout Agreement
| No payout information available.. |