Property
Account |
| Property ID: | 509630 | Abbreviated Legal Description: | N219.82' OF S659.45' OF GL5 TGW SUB EZ FR 462-2910 TR 29-S SP 77-115 (DRAINFIELD FOR 475-2900) EX: N25' OF W25' OF E112.50 OF S552.13' OF GL5 (SEG'D 452-3250 - WELLSITE) |
| Geographic ID: | R13221-450-2900 | Agent Code: | |
| Type: | Real | | |
| Tax Area: | 112 - APPRAISER-OH Schl Dist, outside OH, improved, greater than 1 acre | Land Use Code | 11 |
| Open Space: | N | DFL | N |
| Historic Property: | N | Remodel Property: | N |
| Multi-Family Redevelopment: | N | | |
| Township: | 32 | Section: | 21 |
| Range: | R1 |
Location |
| Address: | 1389 OLDTIMER ST OAK HARBOR, WA 98277 | Mapsco: | |
| Neighborhood: | Cycle 2 | Map ID: | 152 |
| Neighborhood CD: | 2 |
Owner |
| Name: | BLACK, BRENNAN L | Owner ID: | 305212 |
| Mailing Address: | 1389 OLDTIMER ST OAK HARBOR, WA 98277 | % Ownership: | 100.0000000000% |
| | | Exemptions: | |
Taxes and Assessment Details
Values
| (+) Improvement Homesite Value: | + | $0 | |
| (+) Improvement Non-Homesite Value: | + | $103,955 | |
| (+) Land Homesite Value: | + | $0 | |
| (+) Land Non-Homesite Value: | + | $310,995 | |
| (+) Curr Use (HS): | + | $0 | $0 |
| (+) Curr Use (NHS): | + | $0 | $0 |
| | | -------------------------- | |
| (=) Market Value: | = | $414,950 | |
| (–) Productivity Loss: | – | $0 | |
| | | -------------------------- | |
| (=) Subtotal: | = | $414,950 | |
| (+) Senior Appraised Value: | + | $0 | |
| (+) Non-Senior Appraised Value: | + | $414,950 | |
| | | -------------------------- | |
| (=) Total Appraised Value: | = | $414,950 | |
| (–) Senior Exemption Loss: | – | $0 | |
| (–) Exemption Loss: | – | $0 | |
| | | -------------------------- | |
| (=) Taxable Value: | = | $414,950 | |
Taxing Jurisdiction
| Owner: | BLACK, BRENNAN L | | |
| % Ownership: | 100.0000000000% | | |
| Total Value: | $414,950 | | |
| Tax Area: | 112 - APPRAISER-OH Schl Dist, outside OH, improved, greater than 1 acre |
| CF | Conservation Futures | 0.0313996660 | $414,950 | $414,950 | $13.03 | | |
| CEM1 | Cemetery #1 | 0.0040018856 | $414,950 | $414,950 | $1.66 | | |
| FIRE2 | Fire & Rescue Dist #2 N Whidbey GEN | 0.5381486274 | $414,950 | $414,950 | $223.30 | | |
| HOBOND | Hospital BOND | 0.1893405597 | $414,950 | $414,950 | $78.57 | | |
| HOGEN | Hospital GEN | 0.3848777722 | $414,950 | $414,950 | $159.71 | | |
| CE | County Current Expense | 0.3674210519 | $414,950 | $414,950 | $152.46 | | |
| CR | County Roads | 0.4614296361 | $414,950 | $414,950 | $191.47 | | |
| ISLANDEMS | Hospital GEN (EMS) | 0.4952018576 | $414,950 | $414,950 | $205.48 | | |
| LIB | Library Sno-Isle GEN | 0.3039084203 | $414,950 | $414,950 | $126.11 | | |
| NWHIDPRMT | P & R N Whidbey GEN | 0.1990272349 | $414,950 | $414,950 | $82.59 | | |
| SCH201MO | School 201 Enrichment | 2.3851112745 | $414,950 | $414,950 | $989.70 | | |
| ST | State School | 1.4761226122 | $414,950 | $414,950 | $612.52 | | |
| ST2 | State School Part 2 | 0.7953803475 | $414,950 | $414,950 | $330.04 | | |
| | Total Tax Rate: | 7.6313709459 | | | | | |
| | | | | Taxes w/Current Exemptions: | $3,166.64 | | |
| | | | | Taxes w/o Exemptions: | $3,166.64 | | |
Improvement / Building
| Improvement #1: | MANUFACTURED HOME | State Code: | Y | 1296.0 sqft | Value: | $103,955 |
| Bathrooms: | 2 | Bedrooms: | 3 | | Ceiling: | PLASTER PAINTED | Cooling: | EVAP NO DUCT | | Exterior Wall/Cover: | VINYL | Floor Covering: | CARPET 100% | | Floor Structure: | SLAB ON GRADE | Foundation: | SLAB | | Heating: | FHA ELECTRIC | Interior Finish: | PLASTER | | Plumbing Fixture Cnt: | 1 | Roof Slope: | FLAT | | Roof Structure/Cover: | CJ ALUMINIUM HEAVY |   |   |
|
| | Type | Description | Class CD | Sub Class CD | Year Built | Area |
| | BAS | BASE/MAIN FLOOR | 4 | 0 | 1990 | 1296.0 |
| | ENP | ENCLOSED PORCH | 4 | 0 | 1990 | 192.0 |
| | OP1 | OPEN PORCH SLAB | 4 | 0 | 1990 | 182.0 |
| | OP1 | OPEN PORCH SLAB | 4 | 0 | 1990 | 316.0 |
| | OP3 | OPEN PORCH W/ROOF | 4 | 0 | 1990 | 100.0 |
| | oPOL | POLE BARN | 4 | 0 | 1990 | 480.0 |
Sketch
Property Image
Land
| 1 | HS | HOMESITE | 1.0000 | 43560.00 | 0.00 | 0.00 | 1.00 | $220,000 | $0 |
| 2 | 91 | UNDEVELOPED LAND-METES AND BOUNDS | 1.6300 | 71002.80 | 0.00 | 0.00 | 1.00 | $90,995 | $0 |
Roll Value History
| 2026 | N/A | N/A | N/A | N/A | N/A |
| 2025 | $103,955 | $310,995 | $0 | $414,950 | $414,950 |
| 2024 | $99,183 | $300,000 | $0 | $399,183 | $399,183 |
| 2023 | $91,505 | $270,000 | $0 | $361,505 | $361,505 |
| 2022 | $86,167 | $250,000 | $0 | $336,167 | $336,167 |
| 2021 | $78,216 | $170,000 | $0 | $248,216 | $248,216 |
| 2020 | $78,299 | $150,000 | $0 | $228,299 | $228,299 |
| 2019 | $65,151 | $180,000 | $0 | $245,151 | $245,151 |
| 2018 | $66,818 | $170,000 | $0 | $236,818 | $236,818 |
| 2017 | $68,483 | $150,000 | $0 | $218,483 | $218,483 |
| 2016 | $55,041 | $120,000 | $0 | $175,041 | $175,041 |
| 2015 | $57,489 | $90,000 | $0 | $147,489 | $147,489 |
| 2014 | $59,122 | $90,000 | $0 | $149,122 | $149,122 |
| 2013 | $60,754 | $102,000 | $0 | $162,754 | $162,754 |
| 2012 | $75,446 | $102,000 | $0 | $177,446 | $177,446 |
| 2011 | $76,919 | $120,000 | $0 | $196,919 | $196,919 |
| 2010 | $75,927 | $120,000 | $0 | $195,927 | $195,927 |
| 2009 | $79,991 | $105,000 | $0 | $184,991 | $184,991 |
| 2008 | $82,290 | $115,200 | $0 | $197,490 | $197,490 |
| 2007 | $84,767 | $115,200 | $0 | $199,967 | $199,967 |
Deed and Sales History
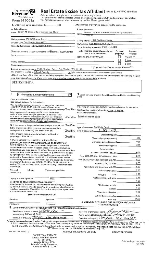
| 1 | 07/28/2022 | QCD | Quit Claim Deed | BLACK, BRENNAN L | BLACK, BRENNAN L | | | $0.00 | 53946 | |
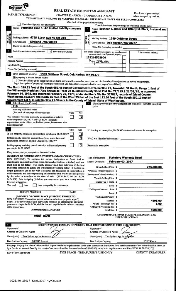
| 2 | 02/03/2017 | WD | Warranty Deed | VERISTONE FUND I LLC | BLACK, BRENNAN L | | | $275,000.00 | 28017 | 4416730 |
| 3 | 07/12/2016 | TRUSTEED | Trustee's Deed | STROWBRIDGE, JEFF | VERISTONE FUND I LLC | | | $169,783.00 | 25197 | 4403026 |
| 4 | 08/03/2015 | TRUSTEED | Trustee's Deed | WIED, JANET | STROWBRIDGE, JEFF | | | $0.00 | 21246 | 4385430 |
| 5 | 03/03/2004 | WD | Warranty Deed | SANCHEZ, OLIVER L ELAM JR | WIED, JANET | | | $163,000.00 | 41083 | 4094796 |
| 6 | 02/28/2000 | OTHER | Other - Misc. Documents | ELAM JR, OLIVER L | SANCHEZ, OLIVER L ELAM JR | | | $135,500.00 | 708 | 0 |
| 7 | 02/28/2000 | WD | Warranty Deed | SANCHEZ, RICHARD A | ELAM JR, OLIVER L | | | $135,500.00 | 708 | 20003643 |
| 8 | 04/01/1993 | WD | Warranty Deed | SANCHEZ, RICHARD A | SANCHEZ, RICHARD A | | | $94,500.00 | 31351 | 93006955 |
| 9 | 04/01/1992 | OTHER | Other - Misc. Documents | LEWIS, WILLIAM N | SANCHEZ, RICHARD A | | | $64,500.00 | 31582 | 0 |
| 10 | 07/01/1990 | WD | Warranty Deed | WESTGATE, MOBILE H | LEWIS, WILLIAM N | | | $24,900.00 | 4389 | 90014497 |
| 11 | 07/01/1984 | WD | Warranty Deed | WALDEN, STEPHEN & | WESTGATE, MOBILE H | | | $17,500.00 | 42256 | 84001443 |
| 12 | 09/01/1983 | EZ | Easement | WALDEN, STEPHEN & | WALDEN, STEPHEN & | | | $0.00 | 60305 | 414769 |
Payout Agreement
| No payout information available.. |