Property
Account |
| Property ID: | 509783 | Abbreviated Legal Description: | BG SWCR GL4 N526' S62*E387 .85' S35*E45' S47*W461.62' N89*W40.38' TPB FR 437-1770 (LOT 4 SP 79-175 AF#364329) |
| Geographic ID: | R23034-425-1450 | Agent Code: | |
| Type: | Real | | |
| Tax Area: | 312 - APPRAISER-Cpvl Schl Dist, outside Cpvl, improved, greater than 1 acre | Land Use Code | 11 |
| Open Space: | N | DFL | N |
| Historic Property: | N | Remodel Property: | N |
| Multi-Family Redevelopment: | N | | |
| Township: | 30 | Section: | 34 |
| Range: | R2 |
Location |
| Address: | 1324 CALVIN CT GREENBANK, WA 98253 | Mapsco: | |
| Neighborhood: | Cycle 3 | Map ID: | 442 |
| Neighborhood CD: | 3 |
Owner |
| Name: | SAUL, MARGARET G. | Owner ID: | 306891 |
| Mailing Address: | 1324 CALVIN CT GREENBANK, WA 98253 | % Ownership: | 100.0000000000% |
| | | Exemptions: | |
Taxes and Assessment Details
Values
| (+) Improvement Homesite Value: | + | $0 | |
| (+) Improvement Non-Homesite Value: | + | $559,317 | |
| (+) Land Homesite Value: | + | $0 | |
| (+) Land Non-Homesite Value: | + | $380,000 | |
| (+) Curr Use (HS): | + | $0 | $0 |
| (+) Curr Use (NHS): | + | $0 | $0 |
| | | -------------------------- | |
| (=) Market Value: | = | $939,317 | |
| (–) Productivity Loss: | – | $0 | |
| | | -------------------------- | |
| (=) Subtotal: | = | $939,317 | |
| (+) Senior Appraised Value: | + | $0 | |
| (+) Non-Senior Appraised Value: | + | $939,317 | |
| | | -------------------------- | |
| (=) Total Appraised Value: | = | $939,317 | |
| (–) Senior Exemption Loss: | – | $0 | |
| (–) Exemption Loss: | – | $0 | |
| | | -------------------------- | |
| (=) Taxable Value: | = | $939,317 | |
Taxing Jurisdiction
| Owner: | SAUL, MARGARET G. | | |
| % Ownership: | 100.0000000000% | | |
| Total Value: | $939,317 | | |
| Tax Area: | 312 - APPRAISER-Cpvl Schl Dist, outside Cpvl, improved, greater than 1 acre |
| CF | Conservation Futures | 0.0313996660 | $939,317 | $939,317 | $29.49 | | |
| CEM2 | Cemetery #2 | 0.0092609791 | $939,317 | $939,317 | $8.70 | | |
| FIRE5 | Fire & Rescue Dist #5 C Whidbey GEN | 1.1892169230 | $939,317 | $939,317 | $1,117.05 | | |
| FIRE5BOND | Fire & Rescue Dist #5 C Whidbey BOND | 0.1394359503 | $939,317 | $939,317 | $130.97 | | |
| HOBOND | Hospital BOND | 0.1893405597 | $939,317 | $939,317 | $177.85 | | |
| HOGEN | Hospital GEN | 0.3848777722 | $939,317 | $939,317 | $361.52 | | |
| CE | County Current Expense | 0.3674210519 | $939,317 | $939,317 | $345.12 | | |
| CR | County Roads | 0.4614296361 | $939,317 | $939,317 | $433.43 | | |
| ISLANDEMS | Hospital GEN (EMS) | 0.4952018576 | $939,317 | $939,317 | $465.15 | | |
| LIB | Library Sno-Isle GEN | 0.3039084203 | $939,317 | $939,317 | $285.47 | | |
| LIBCAP | Library Sno-Isle BOND (Cap Fac Imp Area) | 0.0528562629 | $939,317 | $939,317 | $49.65 | | |
| POCOUP | Port of Coupeville GEN | 0.1065226063 | $939,317 | $939,317 | $100.06 | | |
| POCOUPIDD | Port of Coupeville IDD | 0.3353038577 | $939,317 | $939,317 | $314.96 | | |
| COUPSDTECH | School 204 CP (TECH) | 0.1215123397 | $939,317 | $939,317 | $114.14 | | |
| SCH204MO | School 204 Enrichment | 0.6416662518 | $939,317 | $939,317 | $602.73 | | |
| ST | State School | 1.4761226122 | $939,317 | $939,317 | $1,386.55 | | |
| ST2 | State School Part 2 | 0.7953803475 | $939,317 | $939,317 | $747.11 | | |
| | Total Tax Rate: | 7.1008570943 | | | | | |
| | | | | Taxes w/Current Exemptions: | $6,669.95 | | |
| | | | | Taxes w/o Exemptions: | $6,669.95 | | |
Improvement / Building
| Improvement #1: | RESIDENTIAL | State Code: | Y | 3456.0 sqft | Value: | $559,317 |
| Bathrooms: | 3.5 | Bedrooms: | 4 | | Ceiling: | DRYWALL PAINTED | Exterior Wall/Cover: | PLY/HARDBOARD T-111 | | Floor Covering: | HARDWOOD/CARP 60-40 | Floor Structure: | WOOD W/SUBFLOOR | | Foundation: | CONCRETE | Heating: | FHA GAS | | Interior Finish: | DRYWALL PAINT | Plumbing Fixture Cnt: | 17 | | Roof Slope: | 6" IN 12" | Roof Structure/Cover: | CJ ASPHALT |
|
| | Type | Description | Class CD | Sub Class CD | Year Built | Area |
| | BAS | BASE/MAIN FLOOR | 4 | 0 | 1993 | 2084.0 |
| | OP2 | OPEN PORCH W/STEPS | 4 | 0 | 1993 | 38.0 |
| | OP4 | OPEN PORCH W/CEILING-ROOF | 4 | 0 | 1993 | 35.0 |
| | AGR | ATTACHED GARAGE | 4 | 0 | 1993 | 621.0 |
| | OWP | OPEN WOOD PORCH W/STEPS | 4 | 0 | 1993 | 32.0 |
| | OWP | OPEN WOOD PORCH W/STEPS | 4 | 0 | 1993 | 359.0 |
| | DWN | DOWNSTAIRS LIVING AREA | 4 | 0 | 1993 | 1372.0 |
| | DGR | DETACHED GARAGE | 4 | 0 | 1993 | 900.0 |
Sketch
Property Image
Land
| 1 | 18 | AC (02.01-03.00) | 0.0000 | 0.00 | 0.00 | 0.00 | 1.00 | $380,000 | $0 |
Roll Value History
| 2026 | N/A | N/A | N/A | N/A | N/A |
| 2025 | $559,317 | $380,000 | $0 | $939,317 | $939,317 |
| 2024 | $566,286 | $360,000 | $0 | $926,286 | $926,286 |
| 2023 | $573,255 | $330,000 | $0 | $903,255 | $903,255 |
| 2022 | $525,400 | $280,000 | $0 | $805,400 | $805,400 |
| 2021 | $462,355 | $220,000 | $0 | $682,355 | $682,355 |
| 2020 | $450,906 | $200,000 | $0 | $650,906 | $650,906 |
| 2019 | $344,405 | $260,000 | $0 | $604,405 | $604,405 |
| 2018 | $345,397 | $200,000 | $0 | $545,397 | $545,397 |
| 2017 | $347,380 | $165,000 | $0 | $512,380 | $512,380 |
| 2016 | $351,350 | $165,000 | $0 | $516,350 | $516,350 |
| 2015 | $355,320 | $150,000 | $0 | $505,320 | $505,320 |
| 2014 | $359,288 | $150,000 | $0 | $509,288 | $509,288 |
| 2013 | $407,381 | $150,000 | $0 | $557,381 | $557,381 |
| 2012 | $411,851 | $148,750 | $0 | $560,601 | $560,601 |
| 2011 | $416,319 | $175,000 | $0 | $591,319 | $591,319 |
| 2010 | $429,019 | $175,000 | $0 | $604,019 | $604,019 |
| 2009 | $447,586 | $200,000 | $0 | $647,586 | $647,586 |
| 2008 | $454,058 | $200,000 | $0 | $654,058 | $654,058 |
| 2007 | $426,249 | $200,000 | $0 | $626,249 | $626,249 |
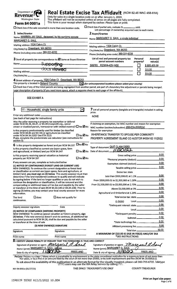
Deed and Sales History
| 1 | 11/30/2022 | QCD | Quit Claim Deed | SAUL, WARREN J | SAUL, MARGARET G. | | | $0.00 | 55302 | 4554470 |
| 2 | 03/01/1999 | WD | Warranty Deed | HITT, JOHN E | SAUL, WARREN J | | | $320,000.00 | 90783 | 99005515 |
| 3 | 02/01/1993 | QCD | Quit Claim Deed | HITT, JOHN E | HITT, JOHN E | | | $0.00 | 30631 | 93003335 |
| 4 | 02/01/1993 | QCD | Quit Claim Deed | HITT, JOHN E | HITT, JOHN E | | | $0.00 | 30632 | 93003336 |
| 5 | 04/01/1992 | QCD | Quit Claim Deed | HITT, JOHN E | HITT, JOHN E | | | $0.00 | 21288 | 92006255 |
| 6 | 03/01/1992 | WD | Warranty Deed | VANDERSTOEP, EDWARD E | HITT, JOHN E | | | $75,000.00 | 21287 | 92006253 |
| 7 | 08/01/1991 | QCD | Quit Claim Deed | BROWN, CHARLES S | VANDERSTOEP, EDWARD E | | | $0.00 | 12972 | 91012616 |
| 8 | 04/01/1991 | WD | Warranty Deed | ANDERSON, FRED | BROWN, CHARLES S | | | $48,900.00 | 11373 | 91005861 |
| 9 | 01/01/1981 | EXECUTORD | Executor Deed | HONEYMOON, BAY I | ANDERSON, FRED | | | $26,000.00 | 10156 | 378542 |
| 10 | 03/01/1979 | EXECUTORD | Executor Deed | Unknown | HONEYMOON, BAY I | | | $50,000.00 | 91129 | 349324 |
Payout Agreement
| No payout information available.. |