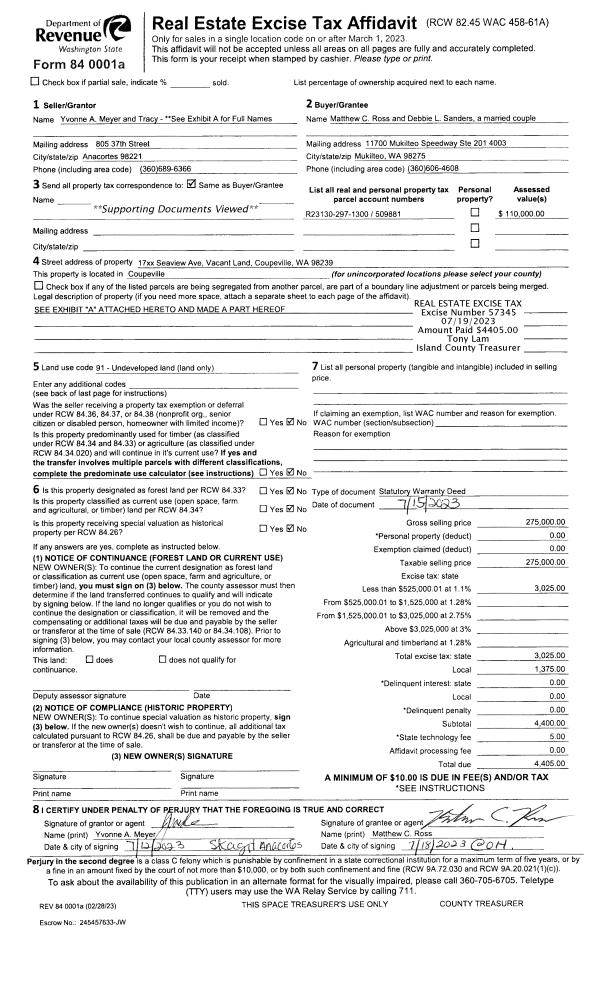
Property
Account |
| Property ID: | 509881 | Abbreviated Legal Description: | S420' OF GL2 LY NELY OF FOLL DESC LN: BG SECR OF GL2 N ALG ELN 95' TPB NWLY TP ON NLN OF S420' OF GL2 280'WLY OF NECR OF SD S420' OF GL2 TGW SUB EZ FR 290-1100 (LOT C SP 79-222 AF#403820) DRAINFIELD LOC 287-1000 AF#85013679 REVOC EZ AF#86012899 |
| Geographic ID: | R23130-297-1300 | Agent Code: | |
| Type: | Real | | |
| Tax Area: | 319 - APPRAISER-Cpvl Schl Dist, outside Cpvl, vacant & 50 acres or less | Land Use Code | 91 |
| Open Space: | N | DFL | N |
| Historic Property: | N | Remodel Property: | N |
| Multi-Family Redevelopment: | N | | |
| Township: | 31 | Section: | 30 |
| Range: | R2 |
Location |
| Address: | | Mapsco: | |
| Neighborhood: | Cycle 2 | Map ID: | 522 |
| Neighborhood CD: | 2 |
Owner |
| Name: | ROSS, MATTHEW C | Owner ID: | 309353 |
| Mailing Address: | DEBBIE L SANDERS 11700 MUKILTEO SPEEDWAY STE 201 4003 MUKILTEO, WA 98275 | % Ownership: | 100.0000000000% |
| | | Exemptions: | |
Taxes and Assessment Details
Values
| (+) Improvement Homesite Value: | + | $0 | |
| (+) Improvement Non-Homesite Value: | + | $0 | |
| (+) Land Homesite Value: | + | $0 | |
| (+) Land Non-Homesite Value: | + | $247,110 | |
| (+) Curr Use (HS): | + | $0 | $0 |
| (+) Curr Use (NHS): | + | $0 | $0 |
| | | -------------------------- | |
| (=) Market Value: | = | $247,110 | |
| (–) Productivity Loss: | – | $0 | |
| | | -------------------------- | |
| (=) Subtotal: | = | $247,110 | |
| (+) Senior Appraised Value: | + | $0 | |
| (+) Non-Senior Appraised Value: | + | $247,110 | |
| | | -------------------------- | |
| (=) Total Appraised Value: | = | $247,110 | |
| (–) Senior Exemption Loss: | – | $0 | |
| (–) Exemption Loss: | – | $0 | |
| | | -------------------------- | |
| (=) Taxable Value: | = | $247,110 | |
Taxing Jurisdiction
| Owner: | ROSS, MATTHEW C | | |
| % Ownership: | 100.0000000000% | | |
| Total Value: | $247,110 | | |
| Tax Area: | 319 - APPRAISER-Cpvl Schl Dist, outside Cpvl, vacant & 50 acres or less |
| CF | Conservation Futures | 0.0313996660 | $247,110 | $247,110 | $7.76 | | |
| CEM2 | Cemetery #2 | 0.0092609791 | $247,110 | $247,110 | $2.29 | | |
| HOBOND | Hospital BOND | 0.1893405597 | $247,110 | $247,110 | $46.79 | | |
| HOGEN | Hospital GEN | 0.3848777722 | $247,110 | $247,110 | $95.11 | | |
| CE | County Current Expense | 0.3674210519 | $247,110 | $247,110 | $90.79 | | |
| CR | County Roads | 0.4614296361 | $247,110 | $247,110 | $114.02 | | |
| ISLANDEMS | Hospital GEN (EMS) | 0.4952018576 | $247,110 | $247,110 | $122.37 | | |
| LIB | Library Sno-Isle GEN | 0.3039084203 | $247,110 | $247,110 | $75.10 | | |
| LIBCAP | Library Sno-Isle BOND (Cap Fac Imp Area) | 0.0528562629 | $247,110 | $247,110 | $13.06 | | |
| POCOUP | Port of Coupeville GEN | 0.1065226063 | $247,110 | $247,110 | $26.32 | | |
| POCOUPIDD | Port of Coupeville IDD | 0.3353038577 | $247,110 | $247,110 | $82.86 | | |
| COUPSDTECH | School 204 CP (TECH) | 0.1215123397 | $247,110 | $247,110 | $30.03 | | |
| SCH204MO | School 204 Enrichment | 0.6416662518 | $247,110 | $247,110 | $158.56 | | |
| ST | State School | 1.4761226122 | $247,110 | $247,110 | $364.76 | | |
| ST2 | State School Part 2 | 0.7953803475 | $247,110 | $247,110 | $196.55 | | |
| | Total Tax Rate: | 5.7722042210 | | | | | |
| | | | | Taxes w/Current Exemptions: | $1,426.37 | | |
| | | | | Taxes w/o Exemptions: | $1,426.37 | | |
Improvement / Building
Sketch
| No sketches available for this property. |
Property Image
Land
| 1 | 91 | UNDEVELOPED LAND-METES AND BOUNDS | 1.0400 | 45302.40 | 0.00 | 0.00 | 1.00 | $247,110 | $0 |
Roll Value History
| 2026 | N/A | N/A | N/A | N/A | N/A |
| 2025 | $0 | $247,110 | $0 | $247,110 | $247,110 |
| 2024 | $0 | $230,000 | $0 | $230,000 | $230,000 |
| 2023 | $0 | $110,000 | $0 | $110,000 | $110,000 |
| 2022 | $0 | $110,000 | $0 | $110,000 | $110,000 |
| 2021 | $0 | $100,000 | $0 | $100,000 | $100,000 |
| 2020 | $0 | $100,000 | $0 | $100,000 | $100,000 |
| 2019 | $0 | $115,000 | $0 | $115,000 | $115,000 |
| 2018 | $0 | $5,000 | $0 | $5,000 | $5,000 |
| 2017 | $0 | $5,000 | $0 | $5,000 | $5,000 |
| 2016 | $0 | $5,000 | $0 | $5,000 | $5,000 |
| 2015 | $0 | $5,000 | $0 | $5,000 | $5,000 |
| 2014 | $0 | $5,000 | $0 | $5,000 | $5,000 |
| 2013 | $0 | $4,000 | $0 | $4,000 | $4,000 |
| 2012 | $0 | $4,000 | $0 | $4,000 | $4,000 |
| 2011 | $0 | $8,400 | $0 | $8,400 | $8,400 |
| 2010 | $0 | $8,400 | $0 | $8,400 | $8,400 |
| 2009 | $0 | $9,000 | $0 | $9,000 | $9,000 |
| 2008 | $0 | $7,683 | $0 | $7,683 | $7,683 |
| 2007 | $0 | $7,683 | $0 | $7,683 | $7,683 |
Deed and Sales History
| 1 | 07/15/2023 | WD | Warranty Deed | SMITH TTEE, TRACY L | ROSS, MATTHEW C | | | $275,000.00 | 57345 | 4562427 |
| 2 | 04/01/2023 | QCD | Quit Claim Deed | COPELAND TTEE, CLINTON CHARLES | SMITH TTEE, TRACY L | | | $0.00 | 56470 | 4559061 |
| 3 | 08/11/2018 | QCD | Quit Claim Deed | COPELAND, CLINTON C | COPELAND TTEE, CLINTON CHARLES | | | $0.00 | 35498 | 4450043 |
| 4 | 04/01/1992 | WD | Warranty Deed | FOWLER, RALPH | COPELAND, CLINTON C | | | $7,000.00 | 21549 | 92007464 |
| 5 | 05/01/1981 | TRUSTEED | Trustee's Deed | HOVIS, WATSON B | FOWLER, RALPH | | | $10,650.00 | 11422 | 382839 |
| 6 | 01/01/1900 | OTHER | Other - Misc. Documents | Unknown | HOVIS, WATSON B | | | $0.00 | 0 | 0 |
Payout Agreement
| No payout information available.. |