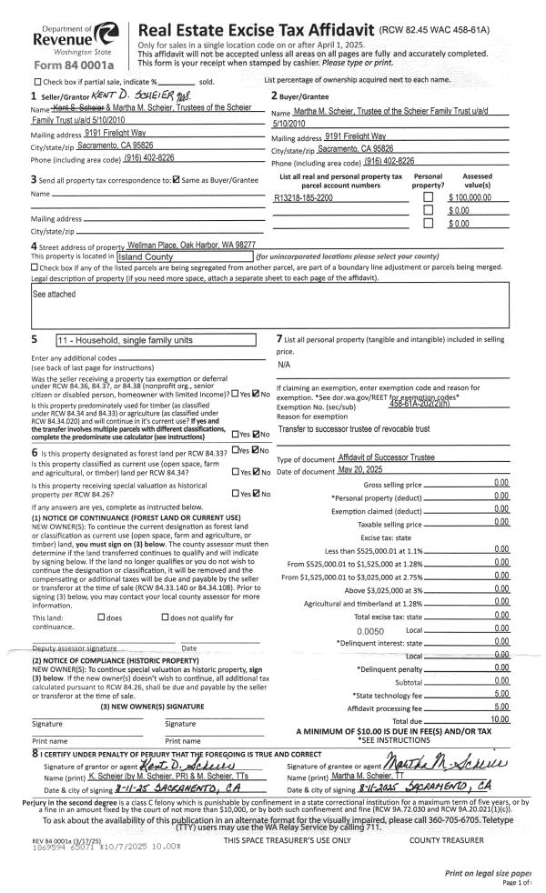
Property
Account |
| Property ID: | 510021 | Abbreviated Legal Description: | BG SWCR NE SW N895.93' N89*E780' S140' TPB S425.92 N89*E192.45' N312.96' S89*W 15' N35*W136.57' S89*W100' TPB TGW SUB EZ FR 194-2290 (LOT 3 SP 79-91) |
| Geographic ID: | R13218-185-2200 | Agent Code: | |
| Type: | Real | | |
| Tax Area: | 119 - APPRAISER-OH Schl Dist, outside OH, vacant & 50 acres or less | Land Use Code | 91 |
| Open Space: | N | DFL | N |
| Historic Property: | N | Remodel Property: | N |
| Multi-Family Redevelopment: | N | | |
| Township: | 32 | Section: | 18 |
| Range: | R1 |
Location |
| Address: | | Mapsco: | |
| Neighborhood: | Cycle 1 | Map ID: | 137 |
| Neighborhood CD: | 1 |
Owner |
| Name: | SCHEIER TTEE, KENT D | Owner ID: | 305213 |
| Mailing Address: | MARTHA M. SCHEIER 9191 FIRELIGHT WAY SACRAMENTO, CA 95826 | % Ownership: | 100.0000000000% |
| | | Exemptions: | |
Taxes and Assessment Details
Values
| (+) Improvement Homesite Value: | + | $0 | |
| (+) Improvement Non-Homesite Value: | + | $0 | |
| (+) Land Homesite Value: | + | $0 | |
| (+) Land Non-Homesite Value: | + | $100,000 | |
| (+) Curr Use (HS): | + | $0 | $0 |
| (+) Curr Use (NHS): | + | $0 | $0 |
| | | -------------------------- | |
| (=) Market Value: | = | $100,000 | |
| (–) Productivity Loss: | – | $0 | |
| | | -------------------------- | |
| (=) Subtotal: | = | $100,000 | |
| (+) Senior Appraised Value: | + | $0 | |
| (+) Non-Senior Appraised Value: | + | $100,000 | |
| | | -------------------------- | |
| (=) Total Appraised Value: | = | $100,000 | |
| (–) Senior Exemption Loss: | – | $0 | |
| (–) Exemption Loss: | – | $0 | |
| | | -------------------------- | |
| (=) Taxable Value: | = | $100,000 | |
Taxing Jurisdiction
| Owner: | SCHEIER TTEE, KENT D | | |
| % Ownership: | 100.0000000000% | | |
| Total Value: | $100,000 | | |
| Tax Area: | 119 - APPRAISER-OH Schl Dist, outside OH, vacant & 50 acres or less |
| CF | Conservation Futures | 0.0313996660 | $100,000 | $100,000 | $3.14 | | |
| CEM1 | Cemetery #1 | 0.0040018856 | $100,000 | $100,000 | $0.40 | | |
| HOBOND | Hospital BOND | 0.1893405597 | $100,000 | $100,000 | $18.93 | | |
| HOGEN | Hospital GEN | 0.3848777722 | $100,000 | $100,000 | $38.49 | | |
| CE | County Current Expense | 0.3674210519 | $100,000 | $100,000 | $36.74 | | |
| CR | County Roads | 0.4614296361 | $100,000 | $100,000 | $46.14 | | |
| ISLANDEMS | Hospital GEN (EMS) | 0.4952018576 | $100,000 | $100,000 | $49.52 | | |
| LIB | Library Sno-Isle GEN | 0.3039084203 | $100,000 | $100,000 | $30.39 | | |
| NWHIDPRMT | P & R N Whidbey GEN | 0.1990272349 | $100,000 | $100,000 | $19.90 | | |
| SCH201MO | School 201 Enrichment | 2.3851112745 | $100,000 | $100,000 | $238.51 | | |
| ST | State School | 1.4761226122 | $100,000 | $100,000 | $147.61 | | |
| ST2 | State School Part 2 | 0.7953803475 | $100,000 | $100,000 | $79.54 | | |
| | Total Tax Rate: | 7.0932223185 | | | | | |
| | | | | Taxes w/Current Exemptions: | $709.31 | | |
| | | | | Taxes w/o Exemptions: | $709.31 | | |
Improvement / Building
Sketch
| No sketches available for this property. |
Property Image
Land
| 1 | 17 | AC (01.01-02.00) | 0.0000 | 81892.80 | 0.00 | 0.00 | 1.00 | $100,000 | $0 |
Roll Value History
| 2026 | N/A | N/A | N/A | N/A | N/A |
| 2025 | $0 | $100,000 | $0 | $100,000 | $100,000 |
| 2024 | $0 | $100,000 | $0 | $100,000 | $100,000 |
| 2023 | $0 | $80,000 | $0 | $80,000 | $80,000 |
| 2022 | $0 | $80,000 | $0 | $80,000 | $80,000 |
| 2021 | $0 | $80,000 | $0 | $80,000 | $80,000 |
| 2020 | $0 | $80,000 | $0 | $80,000 | $80,000 |
| 2019 | $0 | $120,000 | $0 | $120,000 | $120,000 |
| 2018 | $0 | $75,000 | $0 | $75,000 | $75,000 |
| 2017 | $0 | $75,000 | $0 | $75,000 | $75,000 |
| 2016 | $0 | $75,000 | $0 | $75,000 | $75,000 |
| 2015 | $0 | $75,000 | $0 | $75,000 | $75,000 |
| 2014 | $0 | $55,200 | $0 | $55,200 | $55,200 |
| 2013 | $0 | $55,200 | $0 | $55,200 | $55,200 |
| 2012 | $0 | $55,200 | $0 | $55,200 | $55,200 |
| 2011 | $0 | $55,200 | $0 | $55,200 | $55,200 |
| 2010 | $0 | $55,200 | $0 | $55,200 | $55,200 |
| 2009 | $0 | $64,300 | $0 | $64,300 | $64,300 |
| 2008 | $0 | $68,005 | $0 | $68,005 | $68,005 |
| 2007 | $0 | $68,005 | $0 | $68,005 | $68,005 |
Deed and Sales History
| 1 | 05/20/2025 | OTHER | Other - Misc. Documents | SCHEIER TTEE, KENT D | SCHEIER FAMILY TRUST | | | $0.00 | 65071 | 4591911 |
| 2 | 04/21/2022 | WD | Warranty Deed | SCHEIER, KENT D / MARTHA M | SCHEIER TTEE, KENT D | | | $0.00 | 53947 | 4548864 |
| 3 | 09/01/1991 | WD | Warranty Deed | RONHAAR, J J | SCHEIER, KENT D | | | $25,000.00 | 13392 | 91014441 |
| 4 | 05/01/1978 | OTHER | Other - Misc. Documents | Unknown | RONHAAR, J J | | | $13,500.00 | 82409 | 333476 |
Payout Agreement
| No payout information available.. |