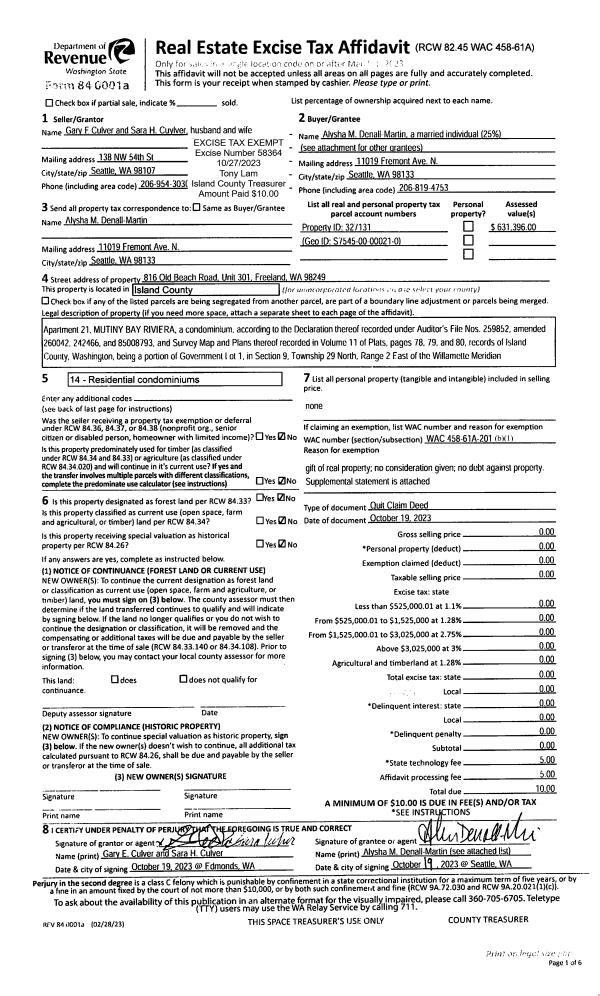
Property
Account |
| Property ID: | 510780 | Abbreviated Legal Description: | S150' OF N/2 N/2 W/2 SW NW & S/2 E/2 N/2 N/2 W/2 SW NW FR 3700190 3700500 |
| Geographic ID: | R23101-370-0400 | Agent Code: | |
| Type: | Real | | |
| Tax Area: | 512 - APPRAISER-Stan/Cam Schl Dist, improved, greater than 1 acre | Land Use Code | 11 |
| Open Space: | N | DFL | N |
| Historic Property: | N | Remodel Property: | N |
| Multi-Family Redevelopment: | N | | |
| Township: | 31 | Section: | 01 |
| Range: | R2 |
Location |
| Address: | 117 S CAMANO RIDGE RD CAMANO ISLAND, WA 98282 | Mapsco: | |
| Neighborhood: | Cycle 5 | Map ID: | 451 |
| Neighborhood CD: | 5 |
Owner |
| Name: | RUSTAND, MATTHEW A. | Owner ID: | 310270 |
| Mailing Address: | 328 SW CAMANO DR CAMANO ISLAND, WA 98282 | % Ownership: | 100.0000000000% |
| | | Exemptions: | |
Taxes and Assessment Details
Values
| (+) Improvement Homesite Value: | + | $0 | |
| (+) Improvement Non-Homesite Value: | + | $301,691 | |
| (+) Land Homesite Value: | + | $0 | |
| (+) Land Non-Homesite Value: | + | $300,000 | |
| (+) Curr Use (HS): | + | $0 | $0 |
| (+) Curr Use (NHS): | + | $0 | $0 |
| | | -------------------------- | |
| (=) Market Value: | = | $601,691 | |
| (–) Productivity Loss: | – | $0 | |
| | | -------------------------- | |
| (=) Subtotal: | = | $601,691 | |
| (+) Senior Appraised Value: | + | $0 | |
| (+) Non-Senior Appraised Value: | + | $601,691 | |
| | | -------------------------- | |
| (=) Total Appraised Value: | = | $601,691 | |
| (–) Senior Exemption Loss: | – | $0 | |
| (–) Exemption Loss: | – | $0 | |
| | | -------------------------- | |
| (=) Taxable Value: | = | $601,691 | |
Taxing Jurisdiction
| Owner: | RUSTAND, MATTHEW A. | | |
| % Ownership: | 100.0000000000% | | |
| Total Value: | $601,691 | | |
| Tax Area: | 512 - APPRAISER-Stan/Cam Schl Dist, improved, greater than 1 acre |
| CF | Conservation Futures | 0.0313996660 | $601,691 | $601,691 | $18.89 | | |
| EMS1 | Fire & Rescue Dist #1 Camano GEN (EMS) | 0.4998471806 | $601,691 | $601,691 | $300.75 | | |
| FIRE1 | Fire & Rescue Dist #1 Camano GEN | 1.2496603404 | $601,691 | $601,691 | $751.91 | | |
| FIRE1BOND | Fire & Rescue Dist #1 Camano BOND | 0.1630371212 | $601,691 | $601,691 | $98.10 | | |
| CE | County Current Expense | 0.3674210519 | $601,691 | $601,691 | $221.07 | | |
| CR | County Roads | 0.4614296361 | $601,691 | $601,691 | $277.64 | | |
| LIB | Library Sno-Isle GEN | 0.3039084203 | $601,691 | $601,691 | $182.86 | | |
| SCH205_401 | School 205-401 Enrichment | 1.3697998934 | $601,691 | $601,691 | $824.20 | | |
| SCH205BOND | School 205-401 BOND | 0.9354199323 | $601,691 | $601,691 | $562.83 | | |
| ST | State School | 1.4761226122 | $601,691 | $601,691 | $888.17 | | |
| ST2 | State School Part 2 | 0.7953803475 | $601,691 | $601,691 | $478.57 | | |
| | Total Tax Rate: | 7.6534262019 | | | | | |
| | | | | Taxes w/Current Exemptions: | $4,604.99 | | |
| | | | | Taxes w/o Exemptions: | $4,604.99 | | |
Improvement / Building
| Improvement #1: | RESIDENTIAL | State Code: | Y | 1242.0 sqft | Value: | $301,691 |
| Bathrooms: | 2 | Bedrooms: | 2 | | Ceiling: | DRYWALL PAINTED | Exterior Wall/Cover: | CEMENT FIBER | | Floor Covering: | HARDWOOD/CARP 20-80 | Floor Structure: | WOOD W/SUBFLOOR | | Foundation: | CONCRETE | Heating: | FHA GAS | | Interior Finish: | DRYWALL PAINT | Plumbing Fixture Cnt: | 9 | | Roof Slope: | 5" IN 12" | Roof Structure/Cover: | CJ ASPHALT |
|
| | Type | Description | Class CD | Sub Class CD | Year Built | Area |
| | BAS | BASE/MAIN FLOOR | 3 | 0 | 2016 | 1242.0 |
| | AGR | ATTACHED GARAGE | 3 | 0 | 2016 | 440.0 |
| | CPD | OPEN CARPORT DIRT FLOOR | 3 | 0 | 2016 | 360.0 |
| | UTY | STORAGE/UTILITY | 3 | 0 | 2016 | 312.0 |
| | OP4 | OPEN PORCH W/CEILING-ROOF | 3 | 0 | 2016 | 66.0 |
| | OWP | OPEN WOOD PORCH W/STEPS | 3 | 0 | 2016 | 580.0 |
| | OP2 | OPEN PORCH W/STEPS | 3 | 0 | 2016 | 88.0 |
Sketch
Property Image
Land
| 1 | 18 | AC (02.01-03.00) | 0.0000 | 0.00 | 0.00 | 0.00 | 1.00 | $300,000 | $0 |
Roll Value History
| 2026 | N/A | N/A | N/A | N/A | N/A |
| 2025 | $301,691 | $300,000 | $0 | $601,691 | $601,691 |
| 2024 | $304,143 | $280,000 | $0 | $584,143 | $584,143 |
| 2023 | $303,072 | $270,000 | $0 | $573,072 | $573,072 |
| 2022 | $276,631 | $260,000 | $0 | $536,631 | $121,555 |
| 2021 | $238,643 | $180,000 | $0 | $418,643 | $121,555 |
| 2020 | $231,226 | $150,000 | $0 | $381,226 | $121,555 |
| 2019 | $167,595 | $200,000 | $0 | $367,595 | $233,888 |
| 2018 | $168,026 | $150,000 | $0 | $318,026 | $233,888 |
| 2017 | $168,888 | $135,000 | $0 | $303,888 | $233,888 |
| 2016 | $77,826 | $100,000 | $0 | $177,826 | $177,826 |
| 2015 | $13,065 | $89,600 | $0 | $102,665 | $102,665 |
| 2014 | $13,166 | $89,600 | $0 | $102,766 | $102,766 |
| 2013 | $13,267 | $89,600 | $0 | $102,867 | $102,867 |
| 2012 | $13,367 | $89,600 | $0 | $102,967 | $102,967 |
| 2011 | $13,468 | $112,000 | $0 | $125,468 | $125,468 |
| 2010 | $11,300 | $112,000 | $0 | $123,300 | $123,300 |
| 2009 | $11,542 | $135,000 | $0 | $146,542 | $146,542 |
| 2008 | $11,566 | $134,000 | $0 | $145,566 | $145,566 |
| 2007 | $11,592 | $130,000 | $0 | $141,592 | $141,592 |
Deed and Sales History
| 1 | 09/21/2023 | WD | Warranty Deed | BERG, DAVID J | RUSTAND, MATTHEW A. | | | $599,000.00 | 58081 | 4565085 |
| 2 | 05/13/2015 | WD | Warranty Deed | NASH, JAMIE A | BERG, DAVID J | | | $100,000.00 | 19590 | 4378619 |
| 3 | 03/25/2003 | WD | Warranty Deed | GAINES, ALETA R | NASH, JAMIE A | | | $88,000.00 | 31280 | 4052828 |
| 4 | 07/18/2001 | PRD | Personal Representatives Deed | GAINES, JAMES P | GAINES, ALETA R | | | $0.00 | 12722 | 20037622 |
| 5 | 01/01/1900 | OTHER | Other - Misc. Documents | Unknown | GAINES, JAMES P | | | $0.00 | 0 | 0 |
Payout Agreement
| No payout information available.. |