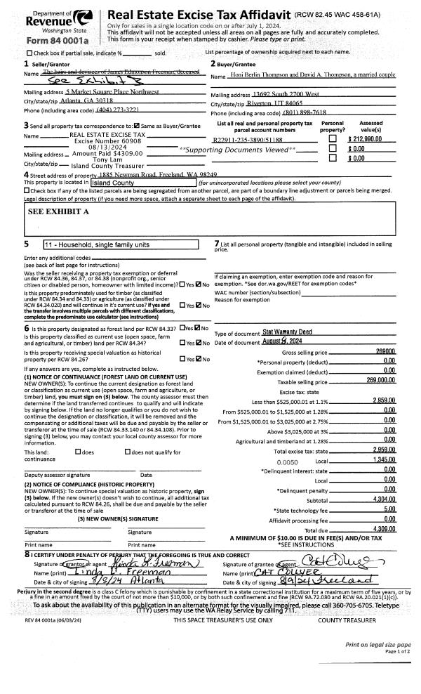
Property
Account |
| Property ID: | 51188 | Abbreviated Legal Description: | 10 - E/2 NE NW SE EX RD ALSO W30' OF NW NE SE LY NLY OF CO RD |
| Geographic ID: | R22911-235-3890 | Agent Code: | |
| Type: | Real | | |
| Tax Area: | 762 - APPRAISER-S Whid Schl Dist, Special District, improved, greater than 1 acre | Land Use Code | 11 |
| Open Space: | N | DFL | N |
| Historic Property: | N | Remodel Property: | N |
| Multi-Family Redevelopment: | N | | |
| Township: | 29 | Section: | 11 |
| Range: | R2 |
Location |
| Address: | 1885 NEWMAN RD FREELAND, WA 98249 | Mapsco: | |
| Neighborhood: | Cycle 3 | Map ID: | 314 |
| Neighborhood CD: | 3 |
Owner |
| Name: | THOMPSON, HONI BERLIN | Owner ID: | 313467 |
| Mailing Address: | DAVID A THOMPSON 13692 SOUTH 2700 WEST RIVERTON, UT 84065 | % Ownership: | 100.0000000000% |
| | | Exemptions: | |
Taxes and Assessment Details
Values
| (+) Improvement Homesite Value: | + | $0 | |
| (+) Improvement Non-Homesite Value: | + | $12,990 | |
| (+) Land Homesite Value: | + | $0 | |
| (+) Land Non-Homesite Value: | + | $210,000 | |
| (+) Curr Use (HS): | + | $0 | $0 |
| (+) Curr Use (NHS): | + | $0 | $0 |
| | | -------------------------- | |
| (=) Market Value: | = | $222,990 | |
| (–) Productivity Loss: | – | $0 | |
| | | -------------------------- | |
| (=) Subtotal: | = | $222,990 | |
| (+) Senior Appraised Value: | + | $0 | |
| (+) Non-Senior Appraised Value: | + | $222,990 | |
| | | -------------------------- | |
| (=) Total Appraised Value: | = | $222,990 | |
| (–) Senior Exemption Loss: | – | $0 | |
| (–) Exemption Loss: | – | $0 | |
| | | -------------------------- | |
| (=) Taxable Value: | = | $222,990 | |
Taxing Jurisdiction
| Owner: | THOMPSON, HONI BERLIN | | |
| % Ownership: | 100.0000000000% | | |
| Total Value: | $222,990 | | |
| Tax Area: | 762 - APPRAISER-S Whid Schl Dist, Special District, improved, greater than 1 acre |
| CF | Conservation Futures | 0.0313996660 | $222,990 | $222,990 | $7.00 | | |
| FIRE3 | Fire & Rescue Dist #3 S Whidbey GEN | 1.2130821753 | $222,990 | $222,990 | $270.51 | | |
| HOBOND | Hospital BOND | 0.1893405597 | $222,990 | $222,990 | $42.22 | | |
| HOGEN | Hospital GEN | 0.3848777722 | $222,990 | $222,990 | $85.82 | | |
| CE | County Current Expense | 0.3674210519 | $222,990 | $222,990 | $81.93 | | |
| CR | County Roads | 0.4614296361 | $222,990 | $222,990 | $102.89 | | |
| ISLANDEMS | Hospital GEN (EMS) | 0.4952018576 | $222,990 | $222,990 | $110.43 | | |
| LIB | Library Sno-Isle GEN | 0.3039084203 | $222,990 | $222,990 | $67.77 | | |
| PORTWHID | Port of S Whidbey GEN | 0.1086004714 | $222,990 | $222,990 | $24.22 | | |
| SCH206BOND | School 206 BOND | 0.5960237832 | $222,990 | $222,990 | $132.91 | | |
| SCH206CAP | School 206 CP | 0.3066144020 | $222,990 | $222,990 | $68.37 | | |
| SCH206MO | School 206 Enrichment | 0.4808755445 | $222,990 | $222,990 | $107.23 | | |
| ST | State School | 1.4761226122 | $222,990 | $222,990 | $329.16 | | |
| ST2 | State School Part 2 | 0.7953803475 | $222,990 | $222,990 | $177.36 | | |
| SWHIDPRBD | P & R S Whidbey BOND | 0.0144185398 | $222,990 | $222,990 | $3.22 | | |
| SWHIDPRBD3 | P & R S Whidbey BOND3 | 0.1483535547 | $222,990 | $222,990 | $33.08 | | |
| SWHIDPRMT | P & R S Whidbey GEN | 0.4600000000 | $222,990 | $222,990 | $102.58 | | |
| | Total Tax Rate: | 7.8330503944 | | | | | |
| | | | | Taxes w/Current Exemptions: | $1,746.70 | | |
| | | | | Taxes w/o Exemptions: | $1,746.70 | | |
Improvement / Building
| Improvement #1: | RESIDENTIAL | State Code: | Y | 0.0 sqft | Value: | $12,990 |
Sketch
Property Image
Land
| 1 | 54 | WASTE LAND | 1.0000 | 43560.00 | 0.00 | 0.00 | 1.00 | $0 | $0 |
| 2 | 32 | AC (03.01-09.99) | 4.3600 | 0.00 | 0.00 | 0.00 | 1.00 | $210,000 | $0 |
Roll Value History
| 2026 | N/A | N/A | N/A | N/A | N/A |
| 2025 | $12,990 | $210,000 | $0 | $222,990 | $222,990 |
| 2024 | $12,990 | $200,000 | $0 | $212,990 | $212,990 |
| 2023 | $12,990 | $180,000 | $0 | $192,990 | $192,990 |
| 2022 | $12,990 | $170,000 | $0 | $182,990 | $182,990 |
| 2021 | $12,990 | $135,000 | $0 | $147,990 | $147,990 |
| 2020 | $12,990 | $135,000 | $0 | $147,990 | $147,990 |
| 2019 | $10,100 | $135,000 | $0 | $145,100 | $145,100 |
| 2018 | $10,100 | $130,000 | $0 | $140,100 | $140,100 |
| 2017 | $10,100 | $140,000 | $0 | $150,100 | $150,100 |
| 2016 | $10,100 | $140,000 | $0 | $150,100 | $150,100 |
| 2015 | $10,100 | $117,730 | $0 | $127,830 | $127,830 |
| 2014 | $10,100 | $117,730 | $0 | $127,830 | $127,830 |
| 2013 | $10,496 | $117,730 | $0 | $128,226 | $128,226 |
| 2012 | $10,496 | $117,730 | $0 | $128,226 | $128,226 |
| 2011 | $10,496 | $117,730 | $0 | $128,226 | $51,290 |
| 2010 | $11,336 | $117,730 | $0 | $129,066 | $51,626 |
| 2009 | $11,537 | $170,050 | $0 | $181,587 | $72,635 |
| 2008 | $11,739 | $244,170 | $0 | $255,909 | $102,364 |
| 2007 | $12,404 | $91,077 | $0 | $103,481 | $103,481 |
Deed and Sales History
| 1 | 08/08/2024 | WD | Warranty Deed | FREEMAN, JAMES E | THOMPSON, HONI BERLIN | | | $269,000.00 | 60908 | 4575719 |
| 2 | 03/01/1993 | QCD | Quit Claim Deed | STEINER, NEDINE R | FREEMAN, JAMES E | | | $0.00 | 30916 | 93004809 |
| 3 | 08/01/1983 | WD | Warranty Deed | DENIGRIS, ROBERT | STEINER, NEDINE R | | | $48,000.00 | 32285 | 413506 |
| 4 | 08/01/1982 | TRUSTEED | Trustee's Deed | RIMSTAD, MATTY | DENIGRIS, ROBERT | | | $25,000.00 | 21969 | 399585 |
| 5 | 01/01/1900 | OTHER | Other - Misc. Documents | Unknown | RIMSTAD, MATTY | | | $0.00 | 0 | 0 |
Payout Agreement
| No payout information available.. |