Property
Account |
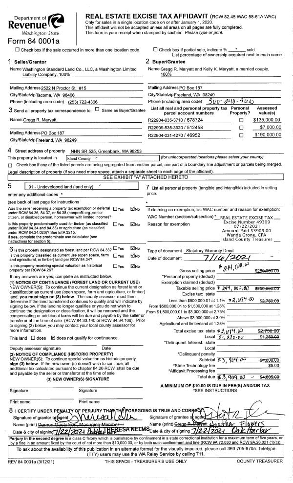
| Property ID: | 512458 | Abbreviated Legal Description: | REPLACES 545-3920 72 - N/2 N/2 NW NE LY E OF HWY EX PT TO ST HWY |
| Geographic ID: | R22909-535-3920 | Agent Code: | |
| Type: | Real | | |
| Tax Area: | 719 - APPRAISER-S Whid Schl Dist, outside Langley, vacant & 50 acres or less | Land Use Code | 91 |
| Open Space: | N | DFL | N |
| Historic Property: | N | Remodel Property: | N |
| Multi-Family Redevelopment: | N | | |
| Township: | 29 | Section: | 09 |
| Range: | R2 |
Location |
| Address: | | Mapsco: | |
| Neighborhood: | Cycle 3 | Map ID: | 308 |
| Neighborhood CD: | 3 |
Owner |
| Name: | MARYATT, GREG R | Owner ID: | 300331 |
| Mailing Address: | KELLY K MARYATT PO BOX 187 FREELAND, WA 98249 | % Ownership: | 100.0000000000% |
| | | Exemptions: | |
Taxes and Assessment Details
Values
| (+) Improvement Homesite Value: | + | N/A | |
| (+) Improvement Non-Homesite Value: | + | N/A | |
| (+) Land Homesite Value: | + | N/A | |
| (+) Land Non-Homesite Value: | + | N/A | Ag / Timber Use Value |
| (+) Curr Use (HS): | + | N/A | N/A |
| (+) Curr Use (NHS): | + | N/A | N/A |
| | | -------------------------- | |
| (=) Market Value: | = | N/A | |
| (–) Productivity Loss: | – | N/A | |
| | | -------------------------- | |
| (=) Subtotal: | = | N/A | |
| (+) Senior Appraised Value: | + | N/A | |
| (+) Non-Senior Appraised Value: | + | N/A | |
| | | -------------------------- | |
| (=) Total Appraised Value: | = | N/A | |
| (–) Senior Exemption Loss: | – | N/A | |
| (–) Exemption Loss: | – | N/A | |
| | | -------------------------- | |
| (=) Taxable Value: | = | N/A | |
Taxing Jurisdiction
| Owner: | MARYATT, GREG R | | |
| % Ownership: | 100.0000000000% | | |
| Total Value: | N/A | | |
| Tax Area: | 719 - APPRAISER-S Whid Schl Dist, outside Langley, vacant & 50 acres or less |
| CF | Conservation Futures | N/A | N/A | N/A | N/A | | |
| WCD | Whidbey Conservation District | N/A | N/A | N/A | N/A | | |
| HOBOND | Hospital BOND | N/A | N/A | N/A | N/A | | |
| HOGEN | Hospital GEN | N/A | N/A | N/A | N/A | | |
| CE | County Current Expense | N/A | N/A | N/A | N/A | | |
| CR | County Roads | N/A | N/A | N/A | N/A | | |
| ISLANDEMS | Hospital GEN (EMS) | N/A | N/A | N/A | N/A | | |
| LIB | Library Sno-Isle GEN | N/A | N/A | N/A | N/A | | |
| PORTWHID | Port of S Whidbey GEN | N/A | N/A | N/A | N/A | | |
| SCH206CAP | School 206 CP | N/A | N/A | N/A | N/A | | |
| SCH206MO | School 206 Enrichment | N/A | N/A | N/A | N/A | | |
| ST | State School | N/A | N/A | N/A | N/A | | |
| ST2 | State School Part 2 | N/A | N/A | N/A | N/A | | |
| SWHIDPRBD | P & R S Whidbey BOND | N/A | N/A | N/A | N/A | | |
| SWHIDPRBD2 | P & R S Whidbey BOND2 | N/A | N/A | N/A | N/A | | |
| SWHIDPRMT | P & R S Whidbey GEN | N/A | N/A | N/A | N/A | | |
| | Total Tax Rate: | N/A | | | | | |
| | | | | Taxes w/Current Exemptions: | N/A | | |
| | | | | Taxes w/o Exemptions: | N/A | | |
Improvement / Building
Sketch
| No sketches available for this property. |
Property Image
Land
| 1 | 91 | UNDEVELOPED LAND-METES AND BOUNDS | 0.2700 | 11761.20 | 0.00 | 0.00 | 1.00 | N/A | N/A |
Roll Value History
| 2026 | N/A | N/A | N/A | N/A | N/A |
| 2025 | $0 | $12,000 | $0 | $12,000 | $12,000 |
| 2024 | $0 | $12,000 | $0 | $12,000 | $12,000 |
| 2023 | $0 | $9,000 | $0 | $9,000 | $9,000 |
| 2022 | $0 | $9,000 | $0 | $9,000 | $9,000 |
| 2021 | $0 | $7,000 | $0 | $7,000 | $7,000 |
| 2020 | $0 | $7,000 | $0 | $7,000 | $7,000 |
| 2019 | $0 | $5,000 | $0 | $5,000 | $5,000 |
| 2018 | $0 | $5,000 | $0 | $5,000 | $5,000 |
| 2017 | $0 | $5,000 | $0 | $5,000 | $5,000 |
| 2016 | $0 | $5,000 | $0 | $5,000 | $5,000 |
| 2015 | $0 | $5,000 | $0 | $5,000 | $5,000 |
| 2014 | $0 | $5,000 | $0 | $5,000 | $5,000 |
| 2013 | $0 | $23,100 | $0 | $23,100 | $23,100 |
| 2012 | $0 | $23,100 | $0 | $23,100 | $23,100 |
| 2011 | $0 | $23,100 | $0 | $23,100 | $23,100 |
| 2010 | $0 | $23,100 | $0 | $23,100 | $23,100 |
| 2009 | $0 | $24,750 | $0 | $24,750 | $24,750 |
| 2008 | $0 | $28,050 | $0 | $28,050 | $28,050 |
| 2007 | $0 | $10,808 | $0 | $10,808 | $10,808 |
Deed and Sales History
| 1 | 07/16/2021 | WD | Warranty Deed | WASHINGTON STANDARD LAND CO., LLC | MARYATT, GREG R | | | $244,000.00 | 49309 | 4525178 |
|   | |
| 2 | 03/29/2021 | WD | Warranty Deed | SAHAIDA, GEORGE | WASHINGTON STANDARD LAND CO., LLC | | | $225,000.00 | 47603 | 4515320 |
|   | |
| 3 | 02/01/1991 | QCD | Quit Claim Deed | SAHAIDA, GEORGE | SAHAIDA, GEORGE & | | | $0.00 | 11161 | 91004917 |
| 4 | 01/01/1991 | WD | Warranty Deed | SAHAIDA, GEORGE | SAHAIDA, GEORGE | | | $950.00 | 10373 | 91001666 |
| 5 | 01/01/1900 | OTHER | Other - Misc. Documents | Unknown | SAHAIDA, GEORGE | | | $0.00 | 0 | 0 |
Payout Agreement
| No payout information available.. |