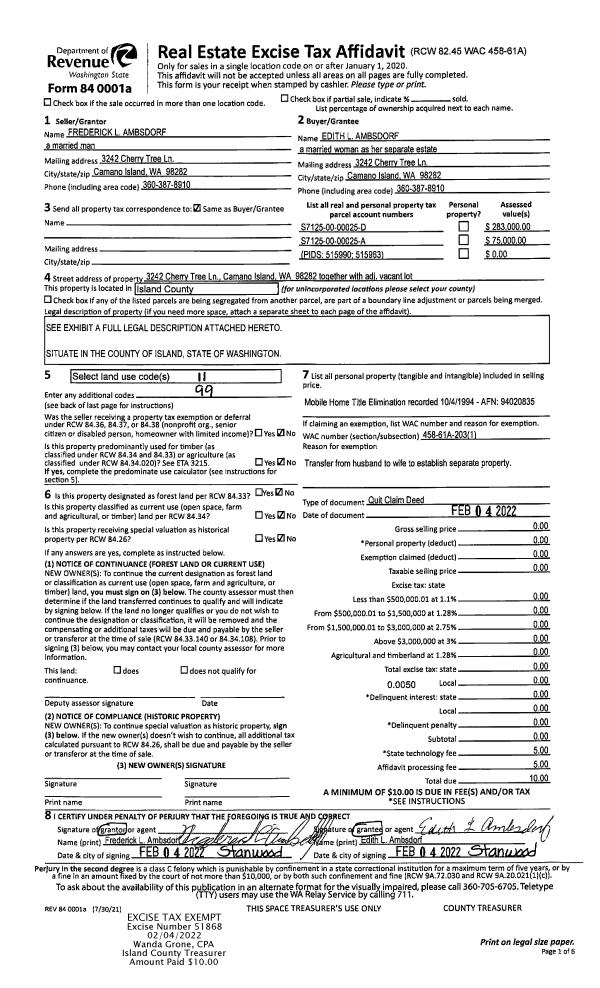
Property
Account |
| Property ID: | 515963 | Abbreviated Legal Description: | HILNDS CAM TR 25-A:BG SECR L25 S88*W 15'TPB S88*W301.42' N1*W332 .20' N88*E301.28'TPB S1*E 332.11'TPB TGW & SUBJ TO EZ SP 79-108 FR7125 00 00025 0 |
| Geographic ID: | S7125-00-00025-A | Agent Code: | |
| Type: | Real | | |
| Tax Area: | 549 - APPRAISER-Stan/Cam Schl Dist, Special Dist, vacant & 50 acres or less | Land Use Code | 99 |
| Open Space: | N | DFL | N |
| Historic Property: | N | Remodel Property: | N |
| Multi-Family Redevelopment: | N | | |
| Township: | | Section: | |
| Range: | |
Location |
| Address: | | Mapsco: | |
| Neighborhood: | 58NofTamarackS | Map ID: | 875 |
| Neighborhood CD: | 58RntamS |
Owner |
| Name: | AMBSDORF, EDITH L | Owner ID: | 302868 |
| Mailing Address: | 3242 CHERRY TREE LN CAMANO ISLAND, WA 98282 | % Ownership: | 100.0000000000% |
| | | Exemptions: | |
Taxes and Assessment Details
Values
| (+) Improvement Homesite Value: | + | $0 | |
| (+) Improvement Non-Homesite Value: | + | $0 | |
| (+) Land Homesite Value: | + | $0 | |
| (+) Land Non-Homesite Value: | + | $150,000 | |
| (+) Curr Use (HS): | + | $0 | $0 |
| (+) Curr Use (NHS): | + | $0 | $0 |
| | | -------------------------- | |
| (=) Market Value: | = | $150,000 | |
| (–) Productivity Loss: | – | $0 | |
| | | -------------------------- | |
| (=) Subtotal: | = | $150,000 | |
| (+) Senior Appraised Value: | + | $0 | |
| (+) Non-Senior Appraised Value: | + | $150,000 | |
| | | -------------------------- | |
| (=) Total Appraised Value: | = | $150,000 | |
| (–) Senior Exemption Loss: | – | $0 | |
| (–) Exemption Loss: | – | $0 | |
| | | -------------------------- | |
| (=) Taxable Value: | = | $150,000 | |
Taxing Jurisdiction
| Owner: | AMBSDORF, EDITH L | | |
| % Ownership: | 100.0000000000% | | |
| Total Value: | $150,000 | | |
| Tax Area: | 549 - APPRAISER-Stan/Cam Schl Dist, Special Dist, vacant & 50 acres or less |
| CF | Conservation Futures | 0.0313996660 | $150,000 | $150,000 | $4.71 | | |
| EMS1 | Fire & Rescue Dist #1 Camano GEN (EMS) | 0.4998471806 | $150,000 | $150,000 | $74.98 | | |
| CE | County Current Expense | 0.3674210519 | $150,000 | $150,000 | $55.11 | | |
| CR | County Roads | 0.4614296361 | $150,000 | $150,000 | $69.21 | | |
| LIB | Library Sno-Isle GEN | 0.3039084203 | $150,000 | $150,000 | $45.59 | | |
| SCH205_401 | School 205-401 Enrichment | 1.3697998934 | $150,000 | $150,000 | $205.47 | | |
| SCH205BOND | School 205-401 BOND | 0.9354199323 | $150,000 | $150,000 | $140.31 | | |
| ST | State School | 1.4761226122 | $150,000 | $150,000 | $221.42 | | |
| ST2 | State School Part 2 | 0.7953803475 | $150,000 | $150,000 | $119.31 | | |
| | Total Tax Rate: | 6.2407287403 | | | | | |
| | | | | Taxes w/Current Exemptions: | $936.11 | | |
| | | | | Taxes w/o Exemptions: | $936.11 | | |
Improvement / Building
Sketch
| No sketches available for this property. |
Property Image
Land
| 1 | 18 | AC (02.01-03.00) | 2.2900 | 99752.40 | 0.00 | 0.00 | 1.00 | $150,000 | $0 |
Roll Value History
| 2026 | N/A | N/A | N/A | N/A | N/A |
| 2025 | $0 | $150,000 | $0 | $150,000 | $150,000 |
| 2024 | $0 | $130,000 | $0 | $130,000 | $130,000 |
| 2023 | $0 | $120,000 | $0 | $120,000 | $120,000 |
| 2022 | $0 | $90,000 | $0 | $90,000 | $90,000 |
| 2021 | $0 | $75,000 | $0 | $75,000 | $75,000 |
| 2020 | $0 | $65,000 | $0 | $65,000 | $65,000 |
| 2019 | $0 | $75,000 | $0 | $75,000 | $75,000 |
| 2018 | $0 | $65,000 | $0 | $65,000 | $65,000 |
| 2017 | $0 | $65,000 | $0 | $65,000 | $65,000 |
| 2016 | $0 | $50,000 | $0 | $50,000 | $50,000 |
| 2015 | $0 | $50,000 | $0 | $50,000 | $50,000 |
| 2014 | $0 | $50,000 | $0 | $50,000 | $50,000 |
| 2013 | $0 | $50,000 | $0 | $50,000 | $50,000 |
| 2012 | $0 | $55,800 | $0 | $55,800 | $55,800 |
| 2011 | $0 | $55,800 | $0 | $55,800 | $55,800 |
| 2010 | $0 | $55,800 | $0 | $55,800 | $55,800 |
| 2009 | $0 | $98,400 | $0 | $98,400 | $98,400 |
| 2008 | $0 | $71,280 | $0 | $71,280 | $71,280 |
| 2007 | $0 | $77,500 | $0 | $77,500 | $77,500 |
Deed and Sales History
| 1 | 02/04/2022 | QCD | Quit Claim Deed | AMBSDORF, FREDERICK L | AMBSDORF, EDITH L | | | $0.00 | 51868 | 4539176 |
| 2 | 02/01/1984 | REC | Real Estate Contract | POESCHEL, & S | AMBSDORF, FREDERICK L | | | $17,500.00 | 40511 | 421537 |
| 3 | 11/01/1978 | OTHER | Other - Misc. Documents | Unknown | POESCHEL, & S | | | $30,000.00 | 85534 | 342928 |
Payout Agreement
| No payout information available.. |