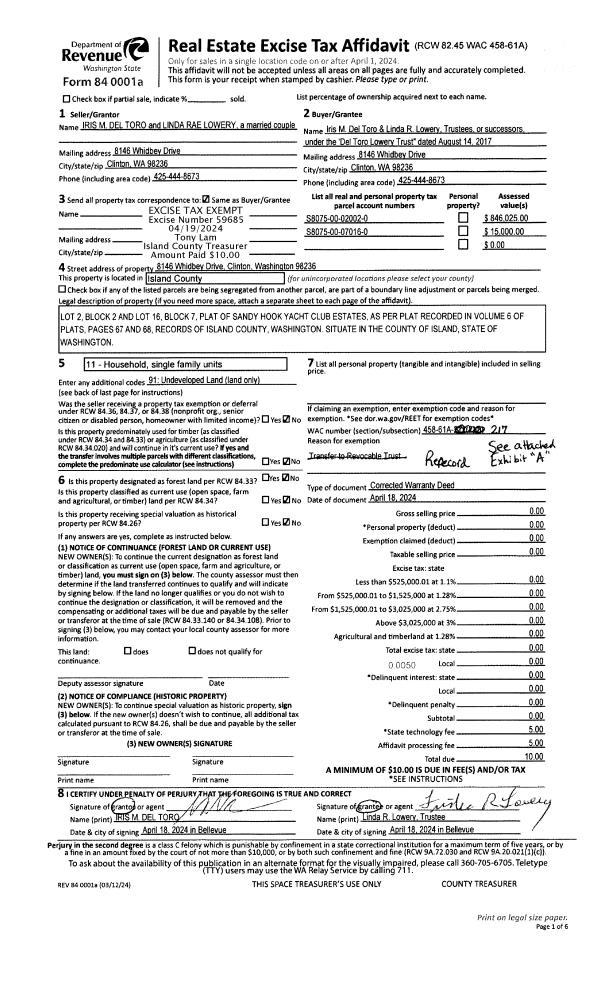
Property
Account |
| Property ID: | 516141 | Abbreviated Legal Description: | IN GL1: BG SECR LONG TR AF#143897 W ALG SLN SD TR 280' TPB N PARA/W WLN CO RD 80' TO SECR STEVENS TR AF#374727 N89*W30' TO SWCR STEVENS TR N1*W40' W PARA/W NLN SD GL1 20' S PARA/W WLN CO RD 40' W PARA/W NLN SD GL1 TO WLN GL1 SLY ALG SD WLN TO SWCR OF LONG |
| Geographic ID: | R32932-491-4260 | Agent Code: | |
| Type: | Real | | |
| Tax Area: | 712 - APPRAISER-S Whid Schl Dist, outside Langley, improved, greater than 1 acre | Land Use Code | 11 |
| Open Space: | N | DFL | N |
| Historic Property: | N | Remodel Property: | N |
| Multi-Family Redevelopment: | N | | |
| Township: | 29 | Section: | 32 |
| Range: | R3 |
Location |
| Address: | 6828 SILLS RD CLINTON, WA 98236 | Mapsco: | |
| Neighborhood: | Cycle 4 | Map ID: | 833 |
| Neighborhood CD: | 4 |
Owner |
| Name: | LINSENMAYER, KRISTI ANNE | Owner ID: | 314750 |
| Mailing Address: | 21 JEFFERSON WAY A102 KETCHIKAN, AK 99901 | % Ownership: | 100.0000000000% |
| | | Exemptions: | |
Taxes and Assessment Details
Values
| (+) Improvement Homesite Value: | + | N/A | |
| (+) Improvement Non-Homesite Value: | + | N/A | |
| (+) Land Homesite Value: | + | N/A | |
| (+) Land Non-Homesite Value: | + | N/A | Ag / Timber Use Value |
| (+) Curr Use (HS): | + | N/A | N/A |
| (+) Curr Use (NHS): | + | N/A | N/A |
| | | -------------------------- | |
| (=) Market Value: | = | N/A | |
| (–) Productivity Loss: | – | N/A | |
| | | -------------------------- | |
| (=) Subtotal: | = | N/A | |
| (+) Senior Appraised Value: | + | N/A | |
| (+) Non-Senior Appraised Value: | + | N/A | |
| | | -------------------------- | |
| (=) Total Appraised Value: | = | N/A | |
| (–) Senior Exemption Loss: | – | N/A | |
| (–) Exemption Loss: | – | N/A | |
| | | -------------------------- | |
| (=) Taxable Value: | = | N/A | |
Taxing Jurisdiction
| Owner: | LINSENMAYER, KRISTI ANNE | | |
| % Ownership: | 100.0000000000% | | |
| Total Value: | N/A | | |
| Tax Area: | 712 - APPRAISER-S Whid Schl Dist, outside Langley, improved, greater than 1 acre |
| CF | Conservation Futures | N/A | N/A | N/A | N/A | | |
| WCD | Whidbey Conservation District | N/A | N/A | N/A | N/A | | |
| FIRE3 | Fire & Rescue Dist #3 S Whidbey GEN | N/A | N/A | N/A | N/A | | |
| HOBOND | Hospital BOND | N/A | N/A | N/A | N/A | | |
| HOGEN | Hospital GEN | N/A | N/A | N/A | N/A | | |
| CE | County Current Expense | N/A | N/A | N/A | N/A | | |
| CR | County Roads | N/A | N/A | N/A | N/A | | |
| ISLANDEMS | Hospital GEN (EMS) | N/A | N/A | N/A | N/A | | |
| LIB | Library Sno-Isle GEN | N/A | N/A | N/A | N/A | | |
| PORTWHID | Port of S Whidbey GEN | N/A | N/A | N/A | N/A | | |
| SCH206CAP | School 206 CP | N/A | N/A | N/A | N/A | | |
| SCH206MO | School 206 Enrichment | N/A | N/A | N/A | N/A | | |
| ST | State School | N/A | N/A | N/A | N/A | | |
| ST2 | State School Part 2 | N/A | N/A | N/A | N/A | | |
| SWHIDPRBD | P & R S Whidbey BOND | N/A | N/A | N/A | N/A | | |
| SWHIDPRBD2 | P & R S Whidbey BOND2 | N/A | N/A | N/A | N/A | | |
| SWHIDPRMT | P & R S Whidbey GEN | N/A | N/A | N/A | N/A | | |
| | Total Tax Rate: | N/A | | | | | |
| | | | | Taxes w/Current Exemptions: | N/A | | |
| | | | | Taxes w/o Exemptions: | N/A | | |
Improvement / Building
| Improvement #1: | RESIDENTIAL | State Code: | Y | 1884.0 sqft | Value: | N/A |
| Bathrooms: | 2 | Bedrooms: | 2 | | Ceiling: | TONGUE & GROOVE | Exterior Wall/Cover: | CEMENT FIBER | | Floor Covering: | HARDWOOD/CARP 60-40 | Floor Structure: | WOOD W/SUBFLOOR | | Foundation: | CONCRETE | Heating: | RADIANT FLOOR | | Interior Finish: | DRYWALL PAINT | Plumbing Fixture Cnt: | 12 | | Roof Slope: | 18" IN 12" | Roof Structure/Cover: | BEAM ALUMINUM HEAVY |
|
| | Type | Description | Class CD | Sub Class CD | Year Built | Area |
| | BAS | BASE/MAIN FLOOR | 4 | 0 | 1963 | 1253.1 |
| | OP3 | OPEN PORCH W/ROOF | 4 | 0 | 1963 | 53.1 |
| | BIG | BUILT IN GARAGE | 4 | 0 | 1963 | 251.0 |
| | OWP | OPEN WOOD PORCH W/STEPS | 4 | 0 | 1963 | 160.0 |
| | UPH | HALF STORY | 4 | 0 | 1963 | 434.9 |
| | UPS | UPPER STORY | 4 | 0 | 1963 | 196.0 |
| | OP3 | OPEN PORCH W/ROOF | 4 | 0 | 1963 | 119.5 |
| | OWP | OPEN WOOD PORCH W/STEPS | 4 | 0 | 1963 | 367.9 |
| | OWP | OPEN WOOD PORCH W/STEPS | 4 | 0 | 1963 | 67.5 |
| | OP3 | OPEN PORCH W/ROOF | 4 | 0 | 1963 | 81.0 |
Sketch
Property Image
Land
| 1 | HB | HIGH BLUFF | 0.0000 | 0.00 | 54.50 | 0.00 | 1.00 | N/A | N/A |
Roll Value History
| 2026 | N/A | N/A | N/A | N/A | N/A |
| 2025 | $478,335 | $630,000 | $0 | $1,108,335 | $1,108,335 |
| 2024 | $415,536 | $590,000 | $0 | $1,005,536 | $1,005,536 |
| 2023 | $420,715 | $590,000 | $0 | $1,010,715 | $1,010,715 |
| 2022 | $385,649 | $540,000 | $0 | $925,649 | $925,649 |
| 2021 | $339,419 | $450,000 | $0 | $789,419 | $789,419 |
| 2020 | $322,757 | $400,000 | $0 | $722,757 | $722,757 |
| 2019 | $243,375 | $400,000 | $0 | $643,375 | $643,375 |
| 2018 | $244,125 | $350,000 | $0 | $594,125 | $594,125 |
| 2017 | $213,558 | $350,000 | $0 | $563,558 | $563,558 |
| 2016 | $216,162 | $350,000 | $0 | $566,162 | $566,162 |
| 2015 | $218,767 | $350,000 | $0 | $568,767 | $568,767 |
| 2014 | $168,674 | $350,000 | $0 | $518,674 | $518,674 |
| 2013 | $170,770 | $381,066 | $0 | $551,836 | $551,836 |
| 2012 | $172,870 | $381,066 | $0 | $553,936 | $553,936 |
| 2011 | $166,462 | $381,066 | $0 | $547,528 | $547,528 |
| 2010 | $179,028 | $381,066 | $0 | $560,094 | $560,094 |
| 2009 | $186,654 | $476,334 | $0 | $662,988 | $662,988 |
| 2008 | $120,363 | $476,334 | $0 | $596,697 | $596,697 |
| 2007 | $121,965 | $438,227 | $0 | $560,192 | $560,192 |
Deed and Sales History
| 1 | 05/29/2024 | WD | Warranty Deed | EPC HOLDINGS 1043 LLC | LINSENMAYER, KRISTI ANNE | | | $0.00 | 61992 | 4580075 |
| 2 | 05/29/2024 | WD | Warranty Deed | RICHARDSON, ANNABELLE L | EPC HOLDINGS 1043 LLC | | | $1,550,000.00 | 60140 | 4572920 |
|   | |
| 3 | 06/23/2017 | WD | Warranty Deed | RICHARDSON, ANNABELLE L | RICHARDSON, ANNABELLE L | | | $0.00 | 30353 | 4426965 |
| 4 | 06/23/2017 | WD | Warranty Deed | COPELAND, TOYAN B | RICHARDSON, ANNABELLE L | | | $645,000.00 | 30017 | 4425392 |
| 5 | 07/03/2000 | BLA | DNU - Boundary Line Adjustment | COPELAND, TOYAN B | COPELAND, TOYAN B | | | $0.00 | 68714 | 99028634 |
| 6 | 12/20/1999 | ESTSEPPROP | Establish Separate Property | COPELAND, TOYAN B | COPELAND, TOYAN B | | | $0.00 | 95146 | 99028635 |
| 7 | 12/09/1999 | ESTSEPPROP | Establish Separate Property | COPELAND, TOYAN B | COPELAND, TOYAN B | | | $0.00 | 95145 | 99028636 |
| 8 | 10/01/1996 | WD | Warranty Deed | MERCHANT, G B | COPELAND, TOYAN B | | | $219,832.00 | 63849 | 96018610 |
| 9 | 01/01/1900 | OTHER | Other - Misc. Documents | Unknown | MERCHANT, G B | | | $0.00 | 0 | 0 |
Payout Agreement
| No payout information available.. |