Property
Account |
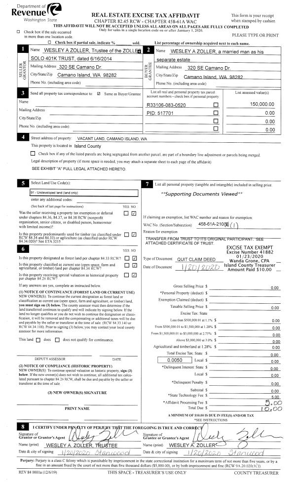
| Property ID: | 517701 | Abbreviated Legal Description: | 10.4400 Acres ins Section 06s Township 31s Range R3s EX PT TO IS CO AF#96007795 LOT B 077-21 AF#4528675;s |
| Geographic ID: | R33106-083-0520 | Agent Code: | |
| Type: | Real | | |
| Tax Area: | 592 - APPRAISER-Stan/Cam Schl Dist, Special Dist, improved, greater than 1 acre | Land Use Code | 11 |
| Open Space: | N | DFL | N |
| Historic Property: | N | Remodel Property: | N |
| Multi-Family Redevelopment: | N | | |
| Township: | 31 | Section: | 06 |
| Range: | R3 |
Location |
| Address: | 328 S EAST CAMANO DR CAMANO ISLAND, WA 98282 | Mapsco: | |
| Neighborhood: | Cycle 5 | Map ID: | 918 |
| Neighborhood CD: | 5 |
Owner |
| Name: | ZOLLER, WESLEY A | Owner ID: | 293281 |
| Mailing Address: | NANCY H ZOLLER 328 SE CAMANO DR CAMANO ISLAND, WA 98282 | % Ownership: | 100.0000000000% |
| | | Exemptions: | |
Taxes and Assessment Details
Values
| (+) Improvement Homesite Value: | + | $0 | |
| (+) Improvement Non-Homesite Value: | + | $251,233 | |
| (+) Land Homesite Value: | + | $0 | |
| (+) Land Non-Homesite Value: | + | $400,000 | |
| (+) Curr Use (HS): | + | $0 | $0 |
| (+) Curr Use (NHS): | + | $0 | $0 |
| | | -------------------------- | |
| (=) Market Value: | = | $651,233 | |
| (–) Productivity Loss: | – | $0 | |
| | | -------------------------- | |
| (=) Subtotal: | = | $651,233 | |
| (+) Senior Appraised Value: | + | $0 | |
| (+) Non-Senior Appraised Value: | + | $651,233 | |
| | | -------------------------- | |
| (=) Total Appraised Value: | = | $651,233 | |
| (–) Senior Exemption Loss: | – | $0 | |
| (–) Exemption Loss: | – | $0 | |
| | | -------------------------- | |
| (=) Taxable Value: | = | $651,233 | |
Taxing Jurisdiction
| Owner: | ZOLLER, WESLEY A | | |
| % Ownership: | 100.0000000000% | | |
| Total Value: | $651,233 | | |
| Tax Area: | 592 - APPRAISER-Stan/Cam Schl Dist, Special Dist, improved, greater than 1 acre |
| CF | Conservation Futures | 0.0313996660 | $651,233 | $651,233 | $20.45 | | |
| EMS1 | Fire & Rescue Dist #1 Camano GEN (EMS) | 0.4998471806 | $651,233 | $651,233 | $325.52 | | |
| FIRE1 | Fire & Rescue Dist #1 Camano GEN | 1.2496603404 | $651,233 | $651,233 | $813.82 | | |
| FIRE1BOND | Fire & Rescue Dist #1 Camano BOND | 0.1630371212 | $651,233 | $651,233 | $106.18 | | |
| CE | County Current Expense | 0.3674210519 | $651,233 | $651,233 | $239.28 | | |
| CR | County Roads | 0.4614296361 | $651,233 | $651,233 | $300.50 | | |
| LIB | Library Sno-Isle GEN | 0.3039084203 | $651,233 | $651,233 | $197.92 | | |
| SCH205_401 | School 205-401 Enrichment | 1.3697998934 | $651,233 | $651,233 | $892.06 | | |
| SCH205BOND | School 205-401 BOND | 0.9354199323 | $651,233 | $651,233 | $609.18 | | |
| ST | State School | 1.4761226122 | $651,233 | $651,233 | $961.30 | | |
| ST2 | State School Part 2 | 0.7953803475 | $651,233 | $651,233 | $517.98 | | |
| | Total Tax Rate: | 7.6534262019 | | | | | |
| | | | | Taxes w/Current Exemptions: | $4,984.19 | | |
| | | | | Taxes w/o Exemptions: | $4,984.19 | | |
Improvement / Building
| Improvement #1: | RESIDENTIAL | State Code: | Y | 1864.0 sqft | Value: | $199,393 |
| Bathrooms: | 3 | Bedrooms: | 2 | | Ceiling: | (NONE) | Exterior Wall/Cover: | CEMENT FIBER | | Floor Covering: | (NONE) | Floor Structure: | WOOD W/SUBFLOOR | | Foundation: | CONCRETE | Heating: | HEAT PUMP | | Interior Finish: | (NONE) | Plumbing Fixture Cnt: | 14 | | Roof Slope: | 5" IN 12" | Roof Structure/Cover: | BEAM ASPHALT |
|
| | Type | Description | Class CD | Sub Class CD | Year Built | Area |
| | BAS | BASE/MAIN FLOOR | 4 | 0 | 2023 | 1328.0 |
| | UPS | UPPER STORY | 4 | 0 | 2023 | 536.0 |
| | UB8 | BASEMENT UNFINISHED 8" | 4 | 0 | 2023 | 1328.0 |
| | OWP | OPEN WOOD PORCH W/STEPS | 4 | 0 | 2023 | 346.0 |
| | OWC | OPEN WOOD PORCH W/STEPS/ROOF/C | 4 | 0 | 2023 | 176.0 |
| Improvement #2: | RESIDENTIAL | State Code: | Y | 0.0 sqft | Value: | $51,840 |
Sketch
Property Image
Land
| 1 | 35 | AC (10.00-30.99) | 10.4400 | 454766.40 | 0.00 | 0.00 | 1.00 | $400,000 | $0 |
Roll Value History
| 2026 | N/A | N/A | N/A | N/A | N/A |
| 2025 | $251,233 | $400,000 | $0 | $651,233 | $651,233 |
| 2024 | $161,665 | $370,000 | $0 | $531,665 | $531,665 |
| 2023 | $61,999 | $350,000 | $0 | $411,999 | $411,999 |
| 2022 | $51,840 | $350,000 | $0 | $401,840 | $401,840 |
| 2021 | $35,000 | $260,000 | $0 | $295,000 | $295,000 |
| 2020 | $0 | $210,000 | $0 | $210,000 | $210,000 |
| 2019 | $0 | $210,000 | $0 | $210,000 | $210,000 |
| 2018 | $0 | $150,000 | $0 | $150,000 | $150,000 |
| 2017 | $0 | $150,000 | $0 | $150,000 | $150,000 |
| 2016 | $0 | $150,000 | $0 | $150,000 | $150,000 |
| 2015 | $0 | $100,000 | $0 | $100,000 | $100,000 |
| 2014 | $0 | $150,000 | $0 | $150,000 | $150,000 |
| 2013 | $0 | $141,480 | $0 | $141,480 | $141,480 |
| 2012 | $0 | $141,480 | $0 | $141,480 | $141,480 |
| 2011 | $0 | $141,480 | $0 | $141,480 | $141,480 |
| 2010 | $0 | $141,480 | $0 | $141,480 | $141,480 |
| 2009 | $0 | $170,280 | $0 | $170,280 | $170,280 |
| 2008 | $0 | $186,921 | $0 | $186,921 | $186,921 |
| 2007 | $0 | $162,540 | $0 | $162,540 | $162,540 |
Deed and Sales History
| 1 | 09/21/2021 | QCD | Quit Claim Deed | ZOLLER, WESLEY A | ZOLLER, WESLEY A | | | $0.00 | 50142 | 4529729 |
| 2 | 01/20/2020 | QCD | Quit Claim Deed | ZOLLER, WESLEY A | ZOLLER, WESLEY A | | | $0.00 | 41883 | 4479836 |
| 3 | 01/20/2020 | QCD | Quit Claim Deed | ZOLLER TRUSTEE, WESLEY A | ZOLLER, WESLEY A | | | $0.00 | 41882 | 4479835 |
| 4 | 07/21/2014 | WD | Warranty Deed | KIM, SUNG HEE | ZOLLER TRUSTEE, WESLEY A | | | $106,000.00 | 16171 | 4362974 |
| 5 | 10/12/2005 | WD | Warranty Deed | YUM TRUSTEE, TAI YONG | KIM, SUNG HEE | | | $162,000.00 | 55388 | 4152168 |
| 6 | 09/27/2001 | WD | Warranty Deed | YUM, TAI Y | YUM TRUSTEE, TAI YONG | | | $0.00 | 14637 | 4005175 |
| 7 | 03/01/1996 | QCD | Quit Claim Deed | YUM, TAI Y | YUM, TAI Y | | | $700.00 | 66936 | 96007795 |
| 8 | 11/01/1989 | WD | Warranty Deed | SIEGEL, HAROLD S | YUM, TAI Y | | | $35,000.00 | 95142 | 89016549 |
| 9 | 11/01/1981 | TRUSTEED | Trustee's Deed | WASHINGTON, LAND C | SIEGEL, HAROLD S | | | $39,000.00 | 13804 | 391227 |
| 10 | 01/01/1900 | OTHER | Other - Misc. Documents | Unknown | WASHINGTON, LAND C | | | $0.00 | 0 | 0 |
Payout Agreement
| No payout information available.. |