Property
Account |
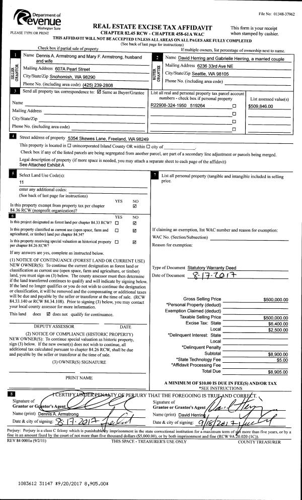
| Property ID: | 519264 | Abbreviated Legal Description: | REPLACES 195 3240 48 - IN GL 2 - TR 9 AS PER MAP REC 29M563 BG ELN GL2 & NLN RD N89*W134.01' N14*W 401.54' N30*W291.02' N89*W 185.41' TPB S30*E115.88' N89*W TO GL LN NWLY ALG GL LN TP N89*W FR TPB S89*E TPB |
| Geographic ID: | R22908-324-1950 | Agent Code: | |
| Type: | Real | | |
| Tax Area: | 710 - APPRAISER-S Whid Schl Dist, outside Langley, improved & 1 acre or less | Land Use Code | 11 |
| Open Space: | N | DFL | N |
| Historic Property: | N | Remodel Property: | N |
| Multi-Family Redevelopment: | N | | |
| Township: | 29 | Section: | 08 |
| Range: | R2 |
Location |
| Address: | 5354 SKEWES LN FREELAND, WA 98249 | Mapsco: | |
| Neighborhood: | Cycle 3 | Map ID: | 303 |
| Neighborhood CD: | 3 |
Owner |
| Name: | HERRING TTEE, DAVID W | Owner ID: | 315888 |
| Mailing Address: | GABRIELLE L HERRING TTEE PO BOX 1144 FREELAND, WA 98249 | % Ownership: | 100.0000000000% |
| | | Exemptions: | |
Taxes and Assessment Details
Values
| (+) Improvement Homesite Value: | + | $0 | |
| (+) Improvement Non-Homesite Value: | + | $411,517 | |
| (+) Land Homesite Value: | + | $0 | |
| (+) Land Non-Homesite Value: | + | $556,500 | |
| (+) Curr Use (HS): | + | $0 | $0 |
| (+) Curr Use (NHS): | + | $0 | $0 |
| | | -------------------------- | |
| (=) Market Value: | = | $968,017 | |
| (–) Productivity Loss: | – | $0 | |
| | | -------------------------- | |
| (=) Subtotal: | = | $968,017 | |
| (+) Senior Appraised Value: | + | $0 | |
| (+) Non-Senior Appraised Value: | + | $968,017 | |
| | | -------------------------- | |
| (=) Total Appraised Value: | = | $968,017 | |
| (–) Senior Exemption Loss: | – | $0 | |
| (–) Exemption Loss: | – | $0 | |
| | | -------------------------- | |
| (=) Taxable Value: | = | $968,017 | |
Taxing Jurisdiction
| Owner: | HERRING TTEE, DAVID W | | |
| % Ownership: | 100.0000000000% | | |
| Total Value: | $968,017 | | |
| Tax Area: | 710 - APPRAISER-S Whid Schl Dist, outside Langley, improved & 1 acre or less |
| CF | Conservation Futures | 0.0313996660 | $968,017 | $968,017 | $30.40 | | |
| FIRE3 | Fire & Rescue Dist #3 S Whidbey GEN | 1.2130821753 | $968,017 | $968,017 | $1,174.28 | | |
| HOBOND | Hospital BOND | 0.1893405597 | $968,017 | $968,017 | $183.28 | | |
| HOGEN | Hospital GEN | 0.3848777722 | $968,017 | $968,017 | $372.57 | | |
| CE | County Current Expense | 0.3674210519 | $968,017 | $968,017 | $355.67 | | |
| CR | County Roads | 0.4614296361 | $968,017 | $968,017 | $446.67 | | |
| ISLANDEMS | Hospital GEN (EMS) | 0.4952018576 | $968,017 | $968,017 | $479.36 | | |
| LIB | Library Sno-Isle GEN | 0.3039084203 | $968,017 | $968,017 | $294.19 | | |
| PORTWHID | Port of S Whidbey GEN | 0.1086004714 | $968,017 | $968,017 | $105.13 | | |
| SCH206BOND | School 206 BOND | 0.5960237832 | $968,017 | $968,017 | $576.96 | | |
| SCH206CAP | School 206 CP | 0.3066144020 | $968,017 | $968,017 | $296.81 | | |
| SCH206MO | School 206 Enrichment | 0.4808755445 | $968,017 | $968,017 | $465.50 | | |
| ST | State School | 1.4761226122 | $968,017 | $968,017 | $1,428.91 | | |
| ST2 | State School Part 2 | 0.7953803475 | $968,017 | $968,017 | $769.94 | | |
| SWHIDPRBD | P & R S Whidbey BOND | 0.0144185398 | $968,017 | $968,017 | $13.96 | | |
| SWHIDPRBD3 | P & R S Whidbey BOND3 | 0.1483535547 | $968,017 | $968,017 | $143.61 | | |
| SWHIDPRMT | P & R S Whidbey GEN | 0.4600000000 | $968,017 | $968,017 | $445.29 | | |
| | Total Tax Rate: | 7.8330503944 | | | | | |
| | | | | Taxes w/Current Exemptions: | $7,582.53 | | |
| | | | | Taxes w/o Exemptions: | $7,582.53 | | |
Improvement / Building
| Improvement #1: | RESIDENTIAL | State Code: | Y | 1803.0 sqft | Value: | $411,517 |
| Bathrooms: | 2 | Bedrooms: | 3 | | Ceiling: | DRYWALL PAINTED | Cooling: | HEAT PUMP/CONV/V | | Exterior Wall/Cover: | WOOD SIDING | Floor Covering: | HARDWOOD/CARP 20-80 | | Floor Structure: | WOOD W/SUBFLOOR | Foundation: | CONCRETE | | Interior Finish: | DRYWALL PAINT | Plumbing Fixture Cnt: | 11 | | Roof Slope: | 12" IN 12" | Roof Structure/Cover: | CJ ALUMINIUM HEAVY |
|
| | Type | Description | Class CD | Sub Class CD | Year Built | Area |
| | BAS | BASE/MAIN FLOOR | 4 | 0 | 1965 | 1803.0 |
| | ATF | ATTIC FINISHED | 4 | 0 | 1965 | 1726.0 |
| | UTY | STORAGE/UTILITY | 4 | 0 | 1965 | 252.0 |
| | OWC | OPEN WOOD PORCH W/STEPS/ROOF/C | 4 | 0 | 1965 | 321.0 |
| | UTY | STORAGE/UTILITY | 4 | 0 | 1965 | 864.0 |
| | OWP | OPEN WOOD PORCH W/STEPS | 4 | 0 | 1965 | 606.0 |
Sketch
Property Image
Land
| 1 | HB | HIGH BLUFF | 0.9800 | 42688.80 | 100.00 | 0.00 | 1.00 | $556,500 | $0 |
Roll Value History
| 2026 | N/A | N/A | N/A | N/A | N/A |
| 2025 | $411,517 | $556,500 | $0 | $968,017 | $968,017 |
| 2024 | $417,636 | $525,000 | $0 | $942,636 | $942,636 |
| 2023 | $423,756 | $500,000 | $0 | $923,756 | $923,756 |
| 2022 | $350,338 | $480,000 | $0 | $830,338 | $830,338 |
| 2021 | $308,978 | $400,000 | $0 | $708,978 | $708,978 |
| 2020 | $268,157 | $400,000 | $0 | $668,157 | $668,157 |
| 2019 | $155,959 | $500,000 | $0 | $655,959 | $655,959 |
| 2018 | $98,266 | $500,000 | $0 | $598,266 | $598,266 |
| 2017 | $167,228 | $500,000 | $0 | $667,228 | $667,228 |
| 2016 | $159,846 | $350,000 | $0 | $509,846 | $509,846 |
| 2015 | $162,404 | $350,000 | $0 | $512,404 | $512,404 |
| 2014 | $164,962 | $350,000 | $0 | $514,962 | $514,962 |
| 2013 | $175,727 | $385,825 | $0 | $561,552 | $561,552 |
| 2012 | $178,487 | $385,825 | $0 | $564,312 | $564,312 |
| 2011 | $181,244 | $385,825 | $0 | $567,069 | $567,069 |
| 2010 | $205,853 | $385,825 | $0 | $591,678 | $591,678 |
| 2009 | $212,305 | $463,732 | $0 | $676,037 | $676,037 |
| 2008 | $180,046 | $521,107 | $0 | $701,153 | $701,153 |
| 2007 | $160,596 | $521,107 | $0 | $681,703 | $681,703 |
Deed and Sales History
| 1 | 03/20/2025 | QCD | Quit Claim Deed | HERRING, DAVID | HERRING TTEE, DAVID W | | | $0.00 | 62892 | 4583547 |
| 2 | 08/17/2017 | WD | Warranty Deed | ARMSTRONG TRUSTEE, DENNIS ARTHUR | HERRING, DAVID | | | $500,000.00 | 31147 | 4430464 |
| 3 | 04/07/2008 | QCD | Quit Claim Deed | ARMSTRONG, DENNIS A | ARMSTRONG TTEE, MARY FRANCIS | | | $0.00 | 81105 | 4227768 |
| 4 | 05/01/1987 | WD | Warranty Deed | HOWELL, JOHN C | ARMSTRONG, DENNIS A | | | $111,500.00 | 71243 | 87006074 |
| 5 | 08/01/1982 | TRUSTEED | Trustee's Deed | EDWARDS, H R | HOWELL, JOHN C | | | $110,000.00 | 22074 | 400016 |
| 6 | 01/01/1900 | OTHER | Other - Misc. Documents | Unknown | EDWARDS, H R | | | $0.00 | 0 | 0 |
Payout Agreement
| No payout information available.. |