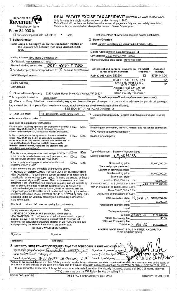
Property
Account |
| Property ID: | 523204 | Abbreviated Legal Description: | S83.33' OF N166.66' OF S768 .67' OF GL1 EX PT LY WLY OF CLN EZ DESC AF#172381 TGW & SUBJ TO EZ FR 064-4290 TR B SP 78-122 |
| Geographic ID: | R23430-063-4270 | Agent Code: | |
| Type: | Real | | |
| Tax Area: | 110 - APPRAISER-OH Schl Dist, outside OH, improved & 1 acre or less | Land Use Code | 11 |
| Open Space: | N | DFL | N |
| Historic Property: | N | Remodel Property: | N |
| Multi-Family Redevelopment: | N | | |
| Township: | 34 | Section: | 30 |
| Range: | R2 |
Location |
| Address: | 5230 ANGLERS HAVEN DR OAK HARBOR, WA 98277 | Mapsco: | |
| Neighborhood: | Cycle 6 | Map ID: | 666 |
| Neighborhood CD: | 6 |
Owner |
| Name: | LEMELSON, CAROLYN | Owner ID: | 303483 |
| Mailing Address: | 25954 LAKE CAVANAUGH RD MOUNT VERNON, WA 98274 | % Ownership: | 100.0000000000% |
| | | Exemptions: | |
Taxes and Assessment Details
Values
| (+) Improvement Homesite Value: | + | $0 | |
| (+) Improvement Non-Homesite Value: | + | $650,872 | |
| (+) Land Homesite Value: | + | $0 | |
| (+) Land Non-Homesite Value: | + | $490,000 | |
| (+) Curr Use (HS): | + | $0 | $0 |
| (+) Curr Use (NHS): | + | $0 | $0 |
| | | -------------------------- | |
| (=) Market Value: | = | $1,140,872 | |
| (–) Productivity Loss: | – | $0 | |
| | | -------------------------- | |
| (=) Subtotal: | = | $1,140,872 | |
| (+) Senior Appraised Value: | + | $0 | |
| (+) Non-Senior Appraised Value: | + | $1,140,872 | |
| | | -------------------------- | |
| (=) Total Appraised Value: | = | $1,140,872 | |
| (–) Senior Exemption Loss: | – | $0 | |
| (–) Exemption Loss: | – | $0 | |
| | | -------------------------- | |
| (=) Taxable Value: | = | $1,140,872 | |
Taxing Jurisdiction
| Owner: | LEMELSON, CAROLYN | | |
| % Ownership: | 100.0000000000% | | |
| Total Value: | $1,140,872 | | |
| Tax Area: | 110 - APPRAISER-OH Schl Dist, outside OH, improved & 1 acre or less |
| CF | Conservation Futures | 0.0313996660 | $1,140,872 | $1,140,872 | $35.82 | | |
| CEM1 | Cemetery #1 | 0.0040018856 | $1,140,872 | $1,140,872 | $4.57 | | |
| FIRE2 | Fire & Rescue Dist #2 N Whidbey GEN | 0.5381486274 | $1,140,872 | $1,140,872 | $613.96 | | |
| HOBOND | Hospital BOND | 0.1893405597 | $1,140,872 | $1,140,872 | $216.01 | | |
| HOGEN | Hospital GEN | 0.3848777722 | $1,140,872 | $1,140,872 | $439.10 | | |
| CE | County Current Expense | 0.3674210519 | $1,140,872 | $1,140,872 | $419.18 | | |
| CR | County Roads | 0.4614296361 | $1,140,872 | $1,140,872 | $526.43 | | |
| ISLANDEMS | Hospital GEN (EMS) | 0.4952018576 | $1,140,872 | $1,140,872 | $564.96 | | |
| LIB | Library Sno-Isle GEN | 0.3039084203 | $1,140,872 | $1,140,872 | $346.72 | | |
| NWHIDPRMT | P & R N Whidbey GEN | 0.1990272349 | $1,140,872 | $1,140,872 | $227.06 | | |
| SCH201MO | School 201 Enrichment | 2.3851112745 | $1,140,872 | $1,140,872 | $2,721.11 | | |
| ST | State School | 1.4761226122 | $1,140,872 | $1,140,872 | $1,684.07 | | |
| ST2 | State School Part 2 | 0.7953803475 | $1,140,872 | $1,140,872 | $907.43 | | |
| | Total Tax Rate: | 7.6313709459 | | | | | |
| | | | | Taxes w/Current Exemptions: | $8,706.42 | | |
| | | | | Taxes w/o Exemptions: | $8,706.42 | | |
Improvement / Building
| Improvement #1: | RESIDENTIAL | State Code: | Y | 3458.3 sqft | Value: | $650,872 |
| Bathrooms: | 2.5 | Bedrooms: | 3 | | Ceiling: | DRYWALL PAINTED | Exterior Wall/Cover: | WOOD SIDING | | Floor Covering: | HARDWOOD/CARP 20-80 | Floor Structure: | WOOD W/SUBFLOOR | | Foundation: | CONCRETE | Heating: | FHA GAS | | Interior Finish: | DRYWALL PAINT | Plumbing Fixture Cnt: | 15 | | Roof Slope: | 12" IN 12" | Roof Structure/Cover: | CJ ASPHALT |
|
| | Type | Description | Class CD | Sub Class CD | Year Built | Area |
| | BAS | BASE/MAIN FLOOR | 5 | 0 | 1996 | 2293.8 |
| | AGR | ATTACHED GARAGE | 5 | 0 | 1996 | 959.8 |
| | UTY | STORAGE/UTILITY | 5 | 0 | 1996 | 328.0 |
| | UTY | STORAGE/UTILITY | 5 | 0 | 1996 | 272.2 |
| | OWP | OPEN WOOD PORCH W/STEPS | 5 | 0 | 1996 | 843.2 |
| | OWP | OPEN WOOD PORCH W/STEPS | 5 | 0 | 1996 | 636.5 |
| | OWC | OPEN WOOD PORCH W/STEPS/ROOF/C | 5 | 0 | 1996 | 48.8 |
| | DWN | DOWNSTAIRS LIVING AREA | 5 | 0 | 1996 | 1164.5 |
Sketch
Property Image
Land
| 1 | HB | HIGH BLUFF | 0.6300 | 27442.80 | 83.00 | 0.00 | 1.00 | $490,000 | $0 |
Roll Value History
| 2026 | N/A | N/A | N/A | N/A | N/A |
| 2025 | $650,872 | $490,000 | $0 | $1,140,872 | $1,140,872 |
| 2024 | $659,522 | $475,000 | $0 | $1,134,522 | $1,134,522 |
| 2023 | $668,169 | $450,000 | $0 | $1,118,169 | $1,118,169 |
| 2022 | $597,195 | $425,000 | $0 | $1,022,195 | $1,022,195 |
| 2021 | $526,144 | $230,000 | $0 | $756,144 | $756,144 |
| 2020 | $513,452 | $230,000 | $0 | $743,452 | $743,452 |
| 2019 | $436,712 | $300,000 | $0 | $736,712 | $736,712 |
| 2018 | $438,088 | $200,000 | $0 | $638,088 | $638,088 |
| 2017 | $440,844 | $200,000 | $0 | $640,844 | $640,844 |
| 2016 | $435,407 | $200,000 | $0 | $635,407 | $635,407 |
| 2015 | $440,921 | $186,005 | $0 | $626,926 | $626,926 |
| 2014 | $446,431 | $186,005 | $0 | $632,436 | $632,436 |
| 2013 | $451,943 | $186,005 | $0 | $637,948 | $637,948 |
| 2012 | $457,454 | $186,005 | $0 | $643,459 | $643,459 |
| 2011 | $462,965 | $186,005 | $0 | $648,970 | $648,970 |
| 2010 | $473,886 | $186,005 | $0 | $659,891 | $659,891 |
| 2009 | $494,354 | $186,091 | $0 | $680,445 | $680,445 |
| 2008 | $500,400 | $186,091 | $0 | $686,491 | $686,491 |
| 2007 | $506,442 | $186,091 | $0 | $692,533 | $692,533 |
Deed and Sales History
| 1 | 03/08/2022 | WD | Warranty Deed | ESTINGOY JR TRUSTEE, LOUIS E | LEMELSON, CAROLYN | | | $1,400,000.00 | 52330 | 4541635 |
| 2 | 10/05/2007 | WD | Warranty Deed | MANOR, RHONDA L | ESTINGOY JR TRUSTEE, LOUIS E | | | $746,100.00 | 73505 | 4214578 |
| 3 | 10/05/2007 | WD | Warranty Deed | MANOR, RHONDA L | MANOR, RHONDA L | | | $0.00 | 73307 | 4213624 |
| 4 | 02/11/2002 | WD | Warranty Deed | MANOR, W NEAL | MANOR, RHONDA L | | | $0.00 | 20595 | 4011536 |
| 5 | 12/10/1998 | WD | Warranty Deed | MARTENSON, SANDRA W | MANOR, W NEAL | | | $410,000.00 | 84902 | 98027014 |
| 6 | 08/04/1998 | ESTSEPPROP | Establish Separate Property | MARTENSON, SANDRA W | MARTENSON, SANDRA W | | | $0.00 | 84901 | 98027013 |
| 7 | 05/07/1998 | PRD | Personal Representatives Deed | MARTENSON, SANDRA W | MARTENSON, SANDRA W | | | $0.00 | 81692 | 98009104 |
| 8 | 01/01/1991 | WD | Warranty Deed | O'DONNELL, JOSEPH W | MARTENSON, GUY K | | | $75,000.00 | 10402 | 91001799 |
| 9 | 04/01/1981 | REC | Real Estate Contract | SEBO, ROBERT L | O'DONNELL, JOSEPH W | | | $60,000.00 | 11101 | 381766 |
| 10 | 05/01/1979 | REC | Real Estate Contract | Unknown | SEBO, ROBERT L | | | $26,000.00 | 92331 | 352435 |
| 11 | 01/01/1900 | OTHER | Other - Misc. Documents | MARTENSON, GUY K | MARTENSON, SANDRA W | | | $0.00 | 81692 | 98009104 |
Payout Agreement
| No payout information available.. |