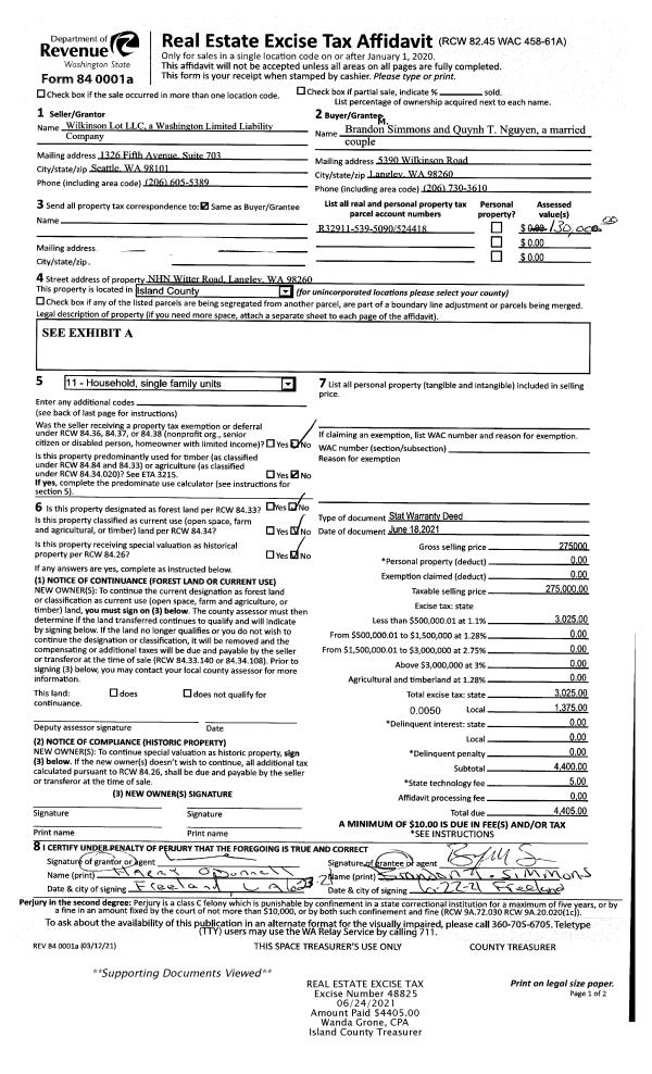
Property
Account |
| Property ID: | 524418 | Abbreviated Legal Description: | LOT 1 OF SP 80/28-32911- 520-4650 AF # 380631 |
| Geographic ID: | R32911-539-5090 | Agent Code: | |
| Type: | Real | | |
| Tax Area: | 710 - APPRAISER-S Whid Schl Dist, outside Langley, improved & 1 acre or less | Land Use Code | 11 |
| Open Space: | N | DFL | N |
| Historic Property: | N | Remodel Property: | N |
| Multi-Family Redevelopment: | N | | |
| Township: | 29 | Section: | 11 |
| Range: | R3 |
Location |
| Address: | 4396 WITTER RD LANGLEY, WA 98260 | Mapsco: | |
| Neighborhood: | Cycle 4 | Map ID: | 761 |
| Neighborhood CD: | 4 |
Owner |
| Name: | SIMMONS, BRANDON M | Owner ID: | 299921 |
| Mailing Address: | QUYNH T NGUYEN 5390 WILKINSON RD LANGLEY, WA 98260 | % Ownership: | 100.0000000000% |
| | | Exemptions: | |
Taxes and Assessment Details
Values
| (+) Improvement Homesite Value: | + | $0 | |
| (+) Improvement Non-Homesite Value: | + | $358,735 | |
| (+) Land Homesite Value: | + | $0 | |
| (+) Land Non-Homesite Value: | + | $357,500 | |
| (+) Curr Use (HS): | + | $0 | $0 |
| (+) Curr Use (NHS): | + | $0 | $0 |
| | | -------------------------- | |
| (=) Market Value: | = | $716,235 | |
| (–) Productivity Loss: | – | $0 | |
| | | -------------------------- | |
| (=) Subtotal: | = | $716,235 | |
| (+) Senior Appraised Value: | + | $0 | |
| (+) Non-Senior Appraised Value: | + | $716,235 | |
| | | -------------------------- | |
| (=) Total Appraised Value: | = | $716,235 | |
| (–) Senior Exemption Loss: | – | $0 | |
| (–) Exemption Loss: | – | $0 | |
| | | -------------------------- | |
| (=) Taxable Value: | = | $716,235 | |
Taxing Jurisdiction
| Owner: | SIMMONS, BRANDON M | | |
| % Ownership: | 100.0000000000% | | |
| Total Value: | $716,235 | | |
| Tax Area: | 710 - APPRAISER-S Whid Schl Dist, outside Langley, improved & 1 acre or less |
| CF | Conservation Futures | 0.0313996660 | $716,235 | $716,235 | $22.49 | | |
| FIRE3 | Fire & Rescue Dist #3 S Whidbey GEN | 1.2130821753 | $716,235 | $716,235 | $868.85 | | |
| HOBOND | Hospital BOND | 0.1893405597 | $716,235 | $716,235 | $135.61 | | |
| HOGEN | Hospital GEN | 0.3848777722 | $716,235 | $716,235 | $275.66 | | |
| CE | County Current Expense | 0.3674210519 | $716,235 | $716,235 | $263.16 | | |
| CR | County Roads | 0.4614296361 | $716,235 | $716,235 | $330.49 | | |
| ISLANDEMS | Hospital GEN (EMS) | 0.4952018576 | $716,235 | $716,235 | $354.68 | | |
| LIB | Library Sno-Isle GEN | 0.3039084203 | $716,235 | $716,235 | $217.67 | | |
| PORTWHID | Port of S Whidbey GEN | 0.1086004714 | $716,235 | $716,235 | $77.78 | | |
| SCH206BOND | School 206 BOND | 0.5960237832 | $716,235 | $716,235 | $426.89 | | |
| SCH206CAP | School 206 CP | 0.3066144020 | $716,235 | $716,235 | $219.61 | | |
| SCH206MO | School 206 Enrichment | 0.4808755445 | $716,235 | $716,235 | $344.42 | | |
| ST | State School | 1.4761226122 | $716,235 | $716,235 | $1,057.25 | | |
| ST2 | State School Part 2 | 0.7953803475 | $716,235 | $716,235 | $569.68 | | |
| SWHIDPRBD | P & R S Whidbey BOND | 0.0144185398 | $716,235 | $716,235 | $10.33 | | |
| SWHIDPRBD3 | P & R S Whidbey BOND3 | 0.1483535547 | $716,235 | $716,235 | $106.26 | | |
| SWHIDPRMT | P & R S Whidbey GEN | 0.4600000000 | $716,235 | $716,235 | $329.47 | | |
| | Total Tax Rate: | 7.8330503944 | | | | | |
| | | | | Taxes w/Current Exemptions: | $5,610.30 | | |
| | | | | Taxes w/o Exemptions: | $5,610.30 | | |
Improvement / Building
| Improvement #1: | RESIDENTIAL | State Code: | Y | 2181.5 sqft | Value: | $358,735 |
| Bathrooms: | 3 | Bedrooms: | 3 | | Ceiling: | DRYWALL PAINTED | Cooling: | HEAT PUMP/CONV/V | | Exterior Wall/Cover: | CEMENT FIBER | Floor Covering: | (NONE) | | Floor Structure: | WOOD W/SUBFLOOR | Foundation: | CONCRETE | | Interior Finish: | DRYWALL PAINT | Plumbing Fixture Cnt: | 14 | | Roof Slope: | FLAT | Roof Structure/Cover: | (NONE) |
|
| | Type | Description | Class CD | Sub Class CD | Year Built | Area |
| | BAS | BASE/MAIN FLOOR | 4 | 0 | 2024 | 2181.5 |
| | DGR | DETACHED GARAGE | 4 | 0 | 2024 | 780.0 |
| | OP3 | OPEN PORCH W/ROOF | 4 | 0 | 2024 | 45.5 |
| | OWR | OPEN WOOD PORCH W/STEPS/ROOF | 4 | 0 | 2024 | 96.0 |
| | OWR | OPEN WOOD PORCH W/STEPS/ROOF | 4 | 0 | 2024 | 292.0 |
Sketch
Property Image
Land
| 1 | 16 | AC (00.51-01.00) | 0.0000 | 0.00 | 0.00 | 0.00 | 1.00 | $357,500 | $0 |
Roll Value History
| 2026 | N/A | N/A | N/A | N/A | N/A |
| 2025 | $358,735 | $357,500 | $0 | $716,235 | $716,235 |
| 2024 | $96,157 | $200,000 | $0 | $296,157 | $296,157 |
| 2023 | $0 | $200,000 | $0 | $200,000 | $200,000 |
| 2022 | $0 | $200,000 | $0 | $200,000 | $200,000 |
| 2021 | $0 | $140,000 | $0 | $140,000 | $140,000 |
| 2020 | $0 | $130,000 | $0 | $130,000 | $130,000 |
| 2019 | $0 | $130,000 | $0 | $130,000 | $130,000 |
| 2018 | $0 | $100,000 | $0 | $100,000 | $100,000 |
| 2017 | $0 | $100,000 | $0 | $100,000 | $100,000 |
| 2016 | $0 | $100,000 | $0 | $100,000 | $100,000 |
| 2015 | $0 | $85,000 | $0 | $85,000 | $85,000 |
| 2014 | $0 | $81,000 | $0 | $81,000 | $81,000 |
| 2013 | $0 | $81,000 | $0 | $81,000 | $81,000 |
| 2012 | $0 | $81,000 | $0 | $81,000 | $81,000 |
| 2011 | $0 | $81,000 | $0 | $81,000 | $81,000 |
| 2010 | $0 | $81,000 | $0 | $81,000 | $81,000 |
| 2009 | $0 | $80,000 | $0 | $80,000 | $80,000 |
| 2008 | $0 | $92,800 | $0 | $92,800 | $92,800 |
| 2007 | $0 | $92,800 | $0 | $92,800 | $92,800 |
Deed and Sales History
| 1 | 06/18/2021 | WD | Warranty Deed | WILKINSON LOT, LLC | SIMMONS, BRANDON M | | | $275,000.00 | 48825 | 4522642 |
| 2 | 05/10/2018 | WD | Warranty Deed | RAO TRUSTEE, PAULA | WILKINSON LOT, LLC | | | $128,000.00 | 34075 | 4444298 |
| 3 | 10/21/2013 | WD | Warranty Deed | RAO, HARIHAR | RAO TRUSTEE, PAULA | | | $0.00 | 13462 | 4351513 |
| 4 | 04/01/1982 | WD | Warranty Deed | ROCKWELL, TOWERS | RAO, HARIHAR | | | $13,575.00 | 20892 | 395340 |
| 5 | 04/01/1980 | WD | Warranty Deed | Unknown | ROCKWELL, TOWERS | | | $13,000.00 | 1108 | 367191 |
Payout Agreement
| No payout information available.. |