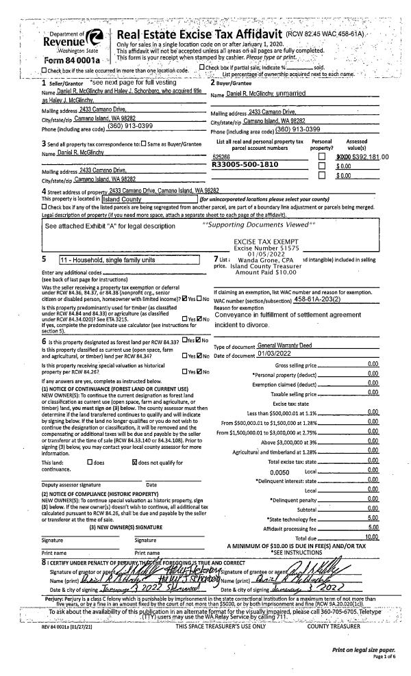
Property
Account |
| Property ID: | 525266 | Abbreviated Legal Description: | PT OF N200' OF S1066' OF GL1 LY E OF W CAMANO DR (WELL SITE LOC HERE) FR 500-0890 |
| Geographic ID: | R33005-500-1810 | Agent Code: | |
| Type: | Real | | |
| Tax Area: | 542 - APPRAISER-Stan/Cam Schl Dist, Special Dist, improved, greater than 1 acre | Land Use Code | 11 |
| Open Space: | N | DFL | N |
| Historic Property: | N | Remodel Property: | N |
| Multi-Family Redevelopment: | N | | |
| Township: | 30 | Section: | 05 |
| Range: | R3 |
Location |
| Address: | 2433 SOUTH CAMANO DR CAMANO ISLAND, WA 98282 | Mapsco: | |
| Neighborhood: | Cycle 5 | Map ID: | 856 |
| Neighborhood CD: | 5 |
Owner |
| Name: | MCGLINCHY, DANIEL R | Owner ID: | 302575 |
| Mailing Address: | 2433 S CAMANO CAMANO ISLAND, WA 98282 | % Ownership: | 100.0000000000% |
| | | Exemptions: | |
Taxes and Assessment Details
Values
| (+) Improvement Homesite Value: | + | $0 | |
| (+) Improvement Non-Homesite Value: | + | $241,270 | |
| (+) Land Homesite Value: | + | $0 | |
| (+) Land Non-Homesite Value: | + | $260,000 | |
| (+) Curr Use (HS): | + | $0 | $0 |
| (+) Curr Use (NHS): | + | $0 | $0 |
| | | -------------------------- | |
| (=) Market Value: | = | $501,270 | |
| (–) Productivity Loss: | – | $0 | |
| | | -------------------------- | |
| (=) Subtotal: | = | $501,270 | |
| (+) Senior Appraised Value: | + | $0 | |
| (+) Non-Senior Appraised Value: | + | $501,270 | |
| | | -------------------------- | |
| (=) Total Appraised Value: | = | $501,270 | |
| (–) Senior Exemption Loss: | – | $0 | |
| (–) Exemption Loss: | – | $0 | |
| | | -------------------------- | |
| (=) Taxable Value: | = | $501,270 | |
Taxing Jurisdiction
| Owner: | MCGLINCHY, DANIEL R | | |
| % Ownership: | 100.0000000000% | | |
| Total Value: | $501,270 | | |
| Tax Area: | 542 - APPRAISER-Stan/Cam Schl Dist, Special Dist, improved, greater than 1 acre |
| CF | Conservation Futures | 0.0313996660 | $501,270 | $501,270 | $15.74 | | |
| EMS1 | Fire & Rescue Dist #1 Camano GEN (EMS) | 0.4998471806 | $501,270 | $501,270 | $250.56 | | |
| FIRE1 | Fire & Rescue Dist #1 Camano GEN | 1.2496603404 | $501,270 | $501,270 | $626.42 | | |
| FIRE1BOND | Fire & Rescue Dist #1 Camano BOND | 0.1630371212 | $501,270 | $501,270 | $81.73 | | |
| CE | County Current Expense | 0.3674210519 | $501,270 | $501,270 | $184.18 | | |
| CR | County Roads | 0.4614296361 | $501,270 | $501,270 | $231.30 | | |
| LIB | Library Sno-Isle GEN | 0.3039084203 | $501,270 | $501,270 | $152.34 | | |
| SCH205_401 | School 205-401 Enrichment | 1.3697998934 | $501,270 | $501,270 | $686.64 | | |
| SCH205BOND | School 205-401 BOND | 0.9354199323 | $501,270 | $501,270 | $468.90 | | |
| ST | State School | 1.4761226122 | $501,270 | $501,270 | $739.94 | | |
| ST2 | State School Part 2 | 0.7953803475 | $501,270 | $501,270 | $398.70 | | |
| | Total Tax Rate: | 7.6534262019 | | | | | |
| | | | | Taxes w/Current Exemptions: | $3,836.45 | | |
| | | | | Taxes w/o Exemptions: | $3,836.45 | | |
Improvement / Building
| Improvement #1: | RESIDENTIAL | State Code: | Y | 1084.0 sqft | Value: | $241,270 |
| Bathrooms: | 3 | Bedrooms: | 3 | | Ceiling: | DRYWALL PAINTED | Exterior Wall/Cover: | WOOD SIDING | | Floor Covering: | HARDWOOD/CARP 20-80 | Floor Structure: | WOOD W/SUBFLOOR | | Foundation: | CONCRETE | Heating: | BASEBOARD ELECTRIC | | Interior Finish: | DRYWALL PAINT | Plumbing Fixture Cnt: | 11 | | Roof Slope: | 6" IN 12" | Roof Structure/Cover: | CJ ASPHALT |
|
| | Type | Description | Class CD | Sub Class CD | Year Built | Area |
| | BAS | BASE/MAIN FLOOR | 3 | 0 | 1992 | 580.0 |
| | BIG | BUILT IN GARAGE | 3 | 0 | 1992 | 504.2 |
| | UPS | UPPER STORY | 3 | 0 | 1992 | 504.0 |
| | OWP | OPEN WOOD PORCH W/STEPS | 3 | 0 | 1992 | 260.0 |
Sketch
Property Image
Land
| 1 | 17 | AC (01.01-02.00) | 1.3000 | 56628.00 | 0.00 | 0.00 | 1.00 | $260,000 | $0 |
Roll Value History
| 2026 | N/A | N/A | N/A | N/A | N/A |
| 2025 | $241,270 | $260,000 | $0 | $501,270 | $501,270 |
| 2024 | $248,770 | $240,000 | $0 | $488,770 | $488,770 |
| 2023 | $251,723 | $220,000 | $0 | $471,723 | $471,723 |
| 2022 | $230,613 | $200,000 | $0 | $430,613 | $430,613 |
| 2021 | $222,181 | $170,000 | $0 | $392,181 | $392,181 |
| 2020 | $215,753 | $150,000 | $0 | $365,753 | $365,753 |
| 2019 | $152,572 | $200,000 | $0 | $352,572 | $352,572 |
| 2018 | $153,000 | $150,000 | $0 | $303,000 | $303,000 |
| 2017 | $153,849 | $135,000 | $0 | $288,849 | $288,849 |
| 2016 | $155,559 | $75,000 | $0 | $230,559 | $230,559 |
| 2015 | $121,232 | $50,000 | $0 | $171,232 | $171,232 |
| 2014 | $122,827 | $50,000 | $0 | $172,827 | $172,827 |
| 2013 | $127,363 | $50,000 | $0 | $177,363 | $177,363 |
| 2012 | $128,970 | $74,400 | $0 | $203,370 | $203,370 |
| 2011 | $130,579 | $93,000 | $0 | $223,579 | $223,579 |
| 2010 | $136,503 | $93,000 | $0 | $229,503 | $229,503 |
| 2009 | $138,380 | $120,000 | $0 | $258,380 | $258,380 |
| 2008 | $140,013 | $116,000 | $0 | $256,013 | $256,013 |
| 2007 | $141,785 | $116,000 | $0 | $257,785 | $257,785 |
Deed and Sales History
| 1 | 01/03/2022 | WD | Warranty Deed | MCGLINCHY, DANIEL R | MCGLINCHY, DANIEL R | | | $0.00 | 51575 | 4537293 |
| 2 | 05/07/2015 | WD | Warranty Deed | TAYLOR, MATTHEW A FLEISCBEIN | MCGLINCHY, DANIEL R | | | $262,000.00 | 19526 | 4378288 |
| 3 | 04/08/2010 | WD | Warranty Deed | WICKLUND, SHAMAN | TAYLOR, MATTHEW A FLEISCBEIN | | | $225,000.00 | 846 | 4272005 |
| 4 | 05/20/2002 | WD | Warranty Deed | DEPT OF HUD, | WICKLUND, SHAMAN | | | $135,000.00 | 21891 | 4020454 |
| 5 | 10/05/2001 | TRUSTEED | Trustee's Deed | TENAN, LARRY E | HOMESIDE LENDING INC, | | | $144,095.00 | 14042 | 4000363 |
| 6 | 02/28/2001 | WD | Warranty Deed | HOMESIDE LENDING INC, | DEPT OF HUD, | | | $144,095.00 | 20691 | 4012259 |
| 7 | 11/01/1997 | WD | Warranty Deed | CLACK, RONALD C | TENAN, LARRY E | | | $132,600.00 | 74044 | 97019386 |
| 8 | 12/01/1992 | WD | Warranty Deed | FRANTZ, ROBERT E | CLACK, RONALD C | | | $120,000.00 | 25067 | 92025014 |
| 9 | 12/01/1991 | QCD | Quit Claim Deed | ERICKSON, WILLIAM A | FRANTZ, ROBERT E | | | $30,000.00 | 14569 | 91019990 |
| 10 | 11/01/1990 | DECREE | Divorce Decree/Legal Separation | ERICKSON, WILLIAM A | ERICKSON, WILLIAM A | | | $0.00 | 6204 | 90021271 |
| 11 | 10/01/1989 | OTHER | Other - Misc. Documents | ERICKSON, WILLIAM A | ERICKSON, WILLIAM A | | | $0.00 | 63378 | 0 |
| 12 | 08/01/1983 | REC | Real Estate Contract | WESLEY, PAUL J | ERICKSON, WILLIAM A | | | $10,000.00 | 32466 | 414334 |
| 13 | 10/01/1978 | OTHER | Other - Misc. Documents | Unknown | WESLEY, PAUL J | | | $28,800.00 | 85339 | 342178 |
Payout Agreement
| No payout information available.. |