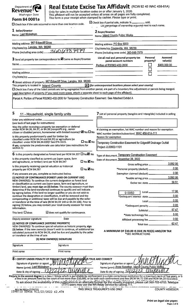
Property
Account |
| Property ID: | 525925 | Abbreviated Legal Description: | MADRONA VIEW #1 LOT 20 TGW UND 1/38TH INT IN LOT 1 |
| Geographic ID: | S7448-00-00020-0 | Agent Code: | |
| Type: | Real | | |
| Tax Area: | 510 - APPRAISER-Stan/Cam Schl Dist, improved & 1 acre or less | Land Use Code | 11 |
| Open Space: | N | DFL | N |
| Historic Property: | N | Remodel Property: | N |
| Multi-Family Redevelopment: | N | | |
| Township: | | Section: | |
| Range: | |
Location |
| Address: | 169 MELISSA ST CAMANO ISLAND, WA 98282 | Mapsco: | |
| Neighborhood: | North Camano | Map ID: | 573 |
| Neighborhood CD: | 06-C |
Owner |
| Name: | MARTIN, TRAVIS J | Owner ID: | 316785 |
| Mailing Address: | LINDSEY ANN IRWIN MARTIN 22343 NORTHEAST 101ST PL REDMOND, WA 98053 | % Ownership: | 100.0000000000% |
| | | Exemptions: | |
Taxes and Assessment Details
Values
| (+) Improvement Homesite Value: | + | $0 | |
| (+) Improvement Non-Homesite Value: | + | $416,795 | |
| (+) Land Homesite Value: | + | $0 | |
| (+) Land Non-Homesite Value: | + | $450,000 | |
| (+) Curr Use (HS): | + | $0 | $0 |
| (+) Curr Use (NHS): | + | $0 | $0 |
| | | -------------------------- | |
| (=) Market Value: | = | $866,795 | |
| (–) Productivity Loss: | – | $0 | |
| | | -------------------------- | |
| (=) Subtotal: | = | $866,795 | |
| (+) Senior Appraised Value: | + | $0 | |
| (+) Non-Senior Appraised Value: | + | $866,795 | |
| | | -------------------------- | |
| (=) Total Appraised Value: | = | $866,795 | |
| (–) Senior Exemption Loss: | – | $0 | |
| (–) Exemption Loss: | – | $0 | |
| | | -------------------------- | |
| (=) Taxable Value: | = | $866,795 | |
Taxing Jurisdiction
| Owner: | MARTIN, TRAVIS J | | |
| % Ownership: | 100.0000000000% | | |
| Total Value: | $866,795 | | |
| Tax Area: | 510 - APPRAISER-Stan/Cam Schl Dist, improved & 1 acre or less |
| CF | Conservation Futures | 0.0313996660 | $866,795 | $866,795 | $27.22 | | |
| EMS1 | Fire & Rescue Dist #1 Camano GEN (EMS) | 0.4998471806 | $866,795 | $866,795 | $433.27 | | |
| FIRE1 | Fire & Rescue Dist #1 Camano GEN | 1.2496603404 | $866,795 | $866,795 | $1,083.20 | | |
| FIRE1BOND | Fire & Rescue Dist #1 Camano BOND | 0.1630371212 | $866,795 | $866,795 | $141.32 | | |
| CE | County Current Expense | 0.3674210519 | $866,795 | $866,795 | $318.48 | | |
| CR | County Roads | 0.4614296361 | $866,795 | $866,795 | $399.96 | | |
| LIB | Library Sno-Isle GEN | 0.3039084203 | $866,795 | $866,795 | $263.43 | | |
| SCH205_401 | School 205-401 Enrichment | 1.3697998934 | $866,795 | $866,795 | $1,187.34 | | |
| SCH205BOND | School 205-401 BOND | 0.9354199323 | $866,795 | $866,795 | $810.82 | | |
| ST | State School | 1.4761226122 | $866,795 | $866,795 | $1,279.50 | | |
| ST2 | State School Part 2 | 0.7953803475 | $866,795 | $866,795 | $689.43 | | |
| | Total Tax Rate: | 7.6534262019 | | | | | |
| | | | | Taxes w/Current Exemptions: | $6,633.97 | | |
| | | | | Taxes w/o Exemptions: | $6,633.97 | | |
Improvement / Building
| Improvement #1: | RESIDENTIAL | State Code: | Y | 4430.6 sqft | Value: | $416,795 |
| Bathrooms: | 3 | Bedrooms: | 2 | | Ceiling: | DRYWALL PAINTED | Exterior Wall/Cover: | WOOD SIDING | | Floor Covering: | CARPET/VINYL 80-20 | Floor Structure: | WOOD W/SUBFLOOR | | Foundation: | CONCRETE | Heating: | FHA ELECTRIC | | Interior Finish: | DRYWALL PAINT | Plumbing Fixture Cnt: | 12 | | Roof Slope: | 6" IN 12" | Roof Structure/Cover: | CJ ASPHALT |
|
| | Type | Description | Class CD | Sub Class CD | Year Built | Area |
| | BAS | BASE/MAIN FLOOR | 3 | 0 | 1993 | 2262.2 |
| | DGR | DETACHED GARAGE | 3 | 0 | 1993 | 686.0 |
| | OWP | OPEN WOOD PORCH W/STEPS | 3 | 0 | 1993 | 155.3 |
| | OWP | OPEN WOOD PORCH W/STEPS | 3 | 0 | 1993 | 299.9 |
| | OWP | OPEN WOOD PORCH W/STEPS | 3 | 0 | 1993 | 172.0 |
| | OWP | OPEN WOOD PORCH W/STEPS | 3 | 0 | 1993 | 112.0 |
| | OWP | OPEN WOOD PORCH W/STEPS | 3 | 0 | 1993 | 177.8 |
| | OWR | OPEN WOOD PORCH W/STEPS/ROOF | 3 | 0 | 1993 | 133.6 |
| | OWC | OPEN WOOD PORCH W/STEPS/ROOF/C | 3 | 0 | 1993 | 161.3 |
| | DWN | DOWNSTAIRS LIVING AREA | 3 | 0 | 1993 | 2168.4 |
Sketch
Property Image
Land
| 1 | 15 | SQ (12001-21780) | 0.0000 | 0.00 | 0.00 | 0.00 | 1.00 | $450,000 | $0 |
Roll Value History
| 2026 | N/A | N/A | N/A | N/A | N/A |
| 2025 | $416,795 | $450,000 | $0 | $866,795 | $866,795 |
| 2024 | $422,484 | $450,000 | $0 | $872,484 | $872,484 |
| 2023 | $428,175 | $450,000 | $0 | $878,175 | $167,487 |
| 2022 | $387,717 | $360,000 | $0 | $747,717 | $167,487 |
| 2021 | $341,605 | $280,000 | $0 | $621,605 | $167,487 |
| 2020 | $334,700 | $200,000 | $0 | $534,700 | $167,487 |
| 2019 | $289,303 | $225,000 | $0 | $514,303 | $418,718 |
| 2018 | $290,229 | $180,000 | $0 | $470,229 | $418,718 |
| 2017 | $292,030 | $150,000 | $0 | $442,030 | $418,718 |
| 2016 | $288,718 | $130,000 | $0 | $418,718 | $418,718 |
| 2015 | $292,518 | $92,800 | $0 | $385,318 | $385,318 |
| 2014 | $296,317 | $92,800 | $0 | $389,117 | $389,117 |
| 2013 | $300,117 | $92,800 | $0 | $392,917 | $392,917 |
| 2012 | $303,915 | $92,800 | $0 | $396,715 | $396,715 |
| 2011 | $307,714 | $116,000 | $0 | $423,714 | $423,714 |
| 2010 | $310,430 | $116,000 | $0 | $426,430 | $426,430 |
| 2009 | $323,955 | $200,000 | $0 | $523,955 | $523,955 |
| 2008 | $327,954 | $200,000 | $0 | $527,954 | $527,954 |
| 2007 | $319,196 | $212,797 | $0 | $531,993 | $531,993 |
Deed and Sales History
| 1 | 05/29/2025 | WD | Warranty Deed | KELLY C MCCARTY, EXECUTOR | MARTIN, TRAVIS J | | | $870,000.00 | 63656 | 4586510 |
| 2 | 08/23/2022 | OTHER | Other - Misc. Documents | MCCARTY, RONALD W | MCCARTY, VICTORIA L | | | | 89291 | |
| 3 | 07/01/1983 | PACD | Purchaser's Assignment | KALLOCK, CLINTON & | MCCARTY, RONALD W | | | $19,000.00 | 32047 | 412502 |
| 4 | 02/01/1981 | CD | DNU - Correction Deed | KALLOCK, CLINTON | KALLOCK, CLINTON & | | | $0.00 | 10482 | 379618 |
| 5 | 01/01/1981 | CD | DNU - Correction Deed | Unknown | KALLOCK, CLINTON | | | $15,000.00 | 10481 | 379617 |
Payout Agreement
| No payout information available.. |