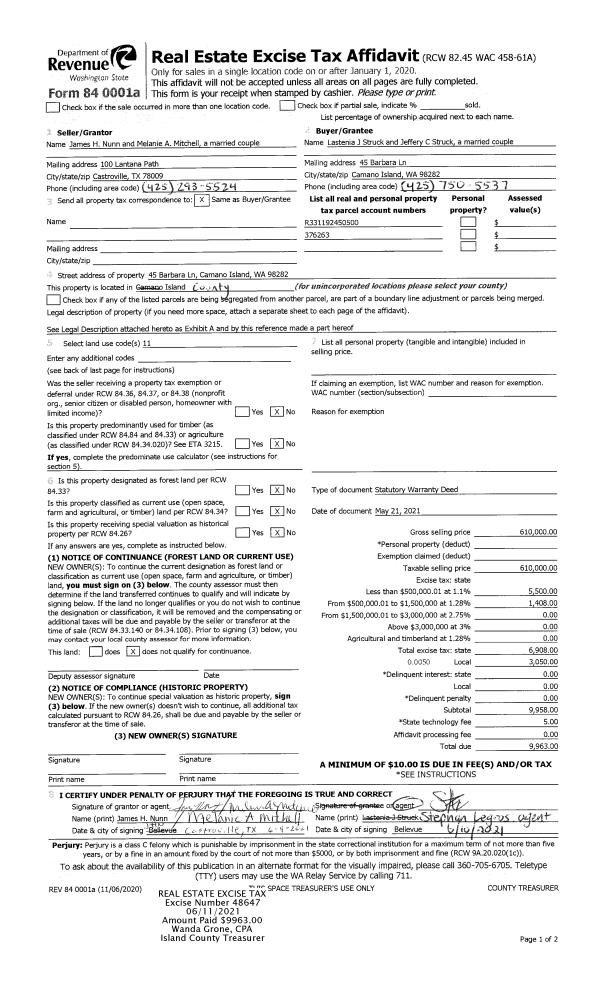
Property
Account |
| Property ID: | 526041 | Abbreviated Legal Description: | MADRONA VIEW #1 LOT 32 TGW UND 1/38TH INT IN LOT 1 TGW EZ AF#90016212-3 |
| Geographic ID: | S7448-00-00032-0 | Agent Code: | |
| Type: | Real | | |
| Tax Area: | 510 - APPRAISER-Stan/Cam Schl Dist, improved & 1 acre or less | Land Use Code | 11 |
| Open Space: | N | DFL | N |
| Historic Property: | N | Remodel Property: | N |
| Multi-Family Redevelopment: | N | | |
| Township: | | Section: | |
| Range: | |
Location |
| Address: | 143 CAMWOOD PLACE CAMANO ISLAND, WA 98282 | Mapsco: | |
| Neighborhood: | North Camano | Map ID: | 573 |
| Neighborhood CD: | 06-C |
Owner |
| Name: | BROWN, DENNIS M | Owner ID: | 299882 |
| Mailing Address: | THERESA BROWN 143 CAMWOOD PL CAMANO ISLAND, WA 98282 | % Ownership: | 100.0000000000% |
| | | Exemptions: | |
Taxes and Assessment Details
Values
| (+) Improvement Homesite Value: | + | $0 | |
| (+) Improvement Non-Homesite Value: | + | $689,001 | |
| (+) Land Homesite Value: | + | $0 | |
| (+) Land Non-Homesite Value: | + | $450,000 | |
| (+) Curr Use (HS): | + | $0 | $0 |
| (+) Curr Use (NHS): | + | $0 | $0 |
| | | -------------------------- | |
| (=) Market Value: | = | $1,139,001 | |
| (–) Productivity Loss: | – | $0 | |
| | | -------------------------- | |
| (=) Subtotal: | = | $1,139,001 | |
| (+) Senior Appraised Value: | + | $0 | |
| (+) Non-Senior Appraised Value: | + | $1,139,001 | |
| | | -------------------------- | |
| (=) Total Appraised Value: | = | $1,139,001 | |
| (–) Senior Exemption Loss: | – | $0 | |
| (–) Exemption Loss: | – | $0 | |
| | | -------------------------- | |
| (=) Taxable Value: | = | $1,139,001 | |
Taxing Jurisdiction
| Owner: | BROWN, DENNIS M | | |
| % Ownership: | 100.0000000000% | | |
| Total Value: | $1,139,001 | | |
| Tax Area: | 510 - APPRAISER-Stan/Cam Schl Dist, improved & 1 acre or less |
| CF | Conservation Futures | 0.0313996660 | $1,139,001 | $1,139,001 | $35.76 | | |
| EMS1 | Fire & Rescue Dist #1 Camano GEN (EMS) | 0.4998471806 | $1,139,001 | $1,139,001 | $569.33 | | |
| FIRE1 | Fire & Rescue Dist #1 Camano GEN | 1.2496603404 | $1,139,001 | $1,139,001 | $1,423.36 | | |
| FIRE1BOND | Fire & Rescue Dist #1 Camano BOND | 0.1630371212 | $1,139,001 | $1,139,001 | $185.70 | | |
| CE | County Current Expense | 0.3674210519 | $1,139,001 | $1,139,001 | $418.49 | | |
| CR | County Roads | 0.4614296361 | $1,139,001 | $1,139,001 | $525.57 | | |
| LIB | Library Sno-Isle GEN | 0.3039084203 | $1,139,001 | $1,139,001 | $346.15 | | |
| SCH205_401 | School 205-401 Enrichment | 1.3697998934 | $1,139,001 | $1,139,001 | $1,560.20 | | |
| SCH205BOND | School 205-401 BOND | 0.9354199323 | $1,139,001 | $1,139,001 | $1,065.44 | | |
| ST | State School | 1.4761226122 | $1,139,001 | $1,139,001 | $1,681.31 | | |
| ST2 | State School Part 2 | 0.7953803475 | $1,139,001 | $1,139,001 | $905.94 | | |
| | Total Tax Rate: | 7.6534262019 | | | | | |
| | | | | Taxes w/Current Exemptions: | $8,717.25 | | |
| | | | | Taxes w/o Exemptions: | $8,717.25 | | |
Improvement / Building
| Improvement #1: | RESIDENTIAL | State Code: | Y | 3776.5 sqft | Value: | $689,001 |
| Bathrooms: | 3 | Bedrooms: | 3 | | Ceiling: | DRYWALL PAINTED | Cooling: | HEAT PUMP/CONV/V | | Exterior Wall/Cover: | CEMENT FIBER | Floor Covering: | HARDWOOD/CARP 60-40 | | Floor Structure: | WOOD W/SUBFLOOR | Foundation: | CONCRETE | | Interior Finish: | DRYWALL PAINT | Plumbing Fixture Cnt: | 15 | | Roof Slope: | 6" IN 12" | Roof Structure/Cover: | CJ ASPHALT |
|
| | Type | Description | Class CD | Sub Class CD | Year Built | Area |
| | BAS | BASE/MAIN FLOOR | 4 | 0 | 2014 | 2188.5 |
| | DWN | DOWNSTAIRS LIVING AREA | 4 | 0 | 2014 | 1588.0 |
| | AGR | ATTACHED GARAGE | 4 | 0 | 2014 | 686.0 |
| | OP3 | OPEN PORCH W/ROOF | 4 | 0 | 2014 | 70.0 |
| | OP4 | OPEN PORCH W/CEILING-ROOF | 4 | 0 | 2014 | 35.0 |
| | OWP | OPEN WOOD PORCH W/STEPS | 4 | 0 | 2014 | 318.0 |
| | OWR | OPEN WOOD PORCH W/STEPS/ROOF | 4 | 0 | 2014 | 396.0 |
| | UTY | STORAGE/UTILITY | 4 | 0 | 2014 | 180.0 |
Sketch
Property Image
Land
| 1 | 15 | SQ (12001-21780) | 0.0000 | 0.00 | 0.00 | 0.00 | 1.00 | $450,000 | $0 |
Roll Value History
| 2026 | N/A | N/A | N/A | N/A | N/A |
| 2025 | $689,001 | $450,000 | $0 | $1,139,001 | $1,139,001 |
| 2024 | $694,314 | $450,000 | $0 | $1,144,314 | $1,144,314 |
| 2023 | $700,004 | $450,000 | $0 | $1,150,004 | $1,150,004 |
| 2022 | $639,003 | $360,000 | $0 | $999,003 | $999,003 |
| 2021 | $544,318 | $280,000 | $0 | $824,318 | $824,318 |
| 2020 | $529,597 | $200,000 | $0 | $729,597 | $729,597 |
| 2019 | $439,651 | $225,000 | $0 | $664,651 | $664,651 |
| 2018 | $440,804 | $180,000 | $0 | $620,804 | $620,804 |
| 2017 | $443,114 | $150,000 | $0 | $593,114 | $593,114 |
| 2016 | $447,728 | $130,000 | $0 | $577,728 | $577,728 |
| 2015 | $452,345 | $92,800 | $0 | $545,145 | $545,145 |
| 2014 | $111,933 | $83,520 | $0 | $195,453 | $195,453 |
| 2013 | $0 | $83,520 | $0 | $83,520 | $83,520 |
| 2012 | $0 | $83,520 | $0 | $83,520 | $83,520 |
| 2011 | $0 | $104,400 | $0 | $104,400 | $104,400 |
| 2010 | $0 | $104,400 | $0 | $104,400 | $104,400 |
| 2009 | $0 | $150,000 | $0 | $150,000 | $150,000 |
| 2008 | $0 | $270,000 | $0 | $270,000 | $270,000 |
| 2007 | $0 | $270,000 | $0 | $270,000 | $270,000 |
Deed and Sales History
| 1 | 06/21/2021 | WD | Warranty Deed | NELSON, MARK KENT | BROWN, DENNIS M | | | $1,293,500.00 | 48789 | 4522405 |
| 2 | 03/18/2014 | WD | Warranty Deed | SMITHSON, PETER | NELSON, MARK KENT | | | $115,000.00 | 14627 | 4356823 |
| 3 | 02/19/2002 | WD | Warranty Deed | KALLOCK, CLINT | SMITHSON, PETER | | | $77,500.00 | 20759 | 4012648 |
| 4 | 02/01/1982 | CD | DNU - Correction Deed | MCDOUGALL, PETER E | KALLOCK, CLINT | | | $1,800.00 | 20414 | 393350 |
| 5 | 02/01/1981 | EXECUTORD | Executor Deed | Unknown | MCDOUGALL, PETER E | | | $16,000.00 | 10361 | 379140 |
Payout Agreement
| No payout information available.. |