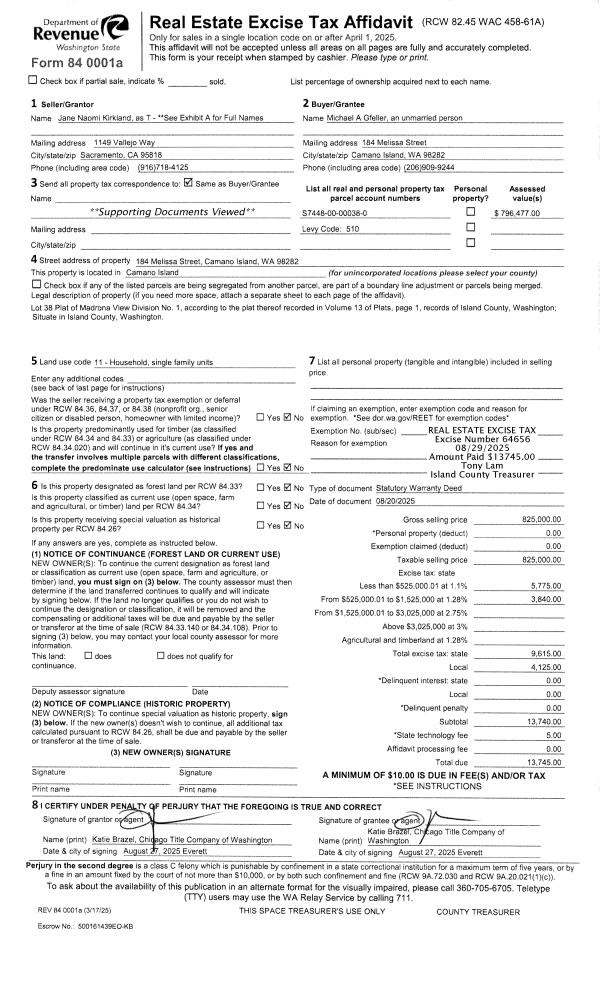
Property
Account |
| Property ID: | 526103 | Abbreviated Legal Description: | MADRONA VIEW #1 LOT 38 TGW UNDIV 1/38TH INT IN LOT 1 TGW EZ AF#90016212-3 |
| Geographic ID: | S7448-00-00038-0 | Agent Code: | |
| Type: | Real | | |
| Tax Area: | 510 - APPRAISER-Stan/Cam Schl Dist, improved & 1 acre or less | Land Use Code | 11 |
| Open Space: | N | DFL | N |
| Historic Property: | N | Remodel Property: | N |
| Multi-Family Redevelopment: | N | | |
| Township: | | Section: | |
| Range: | |
Location |
| Address: | 184 MELISSA ST CAMANO ISLAND, WA 98282 | Mapsco: | |
| Neighborhood: | North Camano | Map ID: | 573 |
| Neighborhood CD: | 06-C |
Owner |
| Name: | CAREY TTEE, JOEL EVERETT | Owner ID: | 289041 |
| Mailing Address: | JANE NAOMI KIRKLAND, TTEE 1149 VALLEJO WAY SACRAMENTO, CA 95818 | % Ownership: | 100.0000000000% |
| | | Exemptions: | |
Taxes and Assessment Details
Values
| (+) Improvement Homesite Value: | + | $0 | |
| (+) Improvement Non-Homesite Value: | + | $476,477 | |
| (+) Land Homesite Value: | + | $0 | |
| (+) Land Non-Homesite Value: | + | $320,000 | |
| (+) Curr Use (HS): | + | $0 | $0 |
| (+) Curr Use (NHS): | + | $0 | $0 |
| | | -------------------------- | |
| (=) Market Value: | = | $796,477 | |
| (–) Productivity Loss: | – | $0 | |
| | | -------------------------- | |
| (=) Subtotal: | = | $796,477 | |
| (+) Senior Appraised Value: | + | $0 | |
| (+) Non-Senior Appraised Value: | + | $796,477 | |
| | | -------------------------- | |
| (=) Total Appraised Value: | = | $796,477 | |
| (–) Senior Exemption Loss: | – | $0 | |
| (–) Exemption Loss: | – | $0 | |
| | | -------------------------- | |
| (=) Taxable Value: | = | $796,477 | |
Taxing Jurisdiction
| Owner: | CAREY TTEE, JOEL EVERETT | | |
| % Ownership: | 100.0000000000% | | |
| Total Value: | $796,477 | | |
| Tax Area: | 510 - APPRAISER-Stan/Cam Schl Dist, improved & 1 acre or less |
| CF | Conservation Futures | 0.0313996660 | $796,477 | $796,477 | $25.01 | | |
| EMS1 | Fire & Rescue Dist #1 Camano GEN (EMS) | 0.4998471806 | $796,477 | $796,477 | $398.12 | | |
| FIRE1 | Fire & Rescue Dist #1 Camano GEN | 1.2496603404 | $796,477 | $796,477 | $995.33 | | |
| FIRE1BOND | Fire & Rescue Dist #1 Camano BOND | 0.1630371212 | $796,477 | $796,477 | $129.86 | | |
| CE | County Current Expense | 0.3674210519 | $796,477 | $796,477 | $292.64 | | |
| CR | County Roads | 0.4614296361 | $796,477 | $796,477 | $367.52 | | |
| LIB | Library Sno-Isle GEN | 0.3039084203 | $796,477 | $796,477 | $242.06 | | |
| SCH205_401 | School 205-401 Enrichment | 1.3697998934 | $796,477 | $796,477 | $1,091.01 | | |
| SCH205BOND | School 205-401 BOND | 0.9354199323 | $796,477 | $796,477 | $745.04 | | |
| ST | State School | 1.4761226122 | $796,477 | $796,477 | $1,175.70 | | |
| ST2 | State School Part 2 | 0.7953803475 | $796,477 | $796,477 | $633.50 | | |
| | Total Tax Rate: | 7.6534262019 | | | | | |
| | | | | Taxes w/Current Exemptions: | $6,095.79 | | |
| | | | | Taxes w/o Exemptions: | $6,095.79 | | |
Improvement / Building
| Improvement #1: | RESIDENTIAL | State Code: | Y | 3285.4 sqft | Value: | $476,477 |
| Bathrooms: | 2.5 | Bedrooms: | 3 | | Ceiling: | DRYWALL PAINTED | Exterior Wall/Cover: | CEMENT FIBER | | Floor Covering: | HARDWOOD/CARP 20-80 | Floor Structure: | WOOD W/SUBFLOOR | | Foundation: | CONCRETE | Heating: | FHA GAS | | Interior Finish: | DRYWALL PAINT | Plumbing Fixture Cnt: | 13 | | Roof Slope: | 4" IN 12" | Roof Structure/Cover: | CJ ASPHALT |
|
| | Type | Description | Class CD | Sub Class CD | Year Built | Area |
| | BAS | BASE/MAIN FLOOR | 3 | 0 | 1994 | 2348.9 |
| | UB8 | BASEMENT UNFINISHED 8" | 3 | 0 | 1994 | 1396.4 |
| | DWN | DOWNSTAIRS LIVING AREA | 3 | 0 | 1994 | 936.5 |
| | AGR | ATTACHED GARAGE | 3 | 0 | 1994 | 648.4 |
| | OWP | OPEN WOOD PORCH W/STEPS | 3 | 0 | 1994 | 575.5 |
| | OWC | OPEN WOOD PORCH W/STEPS/ROOF/C | 3 | 0 | 1994 | 176.2 |
Sketch
Property Image
Land
| 1 | 15 | SQ (12001-21780) | 0.0000 | 0.00 | 0.00 | 0.00 | 1.00 | $320,000 | $0 |
Roll Value History
| 2026 | N/A | N/A | N/A | N/A | N/A |
| 2025 | $476,477 | $320,000 | $0 | $796,477 | $796,477 |
| 2024 | $482,810 | $320,000 | $0 | $802,810 | $802,810 |
| 2023 | $489,141 | $320,000 | $0 | $809,141 | $809,141 |
| 2022 | $439,069 | $260,000 | $0 | $699,069 | $699,069 |
| 2021 | $406,542 | $230,000 | $0 | $636,542 | $636,542 |
| 2020 | $396,647 | $180,000 | $0 | $576,647 | $576,647 |
| 2019 | $304,907 | $200,000 | $0 | $504,907 | $504,907 |
| 2018 | $305,870 | $180,000 | $0 | $485,870 | $485,870 |
| 2017 | $306,782 | $150,000 | $0 | $456,782 | $456,782 |
| 2016 | $312,439 | $130,000 | $0 | $442,439 | $442,439 |
| 2015 | $316,298 | $92,800 | $0 | $409,098 | $409,098 |
| 2014 | $320,155 | $92,800 | $0 | $412,955 | $412,955 |
| 2013 | $324,012 | $92,800 | $0 | $416,812 | $416,812 |
| 2012 | $327,869 | $92,800 | $0 | $420,669 | $420,669 |
| 2011 | $331,727 | $116,000 | $0 | $447,727 | $447,727 |
| 2010 | $358,732 | $116,000 | $0 | $474,732 | $474,732 |
| 2009 | $374,182 | $200,000 | $0 | $574,182 | $574,182 |
| 2008 | $378,708 | $200,000 | $0 | $578,708 | $578,708 |
| 2007 | $367,461 | $215,810 | $0 | $583,271 | $583,271 |
Deed and Sales History
| 1 | 08/20/2025 | WD | Warranty Deed | CAREY TTEE, JOEL EVERETT | GFELLER, MICHAEL A | | | $825,000.00 | 64656 | 4590282 |
| 2 | 02/05/2019 | WD | Warranty Deed | CAREY TTEE, JOEL E | CAREY TTEE, JOEL EVERETT | | | $0.00 | 37827 | 4460296 |
| 3 | 02/05/2019 | WD | Warranty Deed | CAREY, JOEL E | CAREY TTEE, JOEL E | | | $0.00 | 37560 | 4459134 |
| 4 | 12/18/2012 | TRUSTEED | Trustee's Deed | CAREY TRUSTEE, JOEL EVERETT | CAREY, JOEL E | | | $0.00 | 10742 | 4336000 |
| 5 | 09/04/2008 | QCD | Quit Claim Deed | CAREY, JOEL E | CAREY TTEE, JOEL EVERETT | | | $0.00 | 82460 | 4236816 |
| 6 | 12/28/2006 | WD | Warranty Deed | KIRKLAND, JOEL E CAREY & JANE | CAREY, JOEL E | | | $50,890.00 | 65372 | 4190382 |
| 7 | 06/14/2005 | WD | Warranty Deed | CONTRERAS, GILBERT/PATRICIA | KIRKLAND, JOEL E CAREY & JANE | | | $415,000.00 | 52776 | 4137679 |
| 8 | 10/01/1991 | QCD | Quit Claim Deed | CONTRERAS, GILBERT | CONTRERAS, GILBERT/PATRICIA | | | $0.00 | 21446 | 92006945 |
| 9 | 08/01/1990 | WD | Warranty Deed | WORLD, CLASS H | CONTRERAS, GILBERT | | | $62,500.00 | 4673 | 90015462 |
| 10 | 05/01/1990 | WD | Warranty Deed | DOROTHY, EDWIN, E | WORLD, CLASS H | | | $45,000.00 | 3386 | 90011000 |
| 11 | 01/01/1981 | EXECUTORD | Executor Deed | Unknown | DOROTHY, EDWIN, E | | | $16,000.00 | 10369 | 379148 |
Payout Agreement
| No payout information available.. |