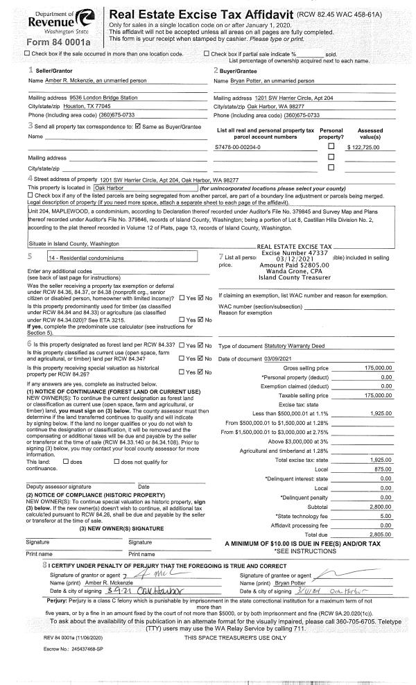
Property
Account |
| Property ID: | 526425 | Abbreviated Legal Description: | MAPLE WOOD CONDO APT 204 7.24% INT |
| Geographic ID: | S7478-00-00204-0 | Agent Code: | |
| Type: | Real | | |
| Tax Area: | 100 - APPRAISER-OH Schl Dist, in OH | Land Use Code | 14 |
| Open Space: | N | DFL | N |
| Historic Property: | N | Remodel Property: | N |
| Multi-Family Redevelopment: | N | | |
| Township: | | Section: | |
| Range: | |
Location |
| Address: | 1201 SW HARRIER CIR APT 204 OAK HARBOR, WA 98277 | Mapsco: | |
| Neighborhood: | 3B*OH-maplewood | Map ID: | 93 |
| Neighborhood CD: | 3B*OHmplwd |
Owner |
| Name: | POTTER, BRYAN | Owner ID: | 298475 |
| Mailing Address: | 1201 SW HARRIER CR OAK HARBOR, WA 98277 | % Ownership: | 100.0000000000% |
| | | Exemptions: | |
Taxes and Assessment Details
Values
| (+) Improvement Homesite Value: | + | $0 | |
| (+) Improvement Non-Homesite Value: | + | $111,387 | |
| (+) Land Homesite Value: | + | $0 | |
| (+) Land Non-Homesite Value: | + | $70,000 | |
| (+) Curr Use (HS): | + | $0 | $0 |
| (+) Curr Use (NHS): | + | $0 | $0 |
| | | -------------------------- | |
| (=) Market Value: | = | $181,387 | |
| (–) Productivity Loss: | – | $0 | |
| | | -------------------------- | |
| (=) Subtotal: | = | $181,387 | |
| (+) Senior Appraised Value: | + | $0 | |
| (+) Non-Senior Appraised Value: | + | $181,387 | |
| | | -------------------------- | |
| (=) Total Appraised Value: | = | $181,387 | |
| (–) Senior Exemption Loss: | – | $0 | |
| (–) Exemption Loss: | – | $0 | |
| | | -------------------------- | |
| (=) Taxable Value: | = | $181,387 | |
Taxing Jurisdiction
| Owner: | POTTER, BRYAN | | |
| % Ownership: | 100.0000000000% | | |
| Total Value: | $181,387 | | |
| Tax Area: | 100 - APPRAISER-OH Schl Dist, in OH |
| CF | Conservation Futures | 0.0313996660 | $181,387 | $181,387 | $5.70 | | |
| CEM1 | Cemetery #1 | 0.0040018856 | $181,387 | $181,387 | $0.73 | | |
| COH | City of Oak Harbor | 2.3090730572 | $181,387 | $181,387 | $418.84 | | |
| OAKBOND | City of Oak Harbor BOND | 0.1902260131 | $181,387 | $181,387 | $34.50 | | |
| HOBOND | Hospital BOND | 0.1893405597 | $181,387 | $181,387 | $34.34 | | |
| HOGEN | Hospital GEN | 0.3848777722 | $181,387 | $181,387 | $69.81 | | |
| CE | County Current Expense | 0.3674210519 | $181,387 | $181,387 | $66.65 | | |
| ISLANDEMS | Hospital GEN (EMS) | 0.4952018576 | $181,387 | $181,387 | $89.82 | | |
| LIB | Library Sno-Isle GEN | 0.3039084203 | $181,387 | $181,387 | $55.13 | | |
| NWHIDPRMT | P & R N Whidbey GEN | 0.1990272349 | $181,387 | $181,387 | $36.10 | | |
| SCH201MO | School 201 Enrichment | 2.3851112745 | $181,387 | $181,387 | $432.63 | | |
| ST | State School | 1.4761226122 | $181,387 | $181,387 | $267.75 | | |
| ST2 | State School Part 2 | 0.7953803475 | $181,387 | $181,387 | $144.27 | | |
| | Total Tax Rate: | 9.1310917527 | | | | | |
| | | | | Taxes w/Current Exemptions: | $1,656.27 | | |
| | | | | Taxes w/o Exemptions: | $1,656.27 | | |
Improvement / Building
| Improvement #1: | RESIDENTIAL | State Code: | A1 | 766.2 sqft | Value: | $111,387 |
| Bathrooms: | 1 | Bedrooms: | 2 | | Ceiling: | DRY WALL SPRAYED | Exterior Wall/Cover: | WOOD SIDING | | Floor Covering: | CARPET/VINYL 80-20 | Floor Structure: | WOOD W/SUBFLOOR | | Foundation: | CONCRETE | Heating: | BASEBOARD ELECTRIC | | Interior Finish: | DRYWALL PAINT | Plumbing Fixture Cnt: | 6 | | Roof Slope: | 4" IN 12" | Roof Structure/Cover: | CJ ASPHALT |
|
| | Type | Description | Class CD | Sub Class CD | Year Built | Area |
| | BAS | BASE/MAIN FLOOR | 3 | 0 | 1980 | 766.2 |
| | UTY | STORAGE/UTILITY | 3 | 0 | 1980 | 18.0 |
| | OWP | OPEN WOOD PORCH W/STEPS | 3 | 0 | 1980 | 84.0 |
| | COMA | Common Area Improvement | 3 | 0 | 1980 | 0.0 |
Sketch
Property Image
Land
| 1 | 61 | MULTIPLE RESIDENCES | 0.0000 | 2407.00 | 0.00 | 0.00 | 1.00 | $70,000 | $0 |
Roll Value History
| 2026 | N/A | N/A | N/A | N/A | N/A |
| 2025 | $111,387 | $70,000 | $0 | $181,387 | $181,387 |
| 2024 | $115,355 | $70,000 | $0 | $185,355 | $185,355 |
| 2023 | $117,079 | $70,000 | $0 | $187,079 | $187,079 |
| 2022 | $107,676 | $70,000 | $0 | $177,676 | $177,676 |
| 2021 | $95,129 | $50,000 | $0 | $145,129 | $145,129 |
| 2020 | $92,725 | $30,000 | $0 | $122,725 | $122,725 |
| 2019 | $49,380 | $65,000 | $0 | $114,380 | $114,380 |
| 2018 | $49,567 | $65,000 | $0 | $114,567 | $114,567 |
| 2017 | $49,930 | $18,800 | $0 | $68,730 | $68,730 |
| 2016 | $50,681 | $18,800 | $0 | $69,481 | $69,481 |
| 2015 | $51,432 | $18,800 | $0 | $70,232 | $70,232 |
| 2014 | $52,182 | $18,800 | $0 | $70,982 | $70,982 |
| 2013 | $53,668 | $18,823 | $0 | $72,491 | $72,491 |
| 2012 | $55,193 | $18,823 | $0 | $74,016 | $74,016 |
| 2011 | $55,193 | $18,823 | $0 | $74,016 | $74,016 |
| 2010 | $59,041 | $41,063 | $0 | $100,104 | $100,104 |
| 2009 | $61,609 | $57,768 | $0 | $119,377 | $119,377 |
| 2008 | $61,609 | $23,348 | $0 | $84,957 | $84,957 |
| 2007 | $62,386 | $23,348 | $0 | $85,734 | $85,734 |
Deed and Sales History
| 1 | 03/09/2021 | WD | Warranty Deed | MCKENZIE, AMBER R | POTTER, BRYAN | | | $175,000.00 | 47337 | 4513469 |
| 2 | 11/09/2018 | WD | Warranty Deed | RZESZUT, PATRICK | MCKENZIE, AMBER R | | | $120,000.00 | 36626 | 4454912 |
| 3 | 12/20/2016 | ESTSEPPROP | Establish Separate Property | RZESZUT, PATRICK | RZESZUT, PATRICK | | | $0.00 | 27557 | 4414341 |
| 4 | 12/28/2016 | WD | Warranty Deed | POWELL TRUSTEE, MARVIN E | RZESZUT, PATRICK | | | $84,750.00 | 27556 | 4414339 |
| 5 | 10/07/2009 | WD | Warranty Deed | POWELL, MARVIN E | POWELL TRUSTEE, MARVIN E | | | $0.00 | 545 | 4269972 |
| 6 | 06/27/2005 | WD | Warranty Deed | PATTERSON, JERRY C/MARILYN | POWELL, MARVIN E | | | $85,000.00 | 53441 | 4141087 |
| 7 | 09/02/1998 | QCD | Quit Claim Deed | PATTERSON, JERRY C | PATTERSON, JERRY C/MARILYN | | | $0.00 | 83595 | 98018854 |
| 8 | 10/01/1992 | WD | Warranty Deed | SPENCER, JANET M | PATTERSON, JERRY C | | | $44,000.00 | 24066 | 92019753 |
| 9 | 09/01/1992 | QCD | Quit Claim Deed | PHILLIPS, ALDEN F | SPENCER, JANET M | | | $0.00 | 24065 | 92019751 |
| 10 | 04/01/1991 | QCD | Quit Claim Deed | ROGERS, JOSEPH E | PHILLIPS, ALDEN F | | | $0.00 | 11241 | 91005348 |
| 11 | 03/01/1991 | QCD | Quit Claim Deed | PHILLIPS, ALDEN F | ROGERS, JOSEPH E | | | $0.00 | 10901 | 91003919 |
| 12 | 12/01/1989 | WD | Warranty Deed | SPENCER, JANET M | PHILLIPS, ALDEN F | | | $37,500.00 | 96099 | 89019612 |
| 13 | 08/01/1987 | WD | Warranty Deed | LAMBERT, RICK A | SPENCER, JANET M | | | $40,000.00 | 72629 | 87011934 |
| 14 | 10/01/1981 | REC | Real Estate Contract | MASSEY, W L | LAMBERT, RICK A | | | $38,000.00 | 13394 | 389675 |
| 15 | 09/01/1980 | WD | Warranty Deed | Unknown | MASSEY, W L | | | $5,090.00 | 3236 | 374303 |
Payout Agreement
| No payout information available.. |