Property
Account |
| Property ID: | 527184 | Abbreviated Legal Description: | NORTHVIEW #1 LOT 46 |
| Geographic ID: | S7577-00-00046-0 | Agent Code: | |
| Type: | Real | | |
| Tax Area: | 700 - APPRAISER-S Whid Schl Dist, in town of Langley | Land Use Code | 11 |
| Open Space: | N | DFL | N |
| Historic Property: | N | Remodel Property: | N |
| Multi-Family Redevelopment: | N | | |
| Township: | | Section: | |
| Range: | |
Location |
| Address: | 752 SUZANNE CT LANGLEY, WA 98260 | Mapsco: | |
| Neighborhood: | City of Langley | Map ID: | 727 |
| Neighborhood CD: | 04-L |
Owner |
| Name: | PIKE, TRAVIS BLAIR | Owner ID: | 308597 |
| Mailing Address: | CHRISTINA MARIE PIKE 752 SUZANNE CT LANGLEY, WA 98260 | % Ownership: | 100.0000000000% |
| | | Exemptions: | |
Taxes and Assessment Details
Values
| (+) Improvement Homesite Value: | + | $0 | |
| (+) Improvement Non-Homesite Value: | + | $280,508 | |
| (+) Land Homesite Value: | + | $0 | |
| (+) Land Non-Homesite Value: | + | $400,000 | |
| (+) Curr Use (HS): | + | $0 | $0 |
| (+) Curr Use (NHS): | + | $0 | $0 |
| | | -------------------------- | |
| (=) Market Value: | = | $680,508 | |
| (–) Productivity Loss: | – | $0 | |
| | | -------------------------- | |
| (=) Subtotal: | = | $680,508 | |
| (+) Senior Appraised Value: | + | $0 | |
| (+) Non-Senior Appraised Value: | + | $680,508 | |
| | | -------------------------- | |
| (=) Total Appraised Value: | = | $680,508 | |
| (–) Senior Exemption Loss: | – | $0 | |
| (–) Exemption Loss: | – | $0 | |
| | | -------------------------- | |
| (=) Taxable Value: | = | $680,508 | |
Taxing Jurisdiction
| Owner: | PIKE, TRAVIS BLAIR | | |
| % Ownership: | 100.0000000000% | | |
| Total Value: | $680,508 | | |
| Tax Area: | 700 - APPRAISER-S Whid Schl Dist, in town of Langley |
| CF | Conservation Futures | 0.0313996660 | $680,508 | $680,508 | $21.37 | | |
| LANG | City of Langley | 1.0106798199 | $680,508 | $680,508 | $687.78 | | |
| LANGBOND | City of Langley BOND | 0.0000000000 | $680,508 | $680,508 | $0.00 | | |
| FIRE3 | Fire & Rescue Dist #3 S Whidbey GEN | 1.2130821753 | $680,508 | $680,508 | $825.51 | | |
| HOBOND | Hospital BOND | 0.1893405597 | $680,508 | $680,508 | $128.85 | | |
| HOGEN | Hospital GEN | 0.3848777722 | $680,508 | $680,508 | $261.91 | | |
| CE | County Current Expense | 0.3674210519 | $680,508 | $680,508 | $250.03 | | |
| ISLANDEMS | Hospital GEN (EMS) | 0.4952018576 | $680,508 | $680,508 | $336.99 | | |
| LIB | Library Sno-Isle GEN | 0.3039084203 | $680,508 | $680,508 | $206.81 | | |
| PORTWHID | Port of S Whidbey GEN | 0.1086004714 | $680,508 | $680,508 | $73.90 | | |
| SCH206BOND | School 206 BOND | 0.5960237832 | $680,508 | $680,508 | $405.60 | | |
| SCH206CAP | School 206 CP | 0.3066144020 | $680,508 | $680,508 | $208.65 | | |
| SCH206MO | School 206 Enrichment | 0.4808755445 | $680,508 | $680,508 | $327.24 | | |
| ST | State School | 1.4761226122 | $680,508 | $680,508 | $1,004.51 | | |
| ST2 | State School Part 2 | 0.7953803475 | $680,508 | $680,508 | $541.26 | | |
| SWHIDPRBD | P & R S Whidbey BOND | 0.0144185398 | $680,508 | $680,508 | $9.81 | | |
| SWHIDPRBD3 | P & R S Whidbey BOND3 | 0.1483535547 | $680,508 | $680,508 | $100.96 | | |
| SWHIDPRMT | P & R S Whidbey GEN | 0.4600000000 | $680,508 | $680,508 | $313.03 | | |
| | Total Tax Rate: | 8.3823005782 | | | | | |
| | | | | Taxes w/Current Exemptions: | $5,704.21 | | |
| | | | | Taxes w/o Exemptions: | $5,704.21 | | |
Improvement / Building
| Improvement #1: | RESIDENTIAL | State Code: | Y | 1604.0 sqft | Value: | $280,508 |
| Bathrooms: | 2 | Bedrooms: | 3 | | Ceiling: | DRYWALL PAINTED | Cooling: | HEAT PUMP/CONV/V | | Exterior Wall/Cover: | PLY/HARDBOARD T-111 | Floor Covering: | CARPET/VINYL 80-20 | | Floor Structure: | WOOD W/SUBFLOOR | Foundation: | CONCRETE | | Interior Finish: | DRYWALL PAINT | Plumbing Fixture Cnt: | 9 | | Roof Slope: | 5" IN 12" | Roof Structure/Cover: | CJ ASPHALT |
|
| | Type | Description | Class CD | Sub Class CD | Year Built | Area |
| | BAS | BASE/MAIN FLOOR | 3 | 0 | 1990 | 1604.0 |
| | OP1 | OPEN PORCH SLAB | 3 | 0 | 1990 | 70.0 |
| | AGR | ATTACHED GARAGE | 3 | 0 | 1990 | 430.5 |
| | OWC | OPEN WOOD PORCH W/STEPS/ROOF/C | 3 | 0 | 1990 | 54.0 |
| | OWP | OPEN WOOD PORCH W/STEPS | 3 | 0 | 1990 | 288.0 |
| | oUTI | UTILITY | 3 | 0 | 1990 | 96.0 |
Sketch
| No sketches available for this property. |
Property Image
Land
| 1 | 14 | SQ (08001-12000) | 0.0000 | 0.00 | 0.00 | 0.00 | 1.00 | $400,000 | $0 |
Roll Value History
| 2026 | N/A | N/A | N/A | N/A | N/A |
| 2025 | $280,508 | $400,000 | $0 | $680,508 | $680,508 |
| 2024 | $283,950 | $400,000 | $0 | $683,950 | $683,950 |
| 2023 | $287,394 | $380,000 | $0 | $667,394 | $667,394 |
| 2022 | $250,968 | $300,000 | $0 | $550,968 | $550,968 |
| 2021 | $221,053 | $260,000 | $0 | $481,053 | $481,053 |
| 2020 | $210,335 | $260,000 | $0 | $470,335 | $470,335 |
| 2019 | $155,431 | $250,000 | $0 | $405,431 | $405,431 |
| 2018 | $145,882 | $250,000 | $0 | $395,882 | $395,882 |
| 2017 | $146,794 | $230,000 | $0 | $376,794 | $376,794 |
| 2016 | $148,620 | $185,000 | $0 | $333,620 | $333,620 |
| 2015 | $150,444 | $160,000 | $0 | $310,444 | $310,444 |
| 2014 | $142,017 | $161,000 | $0 | $303,017 | $303,017 |
| 2013 | $143,882 | $140,000 | $0 | $283,882 | $283,882 |
| 2012 | $145,747 | $161,000 | $0 | $306,747 | $306,747 |
| 2011 | $147,613 | $175,000 | $0 | $322,613 | $322,613 |
| 2010 | $154,873 | $183,000 | $0 | $337,873 | $337,873 |
| 2009 | $161,587 | $200,000 | $0 | $361,587 | $361,587 |
| 2008 | $161,176 | $160,000 | $0 | $321,176 | $321,176 |
| 2007 | $163,065 | $160,000 | $0 | $323,065 | $323,065 |
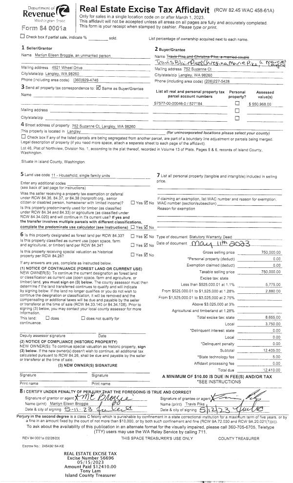
Deed and Sales History
| 1 | 05/11/2023 | WD | Warranty Deed | BROGGIE, MARILYN EILEEN | PIKE, TRAVIS BLAIR | | | $750,000.00 | 56696 | 4559896 |
| 2 | 05/17/2017 | QCD | Quit Claim Deed | BROGGIE TRUSTEE, MARILYN | BROGGIE, MARILYN EILEEN | | | $0.00 | 29424 | 4423077 |
| 3 | 09/27/2013 | TRUSTEED | Trustee's Deed | BROGGIE, MARILYN | BROGGIE TRUSTEE, MARILYN | | | $0.00 | 13106 | 4349637 |
| 4 | 03/19/2013 | WD | Warranty Deed | JEDLICKA TRUSTEE, LINDA B | BROGGIE, MARILYN | | | $249,000.00 | 10758 | 4336061 |
| 5 | 03/02/2009 | QCD | Quit Claim Deed | JEDLICKA, LINDA B | JEDLICKA TRUSTEE, LINDA B | | | $0.00 | 93199 | 4266245 |
| 6 | 11/02/1999 | WD | Warranty Deed | JEDLICKA, LINDA B | JEDLICKA, LINDA B | | | $0.00 | 95049 | 99028143 |
| 7 | 05/29/1998 | WD | Warranty Deed | JEDLICKA, LINDA B | JEDLICKA, LINDA B | | | $0.00 | 82057 | 98010776 |
| 8 | 10/01/1995 | WD | Warranty Deed | HILL, ANSELL K | JEDLICKA, JAMES R | | | $168,000.00 | 53612 | 95016566 |
| 9 | 05/01/1992 | WD | Warranty Deed | TARA, CONSTRUCTION I | HILL, ANSELL K | | | $155,000.00 | 21891 | 92009119 |
| 10 | 03/01/1990 | WD | Warranty Deed | PAULSTON, JOHN O | TARA, CONSTRUCTION I | | | $32,900.00 | 1428 | 90004692 |
| 11 | 06/01/1984 | WD | Warranty Deed | K, & W | PAULSTON, JOHN O | | | $14,000.00 | 41855 | 426422 |
| 12 | 02/01/1980 | TRUSTEED | Trustee's Deed | Unknown | K, & W | | | $4,097.00 | 842 | 366263 |
Payout Agreement
| No payout information available.. |