Property
Account |
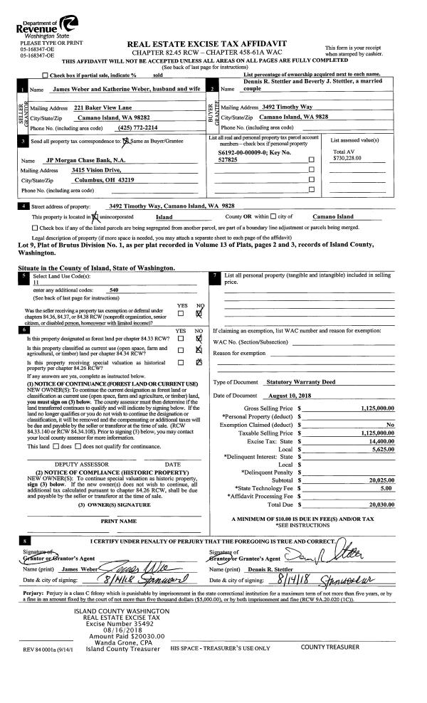
| Property ID: | 527825 | Abbreviated Legal Description: | BRUTUS LOT 9 |
| Geographic ID: | S6192-00-00009-0 | Agent Code: | |
| Type: | Real | | |
| Tax Area: | 540 - APPRAISER-Stan/Cam Schl Dist, Special Dist, improved & less than 1 acre | Land Use Code | 11 |
| Open Space: | N | DFL | N |
| Historic Property: | N | Remodel Property: | N |
| Multi-Family Redevelopment: | N | | |
| Township: | | Section: | |
| Range: | |
Location |
| Address: | 3492 TIMOTHY WAY CAMANO ISLAND, WA 98282 | Mapsco: | |
| Neighborhood: | 58RscamWV-South Cam | Map ID: | 869 |
| Neighborhood CD: | 58RscamWV |
Owner |
| Name: | STETTLER, DENNIS R | Owner ID: | 286495 |
| Mailing Address: | BEVERLY J STETTLER 3492 TIMOTHY WAY CAMANO ISLAND, WA 98282 | % Ownership: | 100.0000000000% |
| | | Exemptions: | |
Taxes and Assessment Details
Values
| (+) Improvement Homesite Value: | + | $0 | |
| (+) Improvement Non-Homesite Value: | + | $918,092 | |
| (+) Land Homesite Value: | + | $0 | |
| (+) Land Non-Homesite Value: | + | $330,000 | |
| (+) Curr Use (HS): | + | $0 | $0 |
| (+) Curr Use (NHS): | + | $0 | $0 |
| | | -------------------------- | |
| (=) Market Value: | = | $1,248,092 | |
| (–) Productivity Loss: | – | $0 | |
| | | -------------------------- | |
| (=) Subtotal: | = | $1,248,092 | |
| (+) Senior Appraised Value: | + | $0 | |
| (+) Non-Senior Appraised Value: | + | $1,248,092 | |
| | | -------------------------- | |
| (=) Total Appraised Value: | = | $1,248,092 | |
| (–) Senior Exemption Loss: | – | $0 | |
| (–) Exemption Loss: | – | $0 | |
| | | -------------------------- | |
| (=) Taxable Value: | = | $1,248,092 | |
Taxing Jurisdiction
| Owner: | STETTLER, DENNIS R | | |
| % Ownership: | 100.0000000000% | | |
| Total Value: | $1,248,092 | | |
| Tax Area: | 540 - APPRAISER-Stan/Cam Schl Dist, Special Dist, improved & less than 1 acre |
| CF | Conservation Futures | 0.0313996660 | $1,248,092 | $1,248,092 | $39.19 | | |
| EMS1 | Fire & Rescue Dist #1 Camano GEN (EMS) | 0.4998471806 | $1,248,092 | $1,248,092 | $623.86 | | |
| FIRE1 | Fire & Rescue Dist #1 Camano GEN | 1.2496603404 | $1,248,092 | $1,248,092 | $1,559.69 | | |
| FIRE1BOND | Fire & Rescue Dist #1 Camano BOND | 0.1630371212 | $1,248,092 | $1,248,092 | $203.49 | | |
| CE | County Current Expense | 0.3674210519 | $1,248,092 | $1,248,092 | $458.58 | | |
| CR | County Roads | 0.4614296361 | $1,248,092 | $1,248,092 | $575.91 | | |
| LIB | Library Sno-Isle GEN | 0.3039084203 | $1,248,092 | $1,248,092 | $379.31 | | |
| SCH205_401 | School 205-401 Enrichment | 1.3697998934 | $1,248,092 | $1,248,092 | $1,709.64 | | |
| SCH205BOND | School 205-401 BOND | 0.9354199323 | $1,248,092 | $1,248,092 | $1,167.49 | | |
| ST | State School | 1.4761226122 | $1,248,092 | $1,248,092 | $1,842.34 | | |
| ST2 | State School Part 2 | 0.7953803475 | $1,248,092 | $1,248,092 | $992.71 | | |
| | Total Tax Rate: | 7.6534262019 | | | | | |
| | | | | Taxes w/Current Exemptions: | $9,552.21 | | |
| | | | | Taxes w/o Exemptions: | $9,552.21 | | |
Improvement / Building
| Improvement #1: | RESIDENTIAL | State Code: | Y | 3198.5 sqft | Value: | $918,092 |
| Bathrooms: | 2 | Bedrooms: | 3 | | Ceiling: | DRYWALL PAINTED | Exterior Wall/Cover: | CEMENT FIBER | | Floor Covering: | HARDWOOD/CARP 60-40 | Floor Structure: | WOOD W/SUBFLOOR | | Foundation: | CONCRETE | Heating: | FHA GAS | | Interior Finish: | DRYWALL PAINT | Plumbing Fixture Cnt: | 12 | | Roof Slope: | 6" IN 12" | Roof Structure/Cover: | CJ ASPHALT |
|
| | Type | Description | Class CD | Sub Class CD | Year Built | Area |
| | BAS | BASE/MAIN FLOOR | 6 | 0 | 1990 | 3198.5 |
| | OP1 | OPEN PORCH SLAB | 6 | 0 | 1990 | 1688.3 |
| | OP4 | OPEN PORCH W/CEILING-ROOF | 6 | 0 | 1990 | 51.0 |
| | AGR | ATTACHED GARAGE | 6 | 0 | 1990 | 884.5 |
| | OWP | OPEN WOOD PORCH W/STEPS | 6 | 0 | 1990 | 483.7 |
| | OWC | OPEN WOOD PORCH W/STEPS/ROOF/C | 6 | 0 | 1990 | 513.0 |
Sketch
Property Image
Land
| 1 | 15 | SQ (12001-21780) | 0.5000 | 21780.00 | 100.00 | 0.00 | 1.00 | $330,000 | $0 |
Roll Value History
| 2026 | N/A | N/A | N/A | N/A | N/A |
| 2025 | $918,092 | $330,000 | $0 | $1,248,092 | $1,248,092 |
| 2024 | $925,169 | $330,000 | $0 | $1,255,169 | $1,255,169 |
| 2023 | $932,752 | $310,000 | $0 | $1,242,752 | $1,242,752 |
| 2022 | $851,492 | $280,000 | $0 | $1,131,492 | $1,131,492 |
| 2021 | $746,400 | $240,000 | $0 | $986,400 | $986,400 |
| 2020 | $725,397 | $300,000 | $0 | $1,025,397 | $1,025,397 |
| 2019 | $753,607 | $350,000 | $0 | $1,103,607 | $1,103,607 |
| 2018 | $560,228 | $170,000 | $0 | $730,228 | $730,228 |
| 2017 | $373,313 | $170,000 | $0 | $543,313 | $543,313 |
| 2016 | $377,981 | $120,000 | $0 | $497,981 | $497,981 |
| 2015 | $332,724 | $200,000 | $0 | $532,724 | $532,724 |
| 2014 | $337,220 | $200,000 | $0 | $537,220 | $537,220 |
| 2013 | $433,999 | $210,917 | $0 | $644,916 | $644,916 |
| 2012 | $439,566 | $237,727 | $0 | $677,293 | $677,293 |
| 2011 | $445,133 | $297,159 | $0 | $742,292 | $742,292 |
| 2010 | $463,629 | $330,177 | $0 | $793,806 | $793,806 |
| 2009 | $483,457 | $362,268 | $0 | $845,725 | $845,725 |
| 2008 | $489,788 | $345,535 | $0 | $835,323 | $835,323 |
| 2007 | $495,953 | $345,535 | $0 | $841,488 | $841,488 |
Deed and Sales History
| 1 | 08/10/2018 | WD | Warranty Deed | WEBER, JAMES | STETTLER, DENNIS R | | | $1,125,000.00 | 35492 | 4450013 |
| 2 | 04/12/2017 | WD | Warranty Deed | BERG, ANDREW | WEBER, JAMES | | | $575,000.00 | 28884 | 4420756 |
| 3 | 10/27/2015 | WD | Warranty Deed | MAHONEY TRUSTEE, LAQUEDA | BERG, ANDREW | | | $493,000.00 | 21960 | 4388568 |
| 4 | 07/01/2015 | TRUSTEED | Trustee's Deed | MAHONEY, LAQUEDA | MAHONEY TRUSTEE, LAQUEDA | | | $0.00 | 20527 | 4382416 |
| 5 | 06/10/2013 | ESTSEPPROP | Establish Separate Property | MAHONEY, LAQUEDA | MAHONEY, LAQUEDA | | | $0.00 | 11709 | 4342318 |
| 6 | 06/13/2013 | WD | Warranty Deed | SMITH, JOSEPH P | MAHONEY, LAQUEDA | | | $450,000.00 | 11708 | 4342317 |
| 7 | 07/02/2007 | WD | Warranty Deed | MAUND, DAVID J | SMITH, JOSEPH P | | | $848,000.00 | 72280 | 4206512 |
| 8 | 06/15/1999 | WD | Warranty Deed | FAY, STEVEN E | MAUND, DAVID J | | | $430,000.00 | 92415 | 99014751 |
| 9 | 08/01/1989 | WD | Warranty Deed | SMITH, LLOYD W | FAY, STEVEN E | | | $39,500.00 | 93237 | 89010863 |
| 10 | 11/01/1986 | WD | Warranty Deed | HOME, SAVINGS & | SMITH, LLOYD W | | | $17,500.00 | 63156 | 86014231 |
| 11 | 06/01/1983 | TRUSTEED | Trustee's Deed | HOVIK, ELMER C | HOME, SAVINGS & | | | $0.00 | 31682 | 0 |
| 12 | 09/01/1978 | OTHER | Other - Misc. Documents | Unknown | HOVIK, ELMER C | | | $170,000.00 | 84528 | 339775 |
Payout Agreement
| No payout information available.. |