Property
Account |
| Property ID: | 527852 | Abbreviated Legal Description: | BRUTUS LOT 13 |
| Geographic ID: | S6192-00-00013-0 | Agent Code: | |
| Type: | Real | | |
| Tax Area: | 540 - APPRAISER-Stan/Cam Schl Dist, Special Dist, improved & less than 1 acre | Land Use Code | 11 |
| Open Space: | N | DFL | N |
| Historic Property: | N | Remodel Property: | N |
| Multi-Family Redevelopment: | N | | |
| Township: | | Section: | |
| Range: | |
Location |
| Address: | 3472 TIMOTHY WAY CAMANO ISLAND, WA 98282 | Mapsco: | |
| Neighborhood: | 58RscamWV-South Cam | Map ID: | 869 |
| Neighborhood CD: | 58RscamWV |
Owner |
| Name: | ZANDER, JASON L | Owner ID: | 304448 |
| Mailing Address: | MARJORIE K ZANDER 9022 NE 40TH PL YARROW POINT, WA 98004 | % Ownership: | 100.0000000000% |
| | | Exemptions: | |
Taxes and Assessment Details
Values
| (+) Improvement Homesite Value: | + | $0 | |
| (+) Improvement Non-Homesite Value: | + | $837,609 | |
| (+) Land Homesite Value: | + | $0 | |
| (+) Land Non-Homesite Value: | + | $500,000 | |
| (+) Curr Use (HS): | + | $0 | $0 |
| (+) Curr Use (NHS): | + | $0 | $0 |
| | | -------------------------- | |
| (=) Market Value: | = | $1,337,609 | |
| (–) Productivity Loss: | – | $0 | |
| | | -------------------------- | |
| (=) Subtotal: | = | $1,337,609 | |
| (+) Senior Appraised Value: | + | $0 | |
| (+) Non-Senior Appraised Value: | + | $1,337,609 | |
| | | -------------------------- | |
| (=) Total Appraised Value: | = | $1,337,609 | |
| (–) Senior Exemption Loss: | – | $0 | |
| (–) Exemption Loss: | – | $0 | |
| | | -------------------------- | |
| (=) Taxable Value: | = | $1,337,609 | |
Taxing Jurisdiction
| Owner: | ZANDER, JASON L | | |
| % Ownership: | 100.0000000000% | | |
| Total Value: | $1,337,609 | | |
| Tax Area: | 540 - APPRAISER-Stan/Cam Schl Dist, Special Dist, improved & less than 1 acre |
| CF | Conservation Futures | 0.0313996660 | $1,337,609 | $1,337,609 | $42.00 | | |
| EMS1 | Fire & Rescue Dist #1 Camano GEN (EMS) | 0.4998471806 | $1,337,609 | $1,337,609 | $668.60 | | |
| FIRE1 | Fire & Rescue Dist #1 Camano GEN | 1.2496603404 | $1,337,609 | $1,337,609 | $1,671.56 | | |
| FIRE1BOND | Fire & Rescue Dist #1 Camano BOND | 0.1630371212 | $1,337,609 | $1,337,609 | $218.08 | | |
| CE | County Current Expense | 0.3674210519 | $1,337,609 | $1,337,609 | $491.47 | | |
| CR | County Roads | 0.4614296361 | $1,337,609 | $1,337,609 | $617.21 | | |
| LIB | Library Sno-Isle GEN | 0.3039084203 | $1,337,609 | $1,337,609 | $406.51 | | |
| SCH205_401 | School 205-401 Enrichment | 1.3697998934 | $1,337,609 | $1,337,609 | $1,832.26 | | |
| SCH205BOND | School 205-401 BOND | 0.9354199323 | $1,337,609 | $1,337,609 | $1,251.23 | | |
| ST | State School | 1.4761226122 | $1,337,609 | $1,337,609 | $1,974.47 | | |
| ST2 | State School Part 2 | 0.7953803475 | $1,337,609 | $1,337,609 | $1,063.91 | | |
| | Total Tax Rate: | 7.6534262019 | | | | | |
| | | | | Taxes w/Current Exemptions: | $10,237.30 | | |
| | | | | Taxes w/o Exemptions: | $10,237.30 | | |
Improvement / Building
| Improvement #1: | RESIDENTIAL | State Code: | Y | 4200.8 sqft | Value: | $837,609 |
| Bathrooms: | 3 | Bedrooms: | 5 | | Ceiling: | DRYWALL PAINTED | Exterior Wall/Cover: | CEMENT FIBER | | Floor Covering: | HARDWOOD/CARP 60-40 | Floor Structure: | WOOD W/SUBFLOOR | | Foundation: | CONCRETE | Heating: | RADIANT FLOOR | | Interior Finish: | DRYWALL PAINT | Plumbing Fixture Cnt: | 20 | | Roof Slope: | 6" IN 12" | Roof Structure/Cover: | CJ ASPHALT |
|
| | Type | Description | Class CD | Sub Class CD | Year Built | Area |
| | BAS | BASE/MAIN FLOOR | 5 | 0 | 2006 | 2553.4 |
| | OP4 | OPEN PORCH W/CEILING-ROOF | 5 | 0 | 2006 | 66.5 |
| | AGR | ATTACHED GARAGE | 5 | 0 | 2006 | 866.5 |
| | OWP | OPEN WOOD PORCH W/STEPS | 5 | 0 | 2006 | 178.8 |
| | OWP | OPEN WOOD PORCH W/STEPS | 5 | 0 | 2006 | 367.1 |
| | OWC | OPEN WOOD PORCH W/STEPS/ROOF/C | 5 | 0 | 2006 | 270.1 |
| | DWN | DOWNSTAIRS LIVING AREA | 5 | 0 | 2006 | 1647.4 |
| | OWP | OPEN WOOD PORCH W/STEPS | 5 | 0 | 2006 | 139.8 |
Sketch
Property Image
Land
| 1 | HB | HIGH BLUFF | 0.5000 | 21780.00 | 100.00 | 0.00 | 1.00 | $500,000 | $0 |
Roll Value History
| 2026 | N/A | N/A | N/A | N/A | N/A |
| 2025 | $837,609 | $500,000 | $0 | $1,337,609 | $1,337,609 |
| 2024 | $844,648 | $525,000 | $0 | $1,369,648 | $1,369,648 |
| 2023 | $852,154 | $525,000 | $0 | $1,377,154 | $1,377,154 |
| 2022 | $777,572 | $425,000 | $0 | $1,202,572 | $1,202,572 |
| 2021 | $694,297 | $375,000 | $0 | $1,069,297 | $1,069,297 |
| 2020 | $674,147 | $300,000 | $0 | $974,147 | $974,147 |
| 2019 | $600,548 | $350,000 | $0 | $950,548 | $950,548 |
| 2018 | $602,125 | $275,000 | $0 | $877,125 | $877,125 |
| 2017 | $535,240 | $250,000 | $0 | $785,240 | $785,240 |
| 2016 | $541,186 | $200,000 | $0 | $741,186 | $741,186 |
| 2015 | $528,040 | $200,000 | $0 | $728,040 | $728,040 |
| 2014 | $533,809 | $200,000 | $0 | $733,809 | $733,809 |
| 2013 | $539,578 | $210,917 | $0 | $750,495 | $750,495 |
| 2012 | $545,344 | $237,727 | $0 | $783,071 | $783,071 |
| 2011 | $551,113 | $297,159 | $0 | $848,272 | $848,272 |
| 2010 | $574,367 | $330,177 | $0 | $904,544 | $904,544 |
| 2009 | $583,902 | $362,268 | $0 | $946,170 | $946,170 |
| 2008 | $589,868 | $345,535 | $0 | $935,403 | $935,403 |
| 2007 | $589,910 | $345,535 | $0 | $935,445 | $935,445 |
Deed and Sales History
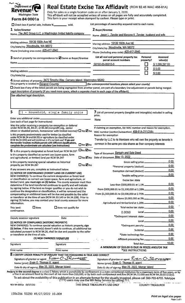
| 1 | 05/13/2022 | BARGSLD | Bargain And Sale Deed | THE JMZ GROUP LLC | ZANDER, JASON L | | | $0.00 | 53250 | 4545819 |
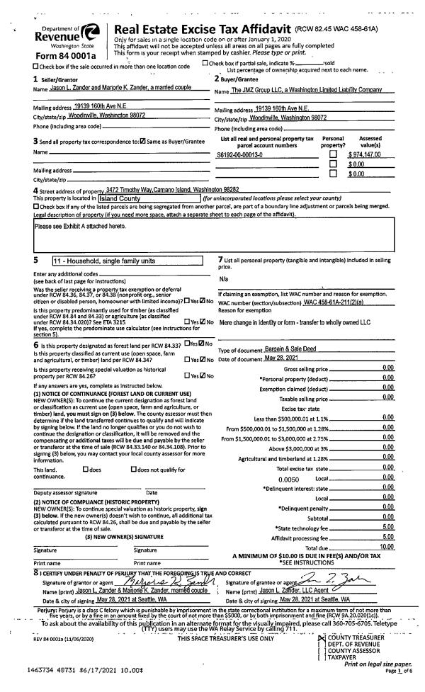
| 2 | 05/28/2021 | BARGSLD | Bargain And Sale Deed | ZANDER, JASON L | THE JMZ GROUP LLC | | | $0.00 | 48731 | 4522131 |
| 3 | 05/09/2017 | WD | Warranty Deed | FOO, Y PIN | ZANDER, JASON L | | | $899,888.00 | 29249 | 4422355 |
| 4 | 05/05/2005 | WD | Warranty Deed | ANDERSON, GEOFFREY H | FOO, Y PIN | | | $324,999.00 | 52010 | 4133535 |
| 5 | 09/15/2004 | WD | Warranty Deed | OMAN, ROBERT D | ANDERSON, GEOFFREY H | | | $150,000.00 | 44338 | 4112922 |
| 6 | 11/23/1999 | WD | Warranty Deed | CHANG, YUN FONG | OMAN, ROBERT D | | | $125,000.00 | 94918 | 99027546 |
| 7 | 10/01/1987 | WD | Warranty Deed | HOME, SAVINGS & | CHANG, YUN F | | | $37,500.00 | 73307 | 87014478 |
| 8 | 06/01/1983 | TRUSTEED | Trustee's Deed | HOVIK, ELMER C | HOME, SAVINGS & | | | $0.00 | 31682 | 0 |
| 9 | 09/01/1978 | OTHER | Other - Misc. Documents | Unknown | HOVIK, ELMER C | | | $170,000.00 | 84528 | 339775 |
| 10 | 01/01/1900 | OTHER | Other - Misc. Documents | CHANG, YUN F | CHANG, YUN FONG | | | $0.00 | 0 | 0 |
Payout Agreement
| No payout information available.. |