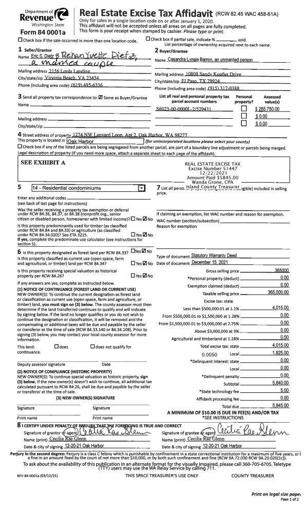
Property
Account |
| Property ID: | 529431 | Abbreviated Legal Description: | ALDERBROOK CONDO #1 APT L-2 3.571% INT IN LAND |
| Geographic ID: | S6023-00-0000L-2 | Agent Code: | |
| Type: | Real | | |
| Tax Area: | 100 - APPRAISER-OH Schl Dist, in OH | Land Use Code | 14 |
| Open Space: | N | DFL | N |
| Historic Property: | N | Remodel Property: | N |
| Multi-Family Redevelopment: | N | | |
| Township: | | Section: | |
| Range: | |
Location |
| Address: | 1274 NW LANYARD LOOP APT 2 OAK HARBOR, WA 98277 | Mapsco: | |
| Neighborhood: | 3B*OH-alderbrooke | Map ID: | 252 |
| Neighborhood CD: | 3B*OHaldbr |
Owner |
| Name: | BARRON, CASANDRA LYNSIE | Owner ID: | 302455 |
| Mailing Address: | 11274 NW LANYARD LP #2 OAK HARBOR, WA 98277 | % Ownership: | 100.0000000000% |
| | | Exemptions: | |
Taxes and Assessment Details
Values
| (+) Improvement Homesite Value: | + | $0 | |
| (+) Improvement Non-Homesite Value: | + | $207,239 | |
| (+) Land Homesite Value: | + | $0 | |
| (+) Land Non-Homesite Value: | + | $160,000 | |
| (+) Curr Use (HS): | + | $0 | $0 |
| (+) Curr Use (NHS): | + | $0 | $0 |
| | | -------------------------- | |
| (=) Market Value: | = | $367,239 | |
| (–) Productivity Loss: | – | $0 | |
| | | -------------------------- | |
| (=) Subtotal: | = | $367,239 | |
| (+) Senior Appraised Value: | + | $0 | |
| (+) Non-Senior Appraised Value: | + | $367,239 | |
| | | -------------------------- | |
| (=) Total Appraised Value: | = | $367,239 | |
| (–) Senior Exemption Loss: | – | $0 | |
| (–) Exemption Loss: | – | $0 | |
| | | -------------------------- | |
| (=) Taxable Value: | = | $367,239 | |
Taxing Jurisdiction
| Owner: | BARRON, CASANDRA LYNSIE | | |
| % Ownership: | 100.0000000000% | | |
| Total Value: | $367,239 | | |
| Tax Area: | 100 - APPRAISER-OH Schl Dist, in OH |
| CF | Conservation Futures | 0.0313996660 | $367,239 | $367,239 | $11.53 | | |
| CEM1 | Cemetery #1 | 0.0040018856 | $367,239 | $367,239 | $1.47 | | |
| COH | City of Oak Harbor | 2.3090730572 | $367,239 | $367,239 | $847.98 | | |
| OAKBOND | City of Oak Harbor BOND | 0.1902260131 | $367,239 | $367,239 | $69.86 | | |
| HOBOND | Hospital BOND | 0.1893405597 | $367,239 | $367,239 | $69.53 | | |
| HOGEN | Hospital GEN | 0.3848777722 | $367,239 | $367,239 | $141.34 | | |
| CE | County Current Expense | 0.3674210519 | $367,239 | $367,239 | $134.93 | | |
| ISLANDEMS | Hospital GEN (EMS) | 0.4952018576 | $367,239 | $367,239 | $181.86 | | |
| LIB | Library Sno-Isle GEN | 0.3039084203 | $367,239 | $367,239 | $111.61 | | |
| NWHIDPRMT | P & R N Whidbey GEN | 0.1990272349 | $367,239 | $367,239 | $73.09 | | |
| SCH201MO | School 201 Enrichment | 2.3851112745 | $367,239 | $367,239 | $875.91 | | |
| ST | State School | 1.4761226122 | $367,239 | $367,239 | $542.09 | | |
| ST2 | State School Part 2 | 0.7953803475 | $367,239 | $367,239 | $292.09 | | |
| | Total Tax Rate: | 9.1310917527 | | | | | |
| | | | | Taxes w/Current Exemptions: | $3,353.29 | | |
| | | | | Taxes w/o Exemptions: | $3,353.29 | | |
Improvement / Building
| Improvement #1: | RESIDENTIAL | State Code: | F1 | 1386.0 sqft | Value: | $207,239 |
| Bathrooms: | 2.5 | Bedrooms: | 3 | | Ceiling: | DRY WALL SPRAYED | Exterior Wall/Cover: | WOOD SIDING | | Floor Covering: | CARPET/VINYL 80-20 | Floor Structure: | WOOD W/SUBFLOOR | | Foundation: | CONCRETE | Heating: | BASEBOARD ELECTRIC | | Interior Finish: | DRYWALL PAINT | Plumbing Fixture Cnt: | 11 | | Roof Slope: | 4" IN 12" | Roof Structure/Cover: | CJ ASPHALT |
|
| | Type | Description | Class CD | Sub Class CD | Year Built | Area |
| | BAS | BASE/MAIN FLOOR | 3 | 0 | 1983 | 626.0 |
| | OP4 | OPEN PORCH W/CEILING-ROOF | 3 | 0 | 1983 | 28.0 |
| | BIG | BUILT IN GARAGE | 3 | 0 | 1983 | 312.0 |
| | UPS | UPPER STORY | 3 | 0 | 1983 | 760.0 |
| | OWP | OPEN WOOD PORCH W/STEPS | 3 | 0 | 1983 | 100.0 |
| | COMA | Common Area Improvement | 3 | 0 | 1983 | 0.0 |
Sketch
Property Image
Land
| 1 | 61 | MULTIPLE RESIDENCES | 0.2696 | 11743.78 | 0.00 | 0.00 | 1.00 | $160,000 | $0 |
Roll Value History
| 2026 | N/A | N/A | N/A | N/A | N/A |
| 2025 | $207,239 | $160,000 | $0 | $367,239 | $367,239 |
| 2024 | $214,290 | $150,000 | $0 | $364,290 | $364,290 |
| 2023 | $217,161 | $140,000 | $0 | $357,161 | $357,161 |
| 2022 | $199,346 | $130,000 | $0 | $329,346 | $329,346 |
| 2021 | $175,750 | $90,000 | $0 | $265,750 | $265,750 |
| 2020 | $171,024 | $90,000 | $0 | $261,024 | $261,024 |
| 2019 | $131,309 | $110,000 | $0 | $241,309 | $241,309 |
| 2018 | $131,780 | $65,000 | $0 | $196,780 | $196,780 |
| 2017 | $132,730 | $9,000 | $0 | $141,730 | $141,730 |
| 2016 | $134,626 | $9,000 | $0 | $143,626 | $143,626 |
| 2015 | $109,217 | $9,000 | $0 | $118,217 | $118,217 |
| 2014 | $110,736 | $9,000 | $0 | $119,736 | $119,736 |
| 2013 | $112,251 | $55,524 | $0 | $167,775 | $167,775 |
| 2012 | $115,285 | $55,524 | $0 | $170,809 | $170,809 |
| 2011 | $115,285 | $55,524 | $0 | $170,809 | $170,809 |
| 2010 | $120,997 | $31,728 | $0 | $152,725 | $152,725 |
| 2009 | $126,153 | $59,807 | $0 | $185,960 | $185,960 |
| 2008 | $127,671 | $66,153 | $0 | $193,824 | $193,824 |
| 2007 | $136,886 | $66,153 | $0 | $203,039 | $203,039 |
Deed and Sales History
| 1 | 12/15/2021 | WD | Warranty Deed | DIETZ, ERIC S | BARRON, CASANDRA LYNSIE | | | $365,000.00 | 51447 | 4536505 |
| 2 | 02/01/1991 | WD | Warranty Deed | THOMSON, MARY D | DIETZ, ERIC S | | | $82,000.00 | 10500 | 91002317 |
| 3 | 05/01/1989 | WD | Warranty Deed | KOONTZ, DAVID M | THOMSON, MARY D | | | $69,000.00 | 91842 | 89006420 |
| 4 | 08/01/1984 | WD | Warranty Deed | WALDEN, STEPHEN M | KOONTZ, DAVID M | | | $65,900.00 | 42426 | 84002070 |
| 5 | 01/01/1900 | OTHER | Other - Misc. Documents | Unknown | WALDEN, STEPHEN M | | | $0.00 | 0 | 0 |
Payout Agreement
| No payout information available.. |