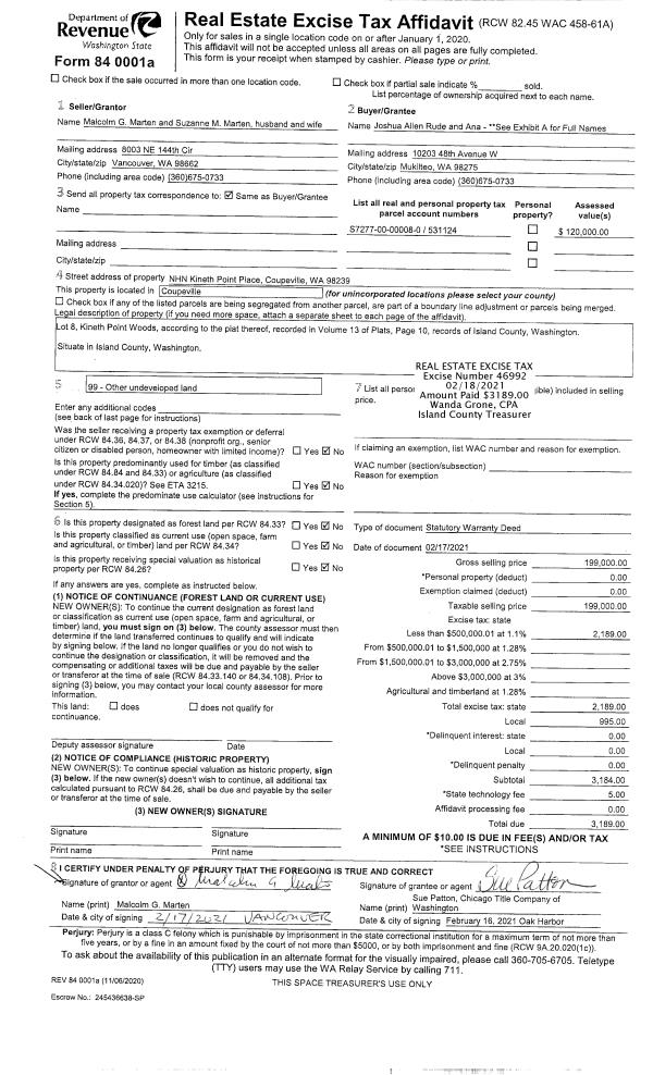
Property
Account |
| Property ID: | 531124 | Abbreviated Legal Description: | KINETH POINT WOODS LOT 8 |
| Geographic ID: | S7277-00-00008-0 | Agent Code: | |
| Type: | Real | | |
| Tax Area: | 310 - APPRAISER-Cpvl Schl Dist, outside Cpvl, improved & 1 acre or less | Land Use Code | 11 |
| Open Space: | N | DFL | N |
| Historic Property: | N | Remodel Property: | N |
| Multi-Family Redevelopment: | N | | |
| Township: | | Section: | |
| Range: | |
Location |
| Address: | | Mapsco: | |
| Neighborhood: | Cycle 2 | Map ID: | 184 |
| Neighborhood CD: | 2 |
Owner |
| Name: | RUDE, JOSHUA ALLEN | Owner ID: | 298162 |
| Mailing Address: | ANASTASIA VLADIMIROVNA RUDE & JOANNE RUTH RUDE 704 NW CAPSTAN CT COUPEVILLE, WA 98239 | % Ownership: | 100.0000000000% |
| | | Exemptions: | |
Taxes and Assessment Details
Values
| (+) Improvement Homesite Value: | + | $0 | |
| (+) Improvement Non-Homesite Value: | + | $41,616 | |
| (+) Land Homesite Value: | + | $0 | |
| (+) Land Non-Homesite Value: | + | $175,000 | |
| (+) Curr Use (HS): | + | $0 | $0 |
| (+) Curr Use (NHS): | + | $0 | $0 |
| | | -------------------------- | |
| (=) Market Value: | = | $216,616 | |
| (–) Productivity Loss: | – | $0 | |
| | | -------------------------- | |
| (=) Subtotal: | = | $216,616 | |
| (+) Senior Appraised Value: | + | $0 | |
| (+) Non-Senior Appraised Value: | + | $216,616 | |
| | | -------------------------- | |
| (=) Total Appraised Value: | = | $216,616 | |
| (–) Senior Exemption Loss: | – | $0 | |
| (–) Exemption Loss: | – | $0 | |
| | | -------------------------- | |
| (=) Taxable Value: | = | $216,616 | |
Taxing Jurisdiction
| Owner: | RUDE, JOSHUA ALLEN | | |
| % Ownership: | 100.0000000000% | | |
| Total Value: | $216,616 | | |
| Tax Area: | 310 - APPRAISER-Cpvl Schl Dist, outside Cpvl, improved & 1 acre or less |
| CF | Conservation Futures | 0.0313996660 | $216,616 | $216,616 | $6.80 | | |
| CEM2 | Cemetery #2 | 0.0092609791 | $216,616 | $216,616 | $2.01 | | |
| FIRE5 | Fire & Rescue Dist #5 C Whidbey GEN | 1.1892169230 | $216,616 | $216,616 | $257.60 | | |
| FIRE5BOND | Fire & Rescue Dist #5 C Whidbey BOND | 0.1394359503 | $216,616 | $216,616 | $30.20 | | |
| HOBOND | Hospital BOND | 0.1893405597 | $216,616 | $216,616 | $41.01 | | |
| HOGEN | Hospital GEN | 0.3848777722 | $216,616 | $216,616 | $83.37 | | |
| CE | County Current Expense | 0.3674210519 | $216,616 | $216,616 | $79.59 | | |
| CR | County Roads | 0.4614296361 | $216,616 | $216,616 | $99.95 | | |
| ISLANDEMS | Hospital GEN (EMS) | 0.4952018576 | $216,616 | $216,616 | $107.27 | | |
| LIB | Library Sno-Isle GEN | 0.3039084203 | $216,616 | $216,616 | $65.83 | | |
| LIBCAP | Library Sno-Isle BOND (Cap Fac Imp Area) | 0.0528562629 | $216,616 | $216,616 | $11.45 | | |
| POCOUP | Port of Coupeville GEN | 0.1065226063 | $216,616 | $216,616 | $23.07 | | |
| POCOUPIDD | Port of Coupeville IDD | 0.3353038577 | $216,616 | $216,616 | $72.63 | | |
| COUPSDTECH | School 204 CP (TECH) | 0.1215123397 | $216,616 | $216,616 | $26.32 | | |
| SCH204MO | School 204 Enrichment | 0.6416662518 | $216,616 | $216,616 | $139.00 | | |
| ST | State School | 1.4761226122 | $216,616 | $216,616 | $319.75 | | |
| ST2 | State School Part 2 | 0.7953803475 | $216,616 | $216,616 | $172.29 | | |
| | Total Tax Rate: | 7.1008570943 | | | | | |
| | | | | Taxes w/Current Exemptions: | $1,538.14 | | |
| | | | | Taxes w/o Exemptions: | $1,538.14 | | |
Improvement / Building
| Improvement #1: | RESIDENTIAL | State Code: | Y | 0.0 sqft | Value: | $41,616 |
Sketch
Property Image
Land
| 1 | 16 | AC (00.51-01.00) | 0.7124 | 31032.14 | 0.00 | 0.00 | 1.00 | $175,000 | $0 |
Roll Value History
| 2026 | N/A | N/A | N/A | N/A | N/A |
| 2025 | $41,616 | $175,000 | $0 | $216,616 | $216,616 |
| 2024 | $25,000 | $175,000 | $0 | $200,000 | $200,000 |
| 2023 | $25,000 | $175,000 | $0 | $200,000 | $200,000 |
| 2022 | $0 | $160,000 | $0 | $160,000 | $160,000 |
| 2021 | $0 | $140,000 | $0 | $140,000 | $140,000 |
| 2020 | $0 | $120,000 | $0 | $120,000 | $120,000 |
| 2019 | $0 | $90,000 | $0 | $90,000 | $90,000 |
| 2018 | $0 | $75,000 | $0 | $75,000 | $75,000 |
| 2017 | $0 | $75,000 | $0 | $75,000 | $75,000 |
| 2016 | $0 | $75,000 | $0 | $75,000 | $75,000 |
| 2015 | $0 | $75,000 | $0 | $75,000 | $75,000 |
| 2014 | $0 | $75,000 | $0 | $75,000 | $75,000 |
| 2013 | $0 | $75,000 | $0 | $75,000 | $75,000 |
| 2012 | $0 | $70,000 | $0 | $70,000 | $70,000 |
| 2011 | $0 | $100,000 | $0 | $100,000 | $100,000 |
| 2010 | $0 | $100,000 | $0 | $100,000 | $100,000 |
| 2009 | $0 | $125,000 | $0 | $125,000 | $125,000 |
| 2008 | $0 | $145,000 | $0 | $145,000 | $145,000 |
| 2007 | $0 | $145,000 | $0 | $145,000 | $145,000 |
Deed and Sales History
| 1 | 02/17/2021 | WD | Warranty Deed | MARTEN, MALCOLM G | RUDE, JOSHUA ALLEN | | | $199,000.00 | 46992 | 4511311 |
| 2 | 03/10/2000 | WD | Warranty Deed | BUFFINGTON, JEROME A | MARTEN, MALCOLM G | | | $93,500.00 | 940 | 20004663 |
| 3 | 05/04/1999 | WD | Warranty Deed | GARCIA, RUDY/ S | BUFFINGTON, JEROME A | | | $82,000.00 | 91796 | 99011372 |
| 4 | 01/01/1994 | WD | Warranty Deed | O'NEILL, RAYMOND E | GARCIA, RUDY/ S | | | $62,950.00 | 40220 | 94001248 |
| 5 | 10/01/1989 | WD | Warranty Deed | SEIDELHUBER, ROBERT V | O'NEILL, RAYMOND E | | | $19,950.00 | 94640 | 89015114 |
| 6 | 03/01/1987 | QCD | Quit Claim Deed | SEIDELHUBER, R. V | SEIDELHUBER, ROBERT V | | | $0.00 | 70650 | 87003547 |
| 7 | 02/01/1987 | DECREE | Divorce Decree/Legal Separation | SEIDELHUBER, R. V | SEIDELHUBER, R. V | | | $0.00 | 70533 | 87003212 |
| 8 | 11/01/1984 | QCD | Quit Claim Deed | SEIDELHUBER, R. V | SEIDELHUBER, R. V | | | $0.00 | 43282 | 84005441 |
| 9 | 07/01/1983 | WD | Warranty Deed | COSTELLO, EDWARD M | SEIDELHUBER, R. V | | | $0.00 | 31933 | 412118 |
| 10 | 01/01/1900 | OTHER | Other - Misc. Documents | Unknown | COSTELLO, EDWARD M | | | $0.00 | 0 | 0 |
Payout Agreement
| No payout information available.. |