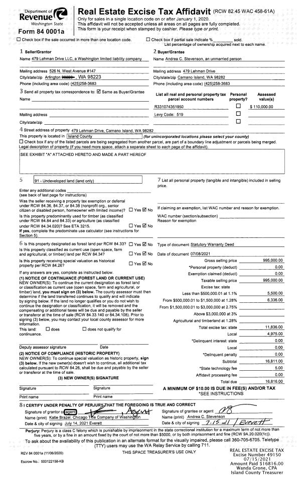
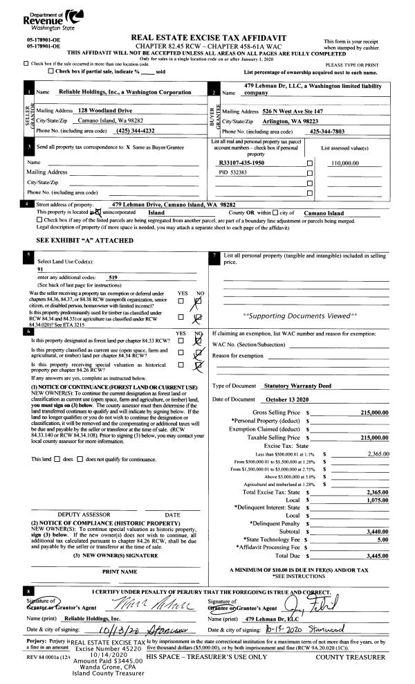
Property
Account |
| Property ID: | 532383 | Abbreviated Legal Description: | TRACT D - SUR V4P90 IN GL 4 BG MC SEC 7 & 18 ALG ML N4* 576.2' N6*E1705.4' N38*E865 .9' N44*E436.26' N45*W346. 99' TO NLY CR HAGER TR AF# 117935 S44*W600' TO SLY CR TR C DRIFTWOOD SH #1 N44* E1405.14' TPB N44*E300' N86 W706.03' N83*W600' TO ELN LEHMAN RD |
| Geographic ID: | R33107-435-1950 | Agent Code: | |
| Type: | Real | | |
| Tax Area: | 512 - APPRAISER-Stan/Cam Schl Dist, improved, greater than 1 acre | Land Use Code | 11 |
| Open Space: | N | DFL | N |
| Historic Property: | N | Remodel Property: | N |
| Multi-Family Redevelopment: | N | | |
| Township: | 31 | Section: | 07 |
| Range: | R3 |
Location |
| Address: | 479 LEHMAN DR CAMANO ISLAND, WA 98282 | Mapsco: | |
| Neighborhood: | Cycle 5 | Map ID: | 923 |
| Neighborhood CD: | 5 |
Owner |
| Name: | STEVENSON, ANDREA C | Owner ID: | 300202 |
| Mailing Address: | 479 LEHMAN DR CAMANO ISLAND, WA 98282 | % Ownership: | 100.0000000000% |
| | | Exemptions: | |
Taxes and Assessment Details
Values
| (+) Improvement Homesite Value: | + | N/A | |
| (+) Improvement Non-Homesite Value: | + | N/A | |
| (+) Land Homesite Value: | + | N/A | |
| (+) Land Non-Homesite Value: | + | N/A | Ag / Timber Use Value |
| (+) Curr Use (HS): | + | N/A | N/A |
| (+) Curr Use (NHS): | + | N/A | N/A |
| | | -------------------------- | |
| (=) Market Value: | = | N/A | |
| (–) Productivity Loss: | – | N/A | |
| | | -------------------------- | |
| (=) Subtotal: | = | N/A | |
| (+) Senior Appraised Value: | + | N/A | |
| (+) Non-Senior Appraised Value: | + | N/A | |
| | | -------------------------- | |
| (=) Total Appraised Value: | = | N/A | |
| (–) Senior Exemption Loss: | – | N/A | |
| (–) Exemption Loss: | – | N/A | |
| | | -------------------------- | |
| (=) Taxable Value: | = | N/A | |
Taxing Jurisdiction
| Owner: | STEVENSON, ANDREA C | | |
| % Ownership: | 100.0000000000% | | |
| Total Value: | N/A | | |
| Tax Area: | 512 - APPRAISER-Stan/Cam Schl Dist, improved, greater than 1 acre |
| CF | Conservation Futures | N/A | N/A | N/A | N/A | | |
| CCD | Camano Conservation District | N/A | N/A | N/A | N/A | | |
| EMS1 | Fire & Rescue Dist #1 Camano GEN (EMS) | N/A | N/A | N/A | N/A | | |
| FIRE1 | Fire & Rescue Dist #1 Camano GEN | N/A | N/A | N/A | N/A | | |
| FIRE1BOND | Fire & Rescue Dist #1 Camano BOND | N/A | N/A | N/A | N/A | | |
| CE | County Current Expense | N/A | N/A | N/A | N/A | | |
| CR | County Roads | N/A | N/A | N/A | N/A | | |
| LCIB | Library Sno-Isle BOND (Camano Island) | N/A | N/A | N/A | N/A | | |
| LIB | Library Sno-Isle GEN | N/A | N/A | N/A | N/A | | |
| SCH205_401 | School 205-401 Enrichment | N/A | N/A | N/A | N/A | | |
| SCH205BOND | School 205-401 BOND | N/A | N/A | N/A | N/A | | |
| ST | State School | N/A | N/A | N/A | N/A | | |
| ST2 | State School Part 2 | N/A | N/A | N/A | N/A | | |
| | Total Tax Rate: | N/A | | | | | |
| | | | | Taxes w/Current Exemptions: | N/A | | |
| | | | | Taxes w/o Exemptions: | N/A | | |
Improvement / Building
| Improvement #1: | RESIDENTIAL | State Code: | Y | 3304.0 sqft | Value: | N/A |
| Bathrooms: | 3.5 | Bedrooms: | 2 | | Ceiling: | BEAM PAINTED | Cooling: | HEAT PUMP/CONV/V | | Exterior Wall/Cover: | CEMENT FIBER | Floor Covering: | HARDWOOD/CARP 20-80 | | Floor Structure: | WOOD W/SUBFLOOR | Foundation: | CONCRETE | | Interior Finish: | DRYWALL PAINT | Plumbing Fixture Cnt: | 20 | | Roof Slope: | 10" IN 12" | Roof Structure/Cover: | BEAM ASPHALT |
|
| | Type | Description | Class CD | Sub Class CD | Year Built | Area |
| | BAS | BASE/MAIN FLOOR | 4 | 0 | 2021 | 1116.0 |
| | UPS | UPPER STORY | 4 | 0 | 2021 | 1072.0 |
| | BIG | BUILT IN GARAGE | 4 | 0 | 2021 | 481.6 |
| | OWP | OPEN WOOD PORCH W/STEPS | 4 | 0 | 2021 | 240.0 |
| | DWN | DOWNSTAIRS LIVING AREA | 4 | 0 | 2021 | 1116.0 |
Sketch
Property Image
Land
| 1 | 32 | AC (03.01-09.99) | 5.0200 | 218671.20 | 0.00 | 0.00 | 1.00 | N/A | N/A |
Roll Value History
| 2026 | N/A | N/A | N/A | N/A | N/A |
| 2025 | $663,592 | $410,000 | $0 | $1,073,592 | $1,073,592 |
| 2024 | $658,799 | $390,000 | $0 | $1,048,799 | $1,048,799 |
| 2023 | $665,715 | $380,000 | $0 | $1,045,715 | $1,045,715 |
| 2022 | $613,768 | $350,000 | $0 | $963,768 | $963,768 |
| 2021 | $540,934 | $230,000 | $0 | $770,934 | $770,934 |
| 2020 | $0 | $110,000 | $0 | $110,000 | $110,000 |
| 2019 | $0 | $5,020 | $0 | $5,020 | $5,020 |
| 2018 | $0 | $5,020 | $0 | $5,020 | $5,020 |
| 2017 | $0 | $5,120 | $0 | $5,120 | $5,120 |
| 2016 | $0 | $5,120 | $0 | $5,120 | $5,120 |
| 2015 | $0 | $5,120 | $0 | $5,120 | $5,120 |
| 2014 | $0 | $5,120 | $0 | $5,120 | $5,120 |
| 2013 | $0 | $5,120 | $0 | $5,120 | $5,120 |
| 2012 | $0 | $5,120 | $0 | $5,120 | $5,120 |
| 2011 | $0 | $5,120 | $0 | $5,120 | $5,120 |
| 2010 | $0 | $5,120 | $0 | $5,120 | $5,120 |
| 2009 | $0 | $5,120 | $0 | $5,120 | $5,120 |
| 2008 | $0 | $5,120 | $0 | $5,120 | $5,120 |
| 2007 | $0 | $5,120 | $0 | $5,120 | $5,120 |
Deed and Sales History
| 1 | 07/08/2021 | WD | Warranty Deed | 479 LEHMAN DR, LLC | STEVENSON, ANDREA C | | | $995,000.00 | 49150 | 4524367 |
| 2 | 10/13/2020 | WD | Warranty Deed | RELIABLE HOLDINGS, INC | 479 LEHMAN DR, LLC | | | $215,000.00 | 45220 | 4499349 |
| 3 | 08/05/2019 | WD | Warranty Deed | REID, KAREN M | RELIABLE HOLDINGS, INC | | | $330,000.00 | 39869 | 4469420 |
|   | |
| 4 | 06/20/2019 | QCD | Quit Claim Deed | WRIGHT, KATHARINE J | REID, KAREN M | | | $0.00 | 39692 | 4468557 |
| 5 | 11/30/2017 | QCD | Quit Claim Deed | LEGGEE, KAREN M | WRIGHT, KATHARINE J | | | $0.00 | 32177 | 4435289 |
| 6 | 11/05/2013 | CPADC | Comm Prop Agmnt & Death Cert | LEGGEE, MICHAEL D | LEGGEE, KAREN M | | | | 82765 | 4302939 |
| 7 | 11/16/2006 | WD | Warranty Deed | GREENWAY, JEROME E | LEGGEE, MICHAEL D | | | $15,910.00 | 64941 | 4187520 |
| 8 | 05/01/1981 | REC | Real Estate Contract | SCHUFREIDER, STUART E | GREENWAY, JEROME E | | | $5,884.00 | 11674 | 383708 |
| 9 | 01/01/1900 | OTHER | Other - Misc. Documents | Unknown | SCHUFREIDER, STUART E | | | $0.00 | 0 | 0 |
Payout Agreement
| No payout information available.. |