Property
Account |
| Property ID: | 533015 | Abbreviated Legal Description: | BG NECR OF S660' OF W660' OF N1002.84' OF NE SW S01*W 660' TO SECR TRACT A OF SURVEYS AF#265823 S88*E645 .71' N01*E7.81' TPB S01*W7 .81' N88*W231.70' N01*E330' S88*E410.24' M/L TO WLN MUTINY BAY RD SLY ALG WLN SD RD 322.42' N88*W TPB EX E10' SUBJ TO EZ |
| Geographic ID: | R22909-192-2540 | Agent Code: | |
| Type: | Real | | |
| Tax Area: | 712 - APPRAISER-S Whid Schl Dist, outside Langley, improved, greater than 1 acre | Land Use Code | 11 |
| Open Space: | N | DFL | N |
| Historic Property: | N | Remodel Property: | N |
| Multi-Family Redevelopment: | N | | |
| Township: | 29 | Section: | 09 |
| Range: | R2 |
Location |
| Address: | | Mapsco: | |
| Neighborhood: | Cycle 3 | Map ID: | 305 |
| Neighborhood CD: | 3 |
Owner |
| Name: | DANN, THEODORE | Owner ID: | 291264 |
| Mailing Address: | 998 SUMMER RD FREELAND, WA 98249 | % Ownership: | 100.0000000000% |
| | | Exemptions: | |
Taxes and Assessment Details
Values
| (+) Improvement Homesite Value: | + | $0 | |
| (+) Improvement Non-Homesite Value: | + | $713,165 | |
| (+) Land Homesite Value: | + | $0 | |
| (+) Land Non-Homesite Value: | + | $380,000 | |
| (+) Curr Use (HS): | + | $0 | $0 |
| (+) Curr Use (NHS): | + | $0 | $0 |
| | | -------------------------- | |
| (=) Market Value: | = | $1,093,165 | |
| (–) Productivity Loss: | – | $0 | |
| | | -------------------------- | |
| (=) Subtotal: | = | $1,093,165 | |
| (+) Senior Appraised Value: | + | $0 | |
| (+) Non-Senior Appraised Value: | + | $1,093,165 | |
| | | -------------------------- | |
| (=) Total Appraised Value: | = | $1,093,165 | |
| (–) Senior Exemption Loss: | – | $0 | |
| (–) Exemption Loss: | – | $0 | |
| | | -------------------------- | |
| (=) Taxable Value: | = | $1,093,165 | |
Taxing Jurisdiction
| Owner: | DANN, THEODORE | | |
| % Ownership: | 100.0000000000% | | |
| Total Value: | $1,093,165 | | |
| Tax Area: | 712 - APPRAISER-S Whid Schl Dist, outside Langley, improved, greater than 1 acre |
| CF | Conservation Futures | 0.0313996660 | $1,093,165 | $1,093,165 | $34.33 | | |
| FIRE3 | Fire & Rescue Dist #3 S Whidbey GEN | 1.2130821753 | $1,093,165 | $1,093,165 | $1,326.10 | | |
| HOBOND | Hospital BOND | 0.1893405597 | $1,093,165 | $1,093,165 | $206.98 | | |
| HOGEN | Hospital GEN | 0.3848777722 | $1,093,165 | $1,093,165 | $420.73 | | |
| CE | County Current Expense | 0.3674210519 | $1,093,165 | $1,093,165 | $401.65 | | |
| CR | County Roads | 0.4614296361 | $1,093,165 | $1,093,165 | $504.42 | | |
| ISLANDEMS | Hospital GEN (EMS) | 0.4952018576 | $1,093,165 | $1,093,165 | $541.34 | | |
| LIB | Library Sno-Isle GEN | 0.3039084203 | $1,093,165 | $1,093,165 | $332.22 | | |
| PORTWHID | Port of S Whidbey GEN | 0.1086004714 | $1,093,165 | $1,093,165 | $118.72 | | |
| SCH206BOND | School 206 BOND | 0.5960237832 | $1,093,165 | $1,093,165 | $651.55 | | |
| SCH206CAP | School 206 CP | 0.3066144020 | $1,093,165 | $1,093,165 | $335.18 | | |
| SCH206MO | School 206 Enrichment | 0.4808755445 | $1,093,165 | $1,093,165 | $525.68 | | |
| ST | State School | 1.4761226122 | $1,093,165 | $1,093,165 | $1,613.65 | | |
| ST2 | State School Part 2 | 0.7953803475 | $1,093,165 | $1,093,165 | $869.48 | | |
| SWHIDPRBD | P & R S Whidbey BOND | 0.0144185398 | $1,093,165 | $1,093,165 | $15.76 | | |
| SWHIDPRBD3 | P & R S Whidbey BOND3 | 0.1483535547 | $1,093,165 | $1,093,165 | $162.17 | | |
| SWHIDPRMT | P & R S Whidbey GEN | 0.4600000000 | $1,093,165 | $1,093,165 | $502.86 | | |
| | Total Tax Rate: | 7.8330503944 | | | | | |
| | | | | Taxes w/Current Exemptions: | $8,562.82 | | |
| | | | | Taxes w/o Exemptions: | $8,562.82 | | |
Improvement / Building
| Improvement #1: | RESIDENTIAL | State Code: | Y | 4422.0 sqft | Value: | $713,165 |
| Bathrooms: | 2 | Bedrooms: | 3 | | Ceiling: | DRYWALL PAINTED | Exterior Wall/Cover: | CEMENT FIBER | | Floor Covering: | VINYL 100% | Floor Structure: | SLAB ON GRADE | | Foundation: | SLAB | Heating: | ZONED AC/HEAT | | Interior Finish: | DRYWALL PAINT | Plumbing Fixture Cnt: | 10 | | Roof Slope: | 6" IN 12" | Roof Structure/Cover: | CJ ALUMINIUM HEAVY |
|
| | Type | Description | Class CD | Sub Class CD | Year Built | Area |
| | BAS | BASE/MAIN FLOOR | 4 | 0 | 2021 | 2686.0 |
| | UPS | UPPER STORY | 4 | 0 | 2021 | 1344.0 |
| | DGR | DETACHED GARAGE | 4 | 0 | 2021 | 896.0 |
| | BAS | BASE/MAIN FLOOR | 4 | 0 | 2021 | 392.0 |
| | OWC | OPEN WOOD PORCH W/STEPS/ROOF/C | 4 | 0 | 2021 | 291.0 |
| | OWC | OPEN WOOD PORCH W/STEPS/ROOF/C | 4 | 0 | 2021 | 577.0 |
Sketch
Property Image
Land
| 1 | 18 | AC (02.01-03.00) | 3.0000 | 130680.00 | 0.00 | 0.00 | 1.00 | $380,000 | $0 |
Roll Value History
| 2026 | N/A | N/A | N/A | N/A | N/A |
| 2025 | $713,165 | $380,000 | $0 | $1,093,165 | $1,093,165 |
| 2024 | $718,827 | $360,000 | $0 | $1,078,827 | $1,078,827 |
| 2023 | $581,098 | $330,000 | $0 | $911,098 | $911,098 |
| 2022 | $535,728 | $280,000 | $0 | $815,728 | $815,728 |
| 2021 | $424,795 | $200,000 | $0 | $624,795 | $624,795 |
| 2020 | $0 | $200,000 | $0 | $200,000 | $200,000 |
| 2019 | $0 | $200,000 | $0 | $200,000 | $200,000 |
| 2018 | $0 | $200,000 | $0 | $200,000 | $200,000 |
| 2017 | $0 | $200,000 | $0 | $200,000 | $200,000 |
| 2016 | $0 | $200,000 | $0 | $200,000 | $200,000 |
| 2015 | $0 | $200,000 | $0 | $200,000 | $200,000 |
| 2014 | $0 | $200,000 | $0 | $200,000 | $200,000 |
| 2013 | $0 | $200,000 | $0 | $200,000 | $200,000 |
| 2012 | $0 | $200,000 | $0 | $200,000 | $200,000 |
| 2011 | $0 | $200,000 | $0 | $200,000 | $200,000 |
| 2010 | $0 | $200,000 | $0 | $200,000 | $200,000 |
| 2009 | $0 | $254,300 | $0 | $254,300 | $254,300 |
| 2008 | $0 | $237,600 | $0 | $237,600 | $237,600 |
| 2007 | $0 | $237,600 | $0 | $237,600 | $237,600 |
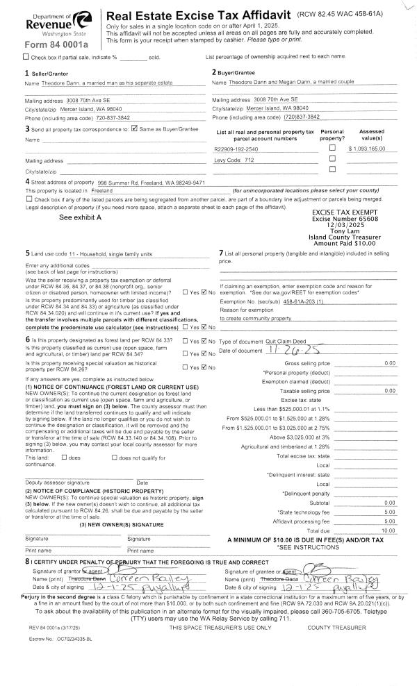
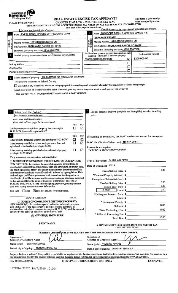
Deed and Sales History
| 1 | 11/26/2025 | QCD | Quit Claim Deed | DANN, THEODORE | DANN, THEODORE | | | $0.00 | 65608 | 4594136 |
| 2 | 08/02/2019 | QCD | Quit Claim Deed | DANN, EVE M | DANN, THEODORE | | | $0.00 | 39770 | 4468894 |
| 3 | 08/02/2019 | BARGSLD | Bargain And Sale Deed | US BANK NATIONAL ASSOCIATION | DANN, THEODORE | | | $220,000.00 | 39769 | 4468893 |
| 4 | 06/28/2019 | WD | Warranty Deed | ONEWEST BANK | US BANK NATIONAL ASSOCIATION | | | $0.00 | 39565 | 4468035 |
| 5 | 04/26/2019 | SHERIFFD | Sheriff Deed | ISLAND COUNTY SHERIFF | ONEWEST BANK | | | $487,431.00 | 38307 | 4462435 |
| 6 | 04/26/2019 | SHERIFFD | Sheriff Deed | HODSON, MARK & VALERI | ONEWEST BANK | | | $0.00 | 38232 | 4462138 |
| 7 | 04/04/2007 | WD | Warranty Deed | BOTTOMS, DONALD M | HODSON, MARK & VALERI | | | $415,000.00 | 71295 | 4200071 |
| 8 | 01/31/2005 | WD | Warranty Deed | MOCK, JAMES E | BOTTOMS, DONALD M | | | $240,000.00 | 50478 | 4125019 |
| 9 | 07/01/1996 | WD | Warranty Deed | MANSOORI, NURULLAH | MOCK, JAMES E | | | $135,000.00 | 62892 | 96014105 |
| 10 | 08/01/1990 | WD | Warranty Deed | SUMMER, CHARLES E | MANSOORI, NURULLAH | | | $49,000.00 | 4540 | 90014962 |
| 11 | 07/01/1989 | PRD | Personal Representatives Deed | SUMMER, CHARLES E | SUMMER, CHARLES E | | | $0.00 | 93275 | 89011012 |
| 12 | 07/01/1984 | EZ | Easement | Unknown | SUMMER, CHARLES E | | | $0.00 | 60964 | 84000960 |
Payout Agreement
| No payout information available.. |