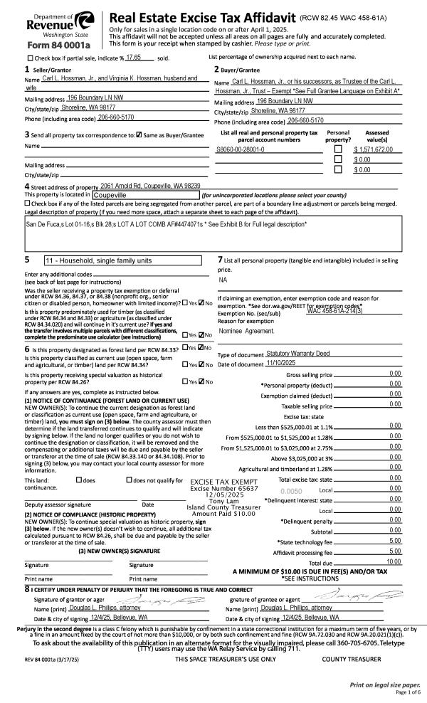
Property
Account |
| Property ID: | 533408 | Abbreviated Legal Description: | San De Fuca,s Lot 01-16,s Blk 28;s LOT A LOT COMB AF#4474071s |
| Geographic ID: | S8060-00-28001-0 | Agent Code: | |
| Type: | Real | | |
| Tax Area: | 332 - APPRAISER-Cpvl Schl Dist, Special Dist, improved, greater than 1 acre | Land Use Code | 11 |
| Open Space: | N | DFL | N |
| Historic Property: | N | Remodel Property: | N |
| Multi-Family Redevelopment: | N | | |
| Township: | | Section: | |
| Range: | |
Location |
| Address: | 2061 ARNOLD RD COUPEVILLE, WA 98239 | Mapsco: | |
| Neighborhood: | Cycle 2 | Map ID: | 165 |
| Neighborhood CD: | 2 |
Owner |
| Name: | HOSSMAN JR, CARL L | Owner ID: | 264584 |
| Mailing Address: | VIRGINIA K HOSSMAN 196 BOUNDARY LN SHORELINE, WA 98177 | % Ownership: | 100.0000000000% |
| | | Exemptions: | |
Taxes and Assessment Details
Values
| (+) Improvement Homesite Value: | + | $0 | |
| (+) Improvement Non-Homesite Value: | + | $1,154,510 | |
| (+) Land Homesite Value: | + | $0 | |
| (+) Land Non-Homesite Value: | + | $417,162 | |
| (+) Curr Use (HS): | + | $0 | $0 |
| (+) Curr Use (NHS): | + | $0 | $0 |
| | | -------------------------- | |
| (=) Market Value: | = | $1,571,672 | |
| (–) Productivity Loss: | – | $0 | |
| | | -------------------------- | |
| (=) Subtotal: | = | $1,571,672 | |
| (+) Senior Appraised Value: | + | $0 | |
| (+) Non-Senior Appraised Value: | + | $1,571,672 | |
| | | -------------------------- | |
| (=) Total Appraised Value: | = | $1,571,672 | |
| (–) Senior Exemption Loss: | – | $0 | |
| (–) Exemption Loss: | – | $0 | |
| | | -------------------------- | |
| (=) Taxable Value: | = | $1,571,672 | |
Taxing Jurisdiction
| Owner: | HOSSMAN JR, CARL L | | |
| % Ownership: | 100.0000000000% | | |
| Total Value: | $1,571,672 | | |
| Tax Area: | 332 - APPRAISER-Cpvl Schl Dist, Special Dist, improved, greater than 1 acre |
| CF | Conservation Futures | 0.0313996660 | $1,571,672 | $1,571,672 | $49.35 | | |
| CEM2 | Cemetery #2 | 0.0092609791 | $1,571,672 | $1,571,672 | $14.56 | | |
| FIRE2 | Fire & Rescue Dist #2 N Whidbey GEN | 0.5381486274 | $1,571,672 | $1,571,672 | $845.79 | | |
| HOBOND | Hospital BOND | 0.1893405597 | $1,571,672 | $1,571,672 | $297.58 | | |
| HOGEN | Hospital GEN | 0.3848777722 | $1,571,672 | $1,571,672 | $604.90 | | |
| CE | County Current Expense | 0.3674210519 | $1,571,672 | $1,571,672 | $577.47 | | |
| CR | County Roads | 0.4614296361 | $1,571,672 | $1,571,672 | $725.22 | | |
| ISLANDEMS | Hospital GEN (EMS) | 0.4952018576 | $1,571,672 | $1,571,672 | $778.29 | | |
| LIB | Library Sno-Isle GEN | 0.3039084203 | $1,571,672 | $1,571,672 | $477.64 | | |
| LIBCAP | Library Sno-Isle BOND (Cap Fac Imp Area) | 0.0528562629 | $1,571,672 | $1,571,672 | $83.07 | | |
| POCOUP | Port of Coupeville GEN | 0.1065226063 | $1,571,672 | $1,571,672 | $167.42 | | |
| POCOUPIDD | Port of Coupeville IDD | 0.3353038577 | $1,571,672 | $1,571,672 | $526.99 | | |
| COUPSDTECH | School 204 CP (TECH) | 0.1215123397 | $1,571,672 | $1,571,672 | $190.98 | | |
| SCH204MO | School 204 Enrichment | 0.6416662518 | $1,571,672 | $1,571,672 | $1,008.49 | | |
| ST | State School | 1.4761226122 | $1,571,672 | $1,571,672 | $2,319.98 | | |
| ST2 | State School Part 2 | 0.7953803475 | $1,571,672 | $1,571,672 | $1,250.08 | | |
| | Total Tax Rate: | 6.3103528484 | | | | | |
| | | | | Taxes w/Current Exemptions: | $9,917.81 | | |
| | | | | Taxes w/o Exemptions: | $9,917.81 | | |
Improvement / Building
| Improvement #1: | RESIDENTIAL | State Code: | Y | 4274.3 sqft | Value: | $822,952 |
| Bathrooms: | 3 | Bedrooms: | 2 | | Ceiling: | DRYWALL PAINTED | Cooling: | HEAT PUMP/CONV/V | | Exterior Wall/Cover: | WOOD SIDING | Floor Covering: | TILE CERAMIC | | Floor Structure: | WOOD W/SUBFLOOR | Foundation: | CONCRETE | | Interior Finish: | DRYWALL PAINT | Plumbing Fixture Cnt: | 15 | | Roof Slope: | 4" IN 12" | Roof Structure/Cover: | BEAM ASPHALT |
|
| | Type | Description | Class CD | Sub Class CD | Year Built | Area |
| | BAS | BASE/MAIN FLOOR | 5 | 0 | 1981 | 4274.3 |
| | OP1 | OPEN PORCH SLAB | 5 | 0 | 1981 | 416.9 |
| | OP1 | OPEN PORCH SLAB | 5 | 0 | 1981 | 408.1 |
| | OP1 | OPEN PORCH SLAB | 5 | 0 | 1981 | 639.9 |
| | OP3 | OPEN PORCH W/ROOF | 5 | 0 | 1981 | 88.0 |
| | OP3 | OPEN PORCH W/ROOF | 5 | 0 | 1981 | 47.2 |
| | OP4 | OPEN PORCH W/CEILING-ROOF | 5 | 0 | 1981 | 6.7 |
| Improvement #2: | RESIDENTIAL | State Code: | Y | 1144.0 sqft | Value: | $186,199 |
| Bathrooms: | 1 | Bedrooms: | 0 | | Ceiling: | DRYWALL PAINTED | Cooling: | HEAT PUMP/CONV/V | | Exterior Wall/Cover: | WOOD SIDING | Floor Covering: | CARPET/VINYL 80-20 | | Floor Structure: | WOOD W/SUBFLOOR | Foundation: | CONCRETE | | Interior Finish: | DRYWALL PAINT | Plumbing Fixture Cnt: | 6 | | Roof Slope: | 6" IN 12" | Roof Structure/Cover: | CJ ASPHALT |
|
| | Type | Description | Class CD | Sub Class CD | Year Built | Area |
| | BAS | BASE/MAIN FLOOR | 3 | 0 | 1981 | 1144.0 |
| | OP1 | OPEN PORCH SLAB | 3 | 0 | 1981 | 144.0 |
| | OWP | OPEN WOOD PORCH W/STEPS | 3 | 0 | 1981 | 16.0 |
| | OWP | OPEN WOOD PORCH W/STEPS | 3 | 0 | 1981 | 16.0 |
| Improvement #3: | RESIDENTIAL | State Code: | Y | 0.0 sqft | Value: | $145,359 |
| | Type | Description | Class CD | Sub Class CD | Year Built | Area |
| | oEQU | EQUIP SHED | 3 | 0 | 1981 | 1440.0 |
| | oBAR | BARN | 3 | 0 | 1981 | 2470.0 |
| | oHAY | HAY SHED | 3 | 0 | 1981 | 1170.0 |
| | oUTI | UTILITY | 3 | 0 | 1981 | 240.0 |
| | oBAR | BARN | 2 | 0 | 1981 | 1728.0 |
| | oUTI | UTILITY | 2 | 0 | 1981 | 144.0 |
Sketch
Property Image
Land
| 1 | HS | HOMESITE | 1.0000 | 43560.00 | 0.00 | 0.00 | 1.00 | $340,000 | $0 |
| 2 | 91 | UNDEVELOPED LAND-METES AND BOUNDS | 16.1300 | 702622.80 | 0.00 | 0.00 | 1.00 | $77,162 | $0 |
Roll Value History
| 2026 | N/A | N/A | N/A | N/A | N/A |
| 2025 | $1,154,510 | $417,162 | $0 | $1,571,672 | $1,571,672 |
| 2024 | $1,077,458 | $390,000 | $0 | $1,467,458 | $1,467,458 |
| 2023 | $1,090,410 | $370,000 | $0 | $1,460,410 | $1,460,410 |
| 2022 | $1,006,955 | $350,000 | $0 | $1,356,955 | $1,356,955 |
| 2021 | $896,645 | $285,000 | $0 | $1,181,645 | $1,181,645 |
| 2020 | $878,157 | $285,000 | $0 | $1,163,157 | $1,163,157 |
| 2019 | $770,311 | $1,085,000 | $0 | $1,855,311 | $1,855,311 |
| 2018 | $751,038 | $210,000 | $0 | $961,038 | $961,038 |
| 2017 | $755,166 | $210,000 | $0 | $965,166 | $965,166 |
| 2016 | $763,579 | $200,000 | $0 | $963,579 | $963,579 |
| 2015 | $771,992 | $150,000 | $0 | $921,992 | $921,992 |
| 2014 | $813,750 | $150,000 | $0 | $963,750 | $963,750 |
| 2013 | $822,554 | $184,140 | $0 | $1,006,694 | $1,006,694 |
| 2012 | $869,865 | $184,140 | $0 | $1,054,005 | $1,054,005 |
| 2011 | $878,652 | $204,600 | $0 | $1,083,252 | $1,083,252 |
| 2010 | $923,328 | $204,600 | $0 | $1,127,928 | $1,127,928 |
| 2009 | $962,784 | $223,200 | $0 | $1,185,984 | $1,185,984 |
| 2008 | $884,391 | $221,340 | $0 | $1,105,731 | $1,105,731 |
| 2007 | $897,676 | $163,680 | $0 | $1,061,356 | $1,061,356 |
Deed and Sales History
| 1 | 11/10/2025 | WD | Warranty Deed | HOSSMAN JR, CARL L | HOSSMAN JR TTEE, CARL L | | | $0.00 | 65637 | 4594280 |
| 2 | 12/09/2013 | WD | Warranty Deed | CORNELIUS, WILLIAM E | HOSSMAN JR, CARL L | | | $1,275,000.00 | 13691 | 4352534 |
| 3 | 02/14/2004 | 5 | DNU - Marriage License/Name Change | CORNELUS, WILLIAM E | CORNELIUS, WILLIAM E | | | $0.00 | 41270 | 4095899 |
| 4 | 06/28/2000 | WD | Warranty Deed | CORNELUS, WILLIAM E | CORNELUS, WILLIAM E | | | $0.00 | 2668 | 20012641 |
| 5 | 06/28/2000 | WD | Warranty Deed | STICKLES, LAWRENCE E | CORNELUS, WILLIAM E | | | $481,229.00 | 2471 | 20011657 |
| 6 | 02/01/1990 | WD | Warranty Deed | MINCKLER, L S | STICKLES, LAWRENCE E | | | $272,000.00 | 1003 | 90003319 |
| 7 | 11/01/1987 | WD | Warranty Deed | MINCKLER, L S | MINCKLER, L S | | | $0.00 | 82595 | 88009781 |
| 8 | 10/01/1987 | WD | Warranty Deed | TIBBETTS, JACK C | MINCKLER, L S | | | $214,020.00 | 73240 | 87014197 |
| 9 | 01/01/1900 | OTHER | Other - Misc. Documents | Unknown | TIBBETTS, JACK C | | | $0.00 | 0 | 0 |
Payout Agreement
| No payout information available.. |