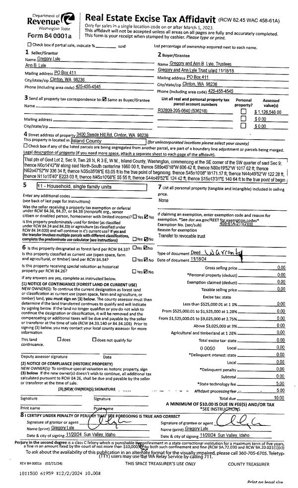
Property
Account |
| Property ID: | 536218 | Abbreviated Legal Description: | IN GL 2: BG INT SLN & N-S C/LN SEC 9 N1660' S89*W606. 42' N81*W1017.62' N63*W336. 34' N34*E63.05' TPB S44*W 171.17' N45*W122.28' N10*E 223.64' N44*E55.55' S45*E 124.42' S17*E140.64' TPB FR 218-0653 |
| Geographic ID: | R32809-205-0640 | Agent Code: | |
| Type: | Real | | |
| Tax Area: | 710 - APPRAISER-S Whid Schl Dist, outside Langley, improved & 1 acre or less | Land Use Code | 11 |
| Open Space: | N | DFL | N |
| Historic Property: | N | Remodel Property: | N |
| Multi-Family Redevelopment: | N | | |
| Township: | 28 | Section: | 09 |
| Range: | R3 |
Location |
| Address: | 3400 SWEDE HILL RD CLINTON, WA 98236 | Mapsco: | |
| Neighborhood: | Cycle 4 | Map ID: | 693 |
| Neighborhood CD: | 4 |
Owner |
| Name: | LYLE TTEE, GREGORY | Owner ID: | 314709 |
| Mailing Address: | ANN B LYLE TTEE PO BOX 2218 SUN VALLEY, ID 83353 | % Ownership: | 100.0000000000% |
| | | Exemptions: | |
Taxes and Assessment Details
Values
| (+) Improvement Homesite Value: | + | $0 | |
| (+) Improvement Non-Homesite Value: | + | $395,665 | |
| (+) Land Homesite Value: | + | $0 | |
| (+) Land Non-Homesite Value: | + | $750,000 | |
| (+) Curr Use (HS): | + | $0 | $0 |
| (+) Curr Use (NHS): | + | $0 | $0 |
| | | -------------------------- | |
| (=) Market Value: | = | $1,145,665 | |
| (–) Productivity Loss: | – | $0 | |
| | | -------------------------- | |
| (=) Subtotal: | = | $1,145,665 | |
| (+) Senior Appraised Value: | + | $0 | |
| (+) Non-Senior Appraised Value: | + | $1,145,665 | |
| | | -------------------------- | |
| (=) Total Appraised Value: | = | $1,145,665 | |
| (–) Senior Exemption Loss: | – | $0 | |
| (–) Exemption Loss: | – | $0 | |
| | | -------------------------- | |
| (=) Taxable Value: | = | $1,145,665 | |
Taxing Jurisdiction
| Owner: | LYLE TTEE, GREGORY | | |
| % Ownership: | 100.0000000000% | | |
| Total Value: | $1,145,665 | | |
| Tax Area: | 710 - APPRAISER-S Whid Schl Dist, outside Langley, improved & 1 acre or less |
| CF | Conservation Futures | 0.0313996660 | $1,145,665 | $1,145,665 | $35.97 | | |
| FIRE3 | Fire & Rescue Dist #3 S Whidbey GEN | 1.2130821753 | $1,145,665 | $1,145,665 | $1,389.79 | | |
| HOBOND | Hospital BOND | 0.1893405597 | $1,145,665 | $1,145,665 | $216.92 | | |
| HOGEN | Hospital GEN | 0.3848777722 | $1,145,665 | $1,145,665 | $440.94 | | |
| CE | County Current Expense | 0.3674210519 | $1,145,665 | $1,145,665 | $420.94 | | |
| CR | County Roads | 0.4614296361 | $1,145,665 | $1,145,665 | $528.64 | | |
| ISLANDEMS | Hospital GEN (EMS) | 0.4952018576 | $1,145,665 | $1,145,665 | $567.34 | | |
| LIB | Library Sno-Isle GEN | 0.3039084203 | $1,145,665 | $1,145,665 | $348.18 | | |
| PORTWHID | Port of S Whidbey GEN | 0.1086004714 | $1,145,665 | $1,145,665 | $124.42 | | |
| SCH206BOND | School 206 BOND | 0.5960237832 | $1,145,665 | $1,145,665 | $682.84 | | |
| SCH206CAP | School 206 CP | 0.3066144020 | $1,145,665 | $1,145,665 | $351.28 | | |
| SCH206MO | School 206 Enrichment | 0.4808755445 | $1,145,665 | $1,145,665 | $550.92 | | |
| ST | State School | 1.4761226122 | $1,145,665 | $1,145,665 | $1,691.14 | | |
| ST2 | State School Part 2 | 0.7953803475 | $1,145,665 | $1,145,665 | $911.24 | | |
| SWHIDPRBD | P & R S Whidbey BOND | 0.0144185398 | $1,145,665 | $1,145,665 | $16.52 | | |
| SWHIDPRBD3 | P & R S Whidbey BOND3 | 0.1483535547 | $1,145,665 | $1,145,665 | $169.96 | | |
| SWHIDPRMT | P & R S Whidbey GEN | 0.4600000000 | $1,145,665 | $1,145,665 | $527.01 | | |
| | Total Tax Rate: | 7.8330503944 | | | | | |
| | | | | Taxes w/Current Exemptions: | $8,974.05 | | |
| | | | | Taxes w/o Exemptions: | $8,974.05 | | |
Improvement / Building
| Improvement #1: | RESIDENTIAL | State Code: | Y | 3402.5 sqft | Value: | $395,665 |
| Bathrooms: | 3 | Bedrooms: | 4 | | Ceiling: | TONGUE & GROOVE | Exterior Wall/Cover: | SHINGLE | | Floor Covering: | SOFTWOOD/VINYL 80-20 | Floor Structure: | WOOD W/SUBFLOOR | | Foundation: | CONCRETE | Heating: | FHA ELECTRIC | | Interior Finish: | DRYWALL PAINT | Plumbing Fixture Cnt: | 12 | | Roof Slope: | 12" IN 12" | Roof Structure/Cover: | BEAM ALUMINUM HEAVY |
|
| | Type | Description | Class CD | Sub Class CD | Year Built | Area |
| | BAS | BASE/MAIN FLOOR | 3 | 0 | 1982 | 1621.5 |
| | DGR | DETACHED GARAGE | 3 | 0 | 1982 | 576.0 |
| | UPS | UPPER STORY | 3 | 0 | 1982 | 1269.0 |
| | UPS | UPPER STORY | 3 | 0 | 1982 | 512.0 |
| | OWP | OPEN WOOD PORCH W/STEPS | 3 | 0 | 1982 | 512.0 |
| | OWP | OPEN WOOD PORCH W/STEPS | 3 | 0 | 1982 | 80.0 |
| | CPD | OPEN CARPORT DIRT FLOOR | 3 | 0 | 1982 | 408.0 |
| | OWR | OPEN WOOD PORCH W/STEPS/ROOF | 3 | 0 | 1982 | 73.5 |
Sketch
Property Image
Land
| 1 | HB | HIGH BLUFF | 1.0000 | 43560.00 | 122.00 | 0.00 | 1.00 | $750,000 | $0 |
Roll Value History
| 2026 | N/A | N/A | N/A | N/A | N/A |
| 2025 | $395,665 | $750,000 | $0 | $1,145,665 | $1,145,665 |
| 2024 | $401,548 | $725,000 | $0 | $1,126,548 | $1,126,548 |
| 2023 | $407,431 | $700,000 | $0 | $1,107,431 | $1,107,431 |
| 2022 | $374,264 | $700,000 | $0 | $1,074,264 | $1,074,264 |
| 2021 | $330,085 | $300,000 | $0 | $630,085 | $630,085 |
| 2020 | $323,508 | $300,000 | $0 | $623,508 | $623,508 |
| 2019 | $266,982 | $350,000 | $0 | $616,982 | $616,982 |
| 2018 | $267,890 | $350,000 | $0 | $617,890 | $617,890 |
| 2017 | $269,713 | $350,000 | $0 | $619,713 | $619,713 |
| 2016 | $273,360 | $350,000 | $0 | $623,360 | $623,360 |
| 2015 | $277,003 | $350,000 | $0 | $627,003 | $627,003 |
| 2014 | $247,636 | $350,000 | $0 | $597,636 | $597,636 |
| 2013 | $251,289 | $402,768 | $0 | $654,057 | $654,057 |
| 2012 | $254,938 | $402,768 | $0 | $657,706 | $657,706 |
| 2011 | $258,590 | $402,768 | $0 | $661,358 | $661,358 |
| 2010 | $275,344 | $402,768 | $0 | $678,112 | $678,112 |
| 2009 | $287,291 | $485,013 | $0 | $772,304 | $772,304 |
| 2008 | $290,972 | $485,005 | $0 | $775,977 | $775,977 |
| 2007 | $294,653 | $307,205 | $0 | $601,858 | $601,858 |
Deed and Sales History
| 1 | 11/18/2024 | WD | Warranty Deed | LYLE, ANN B | LYLE TTEE, GREGORY | | | $0.00 | 61959 | 4579911 |
| 2 | 12/01/1995 | QCD | Quit Claim Deed | LYLE, ANN B | LYLE, ANN B | | | $0.00 | 60849 | 96004631 |
| 3 | 10/01/1995 | WD | Warranty Deed | BLACK, HUNTER M | LYLE, ANN B | | | $29,160.00 | 53577 | 95016431 |
| 4 | 01/01/1985 | QCD | Quit Claim Deed | BLACK, WILLIAM M | BLACK, HUNTER M | | | $0.00 | 50136 | 85000689 |
| 5 | 01/01/1984 | QCD | Quit Claim Deed | BLACK, WILLIAM M | BLACK, WILLIAM M | | | $0.00 | 40057 | 419634 |
| 6 | 12/01/1983 | QCD | Quit Claim Deed | BLACK, WILLIAM M | BLACK, WILLIAM M | | | $0.00 | 33775 | 419287 |
| 7 | 01/01/1900 | OTHER | Other - Misc. Documents | Unknown | BLACK, WILLIAM M | | | $0.00 | 0 | 0 |
Payout Agreement
| No payout information available.. |