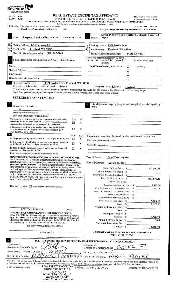
Property
Account |
| Property ID: | 537556 | Abbreviated Legal Description: | IN GL2: BG SWCR GL2 N660' E1320' S TO SLN GL2 W TPB EX PT LY ELY OF WLY LN FOX SPIT RD FR 440 3400 |
| Geographic ID: | R23013-442-3300 | Agent Code: | |
| Type: | Real | | |
| Tax Area: | 719 - APPRAISER-S Whid Schl Dist, outside Langley, vacant & 50 acres or less | Land Use Code | 91 |
| Open Space: | N | DFL | N |
| Historic Property: | N | Remodel Property: | N |
| Multi-Family Redevelopment: | N | | |
| Township: | 30 | Section: | 13 |
| Range: | R2 |
Location |
| Address: | LANGLEY, WA 98260 | Mapsco: | |
| Neighborhood: | Cycle 3 | Map ID: | 376 |
| Neighborhood CD: | 3 |
Owner |
| Name: | WHIDBEY SHORES ASSOCIATION | Owner ID: | 14990 |
| Mailing Address: | PO BOX 1540 FREELAND, WA 98249 | % Ownership: | 100.0000000000% |
| | | Exemptions: | EX |
Taxes and Assessment Details
Values
| (+) Improvement Homesite Value: | + | N/A | |
| (+) Improvement Non-Homesite Value: | + | N/A | |
| (+) Land Homesite Value: | + | N/A | |
| (+) Land Non-Homesite Value: | + | N/A | Ag / Timber Use Value |
| (+) Curr Use (HS): | + | N/A | N/A |
| (+) Curr Use (NHS): | + | N/A | N/A |
| | | -------------------------- | |
| (=) Market Value: | = | N/A | |
| (–) Productivity Loss: | – | N/A | |
| | | -------------------------- | |
| (=) Subtotal: | = | N/A | |
| (+) Senior Appraised Value: | + | N/A | |
| (+) Non-Senior Appraised Value: | + | N/A | |
| | | -------------------------- | |
| (=) Total Appraised Value: | = | N/A | |
| (–) Senior Exemption Loss: | – | N/A | |
| (–) Exemption Loss: | – | N/A | |
| | | -------------------------- | |
| (=) Taxable Value: | = | N/A | |
Taxing Jurisdiction
| Owner: | WHIDBEY SHORES ASSOCIATION | | |
| % Ownership: | 100.0000000000% | | |
| Total Value: | N/A | | |
| Tax Area: | 719 - APPRAISER-S Whid Schl Dist, outside Langley, vacant & 50 acres or less |
| CF | Conservation Futures | N/A | N/A | N/A | N/A | | |
| WCD | Whidbey Conservation District | N/A | N/A | N/A | N/A | | |
| HOBOND | Hospital BOND | N/A | N/A | N/A | N/A | | |
| HOGEN | Hospital GEN | N/A | N/A | N/A | N/A | | |
| CE | County Current Expense | N/A | N/A | N/A | N/A | | |
| CR | County Roads | N/A | N/A | N/A | N/A | | |
| ISLANDEMS | Hospital GEN (EMS) | N/A | N/A | N/A | N/A | | |
| LIB | Library Sno-Isle GEN | N/A | N/A | N/A | N/A | | |
| PORTWHID | Port of S Whidbey GEN | N/A | N/A | N/A | N/A | | |
| SCH206CAP | School 206 CP | N/A | N/A | N/A | N/A | | |
| SCH206MO | School 206 Enrichment | N/A | N/A | N/A | N/A | | |
| ST | State School | N/A | N/A | N/A | N/A | | |
| ST2 | State School Part 2 | N/A | N/A | N/A | N/A | | |
| SWHIDPRBD | P & R S Whidbey BOND | N/A | N/A | N/A | N/A | | |
| SWHIDPRBD2 | P & R S Whidbey BOND2 | N/A | N/A | N/A | N/A | | |
| SWHIDPRMT | P & R S Whidbey GEN | N/A | N/A | N/A | N/A | | |
| | Total Tax Rate: | N/A | | | | | |
| | | | | Taxes w/Current Exemptions: | N/A | | |
| | | | | Taxes w/o Exemptions: | N/A | | |
Improvement / Building
Sketch
| No sketches available for this property. |
Property Image
Land
| 1 | 91 | UNDEVELOPED LAND-METES AND BOUNDS | 15.5600 | 677793.60 | 0.00 | 0.00 | 1.00 | N/A | N/A |
Roll Value History
| 2026 | N/A | N/A | N/A | N/A | N/A |
| 2025 | $0 | $300,000 | $0 | $300,000 | $0 |
| 2024 | $0 | $290,000 | $0 | $290,000 | $0 |
| 2023 | $0 | $250,000 | $0 | $250,000 | $0 |
| 2022 | $0 | $200,000 | $0 | $200,000 | $0 |
| 2021 | $0 | $200,000 | $0 | $200,000 | $0 |
| 2020 | $0 | $200,000 | $0 | $200,000 | $0 |
| 2019 | $0 | $160,000 | $0 | $160,000 | $0 |
| 2018 | $0 | $165,000 | $0 | $165,000 | $0 |
| 2017 | $0 | $165,000 | $0 | $165,000 | $0 |
| 2016 | $0 | $165,000 | $0 | $165,000 | $0 |
| 2015 | $0 | $165,000 | $0 | $165,000 | $0 |
| 2014 | $0 | $147,040 | $0 | $147,040 | $0 |
| 2013 | $0 | $147,040 | $0 | $147,040 | $0 |
| 2012 | $0 | $147,040 | $0 | $147,040 | $0 |
| 2011 | $0 | $147,040 | $0 | $147,040 | $0 |
| 2010 | $0 | $163,380 | $0 | $163,380 | $0 |
| 2009 | $0 | $163,380 | $0 | $163,380 | $0 |
| 2008 | $0 | $140,040 | $0 | $140,040 | $0 |
| 2007 | $0 | $140,040 | $0 | $140,040 | $0 |
Deed and Sales History
| 1 | 04/16/2020 | EZ | Easement | WHIDBEY SHORES ASSOCIATION | WHIDBEY SHORES ASSOCIATION | | | $6,171.00 | 43564 | 4490018 |
|   | |
| 2 | 09/01/1986 | WD | Warranty Deed | MEL, CORPORATION | WHIDBEY, SHORES A | | | $65,000.00 | 62659 | 86012050 |
| 3 | 07/01/1984 | QCD | Quit Claim Deed | MEL, CORP | MEL, CORPORATION | | | $0.00 | 43135 | 84004943 |
| 4 | 01/01/1900 | EXECUTORD | Executor Deed | Unknown | MEL, CORP | | | $0.00 | 58881 | 306585 |
Payout Agreement
| No payout information available.. |