Property
Account |
| Property ID: | 538387 | Abbreviated Legal Description: | LOT B SP 81-12.23330.497-0930 |
| Geographic ID: | R23330-448-0980 | Agent Code: | |
| Type: | Real | | |
| Tax Area: | 112 - APPRAISER-OH Schl Dist, outside OH, improved, greater than 1 acre | Land Use Code | 11 |
| Open Space: | N | DFL | N |
| Historic Property: | N | Remodel Property: | N |
| Multi-Family Redevelopment: | N | | |
| Township: | 33 | Section: | 30 |
| Range: | R2 |
Location |
| Address: | 3167 HUNT RD OAK HARBOR, WA 98277 | Mapsco: | |
| Neighborhood: | Cycle 6 | Map ID: | 641 |
| Neighborhood CD: | 6 |
Owner |
| Name: | HOBBS, TERRESA L | Owner ID: | 74178 |
| Mailing Address: | 3167 HUNT RD OAK HARBOR, WA 98277-7843 | % Ownership: | 100.0000000000% |
| | | Exemptions: | |
Taxes and Assessment Details
Values
| (+) Improvement Homesite Value: | + | $0 | |
| (+) Improvement Non-Homesite Value: | + | $104,787 | |
| (+) Land Homesite Value: | + | $0 | |
| (+) Land Non-Homesite Value: | + | $300,000 | |
| (+) Curr Use (HS): | + | $0 | $0 |
| (+) Curr Use (NHS): | + | $0 | $0 |
| | | -------------------------- | |
| (=) Market Value: | = | $404,787 | |
| (–) Productivity Loss: | – | $0 | |
| | | -------------------------- | |
| (=) Subtotal: | = | $404,787 | |
| (+) Senior Appraised Value: | + | $0 | |
| (+) Non-Senior Appraised Value: | + | $404,787 | |
| | | -------------------------- | |
| (=) Total Appraised Value: | = | $404,787 | |
| (–) Senior Exemption Loss: | – | $0 | |
| (–) Exemption Loss: | – | $0 | |
| | | -------------------------- | |
| (=) Taxable Value: | = | $404,787 | |
Taxing Jurisdiction
| Owner: | HOBBS, TERRESA L | | |
| % Ownership: | 100.0000000000% | | |
| Total Value: | $404,787 | | |
| Tax Area: | 112 - APPRAISER-OH Schl Dist, outside OH, improved, greater than 1 acre |
| CF | Conservation Futures | 0.0313996660 | $404,787 | $404,787 | $12.71 | | |
| CEM1 | Cemetery #1 | 0.0040018856 | $404,787 | $404,787 | $1.62 | | |
| FIRE2 | Fire & Rescue Dist #2 N Whidbey GEN | 0.5381486274 | $404,787 | $404,787 | $217.84 | | |
| HOBOND | Hospital BOND | 0.1893405597 | $404,787 | $404,787 | $76.64 | | |
| HOGEN | Hospital GEN | 0.3848777722 | $404,787 | $404,787 | $155.79 | | |
| CE | County Current Expense | 0.3674210519 | $404,787 | $404,787 | $148.73 | | |
| CR | County Roads | 0.4614296361 | $404,787 | $404,787 | $186.78 | | |
| ISLANDEMS | Hospital GEN (EMS) | 0.4952018576 | $404,787 | $404,787 | $200.45 | | |
| LIB | Library Sno-Isle GEN | 0.3039084203 | $404,787 | $404,787 | $123.02 | | |
| NWHIDPRMT | P & R N Whidbey GEN | 0.1990272349 | $404,787 | $404,787 | $80.56 | | |
| SCH201MO | School 201 Enrichment | 2.3851112745 | $404,787 | $404,787 | $965.46 | | |
| ST | State School | 1.4761226122 | $404,787 | $404,787 | $597.52 | | |
| ST2 | State School Part 2 | 0.7953803475 | $404,787 | $404,787 | $321.96 | | |
| | Total Tax Rate: | 7.6313709459 | | | | | |
| | | | | Taxes w/Current Exemptions: | $3,089.08 | | |
| | | | | Taxes w/o Exemptions: | $3,089.08 | | |
Improvement / Building
| Improvement #1: | MANUFACTURED HOME | State Code: | Y | 1440.0 sqft | Value: | $104,787 |
| Bathrooms: | 2 | Bedrooms: | 3 | | Ceiling: | PLASTER PAINTED | Cooling: | EVAP NO DUCT | | Exterior Wall/Cover: | VINYL | Floor Covering: | CARPET 100% | | Floor Structure: | SLAB ON GRADE | Foundation: | SLAB | | Heating: | FHA ELECTRIC | Interior Finish: | PLASTER | | Plumbing Fixture Cnt: | 1 | Roof Slope: | FLAT | | Roof Structure/Cover: | CJ ALUMINIUM HEAVY |   |   |
|
| | Type | Description | Class CD | Sub Class CD | Year Built | Area |
| | BAS | BASE/MAIN FLOOR | 3 | 0 | 1971 | 1440.0 |
| | DGR | DETACHED GARAGE | 3 | 0 | 1971 | 1200.0 |
| | OWR | OPEN WOOD PORCH W/STEPS/ROOF | 3 | 0 | 1971 | 360.0 |
Sketch
Property Image
Land
| 1 | 32 | AC (03.01-09.99) | 5.6600 | 0.00 | 0.00 | 0.00 | 1.00 | $300,000 | $0 |
Roll Value History
| 2026 | N/A | N/A | N/A | N/A | N/A |
| 2025 | $104,787 | $300,000 | $0 | $404,787 | $404,787 |
| 2024 | $108,740 | $280,000 | $0 | $388,740 | $388,740 |
| 2023 | $112,695 | $270,000 | $0 | $382,695 | $382,695 |
| 2022 | $85,920 | $240,000 | $0 | $325,920 | $325,920 |
| 2021 | $79,385 | $175,000 | $0 | $254,385 | $254,385 |
| 2020 | $80,097 | $150,000 | $0 | $230,097 | $230,097 |
| 2019 | $65,469 | $185,000 | $0 | $250,469 | $250,469 |
| 2018 | $67,850 | $170,000 | $0 | $237,850 | $237,850 |
| 2017 | $71,421 | $150,000 | $0 | $221,421 | $221,421 |
| 2016 | $26,421 | $140,000 | $0 | $166,421 | $166,421 |
| 2015 | $27,664 | $120,000 | $0 | $147,664 | $147,664 |
| 2014 | $28,906 | $100,000 | $0 | $128,906 | $128,906 |
| 2013 | $29,527 | $108,000 | $0 | $137,527 | $137,527 |
| 2012 | $30,769 | $112,068 | $0 | $142,837 | $142,837 |
| 2011 | $31,390 | $124,520 | $0 | $155,910 | $155,910 |
| 2010 | $53,142 | $124,520 | $0 | $177,662 | $177,662 |
| 2009 | $54,874 | $141,500 | $0 | $196,374 | $196,374 |
| 2008 | $55,632 | $133,010 | $0 | $188,642 | $188,642 |
| 2007 | $56,654 | $129,119 | $0 | $185,773 | $185,773 |
Deed and Sales History
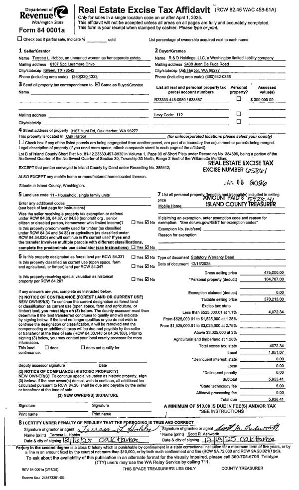
| 1 | 12/16/2025 | WD | Warranty Deed | HOBBS, TERRESA L | R & D HOLDINGS, LLC | | | $370,213.00 | 65861 | 4595304 |
| 2 | 12/18/2025 | MANHOME | Manufactured Home | HOBBS, TERRESA L | R & D HOLDINGS, LLC | | | $104,787.00 | 65860 | |
| 3 | 04/30/1998 | OTHER | Other - Misc. Documents | HOBBS, TERRESA L | HOBBS, TERRESA L | | | $0.00 | 81562 | 0 |
| 4 | 04/01/1998 | WD | Warranty Deed | HOBBS, TERRESA L | HOBBS, TERRESA L | | | $0.00 | 81562 | 0 |
| 5 | 05/01/1996 | PRD | Personal Representatives Deed | POLK, JACK L | HOBBS, TERRESA L | | | $0.00 | 62014 | 96010014 |
| 6 | 02/01/1989 | QCD | Quit Claim Deed | POLK, JACK L | POLK, JACK L | | | $0.00 | 90608 | 89002121 |
| 7 | 01/01/1900 | OTHER | Other - Misc. Documents | Unknown | POLK, JACK L | | | $0.00 | 0 | 0 |
| 8 | 01/01/1900 | OTHER | Other - Misc. Documents | POLK, JACK L | POLK, JACK L | | | $0.00 | 0 | 0 |
Payout Agreement
| No payout information available.. |