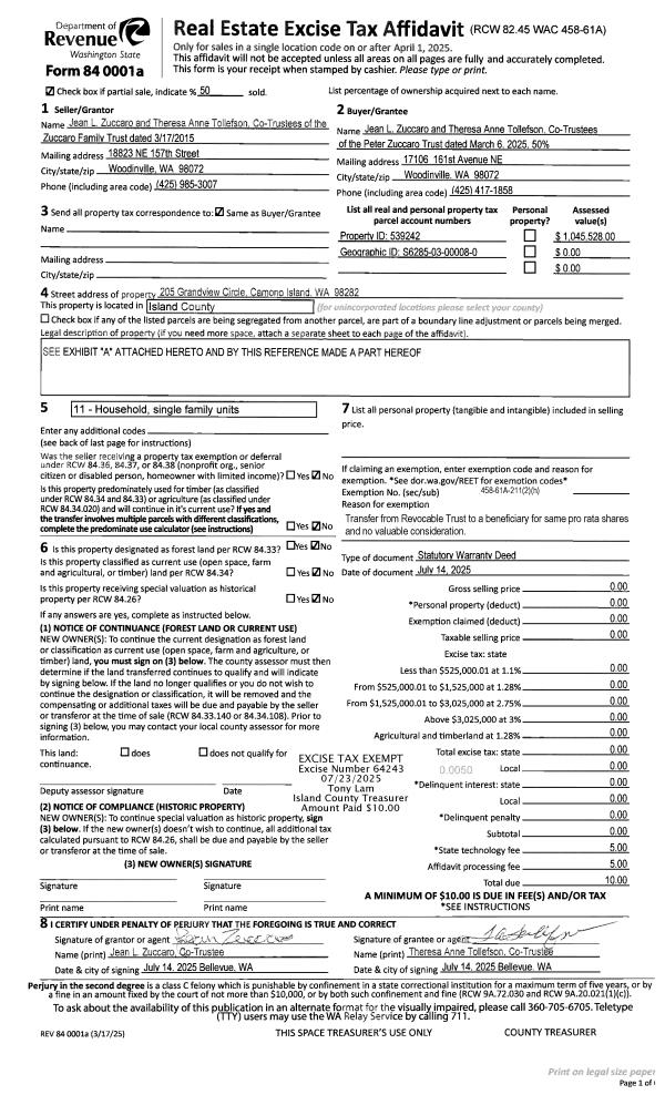
Property
Account |
| Property ID: | 539242 | Abbreviated Legal Description: | CAMANO WEST #3 LOT 8 |
| Geographic ID: | S6285-03-00008-0 | Agent Code: | |
| Type: | Real | | |
| Tax Area: | 510 - APPRAISER-Stan/Cam Schl Dist, improved & 1 acre or less | Land Use Code | 11 |
| Open Space: | N | DFL | N |
| Historic Property: | N | Remodel Property: | N |
| Multi-Family Redevelopment: | N | | |
| Township: | | Section: | |
| Range: | |
Location |
| Address: | 205 GRANDVIEW CIR CAMANO ISLAND, WA 98282 | Mapsco: | |
| Neighborhood: | North Camano | Map ID: | 574 |
| Neighborhood CD: | 06-C |
Owner |
| Name: | ZUCCARO TTEE, JEAN L | Owner ID: | 317481 |
| Mailing Address: | THERESA ANNE TOLLEFSON TTEE 17106 161ST AVE NE WOODINVILLE, WA 98072 | % Ownership: | 100.0000000000% |
| | | Exemptions: | |
Taxes and Assessment Details
Values
| (+) Improvement Homesite Value: | + | $0 | |
| (+) Improvement Non-Homesite Value: | + | $595,528 | |
| (+) Land Homesite Value: | + | $0 | |
| (+) Land Non-Homesite Value: | + | $450,000 | |
| (+) Curr Use (HS): | + | $0 | $0 |
| (+) Curr Use (NHS): | + | $0 | $0 |
| | | -------------------------- | |
| (=) Market Value: | = | $1,045,528 | |
| (–) Productivity Loss: | – | $0 | |
| | | -------------------------- | |
| (=) Subtotal: | = | $1,045,528 | |
| (+) Senior Appraised Value: | + | $0 | |
| (+) Non-Senior Appraised Value: | + | $1,045,528 | |
| | | -------------------------- | |
| (=) Total Appraised Value: | = | $1,045,528 | |
| (–) Senior Exemption Loss: | – | $0 | |
| (–) Exemption Loss: | – | $0 | |
| | | -------------------------- | |
| (=) Taxable Value: | = | $1,045,528 | |
Taxing Jurisdiction
| Owner: | ZUCCARO TTEE, JEAN L | | |
| % Ownership: | 100.0000000000% | | |
| Total Value: | $1,045,528 | | |
| Tax Area: | 510 - APPRAISER-Stan/Cam Schl Dist, improved & 1 acre or less |
| CF | Conservation Futures | 0.0313996660 | $1,045,528 | $1,045,528 | $32.83 | | |
| EMS1 | Fire & Rescue Dist #1 Camano GEN (EMS) | 0.4998471806 | $1,045,528 | $1,045,528 | $522.60 | | |
| FIRE1 | Fire & Rescue Dist #1 Camano GEN | 1.2496603404 | $1,045,528 | $1,045,528 | $1,306.55 | | |
| FIRE1BOND | Fire & Rescue Dist #1 Camano BOND | 0.1630371212 | $1,045,528 | $1,045,528 | $170.46 | | |
| CE | County Current Expense | 0.3674210519 | $1,045,528 | $1,045,528 | $384.15 | | |
| CR | County Roads | 0.4614296361 | $1,045,528 | $1,045,528 | $482.44 | | |
| LIB | Library Sno-Isle GEN | 0.3039084203 | $1,045,528 | $1,045,528 | $317.74 | | |
| SCH205_401 | School 205-401 Enrichment | 1.3697998934 | $1,045,528 | $1,045,528 | $1,432.16 | | |
| SCH205BOND | School 205-401 BOND | 0.9354199323 | $1,045,528 | $1,045,528 | $978.01 | | |
| ST | State School | 1.4761226122 | $1,045,528 | $1,045,528 | $1,543.33 | | |
| ST2 | State School Part 2 | 0.7953803475 | $1,045,528 | $1,045,528 | $831.59 | | |
| | Total Tax Rate: | 7.6534262019 | | | | | |
| | | | | Taxes w/Current Exemptions: | $8,001.86 | | |
| | | | | Taxes w/o Exemptions: | $8,001.86 | | |
Improvement / Building
| Improvement #1: | RESIDENTIAL | State Code: | Y | 4158.7 sqft | Value: | $595,528 |
| Bathrooms: | 2.75 | Bedrooms: | 3 | | Ceiling: | DRYWALL PAINTED | Exterior Wall/Cover: | CEMENT FIBER | | Floor Covering: | HARDWOOD/CARP 20-80 | Floor Structure: | WOOD W/SUBFLOOR | | Foundation: | CONCRETE | Heating: | FHA GAS | | Interior Finish: | DRYWALL PAINT | Plumbing Fixture Cnt: | 13 | | Roof Slope: | 5" IN 12" | Roof Structure/Cover: | CJ ASPHALT |
|
| | Type | Description | Class CD | Sub Class CD | Year Built | Area |
| | BAS | BASE/MAIN FLOOR | 4 | 0 | 1990 | 2083.9 |
| | DWN | DOWNSTAIRS LIVING AREA | 4 | 0 | 1990 | 2074.8 |
| | OP2 | OPEN PORCH W/STEPS | 4 | 0 | 1990 | 295.0 |
| | OP4 | OPEN PORCH W/CEILING-ROOF | 4 | 0 | 1990 | 168.0 |
| | AGR | ATTACHED GARAGE | 4 | 0 | 1990 | 555.0 |
| | OWP | OPEN WOOD PORCH W/STEPS | 4 | 0 | 1990 | 1047.2 |
Sketch
Property Image
Land
| 1 | 15 | SQ (12001-21780) | 0.0000 | 0.00 | 0.00 | 0.00 | 1.00 | $450,000 | $0 |
Roll Value History
| 2026 | N/A | N/A | N/A | N/A | N/A |
| 2025 | $595,528 | $450,000 | $0 | $1,045,528 | $1,045,528 |
| 2024 | $602,681 | $450,000 | $0 | $1,052,681 | $1,052,681 |
| 2023 | $609,834 | $450,000 | $0 | $1,059,834 | $1,059,834 |
| 2022 | $558,699 | $360,000 | $0 | $918,699 | $918,699 |
| 2021 | $412,907 | $300,000 | $0 | $712,907 | $712,907 |
| 2020 | $404,157 | $220,000 | $0 | $624,157 | $624,157 |
| 2019 | $336,545 | $275,000 | $0 | $611,545 | $611,545 |
| 2018 | $337,606 | $210,000 | $0 | $547,606 | $547,606 |
| 2017 | $339,411 | $150,000 | $0 | $489,411 | $489,411 |
| 2016 | $345,101 | $130,000 | $0 | $475,101 | $475,101 |
| 2015 | $349,582 | $92,800 | $0 | $442,382 | $442,382 |
| 2014 | $354,065 | $92,800 | $0 | $446,865 | $446,865 |
| 2013 | $358,545 | $92,800 | $0 | $451,345 | $451,345 |
| 2012 | $363,029 | $92,800 | $0 | $455,829 | $455,829 |
| 2011 | $367,510 | $116,000 | $0 | $483,510 | $483,510 |
| 2010 | $367,202 | $116,000 | $0 | $483,202 | $483,202 |
| 2009 | $382,935 | $200,000 | $0 | $582,935 | $582,935 |
| 2008 | $387,523 | $200,000 | $0 | $587,523 | $587,523 |
| 2007 | $392,133 | $200,000 | $0 | $592,133 | $592,133 |
Deed and Sales History
| 1 | 07/14/2025 | WD | Warranty Deed | ZUCCARO FAMILY TRUST | ZUCCARO TTEE, JEAN L | | | $0.00 | 64243 | 4588661 |
| 2 | 06/16/2021 | WD | Warranty Deed | CLAYTON, GAYLE E | ZUCCARO FAMILY TRUST | | | $1,100,000.00 | 48821 | 4522607 |
| 3 | 03/18/2015 | OTHER | Other - Misc. Documents | CLAYTON JTWROS, KENNETH R | CLAYTON, GAYLE E | | | $0.00 | 21460 | 4386469 |
| 4 | 07/30/2010 | WD | Warranty Deed | CLAYTON, KENNETH R & GAYLE E | CLAYTON JTWROS, KENNETH R | | | $0.00 | 2630 | 4283179 |
| 5 | 03/02/2005 | WD | Warranty Deed | WOLFORD, DOUGLAS W | CLAYTON, KENNETH R & GAYLE E | | | $548,000.00 | 50911 | 4127674 |
| 6 | 02/28/2002 | WD | Warranty Deed | WESTBROOK, PHILIP E | WOLFORD, DOUGLAS W | | | $309,000.00 | 20749 | 4012593 |
| 7 | 12/30/1998 | QCD | Quit Claim Deed | WESTBROOK, PHILIP E | WESTBROOK, PHILIP E | | | $0.00 | 90006 | 99000141 |
| 8 | 12/01/1994 | WD | Warranty Deed | FINDLAY, ROBERT R | WESTBROOK, PHILIP E | | | $256,500.00 | 44952 | 94025190 |
| 9 | 12/01/1994 | QCD | Quit Claim Deed | WESTBROOK, PHILIP E | WESTBROOK, PHILIP E | | | $0.00 | 44953 | 94025191 |
| 10 | 07/01/1989 | TRUSTEED | Trustee's Deed | NICHOLSON, ROBERT V | FINDLAY, ROBERT R | | | $0.00 | 93175 | 89010684 |
| 11 | 04/01/1986 | WD | Warranty Deed | BOUGHNER, ROBERT W | NICHOLSON, ROBERT V | | | $25,000.00 | 60997 | 86004666 |
| 12 | 08/01/1985 | WD | Warranty Deed | GARCIA, JOHN R | BOUGHNER, ROBERT W | | | $25,000.00 | 52397 | 85009483 |
| 13 | 07/01/1983 | WD | Warranty Deed | LINDAUER, CO | GARCIA, JOHN R | | | $20,000.00 | 32178 | 413048 |
| 14 | 01/01/1979 | OTHER | Other - Misc. Documents | Unknown | LINDAUER, CO | | | $0.00 | 90353 | 0 |
Payout Agreement
| No payout information available.. |