Property
Account |
| Property ID: | 542130 | Abbreviated Legal Description: | IN SW NE: BG NECR SW NE S1*W840' TPB N87*W PARA/TO NLN SW NE 430' S1*W480' E430' N1*E TPB EX S200' EX W30' TGW EZ FR 295-3750 TGW & SUB EZ AF#95015215 |
| Geographic ID: | R13328-297-3780 | Agent Code: | |
| Type: | Real | | |
| Tax Area: | 112 - APPRAISER-OH Schl Dist, outside OH, improved, greater than 1 acre | Land Use Code | 11 |
| Open Space: | N | DFL | N |
| Historic Property: | N | Remodel Property: | N |
| Multi-Family Redevelopment: | N | | |
| Township: | 33 | Section: | 28 |
| Range: | R1 |
Location |
| Address: | 3026 IRONWOOD LN OAK HARBOR, WA 98277 | Mapsco: | |
| Neighborhood: | Cycle 6 | Map ID: | 241 |
| Neighborhood CD: | 6 |
Owner |
| Name: | WHITE, ROBERT P | Owner ID: | 306885 |
| Mailing Address: | EMMA C. WHITE 3026 IRONWOOD LANE OAK HARBOR, WA 98277 | % Ownership: | 100.0000000000% |
| | | Exemptions: | |
Taxes and Assessment Details
Values
| (+) Improvement Homesite Value: | + | $0 | |
| (+) Improvement Non-Homesite Value: | + | $610,956 | |
| (+) Land Homesite Value: | + | $0 | |
| (+) Land Non-Homesite Value: | + | $290,000 | |
| (+) Curr Use (HS): | + | $0 | $0 |
| (+) Curr Use (NHS): | + | $0 | $0 |
| | | -------------------------- | |
| (=) Market Value: | = | $900,956 | |
| (–) Productivity Loss: | – | $0 | |
| | | -------------------------- | |
| (=) Subtotal: | = | $900,956 | |
| (+) Senior Appraised Value: | + | $0 | |
| (+) Non-Senior Appraised Value: | + | $900,956 | |
| | | -------------------------- | |
| (=) Total Appraised Value: | = | $900,956 | |
| (–) Senior Exemption Loss: | – | $0 | |
| (–) Exemption Loss: | – | $0 | |
| | | -------------------------- | |
| (=) Taxable Value: | = | $900,956 | |
Taxing Jurisdiction
| Owner: | WHITE, ROBERT P | | |
| % Ownership: | 100.0000000000% | | |
| Total Value: | $900,956 | | |
| Tax Area: | 112 - APPRAISER-OH Schl Dist, outside OH, improved, greater than 1 acre |
| CF | Conservation Futures | 0.0313996660 | $900,956 | $900,956 | $28.29 | | |
| CEM1 | Cemetery #1 | 0.0040018856 | $900,956 | $900,956 | $3.61 | | |
| FIRE2 | Fire & Rescue Dist #2 N Whidbey GEN | 0.5381486274 | $900,956 | $900,956 | $484.85 | | |
| HOBOND | Hospital BOND | 0.1893405597 | $900,956 | $900,956 | $170.59 | | |
| HOGEN | Hospital GEN | 0.3848777722 | $900,956 | $900,956 | $346.76 | | |
| CE | County Current Expense | 0.3674210519 | $900,956 | $900,956 | $331.03 | | |
| CR | County Roads | 0.4614296361 | $900,956 | $900,956 | $415.73 | | |
| ISLANDEMS | Hospital GEN (EMS) | 0.4952018576 | $900,956 | $900,956 | $446.16 | | |
| LIB | Library Sno-Isle GEN | 0.3039084203 | $900,956 | $900,956 | $273.81 | | |
| NWHIDPRMT | P & R N Whidbey GEN | 0.1990272349 | $900,956 | $900,956 | $179.31 | | |
| SCH201MO | School 201 Enrichment | 2.3851112745 | $900,956 | $900,956 | $2,148.88 | | |
| ST | State School | 1.4761226122 | $900,956 | $900,956 | $1,329.92 | | |
| ST2 | State School Part 2 | 0.7953803475 | $900,956 | $900,956 | $716.60 | | |
| | Total Tax Rate: | 7.6313709459 | | | | | |
| | | | | Taxes w/Current Exemptions: | $6,875.54 | | |
| | | | | Taxes w/o Exemptions: | $6,875.54 | | |
Improvement / Building
| Improvement #1: | RESIDENTIAL | State Code: | Y | 3631.5 sqft | Value: | $610,956 |
| Bathrooms: | 5 | Bedrooms: | 4 | | Ceiling: | TONGUE & GROOVE | Cooling: | HEAT PUMP/CONV/V | | Exterior Wall/Cover: | WOOD SIDING | Floor Covering: | HARDWOOD/CARP 80-20 | | Floor Structure: | WOOD W/SUBFLOOR | Foundation: | CONCRETE | | Interior Finish: | DRYWALL PAINT | Plumbing Fixture Cnt: | 22 | | Roof Slope: | 3" IN 12" | Roof Structure/Cover: | BEAM ROLL COMPOSITION |
|
| | Type | Description | Class CD | Sub Class CD | Year Built | Area |
| | BAS | BASE/MAIN FLOOR | 4 | 0 | 1974 | 3631.5 |
| | OP3 | OPEN PORCH W/ROOF | 4 | 0 | 1974 | 127.5 |
| | AGR | ATTACHED GARAGE | 4 | 0 | 1974 | 616.0 |
| | DGR | DETACHED GARAGE | 4 | 0 | 1974 | 288.0 |
Sketch
Property Image
Land
| 1 | 18 | AC (02.01-03.00) | 2.5700 | 111949.20 | 0.00 | 0.00 | 1.00 | $290,000 | $0 |
Roll Value History
| 2026 | N/A | N/A | N/A | N/A | N/A |
| 2025 | $610,956 | $290,000 | $0 | $900,956 | $900,956 |
| 2024 | $618,865 | $280,000 | $0 | $898,865 | $898,865 |
| 2023 | $626,774 | $280,000 | $0 | $906,774 | $906,774 |
| 2022 | $460,941 | $210,000 | $0 | $670,941 | $670,941 |
| 2021 | $406,061 | $160,000 | $0 | $566,061 | $566,061 |
| 2020 | $395,676 | $130,000 | $0 | $525,676 | $525,676 |
| 2019 | $308,368 | $180,000 | $0 | $488,368 | $488,368 |
| 2018 | $309,340 | $170,000 | $0 | $479,340 | $479,340 |
| 2017 | $286,914 | $150,000 | $0 | $436,914 | $436,914 |
| 2016 | $314,722 | $120,000 | $0 | $434,722 | $434,722 |
| 2015 | $319,005 | $100,000 | $0 | $419,005 | $419,005 |
| 2014 | $323,291 | $106,250 | $0 | $429,541 | $429,541 |
| 2013 | $327,574 | $106,250 | $0 | $433,824 | $433,824 |
| 2012 | $331,858 | $106,250 | $0 | $438,108 | $438,108 |
| 2011 | $336,142 | $125,000 | $0 | $461,142 | $461,142 |
| 2010 | $367,872 | $125,000 | $0 | $492,872 | $492,872 |
| 2009 | $383,397 | $135,000 | $0 | $518,397 | $518,397 |
| 2008 | $397,180 | $155,000 | $0 | $552,180 | $552,180 |
| 2007 | $402,124 | $96,800 | $0 | $498,924 | $498,924 |
Deed and Sales History
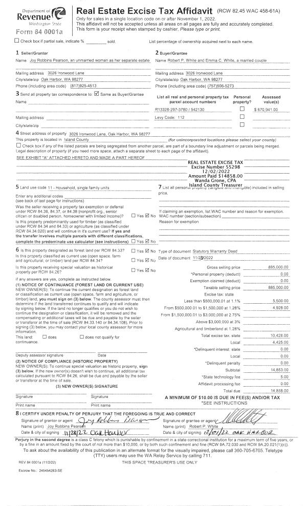
| 1 | 11/23/2022 | WD | Warranty Deed | PEARSON, JOY ROBBINS | WHITE, ROBERT P | | | $885,000.00 | 55298 | 4554447 |
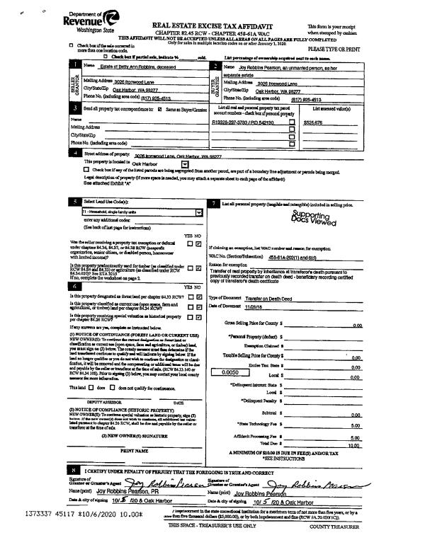
| 2 | 11/28/2018 | TOD | Transfer On Death Deed | ROBBINS, BETTY A | PEARSON, JOY ROBBINS | | | $0.00 | 45117 | 4455680 |
| 3 | 11/28/2018 | PRD | Personal Representatives Deed | ROBBINS, GEORGE B | ROBBINS, BETTY A | | | $0.00 | 36799 | 4455679 |
| 4 | 08/22/2001 | WD | Warranty Deed | FAIRBANKS CAPITAL CORP, | ROBBINS, GEORGE B | | | $318,000.00 | 13258 | 20041273 |
| 5 | 04/30/1998 | QCD | Quit Claim Deed | TACK, THOMAS A | FAIRBANKS CAPITAL CORP, | | | $194,625.00 | 81569 | 98008490 |
| 6 | 04/27/1998 | WD | Warranty Deed | TACK, THOMAS A | TACK, THOMAS A | | | $225,000.00 | 81570 | 98008491 |
| 7 | 05/01/1997 | TRUSTEED | Trustee's Deed | FEL-MAN, INC | TRANSAMERICA, FINANCIAL | | | $0.00 | 71561 | 97007194 |
| 8 | 05/01/1996 | QCD | Quit Claim Deed | FLACK, ALAN D | FEL-MAN, INC | | | $240,000.00 | 62369 | 96011720 |
| 9 | 12/01/1992 | WD | Warranty Deed | KRUSE, JON | FLACK, ALAN D | | | $235,000.00 | 24758 | 92023441 |
| 10 | 09/01/1985 | WD | Warranty Deed | STADLER, MARVIN E | KRUSE, JON | | | $175,000.00 | 52717 | 85010755 |
| 11 | 02/01/1985 | DECREE | Divorce Decree/Legal Separation | STADLER, MARVIN E | STADLER, MARVIN E | | | $0.00 | 51855 | 85007212 |
| 12 | 11/01/1981 | WD | Warranty Deed | TULLY, ALBERT P | STADLER, MARVIN E | | | $160,000.00 | 13716 | 390914 |
| 13 | 06/01/1978 | OTHER | Other - Misc. Documents | Unknown | TULLY, ALBERT P | | | $102,000.00 | 82733 | 335637 |
| 14 | 01/01/1900 | OTHER | Other - Misc. Documents | TRANSAMERICA, FINANCIAL | FAIRBANKS, CAPTIAL C | | | $0.00 | 81569 | 98008490 |
| 15 | 01/01/1900 | OTHER | Other - Misc. Documents | FAIRBANKS, CAPTIAL C | TACK, THOMAS A | | | $0.00 | 81570 | 98008491 |
Payout Agreement
| No payout information available.. |