Property
Account |
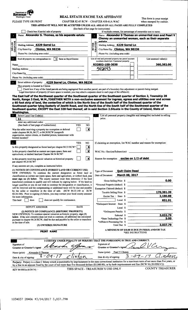
| Property ID: | 542443 | Abbreviated Legal Description: | REPLACES 100-3120 E/2 NW SW SE TGW SUB EZ FR 065-3300 |
| Geographic ID: | R32802-100-3030 | Agent Code: | |
| Type: | Real | | |
| Tax Area: | 712 - APPRAISER-S Whid Schl Dist, outside Langley, improved, greater than 1 acre | Land Use Code | 11 |
| Open Space: | N | DFL | N |
| Historic Property: | N | Remodel Property: | N |
| Multi-Family Redevelopment: | N | | |
| Township: | 28 | Section: | 02 |
| Range: | R3 |
Location |
| Address: | 4229 SORREL LN CLINTON, WA 98236 | Mapsco: | |
| Neighborhood: | Cycle 4 | Map ID: | 680 |
| Neighborhood CD: | 4 |
Owner |
| Name: | THOMAS, ALEXANDER S | Owner ID: | 278889 |
| Mailing Address: | PEARL V CHENEY 4229 SORREL LN CLINTON, WA 98236 | % Ownership: | 100.0000000000% |
| | | Exemptions: | |
Taxes and Assessment Details
Values
| (+) Improvement Homesite Value: | + | $0 | |
| (+) Improvement Non-Homesite Value: | + | $318,900 | |
| (+) Land Homesite Value: | + | $0 | |
| (+) Land Non-Homesite Value: | + | $360,000 | |
| (+) Curr Use (HS): | + | $0 | $0 |
| (+) Curr Use (NHS): | + | $0 | $0 |
| | | -------------------------- | |
| (=) Market Value: | = | $678,900 | |
| (–) Productivity Loss: | – | $0 | |
| | | -------------------------- | |
| (=) Subtotal: | = | $678,900 | |
| (+) Senior Appraised Value: | + | $0 | |
| (+) Non-Senior Appraised Value: | + | $678,900 | |
| | | -------------------------- | |
| (=) Total Appraised Value: | = | $678,900 | |
| (–) Senior Exemption Loss: | – | $0 | |
| (–) Exemption Loss: | – | $0 | |
| | | -------------------------- | |
| (=) Taxable Value: | = | $678,900 | |
Taxing Jurisdiction
| Owner: | THOMAS, ALEXANDER S | | |
| % Ownership: | 100.0000000000% | | |
| Total Value: | $678,900 | | |
| Tax Area: | 712 - APPRAISER-S Whid Schl Dist, outside Langley, improved, greater than 1 acre |
| CF | Conservation Futures | 0.0313996660 | $678,900 | $678,900 | $21.32 | | |
| FIRE3 | Fire & Rescue Dist #3 S Whidbey GEN | 1.2130821753 | $678,900 | $678,900 | $823.56 | | |
| HOBOND | Hospital BOND | 0.1893405597 | $678,900 | $678,900 | $128.54 | | |
| HOGEN | Hospital GEN | 0.3848777722 | $678,900 | $678,900 | $261.29 | | |
| CE | County Current Expense | 0.3674210519 | $678,900 | $678,900 | $249.44 | | |
| CR | County Roads | 0.4614296361 | $678,900 | $678,900 | $313.26 | | |
| ISLANDEMS | Hospital GEN (EMS) | 0.4952018576 | $678,900 | $678,900 | $336.19 | | |
| LIB | Library Sno-Isle GEN | 0.3039084203 | $678,900 | $678,900 | $206.32 | | |
| PORTWHID | Port of S Whidbey GEN | 0.1086004714 | $678,900 | $678,900 | $73.73 | | |
| SCH206BOND | School 206 BOND | 0.5960237832 | $678,900 | $678,900 | $404.64 | | |
| SCH206CAP | School 206 CP | 0.3066144020 | $678,900 | $678,900 | $208.16 | | |
| SCH206MO | School 206 Enrichment | 0.4808755445 | $678,900 | $678,900 | $326.47 | | |
| ST | State School | 1.4761226122 | $678,900 | $678,900 | $1,002.14 | | |
| ST2 | State School Part 2 | 0.7953803475 | $678,900 | $678,900 | $539.98 | | |
| SWHIDPRBD | P & R S Whidbey BOND | 0.0144185398 | $678,900 | $678,900 | $9.79 | | |
| SWHIDPRBD3 | P & R S Whidbey BOND3 | 0.1483535547 | $678,900 | $678,900 | $100.72 | | |
| SWHIDPRMT | P & R S Whidbey GEN | 0.4600000000 | $678,900 | $678,900 | $312.29 | | |
| | Total Tax Rate: | 7.8330503944 | | | | | |
| | | | | Taxes w/Current Exemptions: | $5,317.84 | | |
| | | | | Taxes w/o Exemptions: | $5,317.84 | | |
Improvement / Building
| Improvement #1: | RESIDENTIAL | State Code: | Y | 2698.0 sqft | Value: | $318,900 |
| Bathrooms: | 2 | Bedrooms: | 3 | | Ceiling: | DRYWALL PAINTED | Exterior Wall/Cover: | PLY/HARDBOARD T-111 | | Floor Covering: | CARPET/VINYL 80-20 | Floor Structure: | WOOD W/SUBFLOOR | | Foundation: | CONCRETE | Heating: | WALL HEAT ELECTRIC | | Interior Finish: | DRYWALL PAINT | Plumbing Fixture Cnt: | 10 | | Roof Slope: | 3" IN 12" | Roof Structure/Cover: | CJ ASPHALT |
|
| | Type | Description | Class CD | Sub Class CD | Year Built | Area |
| | BAS | BASE/MAIN FLOOR | 3 | 0 | 2002 | 1609.0 |
| | BIG | BUILT IN GARAGE | 3 | 0 | 2002 | 520.0 |
| | OWP | OPEN WOOD PORCH W/STEPS | 3 | 0 | 2002 | 312.0 |
| | DWN | DOWNSTAIRS LIVING AREA | 3 | 0 | 2002 | 1089.0 |
Sketch
| No sketches available for this property. |
Property Image
Land
| 1 | 32 | AC (03.01-09.99) | 5.0000 | 0.00 | 0.00 | 0.00 | 1.00 | $360,000 | $0 |
Roll Value History
| 2026 | N/A | N/A | N/A | N/A | N/A |
| 2025 | $318,900 | $360,000 | $0 | $678,900 | $678,900 |
| 2024 | $322,923 | $340,000 | $0 | $662,923 | $662,923 |
| 2023 | $326,947 | $330,000 | $0 | $656,947 | $656,947 |
| 2022 | $299,693 | $280,000 | $0 | $579,693 | $579,693 |
| 2021 | $263,767 | $230,000 | $0 | $493,767 | $493,767 |
| 2020 | $244,235 | $190,000 | $0 | $434,235 | $434,235 |
| 2019 | $192,156 | $220,000 | $0 | $412,156 | $412,156 |
| 2018 | $192,733 | $210,000 | $0 | $402,733 | $402,733 |
| 2017 | $193,083 | $165,000 | $0 | $358,083 | $358,083 |
| 2016 | $195,382 | $165,000 | $0 | $360,382 | $360,382 |
| 2015 | $197,680 | $150,000 | $0 | $347,680 | $347,680 |
| 2014 | $199,979 | $150,000 | $0 | $349,979 | $349,979 |
| 2013 | $202,277 | $200,000 | $0 | $402,277 | $402,277 |
| 2012 | $204,576 | $170,000 | $0 | $374,576 | $374,576 |
| 2011 | $206,875 | $170,000 | $0 | $376,875 | $376,875 |
| 2010 | $213,830 | $170,000 | $0 | $383,830 | $383,830 |
| 2009 | $220,479 | $220,000 | $0 | $440,479 | $440,479 |
| 2008 | $222,913 | $250,000 | $0 | $472,913 | $472,913 |
| 2007 | $227,668 | $210,000 | $0 | $437,668 | $437,668 |
Deed and Sales History
| 1 | 03/08/2017 | QCD | Quit Claim Deed | THOMAS, ALEXANDER | THOMAS, ALEXANDER S | | | $170,381.00 | 28406 | 4418717 |
| 2 | 02/03/2017 | DECREE | Divorce Decree/Legal Separation | THOMAS, ALEXANDER S | THOMAS, ALEXANDER | | | $0.00 | 27985 | 4416600 |
| 3 | 10/01/1995 | REC | Real Estate Contract | SKINNER, PAUL M | THOMAS, ALEXANDER S | | | $50,000.00 | 53882 | 95017723 |
| 4 | 10/01/1995 | QCD | Quit Claim Deed | SKINNER, PAUL M | SKINNER, PAUL M | | | $0.00 | 53881 | 95017722 |
| 5 | 09/01/1981 | CD | DNU - Correction Deed | Unknown | SKINNER, PAUL M | | | $0.00 | 12725 | 387414 |
Payout Agreement
| No payout information available.. |